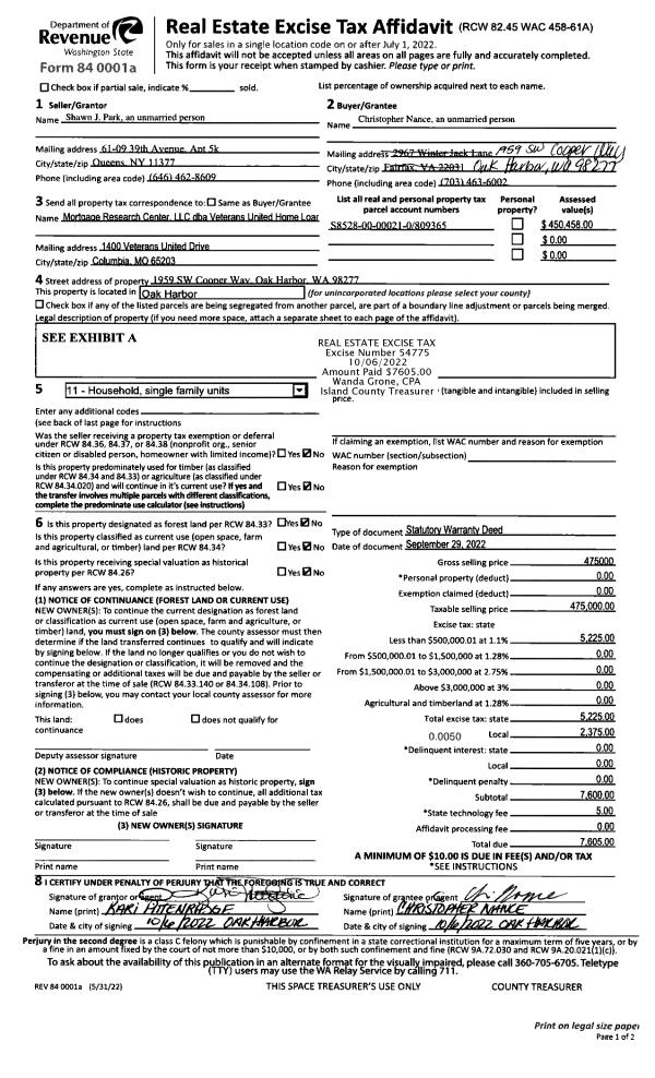
Property
Account |
| Property ID: | 47746 | Abbreviated Legal Description: | 12 S/2 SW NW EX RD ALG WLN AF#156626 |
| Geographic ID: | R22905-306-0741 | Agent Code: | |
| Type: | Real | | |
| Tax Area: | 712 - APPRAISER-S Whid Schl Dist, outside Langley, improved, greater than 1 acre | Land Use Code | 88 |
| Open Space: | N | DFL | Y |
| Historic Property: | N | Remodel Property: | N |
| Multi-Family Redevelopment: | N | | |
| Township: | 29 | Section: | 05 |
| Range: | R2 |
Location |
| Address: | 4971 SMUGGLERS COVE RD FREELAND, WA 98249 | Mapsco: | |
| Neighborhood: | Cycle 3 | Map ID: | 297 |
| Neighborhood CD: | 3 |
Owner |
| Name: | BIXBY, HARLAN | Owner ID: | 304720 |
| Mailing Address: | 5005 SMUGGLERS COVE RD FREELAND, WA 98249 | % Ownership: | 100.0000000000% |
| | | Exemptions: | |
Taxes and Assessment Details
Values
| (+) Improvement Homesite Value: | + | $0 | |
| (+) Improvement Non-Homesite Value: | + | $576,414 | |
| (+) Land Homesite Value: | + | $0 | |
| (+) Land Non-Homesite Value: | + | $269,231 | |
| (+) Curr Use (HS): | + | $0 | $0 |
| (+) Curr Use (NHS): | + | $130,769 | $2,947 |
| | | -------------------------- | |
| (=) Market Value: | = | $976,414 | |
| (–) Productivity Loss: | – | $127,822 | |
| | | -------------------------- | |
| (=) Subtotal: | = | $848,592 | |
| (+) Senior Appraised Value: | + | $0 | |
| (+) Non-Senior Appraised Value: | + | $848,592 | |
| | | -------------------------- | |
| (=) Total Appraised Value: | = | $848,592 | |
| (–) Senior Exemption Loss: | – | $0 | |
| (–) Exemption Loss: | – | $0 | |
| | | -------------------------- | |
| (=) Taxable Value: | = | $848,592 | |
Taxing Jurisdiction
| Owner: | BIXBY, HARLAN | | |
| % Ownership: | 100.0000000000% | | |
| Total Value: | $976,414 | | |
| Tax Area: | 712 - APPRAISER-S Whid Schl Dist, outside Langley, improved, greater than 1 acre |
| CF | Conservation Futures | 0.0316035091 | $848,592 | $848,592 | $26.82 | | |
| FIRE3 | Fire & Rescue Dist #3 S Whidbey GEN | 1.2004855531 | $848,592 | $848,592 | $1,018.72 | | |
| HOBOND | Hospital BOND | 0.1910887512 | $848,592 | $848,592 | $162.16 | | |
| HOGEN | Hospital GEN | 0.3902502903 | $848,592 | $848,592 | $331.16 | | |
| CE | County Current Expense | 0.3708482477 | $848,592 | $848,592 | $314.70 | | |
| CR | County Roads | 0.4584763726 | $848,592 | $848,592 | $389.06 | | |
| ISLANDEMS | Hospital GEN (EMS) | 0.5000000000 | $848,592 | $848,592 | $424.30 | | |
| LIB | Library Sno-Isle GEN | 0.3153421757 | $848,592 | $848,592 | $267.60 | | |
| PORTWHID | Port of S Whidbey GEN | 0.1094540357 | $848,592 | $848,592 | $92.88 | | |
| SCH206BOND | School 206 BOND | 0.3161759235 | $848,592 | $848,592 | $268.30 | | |
| SCH206MO | School 206 Enrichment | 0.4547169547 | $848,592 | $848,592 | $385.87 | | |
| ST | State School | 1.3035497053 | $848,592 | $848,592 | $1,106.18 | | |
| ST2 | State School Part 2 | 0.8169543533 | $848,592 | $848,592 | $693.26 | | |
| SWHIDPRBD | P & R S Whidbey BOND | 0.0152817568 | $848,592 | $848,592 | $12.97 | | |
| SWHIDPRBD2 | P & R S Whidbey BOND2 | 0.0138911264 | $848,592 | $848,592 | $11.79 | | |
| SWHIDPRMT | P & R S Whidbey GEN | 0.2053334452 | $848,592 | $848,592 | $174.24 | | |
| | Total Tax Rate: | 6.6934522006 | | | | | |
| | | | | Taxes w/Current Exemptions: | $5,680.01 | | |
| | | | | Taxes w/o Exemptions: | $5,680.01 | | |
Improvement / Building
| Improvement #1: | RESIDENTIAL | State Code: | Y | 2200.0 sqft | Value: | $248,498 |
| Bathrooms: | 2 | Bedrooms: | 2 | | Ceiling: | DRYWALL PAINTED | Exterior Wall/Cover: | WOOD SIDING | | Floor Covering: | VINYL/HARDWOOD 20-80 | Floor Structure: | WOOD W/SUBFLOOR | | Foundation: | CONCRETE | Heating: | BASEBOARD ELECTRIC | | Interior Finish: | DRYWALL PAINT | Plumbing Fixture Cnt: | 9 | | Roof Slope: | 5" IN 12" | Roof Structure/Cover: | CJ ASPHALT |
|
| | Type | Description | Class CD | Sub Class CD | Year Built | Area |
| | BAS | BASE/MAIN FLOOR | 3 | 0 | 1975 | 1144.0 |
| | OP1 | OPEN PORCH SLAB | 3 | 0 | 1975 | 264.0 |
| | OP2 | OPEN PORCH W/STEPS | 3 | 0 | 1975 | 96.0 |
| | OCP | OPEN CARPORT | 3 | 0 | 1975 | 308.0 |
| | OWP | OPEN WOOD PORCH W/STEPS | 3 | 0 | 1975 | 364.0 |
| | DWN | DOWNSTAIRS LIVING AREA | 3 | 0 | 1975 | 1056.0 |
| Improvement #2: | RESIDENTIAL | State Code: | Y | 2656.0 sqft | Value: | $327,916 |
| Bathrooms: | 2 | Bedrooms: | 3 | | Ceiling: | DRYWALL PAINTED | Exterior Wall/Cover: | WOOD SIDING | | Floor Covering: | HARDWOOD/CARP 60-40 | Floor Structure: | WOOD W/SUBFLOOR | | Foundation: | CONCRETE | Heating: | BASEBOARD ELECTRIC | | Interior Finish: | DRYWALL PAINT | Plumbing Fixture Cnt: | 9 | | Roof Slope: | 6" IN 12" | Roof Structure/Cover: | CJ ASPHALT |
|
| | Type | Description | Class CD | Sub Class CD | Year Built | Area |
| | BAS | BASE/MAIN FLOOR | 3 | 0 | 1975 | 1328.0 |
| | OP1 | OPEN PORCH SLAB | 3 | 0 | 1975 | 28.0 |
| | OP2 | OPEN PORCH W/STEPS | 3 | 0 | 1975 | 240.0 |
| | OWP | OPEN WOOD PORCH W/STEPS | 3 | 0 | 1975 | 552.0 |
| | DWN | DOWNSTAIRS LIVING AREA | 3 | 0 | 1975 | 1328.0 |
Sketch
Property Image
Land
| 1 | 91 | UNDEVELOPED LAND-METES AND BOUNDS | 1.2000 | 52272.00 | 0.00 | 0.00 | 1.00 | $9,231 | $0 |
| 2 | 88 | DESIGNATED FOREST | 11.7400 | 532303.20 | 0.00 | 0.00 | 1.00 | $90,307 | $2,184 |
| 3 | 88 | DESIGNATED FOREST | 5.2600 | 237837.60 | 0.00 | 0.00 | 1.00 | $40,462 | $763 |
| 4 | HS | HOMESITE | 1.0000 | 43560.00 | 0.00 | 0.00 | 1.00 | $260,000 | $0 |
Roll Value History
| 2026 | N/A | N/A | N/A | N/A | N/A |
| 2025 | $576,414 | $400,000 | $2,947 | $848,592 | $848,592 |
| 2024 | $596,663 | $360,000 | $2,963 | $847,538 | $847,538 |
| 2023 | $604,664 | $350,000 | $2,837 | $647,605 | $647,605 |
| 2022 | $554,770 | $250,001 | $2,837 | $586,253 | $586,253 |
| 2021 | $488,717 | $250,001 | $2,837 | $520,200 | $520,200 |
| 2020 | $478,111 | $210,000 | $2,837 | $505,011 | $505,011 |
| 2019 | $350,789 | $350,000 | $2,741 | $393,634 | $393,634 |
| 2018 | $351,966 | $235,000 | $2,708 | $380,674 | $380,674 |
| 2017 | $354,318 | $200,000 | $2,708 | $379,942 | $379,942 |
| 2016 | $359,025 | $200,000 | $2,444 | $384,384 | $384,384 |
| 2015 | $363,731 | $163,200 | $2,444 | $384,875 | $384,875 |
| 2014 | $368,441 | $163,200 | $2,444 | $389,585 | $389,585 |
| 2013 | $365,533 | $163,200 | $2,444 | $386,677 | $386,677 |
| 2012 | $370,298 | $60,000 | $0 | $430,298 | $430,298 |
| 2011 | $375,066 | $60,000 | $0 | $435,066 | $435,066 |
| 2010 | $398,765 | $60,000 | $0 | $458,765 | $458,765 |
| 2009 | $415,579 | $48,400 | $0 | $463,979 | $463,979 |
| 2008 | $420,515 | $84,000 | $0 | $504,515 | $504,515 |
| 2007 | $334,728 | $94,411 | $0 | $429,139 | $429,139 |
Deed and Sales History
| 1 | 05/02/2022 | QCD | Quit Claim Deed | BIXBY, SALLY M | BIXBY, HARLAN | | | $0.00 | 53109 | 4545132 |
| 2 | 05/02/2022 | WD | Warranty Deed | NOAH'S RANCH LLC | BIXBY, HARLAN | | | $2,181,025.00 | 53108 | 4545131 |
|   | |
| 3 | 05/01/2013 | WD | Warranty Deed | THE PROPPE TRUST OF 2007 | NOAH'S RANCH LLC | | | $743,595.00 | 11194 | 43390772 |
|   | |
| 4 | 01/10/2008 | QCD | Quit Claim Deed | PROPPE, HANS | THE PROPPE TRUST OF 2007 | | | | 80068 | 4219464 |
| 5 | 08/01/1989 | WD | Warranty Deed | VERHEYDEN, PIERRE D | PROPPE, HANS | | | $164,900.00 | 93199 | 89010749 |
| 6 | 07/01/1989 | QCD | Quit Claim Deed | VERHEYDEN, PIERRE D | VERHEYDEN, PIERRE D | | | $0.00 | 92929 | 89009826 |
| 7 | 07/01/1989 | QCD | Quit Claim Deed | VERHEYDEN, PIERRE D | VERHEYDEN, PIERRE D | | | $0.00 | 92930 | 89009827 |
| 8 | 05/01/1989 | QCD | Quit Claim Deed | VERHEYDEN, PIERRE D | VERHEYDEN, PIERRE D | | | $0.00 | 91865 | 89006497 |
| 9 | 01/01/1900 | OTHER | Other - Misc. Documents | Unknown | VERHEYDEN, PIERRE D | | | $0.00 | 0 | 0 |
Payout Agreement
| No payout information available.. |