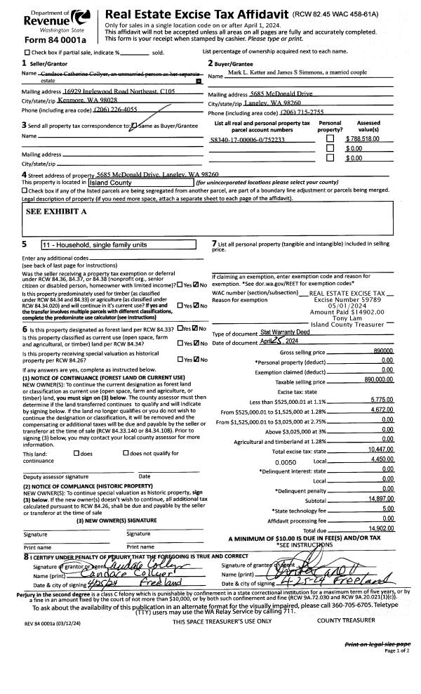
Property
Account |
| Property ID: | 477763 | Abbreviated Legal Description: | IN FREUND DLC BG NE CR DLC S421.925' N89*W1431' TPB N89*W115.55' S82.72' ALG CUR/R 37.05' S89*E77.61' N5 E105' TPB FR 0043960 SEE 13203 510 3960 SUR 5/34 |
| Geographic ID: | R13334-014-3960 | Agent Code: | |
| Type: | Real | | |
| Tax Area: | 100 - APPRAISER-OH Schl Dist, in OH | Land Use Code | 91 |
| Open Space: | N | DFL | N |
| Historic Property: | N | Remodel Property: | N |
| Multi-Family Redevelopment: | N | | |
| Township: | 33 | Section: | 34 |
| Range: | R1 |
Location |
| Address: | 608 SW 2ND AVE OAK HARBOR, WA 98277 | Mapsco: | |
| Neighborhood: | Cycle 1 | Map ID: | 253 |
| Neighborhood CD: | 1 |
Owner |
| Name: | RIEPMA, CHAD | Owner ID: | 288513 |
| Mailing Address: | CARRIE RIEPMA 2028 ZYLSTRA RD OAK HARBOR, WA 98277 | % Ownership: | 100.0000000000% |
| | | Exemptions: | |
Taxes and Assessment Details
Values
| (+) Improvement Homesite Value: | + | $0 | |
| (+) Improvement Non-Homesite Value: | + | $0 | |
| (+) Land Homesite Value: | + | $0 | |
| (+) Land Non-Homesite Value: | + | $80,000 | |
| (+) Curr Use (HS): | + | $0 | $0 |
| (+) Curr Use (NHS): | + | $0 | $0 |
| | | -------------------------- | |
| (=) Market Value: | = | $80,000 | |
| (–) Productivity Loss: | – | $0 | |
| | | -------------------------- | |
| (=) Subtotal: | = | $80,000 | |
| (+) Senior Appraised Value: | + | $0 | |
| (+) Non-Senior Appraised Value: | + | $80,000 | |
| | | -------------------------- | |
| (=) Total Appraised Value: | = | $80,000 | |
| (–) Senior Exemption Loss: | – | $0 | |
| (–) Exemption Loss: | – | $0 | |
| | | -------------------------- | |
| (=) Taxable Value: | = | $80,000 | |
Taxing Jurisdiction
| Owner: | RIEPMA, CHAD | | |
| % Ownership: | 100.0000000000% | | |
| Total Value: | $80,000 | | |
| Tax Area: | 100 - APPRAISER-OH Schl Dist, in OH |
| CF | Conservation Futures | 0.0316035091 | $80,000 | $80,000 | $2.53 | | |
| CEM1 | Cemetery #1 | 0.0040320932 | $80,000 | $80,000 | $0.32 | | |
| COH | City of Oak Harbor | 2.3001546061 | $80,000 | $80,000 | $184.01 | | |
| OAKBOND | City of Oak Harbor BOND | 0.1926904192 | $80,000 | $80,000 | $15.42 | | |
| HOBOND | Hospital BOND | 0.1910887512 | $80,000 | $80,000 | $15.29 | | |
| HOGEN | Hospital GEN | 0.3902502903 | $80,000 | $80,000 | $31.22 | | |
| CE | County Current Expense | 0.3708482477 | $80,000 | $80,000 | $29.67 | | |
| ISLANDEMS | Hospital GEN (EMS) | 0.5000000000 | $80,000 | $80,000 | $40.00 | | |
| LIB | Library Sno-Isle GEN | 0.3153421757 | $80,000 | $80,000 | $25.23 | | |
| NWHIDPRMT | P & R N Whidbey GEN | 0.2004466701 | $80,000 | $80,000 | $16.04 | | |
| SCH201MO | School 201 Enrichment | 1.8559231640 | $80,000 | $80,000 | $148.47 | | |
| ST | State School | 1.3035497053 | $80,000 | $80,000 | $104.28 | | |
| ST2 | State School Part 2 | 0.8169543533 | $80,000 | $80,000 | $65.36 | | |
| | Total Tax Rate: | 8.4728839852 | | | | | |
| | | | | Taxes w/Current Exemptions: | $677.84 | | |
| | | | | Taxes w/o Exemptions: | $677.84 | | |
Improvement / Building
Sketch
| No sketches available for this property. |
Property Image
Land
| 1 | 14 | SQ (08001-12000) | 0.2600 | 11325.60 | 0.00 | 0.00 | 1.00 | $80,000 | $0 |
Roll Value History
| 2026 | N/A | N/A | N/A | N/A | N/A |
| 2025 | $0 | $80,000 | $0 | $80,000 | $80,000 |
| 2024 | $0 | $120,000 | $0 | $120,000 | $120,000 |
| 2023 | $0 | $120,000 | $0 | $120,000 | $120,000 |
| 2022 | $0 | $120,000 | $0 | $120,000 | $120,000 |
| 2021 | $0 | $120,000 | $0 | $120,000 | $120,000 |
| 2020 | $0 | $100,000 | $0 | $100,000 | $100,000 |
| 2019 | $0 | $100,000 | $0 | $100,000 | $100,000 |
| 2018 | $0 | $70,000 | $0 | $70,000 | $70,000 |
| 2017 | $0 | $70,000 | $0 | $70,000 | $70,000 |
| 2016 | $0 | $70,000 | $0 | $70,000 | $70,000 |
| 2015 | $0 | $70,000 | $0 | $70,000 | $70,000 |
| 2014 | $0 | $55,000 | $0 | $55,000 | $55,000 |
| 2013 | $0 | $55,000 | $0 | $55,000 | $55,000 |
| 2012 | $0 | $47,500 | $0 | $47,500 | $47,500 |
| 2011 | $0 | $47,500 | $0 | $47,500 | $47,500 |
| 2010 | $0 | $47,500 | $0 | $47,500 | $47,500 |
| 2009 | $0 | $60,000 | $0 | $60,000 | $60,000 |
| 2008 | $0 | $60,000 | $0 | $60,000 | $60,000 |
Deed and Sales History
| 1 | 03/27/2025 | WD | Warranty Deed | KOTT, MARJORIE | RIEPMA, CHAD | | | $160,000.00 | 62966 | 4583815 |
| 2 | 03/11/2008 | OTHER | Other - Misc. Documents | KOTT, GEORGE W | KOTT, MARJORIE | | | $0.00 | 80634 | 0 |
| 3 | 05/01/1980 | REC | Real Estate Contract | GARRON, DALE G | KOTT, GEORGE W | | | $17,500.00 | 1738 | 369038 |
| 4 | 08/01/1979 | QCD | Quit Claim Deed | Unknown | GARRON, DALE G | | | $0.00 | 93913 | 357007 |
Payout Agreement
| No payout information available.. |