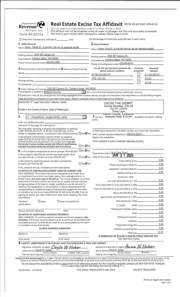
Property
Account |
| Property ID: | 479173 | Abbreviated Legal Description: | 1976 BARRINGTON 14X66 VIN# 702B031196S4382 TPO @75208 |
| Geographic ID: | M911000001670 | Agent Code: | |
| Type: | Mobile Home | | |
| Tax Area: | 100 - APPRAISER-OH Schl Dist, in OH | Land Use Code | 11 |
| Open Space: | N | DFL | N |
| Historic Property: | N | Remodel Property: | N |
| Multi-Family Redevelopment: | N | | |
| Township: | | Section: | |
| Range: | |
Location |
| Address: | 700 NW CROSBY AVE # 167 OAK HARBOR, WA 98277 | Mapsco: | |
| Neighborhood: | Cycle 1 | Map ID: | |
| Neighborhood CD: | 1 |
Owner |
| Name: | SMISSAERT, BEVERLY SUE | Owner ID: | 307380 |
| Mailing Address: | 700 NW CROSBY RD #167 OAK HARBOR, WA 98277 | % Ownership: | 100.0000000000% |
| | | Exemptions: | |
Taxes and Assessment Details
Values
| (+) Improvement Homesite Value: | + | $0 | |
| (+) Improvement Non-Homesite Value: | + | $7,806 | |
| (+) Land Homesite Value: | + | $0 | |
| (+) Land Non-Homesite Value: | + | $0 | |
| (+) Curr Use (HS): | + | $0 | $0 |
| (+) Curr Use (NHS): | + | $0 | $0 |
| | | -------------------------- | |
| (=) Market Value: | = | $7,806 | |
| (–) Productivity Loss: | – | $0 | |
| | | -------------------------- | |
| (=) Subtotal: | = | $7,806 | |
| (+) Senior Appraised Value: | + | $0 | |
| (+) Non-Senior Appraised Value: | + | $7,806 | |
| | | -------------------------- | |
| (=) Total Appraised Value: | = | $7,806 | |
| (–) Senior Exemption Loss: | – | $0 | |
| (–) Exemption Loss: | – | $0 | |
| | | -------------------------- | |
| (=) Taxable Value: | = | $7,806 | |
Taxing Jurisdiction
| Owner: | SMISSAERT, BEVERLY SUE | | |
| % Ownership: | 100.0000000000% | | |
| Total Value: | $7,806 | | |
| Tax Area: | 100 - APPRAISER-OH Schl Dist, in OH |
| CF | Conservation Futures | 0.0316035091 | $7,806 | $7,806 | $0.25 | | |
| CEM1 | Cemetery #1 | 0.0040320932 | $7,806 | $7,806 | $0.03 | | |
| COH | City of Oak Harbor | 2.3001546061 | $7,806 | $7,806 | $17.96 | | |
| OAKBOND | City of Oak Harbor BOND | 0.1926904192 | $7,806 | $7,806 | $1.50 | | |
| HOBOND | Hospital BOND | 0.1910887512 | $7,806 | $7,806 | $1.49 | | |
| HOGEN | Hospital GEN | 0.3902502903 | $7,806 | $7,806 | $3.05 | | |
| CE | County Current Expense | 0.3708482477 | $7,806 | $7,806 | $2.89 | | |
| ISLANDEMS | Hospital GEN (EMS) | 0.5000000000 | $7,806 | $7,806 | $3.90 | | |
| LIB | Library Sno-Isle GEN | 0.3153421757 | $7,806 | $7,806 | $2.46 | | |
| NWHIDPRMT | P & R N Whidbey GEN | 0.2004466701 | $7,806 | $7,806 | $1.56 | | |
| SCH201MO | School 201 Enrichment | 1.8559231640 | $7,806 | $7,806 | $14.49 | | |
| ST | State School | 1.3035497053 | $7,806 | $7,806 | $10.18 | | |
| ST2 | State School Part 2 | 0.8169543533 | $7,806 | $7,806 | $6.38 | | |
| | Total Tax Rate: | 8.4728839852 | | | | | |
| | | | | Taxes w/Current Exemptions: | $66.14 | | |
| | | | | Taxes w/o Exemptions: | $66.14 | | |
Improvement / Building
| Improvement #1: | MANUFACTURED HOME | State Code: | Y | 924.0 sqft | Value: | $7,806 |
| Bathrooms: | 0 | Bedrooms: | 0 | | Ceiling: | PLASTER PAINTED | Cooling: | EVAP NO DUCT | | Exterior Wall/Cover: | VINYL | Floor Covering: | CARPET 100% | | Floor Structure: | SLAB ON GRADE | Foundation: | SLAB | | Heating: | FHA ELECTRIC | Interior Finish: | PLASTER | | Plumbing Fixture Cnt: | 1 | Roof Slope: | FLAT | | Roof Structure/Cover: | CJ ALUMINIUM HEAVY |   |   |
|
Sketch
Property Image
Land
No land segments exist for this property.
Roll Value History
| 2026 | N/A | N/A | N/A | N/A | N/A |
| 2025 | $7,806 | $0 | $0 | $7,806 | $7,806 |
| 2024 | $8,587 | $0 | $0 | $8,587 | $8,587 |
| 2023 | $6,924 | $0 | $0 | $6,924 | $6,924 |
| 2022 | $6,531 | $0 | $0 | $6,531 | $6,531 |
| 2021 | $6,133 | $0 | $0 | $6,133 | $6,133 |
| 2020 | $6,173 | $0 | $0 | $6,173 | $6,173 |
| 2019 | $5,212 | $0 | $0 | $5,212 | $5,212 |
| 2018 | $5,386 | $0 | $0 | $5,386 | $5,386 |
| 2017 | $3,946 | $0 | $0 | $3,946 | $0 |
| 2016 | $4,075 | $0 | $0 | $4,075 | $0 |
| 2015 | $4,331 | $0 | $0 | $4,331 | $0 |
| 2014 | $4,459 | $0 | $0 | $4,459 | $0 |
| 2013 | $4,715 | $0 | $0 | $4,715 | $0 |
| 2012 | $4,972 | $0 | $0 | $4,972 | $0 |
| 2011 | $5,356 | $0 | $0 | $5,356 | $5,356 |
| 2010 | $5,770 | $0 | $0 | $5,770 | $5,770 |
| 2009 | $7,086 | $0 | $0 | $7,086 | $7,086 |
| 2008 | $7,099 | $0 | $0 | $7,099 | $7,099 |
| 2007 | $7,295 | $0 | $0 | $7,295 | $7,295 |
Deed and Sales History
| 1 | 01/27/2023 | MANHOME | Manufactured Home | BASOCO, ARIANNA | SMISSAERT, BEVERLY SUE | | | $24,000.00 | 55708 | |
| 2 | 10/25/2022 | MANHOME | Manufactured Home | BASOCO, HERIBERTO L | BASOCO, ARIANNA | | | $0.00 | 54970 | |
| 3 | 07/06/2012 | OTHER | Other - Misc. Documents | STREET, BRYAN K | BASOCO, HERIBERTO L | | | $1,000.00 | 8155 | |
| 4 | 08/27/2008 | OTHER | Other - Misc. Documents | CATHER, CHRIS A | STREET, BRYAN K | | | $4,800.00 | 82256 | 0 |
| 5 | 05/11/2000 | PACD | Purchaser's Assignment | STALVEY, DAVID / | CATHER, CHRIS A | | | $22,000.00 | 1719 | 0 |
| 6 | 03/01/1998 | OTHER | Other - Misc. Documents | FOWKES, JOHN T | STALVEY, DAVID / | | | $12,000.00 | 80943 | 0 |
| 7 | 11/01/1995 | OTHER | Other - Misc. Documents | BONSON, NORMAN L | FOWKES, JOHN T | | | $8,600.00 | 53889 | 0 |
| 8 | 02/01/1990 | OTHER | Other - Misc. Documents | GRUND, KARRY R | BONSON, NORMAN L | | | $7,500.00 | 945 | 0 |
| 9 | 12/01/1986 | OTHER | Other - Misc. Documents | INTERWEST, SAVINGS B | GRUND, KARRY R | | | $7,000.00 | 63381 | 0 |
| 10 | 07/01/1986 | OTHER | Other - Misc. Documents | BROWN, MILDRED V | INTERWEST, SAVINGS B | | | $0.00 | 61879 | 0 |
| 11 | 04/01/1983 | OTHER | Other - Misc. Documents | FLEMING, KATHLEEN | BROWN, MILDRED V | | | $14,000.00 | 30828 | 0 |
| 12 | 04/01/1983 | OTHER | Other - Misc. Documents | BARRETT, VELMA J | FLEMING, KATHLEEN | | | $12,500.00 | 30827 | 0 |
| 13 | 10/01/1979 | OTHER | Other - Misc. Documents | BARRETT, WILLIAM | BARRETT, VELMA J | | | $0.00 | 95037 | 0 |
| 14 | 01/01/1900 | OTHER | Other - Misc. Documents | Unknown | BARRETT, WILLIAM | | | $0.00 | 0 | 0 |
Payout Agreement
| No payout information available.. |