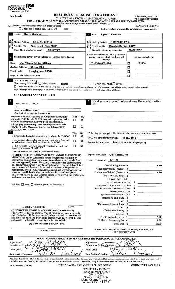
Property
Account |
| Property ID: | 48031 | Abbreviated Legal Description: | LOC 6 - PT GL4 LY WLY SMUG CV RD & NELY BUSH POINT RD SEE AFF# 363574-363577 |
| Geographic ID: | R22906-240-4750 | Agent Code: | |
| Type: | Real | | |
| Tax Area: | 782 - APPRAISER-S Whid Schl Dist, Special District, improved, greater than 1 acre | Land Use Code | 11 |
| Open Space: | N | DFL | N |
| Historic Property: | N | Remodel Property: | N |
| Multi-Family Redevelopment: | N | | |
| Township: | 29 | Section: | 06 |
| Range: | R2 |
Location |
| Address: | | Mapsco: | |
| Neighborhood: | Cycle 3 | Map ID: | 299 |
| Neighborhood CD: | 3 |
Owner |
| Name: | HALLMAN TTEE, MICHAEL R | Owner ID: | 311170 |
| Mailing Address: | 15702 NE 135TH ST REDMOND, WA 98052 | % Ownership: | 100.0000000000% |
| | | Exemptions: | |
Taxes and Assessment Details
Values
| (+) Improvement Homesite Value: | + | $0 | |
| (+) Improvement Non-Homesite Value: | + | $7,000 | |
| (+) Land Homesite Value: | + | $0 | |
| (+) Land Non-Homesite Value: | + | $280,000 | |
| (+) Curr Use (HS): | + | $0 | $0 |
| (+) Curr Use (NHS): | + | $0 | $0 |
| | | -------------------------- | |
| (=) Market Value: | = | $287,000 | |
| (–) Productivity Loss: | – | $0 | |
| | | -------------------------- | |
| (=) Subtotal: | = | $287,000 | |
| (+) Senior Appraised Value: | + | $0 | |
| (+) Non-Senior Appraised Value: | + | $287,000 | |
| | | -------------------------- | |
| (=) Total Appraised Value: | = | $287,000 | |
| (–) Senior Exemption Loss: | – | $0 | |
| (–) Exemption Loss: | – | $0 | |
| | | -------------------------- | |
| (=) Taxable Value: | = | $287,000 | |
Taxing Jurisdiction
| Owner: | HALLMAN TTEE, MICHAEL R | | |
| % Ownership: | 100.0000000000% | | |
| Total Value: | $287,000 | | |
| Tax Area: | 782 - APPRAISER-S Whid Schl Dist, Special District, improved, greater than 1 acre |
| CF | Conservation Futures | 0.0316035091 | $287,000 | $287,000 | $9.07 | | |
| FIRE3 | Fire & Rescue Dist #3 S Whidbey GEN | 1.2004855531 | $287,000 | $287,000 | $344.54 | | |
| HOBOND | Hospital BOND | 0.1910887512 | $287,000 | $287,000 | $54.84 | | |
| HOGEN | Hospital GEN | 0.3902502903 | $287,000 | $287,000 | $112.00 | | |
| CE | County Current Expense | 0.3708482477 | $287,000 | $287,000 | $106.43 | | |
| CR | County Roads | 0.4584763726 | $287,000 | $287,000 | $131.58 | | |
| ISLANDEMS | Hospital GEN (EMS) | 0.5000000000 | $287,000 | $287,000 | $143.50 | | |
| LIB | Library Sno-Isle GEN | 0.3153421757 | $287,000 | $287,000 | $90.50 | | |
| PORTWHID | Port of S Whidbey GEN | 0.1094540357 | $287,000 | $287,000 | $31.41 | | |
| SCH206BOND | School 206 BOND | 0.3161759235 | $287,000 | $287,000 | $90.74 | | |
| SCH206MO | School 206 Enrichment | 0.4547169547 | $287,000 | $287,000 | $130.50 | | |
| ST | State School | 1.3035497053 | $287,000 | $287,000 | $374.12 | | |
| ST2 | State School Part 2 | 0.8169543533 | $287,000 | $287,000 | $234.47 | | |
| SWHIDPRBD | P & R S Whidbey BOND | 0.0152817568 | $287,000 | $287,000 | $4.39 | | |
| SWHIDPRBD2 | P & R S Whidbey BOND2 | 0.0138911264 | $287,000 | $287,000 | $3.99 | | |
| SWHIDPRMT | P & R S Whidbey GEN | 0.2053334452 | $287,000 | $287,000 | $58.93 | | |
| | Total Tax Rate: | 6.6934522006 | | | | | |
| | | | | Taxes w/Current Exemptions: | $1,921.01 | | |
| | | | | Taxes w/o Exemptions: | $1,921.01 | | |
Improvement / Building
| Improvement #1: | RESIDENTIAL | State Code: | Y | 0.0 sqft | Value: | $7,000 |
| | Type | Description | Class CD | Sub Class CD | Year Built | Area |
| | UTY | STORAGE/UTILITY | 3 | 0 | 2014 | 120.0 |
| | UTY | STORAGE/UTILITY | 3 | 0 | 2014 | 168.0 |
Sketch
Property Image
Land
| 1 | 32 | AC (03.01-09.99) | 9.7800 | 426016.80 | 0.00 | 0.00 | 1.00 | $280,000 | $0 |
Roll Value History
| 2026 | N/A | N/A | N/A | N/A | N/A |
| 2025 | $7,000 | $280,000 | $0 | $287,000 | $287,000 |
| 2024 | $7,000 | $280,000 | $0 | $287,000 | $287,000 |
| 2023 | $7,000 | $240,000 | $0 | $247,000 | $247,000 |
| 2022 | $7,000 | $230,000 | $0 | $237,000 | $237,000 |
| 2021 | $7,000 | $170,000 | $0 | $177,000 | $177,000 |
| 2020 | $7,000 | $170,000 | $0 | $177,000 | $177,000 |
| 2019 | $0 | $170,000 | $0 | $170,000 | $170,000 |
| 2018 | $0 | $160,000 | $0 | $160,000 | $160,000 |
| 2017 | $0 | $140,000 | $0 | $140,000 | $140,000 |
| 2016 | $0 | $140,000 | $0 | $140,000 | $140,000 |
| 2015 | $0 | $140,000 | $0 | $140,000 | $140,000 |
| 2014 | $0 | $127,140 | $0 | $127,140 | $127,140 |
| 2013 | $0 | $127,140 | $0 | $127,140 | $127,140 |
| 2012 | $0 | $127,140 | $0 | $127,140 | $127,140 |
| 2011 | $0 | $127,140 | $0 | $127,140 | $127,140 |
| 2010 | $0 | $127,140 | $0 | $127,140 | $127,140 |
| 2009 | $0 | $195,600 | $0 | $195,600 | $195,600 |
| 2008 | $0 | $195,600 | $0 | $195,600 | $195,600 |
| 2007 | $0 | $195,600 | $0 | $195,600 | $195,600 |
Deed and Sales History
| 1 | 12/22/2023 | QCD | Quit Claim Deed | HALLMAN, MICHAEL R | HALLMAN TTEE, MICHAEL R | | | $0.00 | 58976 | 4568443 |
| 2 | 09/15/1998 | WD | Warranty Deed | SEEDY, K'S | HALLMAN, MICHAEL R | | | $450,000.00 | 84153 | 98022468 |
| 3 | 11/01/1988 | PACD | Purchaser's Assignment | CODAHAKI, INC. | SEEDY, K'S | | | $0.00 | 84038 | 88015140 |
| 4 | 12/01/1979 | EZ | Easement | VANGE, DARRELL M | CODAHAKI, INC. | | | $55,000.00 | 96057 | 363574 |
| 5 | 01/01/1900 | OTHER | Other - Misc. Documents | Unknown | VANGE, DARRELL M | | | $0.00 | 0 | 0 |
Payout Agreement
| No payout information available.. |