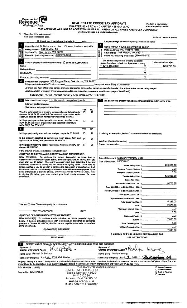
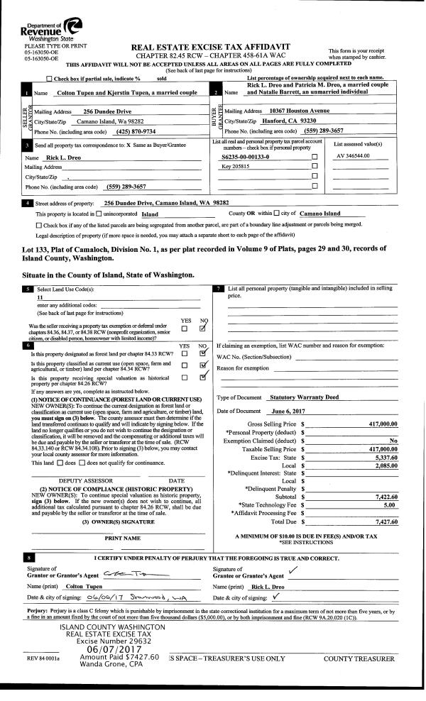
Property
Account |
| Property ID: | 48059 | Abbreviated Legal Description: | 15 - IN GL4: BG NECR GL4 W1320' TPB S45*E127.98' W169.03' TO CEDAR HUB W TO GL LN NWLY ALG SD LN TO NWCR GL4 E345' M/L TPB TGW: BG NECR GL4 W1320' S45*E127.98' TPB S45*E100' W146.70' TO CEDAR HUB W TO GL LN NWLY ALG SD LN TP W OF TPB E TO CEDAR HUB 169 .0 |
| Geographic ID: | R22906-255-3900 | Agent Code: | |
| Type: | Real | | |
| Tax Area: | 782 - APPRAISER-S Whid Schl Dist, Special District, improved, greater than 1 acre | Land Use Code | 11 |
| Open Space: | N | DFL | N |
| Historic Property: | N | Remodel Property: | N |
| Multi-Family Redevelopment: | N | | |
| Township: | 29 | Section: | 06 |
| Range: | R2 |
Location |
| Address: | 5006 SCURLOCK RD FREELAND, WA 98249 | Mapsco: | |
| Neighborhood: | Cycle 3 | Map ID: | 299 |
| Neighborhood CD: | 3 |
Owner |
| Name: | FTW1, LLC | Owner ID: | 281689 |
| Mailing Address: | 66 BRIDLE TRAIL DARIEN, CT 06820 | % Ownership: | 100.0000000000% |
| | | Exemptions: | |
Taxes and Assessment Details
Values
| (+) Improvement Homesite Value: | + | $0 | |
| (+) Improvement Non-Homesite Value: | + | $805,760 | |
| (+) Land Homesite Value: | + | $0 | |
| (+) Land Non-Homesite Value: | + | $1,118,565 | |
| (+) Curr Use (HS): | + | $0 | $0 |
| (+) Curr Use (NHS): | + | $0 | $0 |
| | | -------------------------- | |
| (=) Market Value: | = | $1,924,325 | |
| (–) Productivity Loss: | – | $0 | |
| | | -------------------------- | |
| (=) Subtotal: | = | $1,924,325 | |
| (+) Senior Appraised Value: | + | $0 | |
| (+) Non-Senior Appraised Value: | + | $1,924,325 | |
| | | -------------------------- | |
| (=) Total Appraised Value: | = | $1,924,325 | |
| (–) Senior Exemption Loss: | – | $0 | |
| (–) Exemption Loss: | – | $0 | |
| | | -------------------------- | |
| (=) Taxable Value: | = | $1,924,325 | |
Taxing Jurisdiction
| Owner: | FTW1, LLC | | |
| % Ownership: | 100.0000000000% | | |
| Total Value: | $1,924,325 | | |
| Tax Area: | 782 - APPRAISER-S Whid Schl Dist, Special District, improved, greater than 1 acre |
| CF | Conservation Futures | 0.0316035091 | $1,924,325 | $1,924,325 | $60.82 | | |
| FIRE3 | Fire & Rescue Dist #3 S Whidbey GEN | 1.2004855531 | $1,924,325 | $1,924,325 | $2,310.12 | | |
| HOBOND | Hospital BOND | 0.1910887512 | $1,924,325 | $1,924,325 | $367.72 | | |
| HOGEN | Hospital GEN | 0.3902502903 | $1,924,325 | $1,924,325 | $750.97 | | |
| CE | County Current Expense | 0.3708482477 | $1,924,325 | $1,924,325 | $713.63 | | |
| CR | County Roads | 0.4584763726 | $1,924,325 | $1,924,325 | $882.26 | | |
| ISLANDEMS | Hospital GEN (EMS) | 0.5000000000 | $1,924,325 | $1,924,325 | $962.16 | | |
| LIB | Library Sno-Isle GEN | 0.3153421757 | $1,924,325 | $1,924,325 | $606.82 | | |
| PORTWHID | Port of S Whidbey GEN | 0.1094540357 | $1,924,325 | $1,924,325 | $210.63 | | |
| SCH206BOND | School 206 BOND | 0.3161759235 | $1,924,325 | $1,924,325 | $608.43 | | |
| SCH206MO | School 206 Enrichment | 0.4547169547 | $1,924,325 | $1,924,325 | $875.02 | | |
| ST | State School | 1.3035497053 | $1,924,325 | $1,924,325 | $2,508.45 | | |
| ST2 | State School Part 2 | 0.8169543533 | $1,924,325 | $1,924,325 | $1,572.09 | | |
| SWHIDPRBD | P & R S Whidbey BOND | 0.0152817568 | $1,924,325 | $1,924,325 | $29.41 | | |
| SWHIDPRBD2 | P & R S Whidbey BOND2 | 0.0138911264 | $1,924,325 | $1,924,325 | $26.73 | | |
| SWHIDPRMT | P & R S Whidbey GEN | 0.2053334452 | $1,924,325 | $1,924,325 | $395.13 | | |
| | Total Tax Rate: | 6.6934522006 | | | | | |
| | | | | Taxes w/Current Exemptions: | $12,880.39 | | |
| | | | | Taxes w/o Exemptions: | $12,880.39 | | |
Improvement / Building
| Improvement #1: | RESIDENTIAL | State Code: | Y | 4703.0 sqft | Value: | $805,760 |
| Bathrooms: | 3 | Bedrooms: | 3 | | Ceiling: | DRYWALL PAINTED | Exterior Wall/Cover: | STUCCO | | Floor Covering: | HARDWOOD/CARP 60-40 | Floor Structure: | WOOD W/SUBFLOOR | | Foundation: | CONCRETE | Heating: | FHA ELECTRIC | | Interior Finish: | DRYWALL PAINT | Plumbing Fixture Cnt: | 12 | | Roof Slope: | 8" IN 12" | Roof Structure/Cover: | BEAM CONCRETE TILE |
|
| | Type | Description | Class CD | Sub Class CD | Year Built | Area |
| | BAS | BASE/MAIN FLOOR | 4 | 0 | 1993 | 3263.0 |
| | OP4 | OPEN PORCH W/CEILING-ROOF | 4 | 0 | 1993 | 110.0 |
| | OP4 | OPEN PORCH W/CEILING-ROOF | 4 | 0 | 1993 | 24.0 |
| | UPS | UPPER STORY | 4 | 0 | 1993 | 1440.0 |
| | OP4 | OPEN PORCH W/CEILING-ROOF | 4 | 0 | 1993 | 120.0 |
| | OWP | OPEN WOOD PORCH W/STEPS | 4 | 0 | 1993 | 1884.0 |
| | UTY | STORAGE/UTILITY | 4 | 0 | 1993 | 192.0 |
Sketch
Property Image
Land
| 1 | HB | HIGH BLUFF | 1.0900 | 47480.40 | 165.00 | 0.00 | 1.00 | $1,118,565 | $0 |
Roll Value History
| 2026 | N/A | N/A | N/A | N/A | N/A |
| 2025 | $805,760 | $1,118,565 | $0 | $1,924,325 | $1,924,325 |
| 2024 | $815,927 | $1,055,250 | $0 | $1,871,177 | $1,871,177 |
| 2023 | $826,093 | $1,005,000 | $0 | $1,831,093 | $1,831,093 |
| 2022 | $757,214 | $960,000 | $0 | $1,717,214 | $1,717,214 |
| 2021 | $666,469 | $800,000 | $0 | $1,466,469 | $1,466,469 |
| 2020 | $652,381 | $800,000 | $0 | $1,452,381 | $1,452,381 |
| 2019 | $562,637 | $900,000 | $0 | $1,462,637 | $1,462,637 |
| 2018 | $564,288 | $800,000 | $0 | $1,364,288 | $1,364,288 |
| 2017 | $498,163 | $500,000 | $0 | $998,163 | $998,163 |
| 2016 | $504,752 | $500,000 | $0 | $1,004,752 | $1,004,752 |
| 2015 | $511,343 | $500,000 | $0 | $1,011,343 | $1,011,343 |
| 2014 | $517,932 | $500,000 | $0 | $1,017,932 | $1,017,932 |
| 2013 | $526,147 | $452,042 | $0 | $978,189 | $978,189 |
| 2012 | $532,737 | $452,042 | $0 | $984,779 | $984,779 |
| 2011 | $539,327 | $452,042 | $0 | $991,369 | $991,369 |
| 2010 | $577,939 | $452,042 | $0 | $1,029,981 | $1,029,981 |
| 2009 | $602,615 | $602,722 | $0 | $1,205,337 | $1,205,337 |
| 2008 | $609,917 | $602,722 | $0 | $1,212,639 | $1,212,639 |
| 2007 | $617,513 | $381,470 | $0 | $998,983 | $998,983 |
Deed and Sales History
| 1 | 08/21/2017 | WD | Warranty Deed | WALKER JR, RONALD P | FTW1, LLC | | | $1,392,500.00 | 30883 | 4429265 |
| 2 | 05/01/1992 | WD | Warranty Deed | DOW, CLYDE E | WALKER, RONALD P | | | $300,000.00 | 22000 | 92009586 |
| 3 | 01/01/1900 | OTHER | Other - Misc. Documents | Unknown | DOW, CLYDE E | | | $0.00 | 0 | 0 |
Payout Agreement
| No payout information available.. |