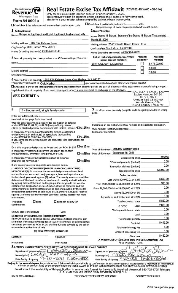
Property
Account |
| Property ID: | 480651 | Abbreviated Legal Description: | IN GL4: BG 990'E & 1078'N OF SWCR GL4 N ALG WLN FURMAN TR AF#60776 152' M/L TO SLN RD W ALG SLN RD 150' M/L S ALG ELN FURMAN TR AF#99582 156' M/L E150' M/L TPB EX E90' FR 398-0970 |
| Geographic ID: | R32902-395-1050 | Agent Code: | |
| Type: | Real | | |
| Tax Area: | 700 - APPRAISER-S Whid Schl Dist, in town of Langley | Land Use Code | 11 |
| Open Space: | N | DFL | N |
| Historic Property: | N | Remodel Property: | N |
| Multi-Family Redevelopment: | N | | |
| Township: | 29 | Section: | 02 |
| Range: | R3 |
Location |
| Address: | 615 EDGECLIFF DR LANGLEY, WA 98260 | Mapsco: | |
| Neighborhood: | City of Langley | Map ID: | 721 |
| Neighborhood CD: | 04-L |
Owner |
| Name: | BOYER, WILLIAM E | Owner ID: | 92128 |
| Mailing Address: | CANDACE L CULVER PO BOX 463 LANGLEY, WA 98260-0463 | % Ownership: | 100.0000000000% |
| | | Exemptions: | SNR/DSBL |
Taxes and Assessment Details
Values
| (+) Improvement Homesite Value: | + | $227,286 | |
| (+) Improvement Non-Homesite Value: | + | $0 | |
| (+) Land Homesite Value: | + | $270,000 | |
| (+) Land Non-Homesite Value: | + | $0 | |
| (+) Curr Use (HS): | + | $0 | $0 |
| (+) Curr Use (NHS): | + | $0 | $0 |
| | | -------------------------- | |
| (=) Market Value: | = | $497,286 | |
| (–) Productivity Loss: | – | $0 | |
| | | -------------------------- | |
| (=) Subtotal: | = | $497,286 | |
| (+) Senior Appraised Value: | + | $339,465 | |
| (+) Non-Senior Appraised Value: | + | $0 | |
| | | -------------------------- | |
| (=) Total Appraised Value: | = | $339,465 | |
| (–) Senior Exemption Loss: | – | $203,679 | |
| (–) Exemption Loss: | – | $0 | |
| | | -------------------------- | |
| (=) Taxable Value: | = | $135,786 | |
Taxing Jurisdiction
| Owner: | BOYER, WILLIAM E | | |
| % Ownership: | 100.0000000000% | | |
| Total Value: | $497,286 | | |
| Tax Area: | 700 - APPRAISER-S Whid Schl Dist, in town of Langley |
| CF | Conservation Futures | 0.0316035091 | $497,286 | $135,786 | $4.29 | | |
| LANG | City of Langley | 1.0093520762 | $497,286 | $135,786 | $137.06 | | |
| LANGBOND | City of Langley BOND | 0.0000000000 | $497,286 | $0 | $0.00 | | |
| FIRE3 | Fire & Rescue Dist #3 S Whidbey GEN | 1.2004855531 | $497,286 | $135,786 | $163.01 | | |
| HOBOND | Hospital BOND | 0.0000000000 | $497,286 | $0 | $0.00 | | |
| HOGEN | Hospital GEN | 0.3902502903 | $497,286 | $135,786 | $52.99 | | |
| CE | County Current Expense | 0.3708482477 | $497,286 | $135,786 | $50.36 | | |
| ISLANDEMS | Hospital GEN (EMS) | 0.5000000000 | $497,286 | $135,786 | $67.89 | | |
| LIB | Library Sno-Isle GEN | 0.3153421757 | $497,286 | $135,786 | $42.82 | | |
| PORTWHID | Port of S Whidbey GEN | 0.1094540357 | $497,286 | $135,786 | $14.86 | | |
| SCH206BOND | School 206 BOND | 0.3161759235 | $497,286 | $135,786 | $42.93 | | |
| SCH206MO | School 206 Enrichment | 0.0000000000 | $497,286 | $0 | $0.00 | | |
| ST | State School | 1.3035497053 | $497,286 | $135,786 | $177.00 | | |
| ST2 | State School Part 2 | 0.0000000000 | $497,286 | $0 | $0.00 | | |
| SWHIDPRBD | P & R S Whidbey BOND | 0.0000000000 | $497,286 | $0 | $0.00 | | |
| SWHIDPRBD2 | P & R S Whidbey BOND2 | 0.0000000000 | $497,286 | $0 | $0.00 | | |
| SWHIDPRMT | P & R S Whidbey GEN | 0.2053334452 | $497,286 | $135,786 | $27.88 | | |
| | Total Tax Rate: | 5.7523949618 | | | | | |
| | | | | Taxes w/Current Exemptions: | $781.09 | | |
| | | | | Taxes w/o Exemptions: | $4,116.02 | | |
Improvement / Building
| Improvement #1: | RESIDENTIAL | State Code: | Y | 1747.6 sqft | Value: | $227,286 |
| Bathrooms: | 2 | Bedrooms: | 2 | | Ceiling: | DRYWALL PAINTED | Exterior Wall/Cover: | PLY/HARDBOARD T-111 | | Floor Covering: | CARPET/VINYL 80-20 | Floor Structure: | WOOD W/SUBFLOOR | | Foundation: | CONCRETE | Heating: | BASEBOARD ELECTRIC | | Interior Finish: | DRYWALL PAINT | Plumbing Fixture Cnt: | 9 | | Roof Slope: | 3" IN 12" | Roof Structure/Cover: | CJ ASPHALT |
|
| | Type | Description | Class CD | Sub Class CD | Year Built | Area |
| | BAS | BASE/MAIN FLOOR | 3 | 0 | 1994 | 1195.6 |
| | BIG | BUILT IN GARAGE | 3 | 0 | 1994 | 456.0 |
| | OWP | OPEN WOOD PORCH W/STEPS | 3 | 0 | 1994 | 319.0 |
| | OWP | OPEN WOOD PORCH W/STEPS | 3 | 0 | 1994 | 58.5 |
| | DWN | DOWNSTAIRS LIVING AREA | 3 | 0 | 1994 | 552.0 |
Sketch
Property Image
Land
| 1 | 14 | SQ (08001-12000) | 0.0000 | 0.00 | 0.00 | 0.00 | 1.00 | $270,000 | $0 |
Roll Value History
| 2026 | N/A | N/A | N/A | N/A | N/A |
| 2025 | $227,286 | $270,000 | $0 | $497,286 | $135,786 |
| 2024 | $235,479 | $270,000 | $0 | $505,479 | $135,786 |
| 2023 | $238,652 | $270,000 | $0 | $508,652 | $135,786 |
| 2022 | $218,975 | $210,000 | $0 | $428,975 | $135,786 |
| 2021 | $192,906 | $180,000 | $0 | $372,906 | $135,786 |
| 2020 | $188,283 | $180,000 | $0 | $368,283 | $135,786 |
| 2019 | $139,465 | $200,000 | $0 | $339,465 | $135,786 |
| 2018 | $139,904 | $160,000 | $0 | $299,904 | $299,904 |
| 2017 | $140,785 | $160,000 | $0 | $300,785 | $300,785 |
| 2016 | $142,544 | $80,000 | $0 | $222,544 | $222,544 |
| 2015 | $144,305 | $80,000 | $0 | $224,305 | $224,305 |
| 2014 | $143,029 | $139,500 | $0 | $282,529 | $282,529 |
| 2013 | $144,813 | $139,500 | $0 | $284,313 | $284,313 |
| 2012 | $146,596 | $139,500 | $0 | $286,096 | $286,096 |
| 2011 | $148,379 | $155,000 | $0 | $303,379 | $303,379 |
| 2010 | $155,860 | $155,000 | $0 | $310,860 | $310,860 |
| 2009 | $162,464 | $100,000 | $0 | $262,464 | $262,464 |
| 2008 | $161,818 | $188,500 | $0 | $350,318 | $350,318 |
| 2007 | $163,912 | $188,500 | $0 | $352,412 | $352,412 |
Deed and Sales History
| 1 | 12/01/1993 | WD | Warranty Deed | R, K P | BOYER, WILLIAM E | | | $150,224.00 | 35150 | 93026757 |
| 2 | 07/01/1993 | WD | Warranty Deed | HAWYARD, CHARLES S | R, K P | | | $41,000.00 | 32612 | 93013548 |
| 3 | 12/01/1992 | WD | Warranty Deed | ROGERS, BETSY A | HAWYARD, CHARLES S | | | $33,600.00 | 25086 | 92025160 |
| 4 | 11/01/1991 | WD | Warranty Deed | HALL, BARBARA B | ROGERS, BETSY A | | | $35,000.00 | 14223 | 91018296 |
| 5 | 02/01/1989 | WD | Warranty Deed | LINDAL, EMIL J | HALL, BARBARA B | | | $19,000.00 | 90564 | 89001974 |
| 6 | 02/01/1980 | CD | DNU - Correction Deed | KENNEDY, BRUCE C | LINDAL, EMIL J | | | $0.00 | 595 | 365455 |
| 7 | 06/01/1979 | TRUSTEED | Trustee's Deed | THOMPSON, JAMES J | LINDHOLDT, E J | | | $10,000.00 | 92787 | 353641 |
| 8 | 06/01/1979 | EXECUTORD | Executor Deed | LINDHOLDT, E J | KENNEDY, BRUCE C | | | $13,500.00 | 93146 | 354788 |
| 9 | 12/01/1978 | OTHER | Other - Misc. Documents | Unknown | THOMPSON, JAMES J | | | $17,000.00 | 86299 | 345331 |
Payout Agreement
| No payout information available.. |