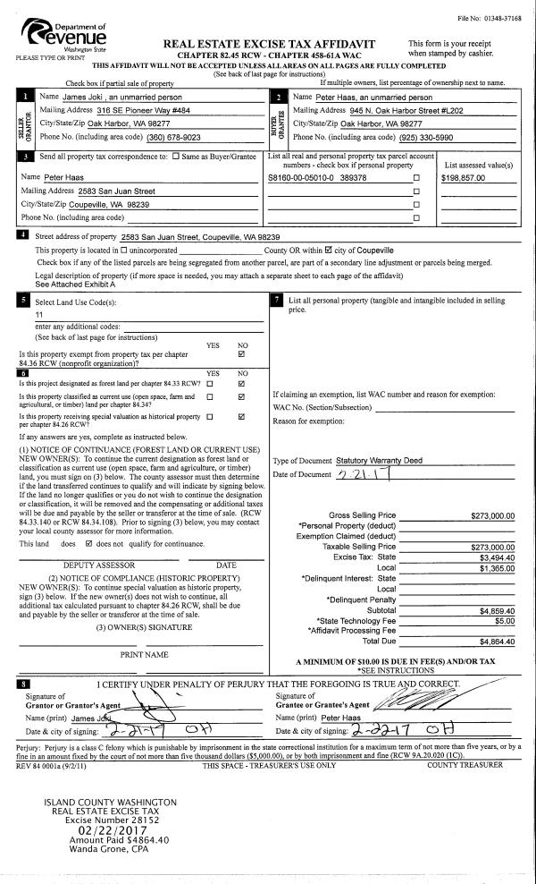
Property
Account |
| Property ID: | 480697 | Abbreviated Legal Description: | W/2 SW NE SE TGW SUB EZ (TR 5 UNREC VISTAIRE ESTS V5 SUR P110 AF#372557) FR 183-4400 |
| Geographic ID: | R32908-160-3900 | Agent Code: | |
| Type: | Real | | |
| Tax Area: | 712 - APPRAISER-S Whid Schl Dist, outside Langley, improved, greater than 1 acre | Land Use Code | 11 |
| Open Space: | N | DFL | N |
| Historic Property: | N | Remodel Property: | N |
| Multi-Family Redevelopment: | N | | |
| Township: | 29 | Section: | 08 |
| Range: | R3 |
Location |
| Address: | 3124 FOREST LN LANGLEY, WA 98260 | Mapsco: | |
| Neighborhood: | Cycle 4 | Map ID: | 747 |
| Neighborhood CD: | 4 |
Owner |
| Name: | SANDFORD JTWROS, MARY K | Owner ID: | 311283 |
| Mailing Address: | EILEEN M JACKSON JTWROS 3124 FOREST LN LANGLEY, WA 98260 | % Ownership: | 100.0000000000% |
| | | Exemptions: | |
Taxes and Assessment Details
Values
| (+) Improvement Homesite Value: | + | $0 | |
| (+) Improvement Non-Homesite Value: | + | $125,508 | |
| (+) Land Homesite Value: | + | $0 | |
| (+) Land Non-Homesite Value: | + | $380,000 | |
| (+) Curr Use (HS): | + | $0 | $0 |
| (+) Curr Use (NHS): | + | $0 | $0 |
| | | -------------------------- | |
| (=) Market Value: | = | $505,508 | |
| (–) Productivity Loss: | – | $0 | |
| | | -------------------------- | |
| (=) Subtotal: | = | $505,508 | |
| (+) Senior Appraised Value: | + | $0 | |
| (+) Non-Senior Appraised Value: | + | $505,508 | |
| | | -------------------------- | |
| (=) Total Appraised Value: | = | $505,508 | |
| (–) Senior Exemption Loss: | – | $0 | |
| (–) Exemption Loss: | – | $0 | |
| | | -------------------------- | |
| (=) Taxable Value: | = | $505,508 | |
Taxing Jurisdiction
| Owner: | SANDFORD JTWROS, MARY K | | |
| % Ownership: | 100.0000000000% | | |
| Total Value: | $505,508 | | |
| Tax Area: | 712 - APPRAISER-S Whid Schl Dist, outside Langley, improved, greater than 1 acre |
| CF | Conservation Futures | 0.0316035091 | $505,508 | $505,508 | $15.98 | | |
| FIRE3 | Fire & Rescue Dist #3 S Whidbey GEN | 1.2004855531 | $505,508 | $505,508 | $606.86 | | |
| HOBOND | Hospital BOND | 0.1910887512 | $505,508 | $505,508 | $96.60 | | |
| HOGEN | Hospital GEN | 0.3902502903 | $505,508 | $505,508 | $197.27 | | |
| CE | County Current Expense | 0.3708482477 | $505,508 | $505,508 | $187.47 | | |
| CR | County Roads | 0.4584763726 | $505,508 | $505,508 | $231.76 | | |
| ISLANDEMS | Hospital GEN (EMS) | 0.5000000000 | $505,508 | $505,508 | $252.75 | | |
| LIB | Library Sno-Isle GEN | 0.3153421757 | $505,508 | $505,508 | $159.41 | | |
| PORTWHID | Port of S Whidbey GEN | 0.1094540357 | $505,508 | $505,508 | $55.33 | | |
| SCH206BOND | School 206 BOND | 0.3161759235 | $505,508 | $505,508 | $159.83 | | |
| SCH206MO | School 206 Enrichment | 0.4547169547 | $505,508 | $505,508 | $229.86 | | |
| ST | State School | 1.3035497053 | $505,508 | $505,508 | $658.95 | | |
| ST2 | State School Part 2 | 0.8169543533 | $505,508 | $505,508 | $412.98 | | |
| SWHIDPRBD | P & R S Whidbey BOND | 0.0152817568 | $505,508 | $505,508 | $7.73 | | |
| SWHIDPRBD2 | P & R S Whidbey BOND2 | 0.0138911264 | $505,508 | $505,508 | $7.02 | | |
| SWHIDPRMT | P & R S Whidbey GEN | 0.2053334452 | $505,508 | $505,508 | $103.80 | | |
| | Total Tax Rate: | 6.6934522006 | | | | | |
| | | | | Taxes w/Current Exemptions: | $3,383.60 | | |
| | | | | Taxes w/o Exemptions: | $3,383.60 | | |
Improvement / Building
| Improvement #1: | MANUFACTURED HOME | State Code: | Y | 1620.0 sqft | Value: | $125,508 |
| Bathrooms: | 0 | Bedrooms: | 0 | | Ceiling: | PLASTER PAINTED | Cooling: | EVAP NO DUCT | | Exterior Wall/Cover: | VINYL | Floor Covering: | CARPET 100% | | Floor Structure: | SLAB ON GRADE | Foundation: | SLAB | | Heating: | FHA ELECTRIC | Interior Finish: | PLASTER | | Plumbing Fixture Cnt: | 1 | Roof Slope: | FLAT | | Roof Structure/Cover: | CJ ALUMINIUM HEAVY |   |   |
|
| | Type | Description | Class CD | Sub Class CD | Year Built | Area |
| | BAS | BASE/MAIN FLOOR | 4 | 0 | 1984 | 1620.0 |
| | DGR | DETACHED GARAGE | 4 | 0 | 1984 | 924.0 |
| | OWP | OPEN WOOD PORCH W/STEPS | 4 | 0 | 1984 | 361.0 |
Sketch
Property Image
Land
| 1 | 32 | AC (03.01-09.99) | 5.0000 | 0.00 | 0.00 | 0.00 | 1.00 | $380,000 | $0 |
Roll Value History
| 2026 | N/A | N/A | N/A | N/A | N/A |
| 2025 | $125,508 | $380,000 | $0 | $505,508 | $505,508 |
| 2024 | $129,383 | $350,000 | $0 | $479,383 | $479,383 |
| 2023 | $115,872 | $330,000 | $0 | $445,872 | $445,872 |
| 2022 | $107,971 | $290,000 | $0 | $397,971 | $397,971 |
| 2021 | $96,546 | $230,000 | $0 | $326,546 | $326,546 |
| 2020 | $90,144 | $190,000 | $0 | $280,144 | $280,144 |
| 2019 | $73,036 | $250,000 | $0 | $323,036 | $323,036 |
| 2018 | $74,050 | $210,000 | $0 | $284,050 | $284,050 |
| 2017 | $76,079 | $190,000 | $0 | $266,079 | $266,079 |
| 2016 | $78,108 | $135,000 | $0 | $213,108 | $213,108 |
| 2015 | $80,137 | $135,000 | $0 | $215,137 | $215,137 |
| 2014 | $95,379 | $125,000 | $0 | $220,379 | $220,379 |
| 2013 | $97,085 | $135,000 | $0 | $232,085 | $232,085 |
| 2012 | $98,791 | $170,000 | $0 | $268,791 | $268,791 |
| 2011 | $100,497 | $170,000 | $0 | $270,497 | $270,497 |
| 2010 | $98,772 | $170,000 | $0 | $268,772 | $268,772 |
| 2009 | $103,298 | $220,000 | $0 | $323,298 | $323,298 |
| 2008 | $106,177 | $215,000 | $0 | $321,177 | $321,177 |
| 2007 | $109,176 | $215,000 | $0 | $324,176 | $324,176 |
Deed and Sales History
| 1 | 01/26/2024 | QCD | Quit Claim Deed | SANDFORD, MARY K | SANDFORD JTWROS, MARY K | | | $0.00 | 59082 | 4568910 |
| 2 | 12/09/2016 | WD | Warranty Deed | SANDFORD, MARY K | SANDFORD, MARY K | | | $0.00 | 28371 | 4418564 |
| 3 | 03/10/2007 | WD | Warranty Deed | KING, FRANK M | SANDFORD, MARY K | | | $279,500.00 | 70912 | 4196907 |
| 4 | 07/13/2004 | WD | Warranty Deed | FALKEN, ERIC & | KING, FRANK M | | | $215,000.00 | 43301 | 4107452 |
| 5 | 07/01/1996 | OTHER | Other - Misc. Documents | BUCKLEY, JANET D | FALKEN, ERIC / | | | $41,496.00 | 62500 | 0 |
| 6 | 07/01/1996 | WD | Warranty Deed | FALKEN, ERIC / | FALKEN, ERIC & | | | $107,504.00 | 62499 | 96012441 |
| 7 | 05/01/1984 | OTHER | Other - Misc. Documents | SCHILTZ, DONNA R | BUCKLEY, JANET D | | | $40,000.00 | 11111111 | 0 |
| 8 | 12/01/1980 | QCD | Quit Claim Deed | BUCKLEY, JANET D | SCHILTZ, DONNA R | | | $0.00 | 4155 | 377507 |
| 9 | 12/01/1980 | TRUSTEED | Trustee's Deed | HUMANN, ROBERT | BUCKLEY, JANET D | | | $30,000.00 | 4156 | 377508 |
| 10 | 08/01/1979 | CD | DNU - Correction Deed | SHILTZ, DONNA R | HUMANN, ROBERT | | | $0.00 | 94207 | 357870 |
| 11 | 06/01/1979 | EZ | Easement | Unknown | SHILTZ, DONNA R | | | $0.00 | 93143 | 354781 |
Payout Agreement
| No payout information available.. |