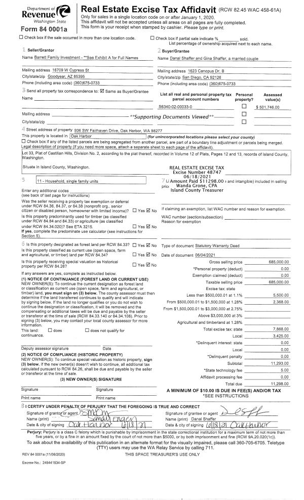
Property
Account |
| Property ID: | 480740 | Abbreviated Legal Description: | W660' S/2 S/2 NE SE FR 140-5100 REL EZ AF#94009054 |
| Geographic ID: | R32918-140-4730 | Agent Code: | |
| Type: | Real | | |
| Tax Area: | 712 - APPRAISER-S Whid Schl Dist, outside Langley, improved, greater than 1 acre | Land Use Code | 83 |
| Open Space: | Y | DFL | N |
| Historic Property: | N | Remodel Property: | N |
| Multi-Family Redevelopment: | N | | |
| Township: | 29 | Section: | 18 |
| Range: | R3 |
Location |
| Address: | | Mapsco: | |
| Neighborhood: | Cycle 4 | Map ID: | 784 |
| Neighborhood CD: | 4 |
Owner |
| Name: | GABELEIN, RICHARD A | Owner ID: | 18173 |
| Mailing Address: | 5900 BAYVIEW RD CLINTON, WA 98236-9101 | % Ownership: | 100.0000000000% |
| | | Exemptions: | |
Taxes and Assessment Details
Values
| (+) Improvement Homesite Value: | + | $0 | |
| (+) Improvement Non-Homesite Value: | + | $14,400 | |
| (+) Land Homesite Value: | + | $0 | |
| (+) Land Non-Homesite Value: | + | $0 | |
| (+) Curr Use (HS): | + | $0 | $0 |
| (+) Curr Use (NHS): | + | $280,000 | $846 |
| | | -------------------------- | |
| (=) Market Value: | = | $294,400 | |
| (–) Productivity Loss: | – | $279,154 | |
| | | -------------------------- | |
| (=) Subtotal: | = | $15,246 | |
| (+) Senior Appraised Value: | + | $0 | |
| (+) Non-Senior Appraised Value: | + | $15,246 | |
| | | -------------------------- | |
| (=) Total Appraised Value: | = | $15,246 | |
| (–) Senior Exemption Loss: | – | $0 | |
| (–) Exemption Loss: | – | $0 | |
| | | -------------------------- | |
| (=) Taxable Value: | = | $15,246 | |
Taxing Jurisdiction
| Owner: | GABELEIN, RICHARD A | | |
| % Ownership: | 100.0000000000% | | |
| Total Value: | $294,400 | | |
| Tax Area: | 712 - APPRAISER-S Whid Schl Dist, outside Langley, improved, greater than 1 acre |
| CF | Conservation Futures | 0.0316035091 | $15,246 | $15,246 | $0.48 | | |
| FIRE3 | Fire & Rescue Dist #3 S Whidbey GEN | 1.2004855531 | $15,246 | $15,246 | $18.30 | | |
| HOBOND | Hospital BOND | 0.1910887512 | $15,246 | $15,246 | $2.91 | | |
| HOGEN | Hospital GEN | 0.3902502903 | $15,246 | $15,246 | $5.95 | | |
| CE | County Current Expense | 0.3708482477 | $15,246 | $15,246 | $5.65 | | |
| CR | County Roads | 0.4584763726 | $15,246 | $15,246 | $6.99 | | |
| ISLANDEMS | Hospital GEN (EMS) | 0.5000000000 | $15,246 | $15,246 | $7.62 | | |
| LIB | Library Sno-Isle GEN | 0.3153421757 | $15,246 | $15,246 | $4.81 | | |
| PORTWHID | Port of S Whidbey GEN | 0.1094540357 | $15,246 | $15,246 | $1.67 | | |
| SCH206BOND | School 206 BOND | 0.3161759235 | $15,246 | $15,246 | $4.82 | | |
| SCH206MO | School 206 Enrichment | 0.4547169547 | $15,246 | $15,246 | $6.93 | | |
| ST | State School | 1.3035497053 | $15,246 | $15,246 | $19.87 | | |
| ST2 | State School Part 2 | 0.8169543533 | $15,246 | $15,246 | $12.46 | | |
| SWHIDPRBD | P & R S Whidbey BOND | 0.0152817568 | $15,246 | $15,246 | $0.23 | | |
| SWHIDPRBD2 | P & R S Whidbey BOND2 | 0.0138911264 | $15,246 | $15,246 | $0.21 | | |
| SWHIDPRMT | P & R S Whidbey GEN | 0.2053334452 | $15,246 | $15,246 | $3.13 | | |
| | Total Tax Rate: | 6.6934522006 | | | | | |
| | | | | Taxes w/Current Exemptions: | $102.03 | | |
| | | | | Taxes w/o Exemptions: | $102.03 | | |
Improvement / Building
| Improvement #1: | RESIDENTIAL | State Code: | Y | 0.0 sqft | Value: | $14,400 |
Sketch
| No sketches available for this property. |
Property Image
Land
| 1 | 32 | AC (03.01-09.99) | 5.0000 | 217800.00 | 0.00 | 0.00 | 1.00 | $280,000 | $846 |
Roll Value History
| 2026 | N/A | N/A | N/A | N/A | N/A |
| 2025 | $14,400 | $280,000 | $846 | $15,246 | $15,246 |
| 2024 | $14,400 | $280,000 | $846 | $15,246 | $15,246 |
| 2023 | $14,400 | $240,000 | $846 | $15,246 | $15,246 |
| 2022 | $14,400 | $230,000 | $846 | $15,246 | $15,246 |
| 2021 | $14,400 | $190,000 | $846 | $15,246 | $15,246 |
| 2020 | $14,400 | $170,000 | $846 | $15,246 | $15,246 |
| 2019 | $14,400 | $170,000 | $846 | $15,246 | $15,246 |
| 2018 | $14,400 | $160,000 | $846 | $15,246 | $15,246 |
| 2017 | $14,400 | $160,000 | $846 | $15,246 | $15,246 |
| 2016 | $14,400 | $130,000 | $846 | $15,246 | $15,246 |
| 2015 | $14,400 | $130,000 | $846 | $15,246 | $15,246 |
| 2014 | $15,645 | $125,000 | $846 | $16,491 | $16,491 |
| 2013 | $15,645 | $100,000 | $846 | $16,491 | $16,491 |
| 2012 | $15,645 | $114,750 | $846 | $16,491 | $16,491 |
| 2011 | $15,645 | $135,000 | $846 | $16,491 | $16,491 |
| 2010 | $16,425 | $135,000 | $846 | $17,271 | $17,271 |
| 2009 | $17,508 | $170,000 | $846 | $18,354 | $18,354 |
| 2008 | $18,341 | $170,000 | $846 | $19,187 | $19,187 |
| 2007 | $19,173 | $148,500 | $846 | $20,019 | $20,019 |
Deed and Sales History
| 1 | 03/01/1979 | EXECUTORD | Executor Deed | GABELEIN, ARTHUR P | GABELEIN, RICHARD A | | | $15,000.00 | 91413 | 349909 |
| 2 | 01/01/1900 | OTHER | Other - Misc. Documents | Unknown | GABELEIN, ARTHUR P | | | $0.00 | 0 | 0 |
Payout Agreement
| No payout information available.. |