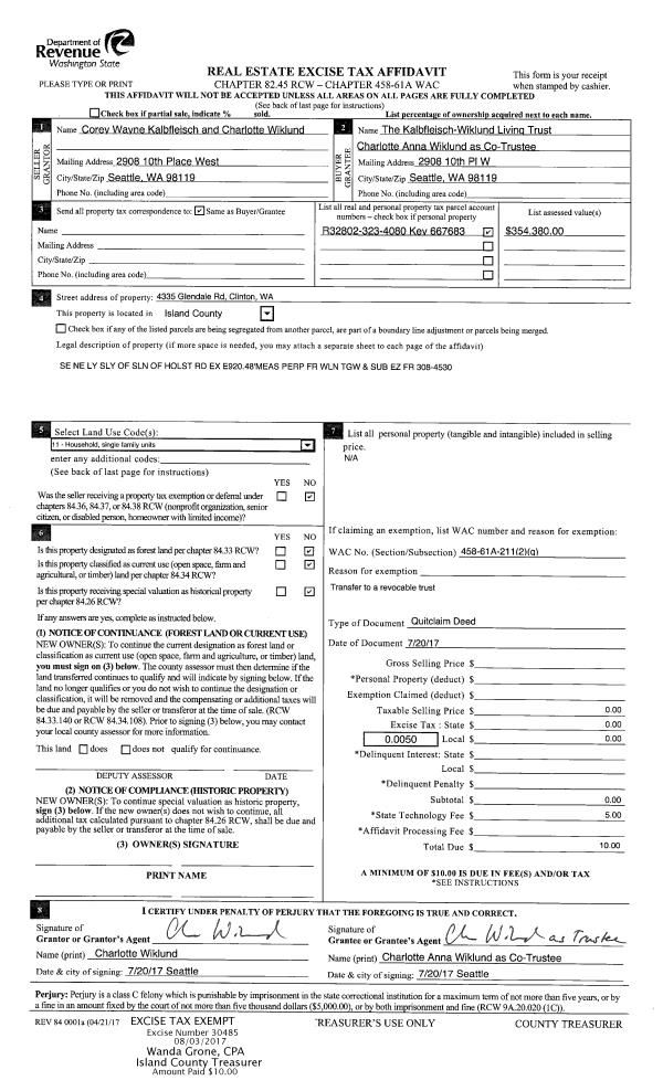
Property
Account |
| Property ID: | 480802 | Abbreviated Legal Description: | 4.5600 Acres ins Section 23s Township 29s Range R3s LOT 1 SP 420-19 AF#4486235;s |
| Geographic ID: | R32923-420-4250 | Agent Code: | |
| Type: | Real | | |
| Tax Area: | 712 - APPRAISER-S Whid Schl Dist, outside Langley, improved, greater than 1 acre | Land Use Code | 11 |
| Open Space: | N | DFL | N |
| Historic Property: | N | Remodel Property: | N |
| Multi-Family Redevelopment: | N | | |
| Township: | 29 | Section: | 23 |
| Range: | R3 |
Location |
| Address: | 5790 BOB GALBREATH RD CLINTON, WA 98236 | Mapsco: | |
| Neighborhood: | Cycle 4 | Map ID: | 806 |
| Neighborhood CD: | 4 |
Owner |
| Name: | GOLDTHORP TRUSTEE, RODNEY CLARK | Owner ID: | 281549 |
| Mailing Address: | 6835 S TWIN CEDARS DR CLINTON, WA 98236 | % Ownership: | 100.0000000000% |
| | | Exemptions: | |
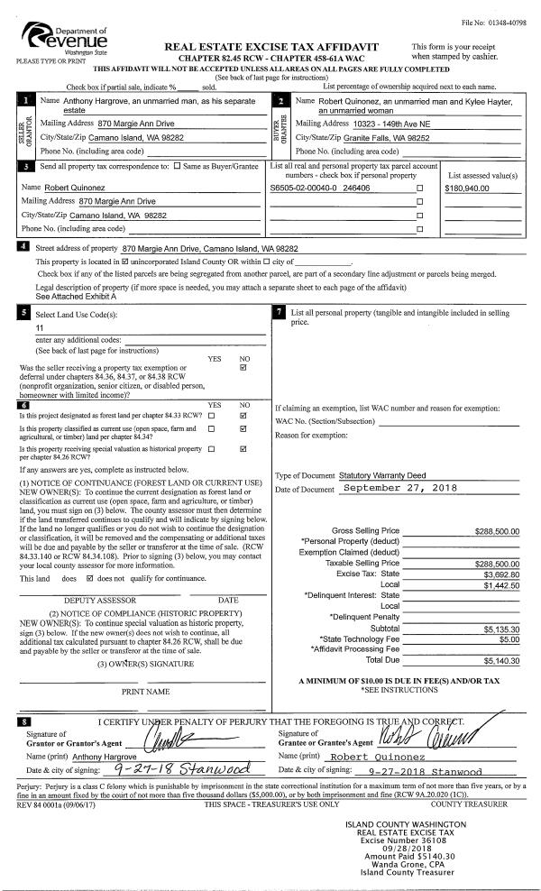
Taxes and Assessment Details
Values
| (+) Improvement Homesite Value: | + | $0 | |
| (+) Improvement Non-Homesite Value: | + | $65,992 | |
| (+) Land Homesite Value: | + | $0 | |
| (+) Land Non-Homesite Value: | + | $370,000 | |
| (+) Curr Use (HS): | + | $0 | $0 |
| (+) Curr Use (NHS): | + | $0 | $0 |
| | | -------------------------- | |
| (=) Market Value: | = | $435,992 | |
| (–) Productivity Loss: | – | $0 | |
| | | -------------------------- | |
| (=) Subtotal: | = | $435,992 | |
| (+) Senior Appraised Value: | + | $0 | |
| (+) Non-Senior Appraised Value: | + | $435,992 | |
| | | -------------------------- | |
| (=) Total Appraised Value: | = | $435,992 | |
| (–) Senior Exemption Loss: | – | $0 | |
| (–) Exemption Loss: | – | $0 | |
| | | -------------------------- | |
| (=) Taxable Value: | = | $435,992 | |
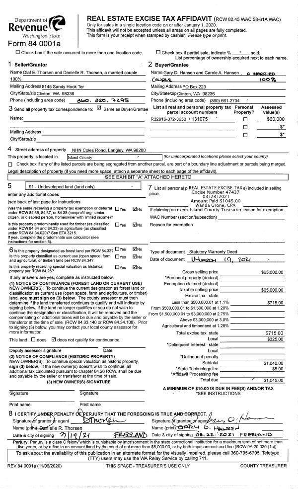
Taxing Jurisdiction
| Owner: | GOLDTHORP TRUSTEE, RODNEY CLARK | | |
| % Ownership: | 100.0000000000% | | |
| Total Value: | $435,992 | | |
| Tax Area: | 712 - APPRAISER-S Whid Schl Dist, outside Langley, improved, greater than 1 acre |
| CF | Conservation Futures | 0.0316035091 | $435,992 | $435,992 | $13.78 | | |
| FIRE3 | Fire & Rescue Dist #3 S Whidbey GEN | 1.2004855531 | $435,992 | $435,992 | $523.40 | | |
| HOBOND | Hospital BOND | 0.1910887512 | $435,992 | $435,992 | $83.31 | | |
| HOGEN | Hospital GEN | 0.3902502903 | $435,992 | $435,992 | $170.15 | | |
| CE | County Current Expense | 0.3708482477 | $435,992 | $435,992 | $161.69 | | |
| CR | County Roads | 0.4584763726 | $435,992 | $435,992 | $199.89 | | |
| ISLANDEMS | Hospital GEN (EMS) | 0.5000000000 | $435,992 | $435,992 | $218.00 | | |
| LIB | Library Sno-Isle GEN | 0.3153421757 | $435,992 | $435,992 | $137.49 | | |
| PORTWHID | Port of S Whidbey GEN | 0.1094540357 | $435,992 | $435,992 | $47.72 | | |
| SCH206BOND | School 206 BOND | 0.3161759235 | $435,992 | $435,992 | $137.85 | | |
| SCH206MO | School 206 Enrichment | 0.4547169547 | $435,992 | $435,992 | $198.25 | | |
| ST | State School | 1.3035497053 | $435,992 | $435,992 | $568.34 | | |
| ST2 | State School Part 2 | 0.8169543533 | $435,992 | $435,992 | $356.19 | | |
| SWHIDPRBD | P & R S Whidbey BOND | 0.0152817568 | $435,992 | $435,992 | $6.66 | | |
| SWHIDPRBD2 | P & R S Whidbey BOND2 | 0.0138911264 | $435,992 | $435,992 | $6.06 | | |
| SWHIDPRMT | P & R S Whidbey GEN | 0.2053334452 | $435,992 | $435,992 | $89.52 | | |
| | Total Tax Rate: | 6.6934522006 | | | | | |
| | | | | Taxes w/Current Exemptions: | $2,918.30 | | |
| | | | | Taxes w/o Exemptions: | $2,918.30 | | |
Improvement / Building
| Improvement #1: | MANUFACTURED HOME | State Code: | Y | 1440.0 sqft | Value: | $65,992 |
| Bathrooms: | 0 | Bedrooms: | 0 | | Ceiling: | PLASTER PAINTED | Cooling: | EVAP NO DUCT | | Exterior Wall/Cover: | VINYL | Floor Covering: | CARPET 100% | | Floor Structure: | SLAB ON GRADE | Foundation: | SLAB | | Heating: | FHA ELECTRIC | Interior Finish: | PLASTER | | Plumbing Fixture Cnt: | 1 | Roof Slope: | FLAT | | Roof Structure/Cover: | CJ ALUMINIUM HEAVY |   |   |
|
| | Type | Description | Class CD | Sub Class CD | Year Built | Area |
| | BAS | BASE/MAIN FLOOR | 4 | 0 | 1981 | 1440.0 |
| | OWP | OPEN WOOD PORCH W/STEPS | 4 | 0 | 1981 | 252.0 |
Sketch
Property Image
Land
| 1 | 32 | AC (03.01-09.99) | 0.0000 | 0.00 | 0.00 | 0.00 | 1.00 | $370,000 | $0 |
Roll Value History
| 2026 | N/A | N/A | N/A | N/A | N/A |
| 2025 | $65,992 | $370,000 | $0 | $435,992 | $435,992 |
| 2024 | $69,135 | $350,000 | $0 | $419,135 | $419,135 |
| 2023 | $62,850 | $330,000 | $0 | $392,850 | $392,850 |
| 2022 | $59,386 | $280,000 | $0 | $339,386 | $339,386 |
| 2021 | $54,872 | $230,000 | $0 | $284,872 | $284,872 |
| 2020 | $32,853 | $190,000 | $0 | $222,853 | $222,853 |
| 2019 | $27,856 | $300,000 | $0 | $327,856 | $327,856 |
| 2018 | $29,266 | $245,000 | $0 | $274,266 | $274,266 |
| 2017 | $30,676 | $200,000 | $0 | $230,676 | $230,676 |
| 2016 | $32,791 | $165,000 | $0 | $197,791 | $197,791 |
| 2015 | $34,201 | $165,000 | $0 | $199,201 | $199,201 |
| 2014 | $36,384 | $155,000 | $0 | $191,384 | $191,384 |
| 2013 | $42,853 | $125,000 | $0 | $167,853 | $167,853 |
| 2012 | $44,263 | $150,000 | $0 | $194,263 | $194,263 |
| 2011 | $45,673 | $150,000 | $0 | $195,673 | $195,673 |
| 2010 | $47,508 | $150,000 | $0 | $197,508 | $197,508 |
| 2009 | $50,355 | $180,000 | $0 | $230,355 | $230,355 |
| 2008 | $44,467 | $203,000 | $0 | $247,467 | $247,467 |
| 2007 | $46,120 | $203,000 | $0 | $249,120 | $249,120 |
Deed and Sales History
| 1 | 05/02/2017 | QCD | Quit Claim Deed | GOLDTHORP, RODNEY C | GOLDTHORP TRUSTEE, RODNEY CLARK | | | $0.00 | 40019 | 4470257 |
| 2 | 12/01/1987 | OTHER | Other - Misc. Documents | GOLDTHORP, RODNEY C | GOLDTHORP, RODNEY C | | | $0.00 | 73883 | 0 |
| 3 | 10/01/1986 | DECREE | Divorce Decree/Legal Separation | GOLDTHORP, RODNEY C | GOLDTHORP, RODNEY C | | | $0.00 | 71347 | 87006614 |
| 4 | 03/01/1985 | OTHER | Other - Misc. Documents | GOLDTHORP, RODNEY C | GOLDTHORP, RODNEY C | | | $20,240.00 | 50545 | 0 |
| 5 | 12/01/1984 | QCD | Quit Claim Deed | INTERWEST, SAVINGS B | GOLDTHORP, RODNEY C | | | $23,760.00 | 50546 | 85002421 |
| 6 | 11/01/1984 | PACD | Purchaser's Assignment | CRUSE, ROBERT D | INTERWEST, SAVINGS B | | | $0.00 | 43373 | 84005840 |
| 7 | 12/01/1980 | OTHER | Other - Misc. Documents | CRUSE, PAMELA | CRUSE, ROBERT D | | | $24,900.00 | 0 | 0 |
| 8 | 11/01/1980 | CD | DNU - Correction Deed | CRUSE, PAMELA | CRUSE, PAMELA | | | $0.00 | 3756 | 376122 |
| 9 | 10/01/1980 | EXECUTORD | Executor Deed | OLMSTEAD, RONALD R | CRUSE, PAMELA | | | $38,000.00 | 3757 | 376123 |
| 10 | 05/01/1979 | CD | DNU - Correction Deed | OLMSTEAD, L W | OLMSTEAD, RONALD R | | | $0.00 | 93115 | 354724 |
| 11 | 04/01/1978 | OTHER | Other - Misc. Documents | Unknown | OLMSTEAD, L W | | | $67,000.00 | 81785 | 3316340 |
Payout Agreement
| No payout information available.. |