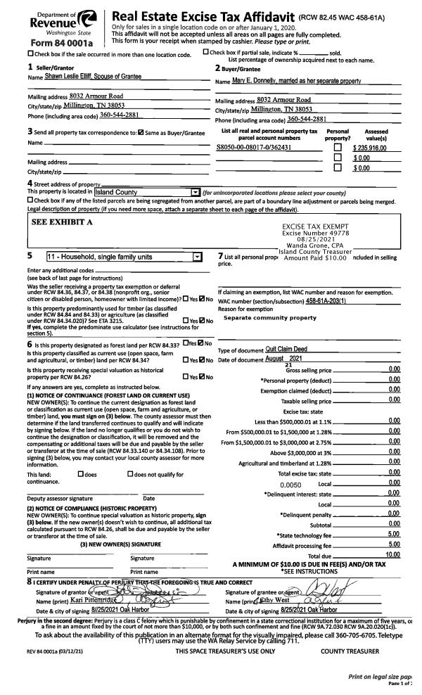
Property
Account |
| Property ID: | 480820 | Abbreviated Legal Description: | S330' OF SW NE SW TGW EZ FR 762-1500 |
| Geographic ID: | R32902-170-2150 | Agent Code: | |
| Type: | Real | | |
| Tax Area: | 712 - APPRAISER-S Whid Schl Dist, outside Langley, improved, greater than 1 acre | Land Use Code | 11 |
| Open Space: | N | DFL | N |
| Historic Property: | N | Remodel Property: | N |
| Multi-Family Redevelopment: | N | | |
| Township: | 29 | Section: | 02 |
| Range: | R3 |
Location |
| Address: | 5082 DEER TRAIL LN LANGLEY, WA 98260 | Mapsco: | |
| Neighborhood: | Cycle 4 | Map ID: | 718 |
| Neighborhood CD: | 4 |
Owner |
| Name: | SOSA, CARLOS | Owner ID: | 295429 |
| Mailing Address: | LINDSEY SOSA 5082 DEER TRAIL LN LANGLEY, WA 98260 | % Ownership: | 100.0000000000% |
| | | Exemptions: | |
Taxes and Assessment Details
Values
| (+) Improvement Homesite Value: | + | $0 | |
| (+) Improvement Non-Homesite Value: | + | $313,002 | |
| (+) Land Homesite Value: | + | $0 | |
| (+) Land Non-Homesite Value: | + | $370,000 | |
| (+) Curr Use (HS): | + | $0 | $0 |
| (+) Curr Use (NHS): | + | $0 | $0 |
| | | -------------------------- | |
| (=) Market Value: | = | $683,002 | |
| (–) Productivity Loss: | – | $0 | |
| | | -------------------------- | |
| (=) Subtotal: | = | $683,002 | |
| (+) Senior Appraised Value: | + | $0 | |
| (+) Non-Senior Appraised Value: | + | $683,002 | |
| | | -------------------------- | |
| (=) Total Appraised Value: | = | $683,002 | |
| (–) Senior Exemption Loss: | – | $0 | |
| (–) Exemption Loss: | – | $0 | |
| | | -------------------------- | |
| (=) Taxable Value: | = | $683,002 | |
Taxing Jurisdiction
| Owner: | SOSA, CARLOS | | |
| % Ownership: | 100.0000000000% | | |
| Total Value: | $683,002 | | |
| Tax Area: | 712 - APPRAISER-S Whid Schl Dist, outside Langley, improved, greater than 1 acre |
| CF | Conservation Futures | 0.0316035091 | $683,002 | $683,002 | $21.59 | | |
| FIRE3 | Fire & Rescue Dist #3 S Whidbey GEN | 1.2004855531 | $683,002 | $683,002 | $819.93 | | |
| HOBOND | Hospital BOND | 0.1910887512 | $683,002 | $683,002 | $130.51 | | |
| HOGEN | Hospital GEN | 0.3902502903 | $683,002 | $683,002 | $266.54 | | |
| CE | County Current Expense | 0.3708482477 | $683,002 | $683,002 | $253.29 | | |
| CR | County Roads | 0.4584763726 | $683,002 | $683,002 | $313.14 | | |
| ISLANDEMS | Hospital GEN (EMS) | 0.5000000000 | $683,002 | $683,002 | $341.50 | | |
| LIB | Library Sno-Isle GEN | 0.3153421757 | $683,002 | $683,002 | $215.38 | | |
| PORTWHID | Port of S Whidbey GEN | 0.1094540357 | $683,002 | $683,002 | $74.76 | | |
| SCH206BOND | School 206 BOND | 0.3161759235 | $683,002 | $683,002 | $215.95 | | |
| SCH206MO | School 206 Enrichment | 0.4547169547 | $683,002 | $683,002 | $310.57 | | |
| ST | State School | 1.3035497053 | $683,002 | $683,002 | $890.33 | | |
| ST2 | State School Part 2 | 0.8169543533 | $683,002 | $683,002 | $557.98 | | |
| SWHIDPRBD | P & R S Whidbey BOND | 0.0152817568 | $683,002 | $683,002 | $10.44 | | |
| SWHIDPRBD2 | P & R S Whidbey BOND2 | 0.0138911264 | $683,002 | $683,002 | $9.49 | | |
| SWHIDPRMT | P & R S Whidbey GEN | 0.2053334452 | $683,002 | $683,002 | $140.24 | | |
| | Total Tax Rate: | 6.6934522006 | | | | | |
| | | | | Taxes w/Current Exemptions: | $4,571.64 | | |
| | | | | Taxes w/o Exemptions: | $4,571.64 | | |
Improvement / Building
| Improvement #1: | RESIDENTIAL | State Code: | Y | 2044.0 sqft | Value: | $313,002 |
| Bathrooms: | 2 | Bedrooms: | 3 | | Ceiling: | DRYWALL PAINTED | Cooling: | HEAT PUMP/CONV/V | | Exterior Wall/Cover: | PLY/HARDBOARD T-111 | Floor Covering: | HARDWOOD/CARP 60-40 | | Floor Structure: | WOOD W/SUBFLOOR | Foundation: | CONCRETE | | Interior Finish: | DRYWALL PAINT | Plumbing Fixture Cnt: | 9 | | Roof Slope: | 4" IN 12" | Roof Structure/Cover: | CJ ASPHALT |
|
| | Type | Description | Class CD | Sub Class CD | Year Built | Area |
| | BAS | BASE/MAIN FLOOR | 3 | 0 | 1980 | 1164.0 |
| | UPS | UPPER STORY | 3 | 0 | 1980 | 880.0 |
| | BAW | BALCONY WOOD RAIL | 3 | 0 | 1980 | 80.0 |
| | OWP | OPEN WOOD PORCH W/STEPS | 3 | 0 | 1980 | 48.0 |
| | OWP | OPEN WOOD PORCH W/STEPS | 3 | 0 | 1980 | 871.7 |
| | OWR | OPEN WOOD PORCH W/STEPS/ROOF | 3 | 0 | 1980 | 128.0 |
| | OWR | OPEN WOOD PORCH W/STEPS/ROOF | 3 | 0 | 1980 | 96.0 |
| | DGR | DETACHED GARAGE | 3 | 0 | 1980 | 840.0 |
Sketch
Property Image
Land
| 1 | 32 | AC (03.01-09.99) | 5.0000 | 0.00 | 0.00 | 0.00 | 1.00 | $370,000 | $0 |
Roll Value History
| 2026 | N/A | N/A | N/A | N/A | N/A |
| 2025 | $313,002 | $370,000 | $0 | $683,002 | $683,002 |
| 2024 | $317,161 | $350,000 | $0 | $667,161 | $667,161 |
| 2023 | $321,320 | $330,000 | $0 | $651,320 | $651,320 |
| 2022 | $283,487 | $280,000 | $0 | $563,487 | $563,487 |
| 2021 | $249,664 | $230,000 | $0 | $479,664 | $479,664 |
| 2020 | $199,348 | $190,000 | $0 | $389,348 | $389,348 |
| 2019 | $151,653 | $250,000 | $0 | $401,653 | $401,653 |
| 2018 | $152,168 | $210,000 | $0 | $362,168 | $362,168 |
| 2017 | $153,204 | $190,000 | $0 | $343,204 | $343,204 |
| 2016 | $155,275 | $165,000 | $0 | $320,275 | $320,275 |
| 2015 | $157,345 | $135,000 | $0 | $292,345 | $292,345 |
| 2014 | $153,234 | $135,000 | $0 | $288,234 | $288,234 |
| 2013 | $155,224 | $135,000 | $0 | $290,224 | $290,224 |
| 2012 | $157,212 | $135,000 | $0 | $292,212 | $292,212 |
| 2011 | $159,202 | $135,000 | $0 | $294,202 | $294,202 |
| 2010 | $168,625 | $135,000 | $0 | $303,625 | $303,625 |
| 2009 | $175,654 | $220,000 | $0 | $395,654 | $395,654 |
| 2008 | $175,147 | $270,000 | $0 | $445,147 | $445,147 |
| 2007 | $177,548 | $270,000 | $0 | $447,548 | $447,548 |
Deed and Sales History
| 1 | 07/16/2020 | WD | Warranty Deed | CALKINS LIVING TRUST | SOSA, CARLOS | | | $552,500.00 | 44043 | 4492695 |
| 2 | 01/01/1991 | QCD | Quit Claim Deed | CALKINS, ALLARD A | CALKINS, LIVING T | | | $0.00 | 10233 | 91001126 |
| 3 | 06/01/1989 | WD | Warranty Deed | MARTIN, DOUGLAS L | CALKINS, ALLARD A | | | $114,950.00 | 92303 | 89007877 |
| 4 | 01/01/1986 | QCD | Quit Claim Deed | MARTIN, D L | MARTIN, DOUGLAS L | | | $0.00 | 63129 | 86015112 |
| 5 | 05/01/1979 | EZ | Easement | BARKER, DAVID L | MARTIN, D L | | | $17,000.00 | 92671 | 353374 |
| 6 | 01/01/1900 | OTHER | Other - Misc. Documents | Unknown | BARKER, DAVID L | | | $0.00 | 0 | 0 |
Payout Agreement
| No payout information available.. |