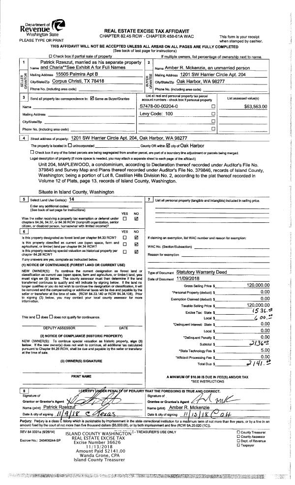
Property
Account |
| Property ID: | 480973 | Abbreviated Legal Description: | LOT D - SP 79-263 E450' IN GL6 LY E CO RD RUNNING NELY & SWLY SD RD: BG SWCR SD GL6 E SECR N355' W858' N156' W383' M/L ML LONE LAKE SLY ALG SD ML TPB EX S30' QUIGLEY RD EX W35' |
| Geographic ID: | R32905-025-2600 | Agent Code: | |
| Type: | Real | | |
| Tax Area: | 712 - APPRAISER-S Whid Schl Dist, outside Langley, improved, greater than 1 acre | Land Use Code | 11 |
| Open Space: | N | DFL | N |
| Historic Property: | N | Remodel Property: | N |
| Multi-Family Redevelopment: | N | | |
| Township: | 29 | Section: | 05 |
| Range: | R3 |
Location |
| Address: | 2989 QUIGLEY RD LANGLEY, WA 98260 | Mapsco: | |
| Neighborhood: | Cycle 4 | Map ID: | 732 |
| Neighborhood CD: | 4 |
Owner |
| Name: | JONES-KUBESKA CO-TTEE, SUSAN L | Owner ID: | 287554 |
| Mailing Address: | DENNIS L KUBESKA CO-TTEE 2989 QUIGLEY RD LANGLEY, WA 98260 | % Ownership: | 100.0000000000% |
| | | Exemptions: | |
Taxes and Assessment Details
Values
| (+) Improvement Homesite Value: | + | $0 | |
| (+) Improvement Non-Homesite Value: | + | $738,731 | |
| (+) Land Homesite Value: | + | $0 | |
| (+) Land Non-Homesite Value: | + | $380,000 | |
| (+) Curr Use (HS): | + | $0 | $0 |
| (+) Curr Use (NHS): | + | $0 | $0 |
| | | -------------------------- | |
| (=) Market Value: | = | $1,118,731 | |
| (–) Productivity Loss: | – | $0 | |
| | | -------------------------- | |
| (=) Subtotal: | = | $1,118,731 | |
| (+) Senior Appraised Value: | + | $0 | |
| (+) Non-Senior Appraised Value: | + | $1,118,731 | |
| | | -------------------------- | |
| (=) Total Appraised Value: | = | $1,118,731 | |
| (–) Senior Exemption Loss: | – | $0 | |
| (–) Exemption Loss: | – | $0 | |
| | | -------------------------- | |
| (=) Taxable Value: | = | $1,118,731 | |
Taxing Jurisdiction
| Owner: | JONES-KUBESKA CO-TTEE, SUSAN L | | |
| % Ownership: | 100.0000000000% | | |
| Total Value: | $1,118,731 | | |
| Tax Area: | 712 - APPRAISER-S Whid Schl Dist, outside Langley, improved, greater than 1 acre |
| CF | Conservation Futures | 0.0316035091 | $1,118,731 | $1,118,731 | $35.36 | | |
| FIRE3 | Fire & Rescue Dist #3 S Whidbey GEN | 1.2004855531 | $1,118,731 | $1,118,731 | $1,343.02 | | |
| HOBOND | Hospital BOND | 0.1910887512 | $1,118,731 | $1,118,731 | $213.78 | | |
| HOGEN | Hospital GEN | 0.3902502903 | $1,118,731 | $1,118,731 | $436.59 | | |
| CE | County Current Expense | 0.3708482477 | $1,118,731 | $1,118,731 | $414.88 | | |
| CR | County Roads | 0.4584763726 | $1,118,731 | $1,118,731 | $512.91 | | |
| ISLANDEMS | Hospital GEN (EMS) | 0.5000000000 | $1,118,731 | $1,118,731 | $559.37 | | |
| LIB | Library Sno-Isle GEN | 0.3153421757 | $1,118,731 | $1,118,731 | $352.78 | | |
| PORTWHID | Port of S Whidbey GEN | 0.1094540357 | $1,118,731 | $1,118,731 | $122.45 | | |
| SCH206BOND | School 206 BOND | 0.3161759235 | $1,118,731 | $1,118,731 | $353.72 | | |
| SCH206MO | School 206 Enrichment | 0.4547169547 | $1,118,731 | $1,118,731 | $508.71 | | |
| ST | State School | 1.3035497053 | $1,118,731 | $1,118,731 | $1,458.32 | | |
| ST2 | State School Part 2 | 0.8169543533 | $1,118,731 | $1,118,731 | $913.95 | | |
| SWHIDPRBD | P & R S Whidbey BOND | 0.0152817568 | $1,118,731 | $1,118,731 | $17.10 | | |
| SWHIDPRBD2 | P & R S Whidbey BOND2 | 0.0138911264 | $1,118,731 | $1,118,731 | $15.54 | | |
| SWHIDPRMT | P & R S Whidbey GEN | 0.2053334452 | $1,118,731 | $1,118,731 | $229.71 | | |
| | Total Tax Rate: | 6.6934522006 | | | | | |
| | | | | Taxes w/Current Exemptions: | $7,488.19 | | |
| | | | | Taxes w/o Exemptions: | $7,488.19 | | |
Improvement / Building
| Improvement #1: | RESIDENTIAL | State Code: | Y | 3650.3 sqft | Value: | $738,731 |
| Bathrooms: | 3.5 | Bedrooms: | 4 | | Ceiling: | DRYWALL PAINTED | Exterior Wall/Cover: | CEMENT FIBER | | Floor Covering: | HARDWOOD/CARP 20-80 | Floor Structure: | WOOD W/SUBFLOOR | | Foundation: | CONCRETE | Heating: | RADIANT FLOOR | | Interior Finish: | DRYWALL PAINT | Plumbing Fixture Cnt: | 19 | | Roof Slope: | 10" IN 12" | Roof Structure/Cover: | BEAM ASPHALT |
|
| | Type | Description | Class CD | Sub Class CD | Year Built | Area |
| | BAS | BASE/MAIN FLOOR | 5 | 0 | 1999 | 1596.9 |
| | BAS | BASE/MAIN FLOOR | 5 | 0 | 1999 | 384.0 |
| | OP2 | OPEN PORCH W/STEPS | 5 | 0 | 1999 | 96.0 |
| | OP2 | OPEN PORCH W/STEPS | 5 | 0 | 1999 | 17.4 |
| | OP4 | OPEN PORCH W/CEILING-ROOF | 5 | 0 | 1999 | 346.0 |
| | OP4 | OPEN PORCH W/CEILING-ROOF | 5 | 0 | 1999 | 16.0 |
| | BIG | BUILT IN GARAGE | 5 | 0 | 1999 | 576.0 |
| | UPS | UPPER STORY | 5 | 0 | 1999 | 1091.0 |
| | UPS | UPPER STORY | 5 | 0 | 1999 | 578.4 |
| | OWP | OPEN WOOD PORCH W/STEPS | 5 | 0 | 1999 | 126.0 |
| | OWP | OPEN WOOD PORCH W/STEPS | 5 | 0 | 1999 | 132.0 |
Sketch
Property Image
Land
| 1 | 32 | AC (03.01-09.99) | 3.7000 | 0.00 | 0.00 | 0.00 | 1.00 | $380,000 | $0 |
Roll Value History
| 2026 | N/A | N/A | N/A | N/A | N/A |
| 2025 | $738,731 | $380,000 | $0 | $1,118,731 | $1,118,731 |
| 2024 | $747,398 | $350,000 | $0 | $1,097,398 | $1,097,398 |
| 2023 | $756,063 | $330,000 | $0 | $1,086,063 | $1,086,063 |
| 2022 | $692,466 | $290,000 | $0 | $982,466 | $982,466 |
| 2021 | $608,991 | $230,000 | $0 | $838,991 | $838,991 |
| 2020 | $553,543 | $190,000 | $0 | $743,543 | $743,543 |
| 2019 | $471,784 | $250,000 | $0 | $721,784 | $721,784 |
| 2018 | $473,171 | $210,000 | $0 | $683,171 | $683,171 |
| 2017 | $475,827 | $190,000 | $0 | $665,827 | $665,827 |
| 2016 | $481,359 | $135,000 | $0 | $616,359 | $616,359 |
| 2015 | $486,892 | $135,000 | $0 | $621,892 | $621,892 |
| 2014 | $493,580 | $108,500 | $0 | $602,080 | $602,080 |
| 2013 | $499,347 | $136,900 | $0 | $636,247 | $636,247 |
| 2012 | $505,114 | $136,900 | $0 | $642,014 | $642,014 |
| 2011 | $510,880 | $136,900 | $0 | $647,780 | $647,780 |
| 2010 | $521,998 | $136,900 | $0 | $658,898 | $658,898 |
| 2009 | $544,657 | $185,000 | $0 | $729,657 | $729,657 |
| 2008 | $548,171 | $182,724 | $0 | $730,894 | $730,894 |
| 2007 | $555,049 | $186,480 | $0 | $741,529 | $741,529 |
Deed and Sales History
| 1 | 10/16/2018 | QCD | Quit Claim Deed | KUBESKA, DENNIS L | JONES-KUBESKA CO-TTEE, SUSAN L | | | $0.00 | 36345 | 4453661 |
| 2 | 09/11/2008 | BLA | DNU - Boundary Line Adjustment | LOGELIN, DAVID C | LOGELIN, DAVID C | | | $0.00 | 80920 | 4141265 |
| 3 | 04/06/2006 | WD | Warranty Deed | LOGELIN, DAVID C | KUBESKA, DENNIS L | | | $735,000.00 | 61556 | 4167200 |
| 4 | 07/25/2005 | ESTSEPPROP | Establish Separate Property | LOGELIN, DAVID C | LOGELIN, DAVID C | | | $0.00 | 53549 | 4141767 |
| 5 | 04/02/2002 | WD | Warranty Deed | LOGELIN, DAVID C | LOGELIN, DAVID C | | | $14,000.00 | 21361 | 4016794 |
| 6 | 05/23/1998 | WD | Warranty Deed | LOGELIN, DAVID C | LOGELIN, DAVID C | | | $52,500.00 | 82185 | 98011328 |
| 7 | 03/01/1988 | OTHER | Other - Misc. Documents | YOUNKINS, WANDA F | PHILLIPS, WANDA F | | | $0.00 | 62550 | 0 |
| 8 | 05/01/1985 | QCD | Quit Claim Deed | BELTZ, GEORGE E | YOUNKINS, WANDA F | | | $0.00 | 51169 | 85004715 |
| 9 | 12/01/1984 | QCD | Quit Claim Deed | BELTZ, GEORGE E | BELTZ, GEORGE E | | | $0.00 | 43688 | 84007068 |
| 10 | 12/01/1983 | WD | Warranty Deed | FORD, W D | BELTZ, GEORGE E | | | $35,000.00 | 33795 | 419378 |
| 11 | 09/01/1980 | EXECUTORD | Executor Deed | HATCH, RICHARD N | FORD, W D | | | $70,000.00 | 3103 | 373822 |
| 12 | 10/01/1979 | EXECUTORD | Executor Deed | HOECK, PRESCOTT R | HATCH, RICHARD N | | | $30,000.00 | 95299 | 361170 |
| 13 | 01/01/1900 | OTHER | Other - Misc. Documents | Unknown | HOECK, PRESCOTT R | | | $0.00 | 0 | 0 |
| 14 | 01/01/1900 | OTHER | Other - Misc. Documents | PHILLIPS, WANDA F | LOGELIN, DAVID C | | | $0.00 | 82185 | 98011328 |
Payout Agreement
| No payout information available.. |