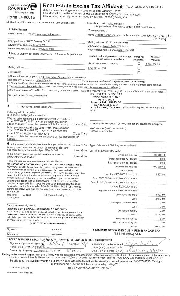
Property
Account |
| Property ID: | 48111 | Abbreviated Legal Description: | 27 - IN SE NE: BG NECR SE NE S298' W30' TPB W477.5' N119' E477.5' S119' TPB TGW 1/4 INT IN WELL & PRIV RD TGW EZ AF#86001003 |
| Geographic ID: | R22906-373-5000 | Agent Code: | |
| Type: | Real | | |
| Tax Area: | 782 - APPRAISER-S Whid Schl Dist, Special District, improved, greater than 1 acre | Land Use Code | 11 |
| Open Space: | N | DFL | N |
| Historic Property: | N | Remodel Property: | N |
| Multi-Family Redevelopment: | N | | |
| Township: | 29 | Section: | 06 |
| Range: | R2 |
Location |
| Address: | 4922 SMUGGLERS COVE RD FREELAND, WA 98249 | Mapsco: | |
| Neighborhood: | Cycle 3 | Map ID: | 300 |
| Neighborhood CD: | 3 |
Owner |
| Name: | BERGQUIST, DONALD W | Owner ID: | 13397 |
| Mailing Address: | CAROL BERGQUIST COTRUSTEES 4922 SMUGGLERS COVE RD FREELAND, WA 98249-9752 | % Ownership: | 100.0000000000% |
| | | Exemptions: | |
Taxes and Assessment Details
Values
| (+) Improvement Homesite Value: | + | $0 | |
| (+) Improvement Non-Homesite Value: | + | $334,603 | |
| (+) Land Homesite Value: | + | $0 | |
| (+) Land Non-Homesite Value: | + | $420,000 | |
| (+) Curr Use (HS): | + | $0 | $0 |
| (+) Curr Use (NHS): | + | $0 | $0 |
| | | -------------------------- | |
| (=) Market Value: | = | $754,603 | |
| (–) Productivity Loss: | – | $0 | |
| | | -------------------------- | |
| (=) Subtotal: | = | $754,603 | |
| (+) Senior Appraised Value: | + | $0 | |
| (+) Non-Senior Appraised Value: | + | $754,603 | |
| | | -------------------------- | |
| (=) Total Appraised Value: | = | $754,603 | |
| (–) Senior Exemption Loss: | – | $0 | |
| (–) Exemption Loss: | – | $0 | |
| | | -------------------------- | |
| (=) Taxable Value: | = | $754,603 | |
Taxing Jurisdiction
| Owner: | BERGQUIST, DONALD W | | |
| % Ownership: | 100.0000000000% | | |
| Total Value: | $754,603 | | |
| Tax Area: | 782 - APPRAISER-S Whid Schl Dist, Special District, improved, greater than 1 acre |
| CF | Conservation Futures | 0.0316035091 | $754,603 | $754,603 | $23.85 | | |
| FIRE3 | Fire & Rescue Dist #3 S Whidbey GEN | 1.2004855531 | $754,603 | $754,603 | $905.89 | | |
| HOBOND | Hospital BOND | 0.1910887512 | $754,603 | $754,603 | $144.20 | | |
| HOGEN | Hospital GEN | 0.3902502903 | $754,603 | $754,603 | $294.48 | | |
| CE | County Current Expense | 0.3708482477 | $754,603 | $754,603 | $279.84 | | |
| CR | County Roads | 0.4584763726 | $754,603 | $754,603 | $345.97 | | |
| ISLANDEMS | Hospital GEN (EMS) | 0.5000000000 | $754,603 | $754,603 | $377.30 | | |
| LIB | Library Sno-Isle GEN | 0.3153421757 | $754,603 | $754,603 | $237.96 | | |
| PORTWHID | Port of S Whidbey GEN | 0.1094540357 | $754,603 | $754,603 | $82.59 | | |
| SCH206BOND | School 206 BOND | 0.3161759235 | $754,603 | $754,603 | $238.59 | | |
| SCH206MO | School 206 Enrichment | 0.4547169547 | $754,603 | $754,603 | $343.13 | | |
| ST | State School | 1.3035497053 | $754,603 | $754,603 | $983.66 | | |
| ST2 | State School Part 2 | 0.8169543533 | $754,603 | $754,603 | $616.48 | | |
| SWHIDPRBD | P & R S Whidbey BOND | 0.0152817568 | $754,603 | $754,603 | $11.53 | | |
| SWHIDPRBD2 | P & R S Whidbey BOND2 | 0.0138911264 | $754,603 | $754,603 | $10.48 | | |
| SWHIDPRMT | P & R S Whidbey GEN | 0.2053334452 | $754,603 | $754,603 | $154.95 | | |
| | Total Tax Rate: | 6.6934522006 | | | | | |
| | | | | Taxes w/Current Exemptions: | $5,050.90 | | |
| | | | | Taxes w/o Exemptions: | $5,050.90 | | |
Improvement / Building
| Improvement #1: | RESIDENTIAL | State Code: | Y | 2640.0 sqft | Value: | $334,603 |
| Bathrooms: | 3 | Bedrooms: | 3 | | Ceiling: | TONGUE & GROOVE | Exterior Wall/Cover: | WOOD SIDING | | Floor Covering: | CARPET/VINYL 60-40 | Floor Structure: | WOOD W/SUBFLOOR | | Foundation: | CONCRETE | Heating: | FHA ELECTRIC | | Interior Finish: | DRYWALL PAINT | Plumbing Fixture Cnt: | 11 | | Roof Slope: | 4" IN 12" | Roof Structure/Cover: | CJ ALUMINIUM HEAVY |
|
| | Type | Description | Class CD | Sub Class CD | Year Built | Area |
| | BAS | BASE/MAIN FLOOR | 3 | 0 | 1979 | 1320.0 |
| | DWN | DOWNSTAIRS LIVING AREA | 3 | 0 | 1979 | 1320.0 |
| | OCP | OPEN CARPORT | 3 | 0 | 1979 | 800.0 |
| | OWP | OPEN WOOD PORCH W/STEPS | 3 | 0 | 1979 | 36.0 |
| | OWP | OPEN WOOD PORCH W/STEPS | 3 | 0 | 1979 | 112.0 |
| | ENP | ENCLOSED PORCH | 3 | 0 | 1979 | 240.0 |
| | DGR | DETACHED GARAGE | 3 | 0 | 1979 | 720.0 |
Sketch
Property Image
Land
| 1 | 17 | AC (01.01-02.00) | 0.0000 | 0.00 | 0.00 | 0.00 | 1.00 | $420,000 | $0 |
Roll Value History
| 2026 | N/A | N/A | N/A | N/A | N/A |
| 2025 | $334,603 | $420,000 | $0 | $754,603 | $754,603 |
| 2024 | $339,436 | $400,000 | $0 | $739,436 | $739,436 |
| 2023 | $344,267 | $380,000 | $0 | $724,267 | $724,267 |
| 2022 | $316,108 | $360,000 | $0 | $676,108 | $676,108 |
| 2021 | $265,145 | $310,000 | $0 | $575,145 | $575,145 |
| 2020 | $259,458 | $280,000 | $0 | $539,458 | $539,458 |
| 2019 | $196,166 | $260,000 | $0 | $456,166 | $456,166 |
| 2018 | $196,820 | $250,000 | $0 | $446,820 | $446,820 |
| 2017 | $198,131 | $250,000 | $0 | $448,131 | $448,131 |
| 2016 | $200,753 | $235,000 | $0 | $435,753 | $435,753 |
| 2015 | $203,375 | $235,000 | $0 | $438,375 | $438,375 |
| 2014 | $205,999 | $120,000 | $0 | $325,999 | $325,999 |
| 2013 | $181,566 | $144,500 | $0 | $326,066 | $326,066 |
| 2012 | $183,976 | $144,500 | $0 | $328,476 | $328,476 |
| 2011 | $186,387 | $170,000 | $0 | $356,387 | $356,387 |
| 2010 | $202,682 | $170,000 | $0 | $372,682 | $372,682 |
| 2009 | $211,625 | $175,000 | $0 | $386,625 | $386,625 |
| 2008 | $215,250 | $130,000 | $0 | $345,250 | $345,250 |
| 2007 | $211,182 | $130,000 | $0 | $341,182 | $341,182 |
Deed and Sales History
| 1 | 10/01/1990 | QCD | Quit Claim Deed | BERGQUIST, DONALD W | BERGQUIST, DONALD W | | | $0.00 | 6439 | 90022352 |
| 2 | 04/01/1984 | QCD | Quit Claim Deed | BERGQUIST, DONALD W | BERGQUIST, DONALD W | | | $0.00 | 41375 | 424690 |
| 3 | 11/01/1978 | OTHER | Other - Misc. Documents | Unknown | BERGQUIST, DONALD W | | | $22,000.00 | 85729 | 343485 |
Payout Agreement
| No payout information available.. |