Property
Account |
| Property ID: | 481259 | Abbreviated Legal Description: | N/2 NE NE NE FR 442-4620 |
| Geographic ID: | R32917-490-4950 | Agent Code: | |
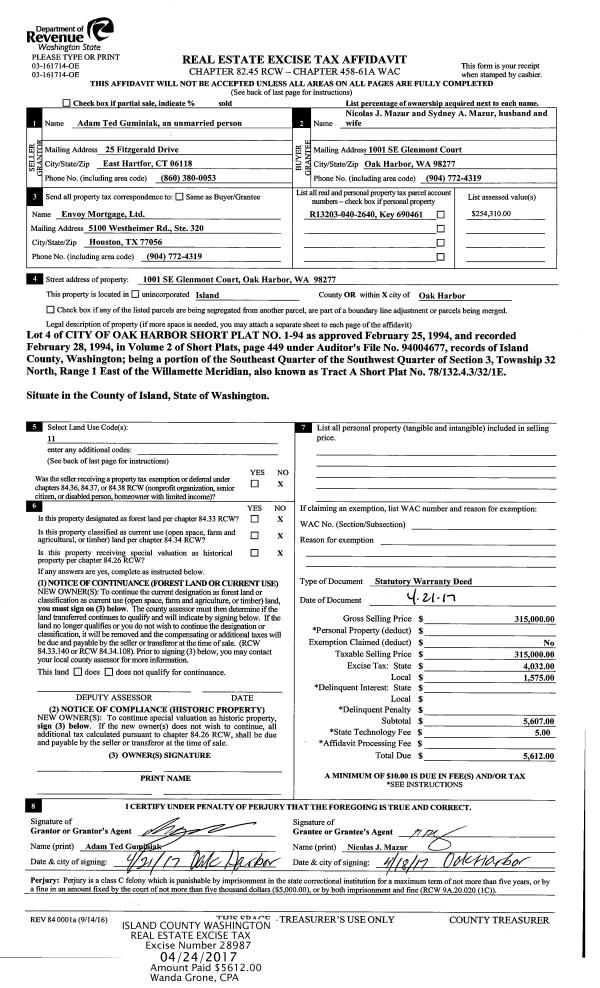
| Type: | Real | | |
| Tax Area: | 712 - APPRAISER-S Whid Schl Dist, outside Langley, improved, greater than 1 acre | Land Use Code | 11 |
| Open Space: | N | DFL | N |
| Historic Property: | N | Remodel Property: | N |
| Multi-Family Redevelopment: | N | | |
| Township: | 29 | Section: | 17 |
| Range: | R3 |
Location |
| Address: | 5615 CRAWFORD RD LANGLEY, WA 98260 | Mapsco: | |
| Neighborhood: | Cycle 4 | Map ID: | 781 |
| Neighborhood CD: | 4 |
Owner |
| Name: | HOFFELT HOMES WHIDBEY, LLC | Owner ID: | 314549 |
| Mailing Address: | 1717 STUART ST WALLA WALLA, WA 99362 | % Ownership: | 100.0000000000% |
| | | Exemptions: | |
Taxes and Assessment Details
Values
| (+) Improvement Homesite Value: | + | $0 | |
| (+) Improvement Non-Homesite Value: | + | $705,661 | |
| (+) Land Homesite Value: | + | $0 | |
| (+) Land Non-Homesite Value: | + | $380,000 | |
| (+) Curr Use (HS): | + | $0 | $0 |
| (+) Curr Use (NHS): | + | $0 | $0 |
| | | -------------------------- | |
| (=) Market Value: | = | $1,085,661 | |
| (–) Productivity Loss: | – | $0 | |
| | | -------------------------- | |
| (=) Subtotal: | = | $1,085,661 | |
| (+) Senior Appraised Value: | + | $0 | |
| (+) Non-Senior Appraised Value: | + | $1,085,661 | |
| | | -------------------------- | |
| (=) Total Appraised Value: | = | $1,085,661 | |
| (–) Senior Exemption Loss: | – | $0 | |
| (–) Exemption Loss: | – | $0 | |
| | | -------------------------- | |
| (=) Taxable Value: | = | $1,085,661 | |
Taxing Jurisdiction
| Owner: | HOFFELT HOMES WHIDBEY, LLC | | |
| % Ownership: | 100.0000000000% | | |
| Total Value: | $1,085,661 | | |
| Tax Area: | 712 - APPRAISER-S Whid Schl Dist, outside Langley, improved, greater than 1 acre |
| CF | Conservation Futures | 0.0316035091 | $1,085,661 | $1,085,661 | $34.31 | | |
| FIRE3 | Fire & Rescue Dist #3 S Whidbey GEN | 1.2004855531 | $1,085,661 | $1,085,661 | $1,303.32 | | |
| HOBOND | Hospital BOND | 0.1910887512 | $1,085,661 | $1,085,661 | $207.46 | | |
| HOGEN | Hospital GEN | 0.3902502903 | $1,085,661 | $1,085,661 | $423.68 | | |
| CE | County Current Expense | 0.3708482477 | $1,085,661 | $1,085,661 | $402.62 | | |
| CR | County Roads | 0.4584763726 | $1,085,661 | $1,085,661 | $497.75 | | |
| ISLANDEMS | Hospital GEN (EMS) | 0.5000000000 | $1,085,661 | $1,085,661 | $542.83 | | |
| LIB | Library Sno-Isle GEN | 0.3153421757 | $1,085,661 | $1,085,661 | $342.35 | | |
| PORTWHID | Port of S Whidbey GEN | 0.1094540357 | $1,085,661 | $1,085,661 | $118.83 | | |
| SCH206BOND | School 206 BOND | 0.3161759235 | $1,085,661 | $1,085,661 | $343.26 | | |
| SCH206MO | School 206 Enrichment | 0.4547169547 | $1,085,661 | $1,085,661 | $493.67 | | |
| ST | State School | 1.3035497053 | $1,085,661 | $1,085,661 | $1,415.21 | | |
| ST2 | State School Part 2 | 0.8169543533 | $1,085,661 | $1,085,661 | $886.94 | | |
| SWHIDPRBD | P & R S Whidbey BOND | 0.0152817568 | $1,085,661 | $1,085,661 | $16.59 | | |
| SWHIDPRBD2 | P & R S Whidbey BOND2 | 0.0138911264 | $1,085,661 | $1,085,661 | $15.08 | | |
| SWHIDPRMT | P & R S Whidbey GEN | 0.2053334452 | $1,085,661 | $1,085,661 | $222.92 | | |
| | Total Tax Rate: | 6.6934522006 | | | | | |
| | | | | Taxes w/Current Exemptions: | $7,266.82 | | |
| | | | | Taxes w/o Exemptions: | $7,266.82 | | |
Improvement / Building
| Improvement #1: | RESIDENTIAL | State Code: | Y | 3723.4 sqft | Value: | $705,661 |
| Bathrooms: | 2.5 | Bedrooms: | 3 | | Ceiling: | DRYWALL PAINTED | Cooling: | HEAT PUMP/CONV/V | | Exterior Wall/Cover: | CEMENT FIBER | Floor Covering: | HARDWOOD/CARP 20-80 | | Floor Structure: | WOOD W/SUBFLOOR | Foundation: | CONCRETE | | Interior Finish: | DRYWALL PAINT | Plumbing Fixture Cnt: | 12 | | Roof Slope: | 5" IN 12" | Roof Structure/Cover: | CJ ALUMINIUM HEAVY |
|
| | Type | Description | Class CD | Sub Class CD | Year Built | Area |
| | BAS | BASE/MAIN FLOOR | 4 | 0 | 2019 | 1865.2 |
| | UPS | UPPER STORY | 4 | 0 | 2019 | 1858.2 |
| | AGR | ATTACHED GARAGE | 4 | 0 | 2019 | 780.0 |
| | OWP | OPEN WOOD PORCH W/STEPS | 4 | 0 | 2019 | 384.8 |
| | OWC | OPEN WOOD PORCH W/STEPS/ROOF/C | 4 | 0 | 2019 | 44.0 |
| | OWC | OPEN WOOD PORCH W/STEPS/ROOF/C | 4 | 0 | 2019 | 192.0 |
| | OWC | OPEN WOOD PORCH W/STEPS/ROOF/C | 4 | 0 | 2019 | 413.0 |
Sketch
Property Image
Land
| 1 | 32 | AC (03.01-09.99) | 4.6600 | 0.00 | 0.00 | 0.00 | 1.00 | $380,000 | $0 |
Roll Value History
| 2026 | N/A | N/A | N/A | N/A | N/A |
| 2025 | $705,661 | $380,000 | $0 | $1,085,661 | $1,085,661 |
| 2024 | $711,352 | $350,000 | $0 | $1,061,352 | $1,061,352 |
| 2023 | $717,042 | $330,000 | $0 | $1,047,042 | $1,047,042 |
| 2022 | $654,412 | $290,000 | $0 | $944,412 | $944,412 |
| 2021 | $576,877 | $230,000 | $0 | $806,877 | $806,877 |
| 2020 | $567,501 | $190,000 | $0 | $757,501 | $757,501 |
| 2019 | $222,767 | $135,000 | $0 | $357,767 | $357,767 |
| 2018 | $0 | $130,000 | $0 | $130,000 | $130,000 |
| 2017 | $0 | $130,000 | $0 | $130,000 | $130,000 |
| 2016 | $0 | $120,000 | $0 | $120,000 | $120,000 |
| 2015 | $0 | $100,000 | $0 | $100,000 | $100,000 |
| 2014 | $0 | $93,200 | $0 | $93,200 | $93,200 |
| 2013 | $0 | $93,200 | $0 | $93,200 | $93,200 |
| 2012 | $0 | $93,200 | $0 | $93,200 | $93,200 |
| 2011 | $0 | $110,820 | $0 | $110,820 | $110,820 |
| 2010 | $0 | $110,820 | $0 | $110,820 | $110,820 |
| 2009 | $0 | $143,440 | $0 | $143,440 | $143,440 |
| 2008 | $0 | $143,440 | $0 | $143,440 | $143,440 |
| 2007 | $0 | $128,402 | $0 | $128,402 | $128,402 |
Deed and Sales History
| 1 | 11/01/2024 | QCD | Quit Claim Deed | SLOVENSKY, WILLIAM | HOFFELT HOMES WHIDBEY, LLC | | | $0.00 | 61825 | 4579347 |
| 2 | 03/02/2017 | WD | Warranty Deed | LEDBETTER, PETER | SLOVENSKY, WILLIAM | | | $125,000.00 | 28502 | 4419131 |
| 3 | 04/02/2014 | WD | Warranty Deed | KOWALSKI, EDWARD J | LEDBETTER, PETER | | | $80,000.00 | 14828 | 4357586 |
| 4 | 03/01/1994 | WD | Warranty Deed | HALLMARK, RONALD & | KOWALSKI, EDWARD J | | | $46,500.00 | 41271 | 94007916 |
| 5 | 03/01/1994 | QCD | Quit Claim Deed | HALLMARK, RONALD | HALLMARK, RONALD & | | | $0.00 | 41270 | 94007917 |
| 6 | 08/01/1979 | EXECUTORD | Executor Deed | Unknown | HALLMARK, RONALD | | | $88,000.00 | 94119 | 357654 |
Payout Agreement
| No payout information available.. |