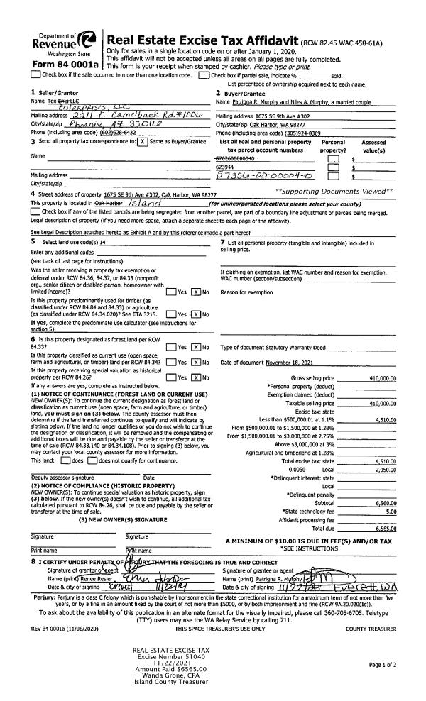
Property
Account |
| Property ID: | 481277 | Abbreviated Legal Description: | N/2 NW NE NE TGW SUB EZ FR 4424620 |
| Geographic ID: | R32917-490-4300 | Agent Code: | |
| Type: | Real | | |
| Tax Area: | 712 - APPRAISER-S Whid Schl Dist, outside Langley, improved, greater than 1 acre | Land Use Code | 11 |
| Open Space: | N | DFL | N |
| Historic Property: | N | Remodel Property: | N |
| Multi-Family Redevelopment: | N | | |
| Township: | 29 | Section: | 17 |
| Range: | R3 |
Location |
| Address: | 5624 CRAWFORD RD LANGLEY, WA 98260 | Mapsco: | |
| Neighborhood: | Cycle 4 | Map ID: | 781 |
| Neighborhood CD: | 4 |
Owner |
| Name: | KISCH, GEZA THEODORE | Owner ID: | 292049 |
| Mailing Address: | PETEK SARACOGLU 16922 427TH AVE SE GOLD BAR, WA 98251 | % Ownership: | 100.0000000000% |
| | | Exemptions: | |
Taxes and Assessment Details
Values
| (+) Improvement Homesite Value: | + | $0 | |
| (+) Improvement Non-Homesite Value: | + | $475,123 | |
| (+) Land Homesite Value: | + | $0 | |
| (+) Land Non-Homesite Value: | + | $380,000 | |
| (+) Curr Use (HS): | + | $0 | $0 |
| (+) Curr Use (NHS): | + | $0 | $0 |
| | | -------------------------- | |
| (=) Market Value: | = | $855,123 | |
| (–) Productivity Loss: | – | $0 | |
| | | -------------------------- | |
| (=) Subtotal: | = | $855,123 | |
| (+) Senior Appraised Value: | + | $0 | |
| (+) Non-Senior Appraised Value: | + | $855,123 | |
| | | -------------------------- | |
| (=) Total Appraised Value: | = | $855,123 | |
| (–) Senior Exemption Loss: | – | $0 | |
| (–) Exemption Loss: | – | $0 | |
| | | -------------------------- | |
| (=) Taxable Value: | = | $855,123 | |
Taxing Jurisdiction
| Owner: | KISCH, GEZA THEODORE | | |
| % Ownership: | 100.0000000000% | | |
| Total Value: | $855,123 | | |
| Tax Area: | 712 - APPRAISER-S Whid Schl Dist, outside Langley, improved, greater than 1 acre |
| CF | Conservation Futures | 0.0316035091 | $855,123 | $855,123 | $27.02 | | |
| FIRE3 | Fire & Rescue Dist #3 S Whidbey GEN | 1.2004855531 | $855,123 | $855,123 | $1,026.56 | | |
| HOBOND | Hospital BOND | 0.1910887512 | $855,123 | $855,123 | $163.40 | | |
| HOGEN | Hospital GEN | 0.3902502903 | $855,123 | $855,123 | $333.71 | | |
| CE | County Current Expense | 0.3708482477 | $855,123 | $855,123 | $317.12 | | |
| CR | County Roads | 0.4584763726 | $855,123 | $855,123 | $392.05 | | |
| ISLANDEMS | Hospital GEN (EMS) | 0.5000000000 | $855,123 | $855,123 | $427.56 | | |
| LIB | Library Sno-Isle GEN | 0.3153421757 | $855,123 | $855,123 | $269.66 | | |
| PORTWHID | Port of S Whidbey GEN | 0.1094540357 | $855,123 | $855,123 | $93.60 | | |
| SCH206BOND | School 206 BOND | 0.3161759235 | $855,123 | $855,123 | $270.37 | | |
| SCH206MO | School 206 Enrichment | 0.4547169547 | $855,123 | $855,123 | $388.84 | | |
| ST | State School | 1.3035497053 | $855,123 | $855,123 | $1,114.70 | | |
| ST2 | State School Part 2 | 0.8169543533 | $855,123 | $855,123 | $698.60 | | |
| SWHIDPRBD | P & R S Whidbey BOND | 0.0152817568 | $855,123 | $855,123 | $13.07 | | |
| SWHIDPRBD2 | P & R S Whidbey BOND2 | 0.0138911264 | $855,123 | $855,123 | $11.88 | | |
| SWHIDPRMT | P & R S Whidbey GEN | 0.2053334452 | $855,123 | $855,123 | $175.59 | | |
| | Total Tax Rate: | 6.6934522006 | | | | | |
| | | | | Taxes w/Current Exemptions: | $5,723.73 | | |
| | | | | Taxes w/o Exemptions: | $5,723.73 | | |
Improvement / Building
| Improvement #1: | RESIDENTIAL | State Code: | Y | 2779.3 sqft | Value: | $475,123 |
| Bathrooms: | 3 | Bedrooms: | 3 | | Ceiling: | DRYWALL PAINTED | Exterior Wall/Cover: | WOOD SIDING | | Floor Covering: | CERAMIC TILE/CPT 40-60 | Floor Structure: | WOOD W/SUBFLOOR | | Foundation: | CONCRETE | Heating: | RADIANT FLOOR | | Interior Finish: | DRYWALL PAINT | Plumbing Fixture Cnt: | 16 | | Roof Slope: | 8" IN 12" | Roof Structure/Cover: | BEAM ALUMINUM HEAVY |
|
| | Type | Description | Class CD | Sub Class CD | Year Built | Area |
| | BAS | BASE/MAIN FLOOR | 4 | 0 | 2002 | 1296.0 |
| | BGR | BASEMENT GARAGE | 4 | 0 | 2002 | 528.0 |
| | UPS | UPPER STORY | 4 | 0 | 2002 | 715.3 |
| | OWP | OPEN WOOD PORCH W/STEPS | 4 | 0 | 2002 | 132.0 |
| | DWN | DOWNSTAIRS LIVING AREA | 4 | 0 | 2002 | 768.0 |
| | OWP | OPEN WOOD PORCH W/STEPS | 4 | 0 | 2002 | 72.0 |
| | OWC | OPEN WOOD PORCH W/STEPS/ROOF/C | 4 | 0 | 2002 | 72.0 |
| | OWP | OPEN WOOD PORCH W/STEPS | 4 | 0 | 2002 | 208.0 |
Sketch
Property Image
Land
| 1 | 32 | AC (03.01-09.99) | 4.6600 | 0.00 | 0.00 | 0.00 | 1.00 | $380,000 | $0 |
Roll Value History
| 2026 | N/A | N/A | N/A | N/A | N/A |
| 2025 | $475,123 | $380,000 | $0 | $855,123 | $855,123 |
| 2024 | $481,118 | $350,000 | $0 | $831,118 | $831,118 |
| 2023 | $487,114 | $330,000 | $0 | $817,114 | $817,114 |
| 2022 | $446,508 | $290,000 | $0 | $736,508 | $736,508 |
| 2021 | $392,992 | $230,000 | $0 | $622,992 | $622,992 |
| 2020 | $383,095 | $190,000 | $0 | $573,095 | $573,095 |
| 2019 | $261,020 | $250,000 | $0 | $511,020 | $511,020 |
| 2018 | $261,788 | $210,000 | $0 | $471,788 | $471,788 |
| 2017 | $263,291 | $190,000 | $0 | $453,291 | $453,291 |
| 2016 | $266,353 | $135,000 | $0 | $401,353 | $401,353 |
| 2015 | $269,414 | $135,000 | $0 | $404,414 | $404,414 |
| 2014 | $263,681 | $116,500 | $0 | $380,181 | $380,181 |
| 2013 | $266,528 | $117,300 | $0 | $383,828 | $383,828 |
| 2012 | $269,374 | $117,300 | $0 | $386,674 | $386,674 |
| 2011 | $272,222 | $117,300 | $0 | $389,522 | $389,522 |
| 2010 | $277,843 | $117,300 | $0 | $395,143 | $395,143 |
| 2009 | $286,235 | $151,800 | $0 | $438,035 | $438,035 |
| 2008 | $289,645 | $172,500 | $0 | $462,145 | $462,145 |
| 2007 | $295,586 | $132,810 | $0 | $428,396 | $428,396 |
Deed and Sales History
| 1 | 09/27/2019 | WD | Warranty Deed | NELSON TRUSTEE, PHIL J | KISCH, GEZA THEODORE | | | $565,000.00 | 40509 | 4472485 |
| 2 | 02/01/2010 | QCD | Quit Claim Deed | NELSON, PHIL | NELSON TRUSTEE, PHIL J | | | $0.00 | 358 | 4268931 |
| 3 | 12/01/2006 | QCD | Quit Claim Deed | NELSON, PHIL | NELSON, PHIL | | | $0.00 | 65107 | 4188649 |
| 4 | 05/01/1981 | EXECUTORD | Executor Deed | GLEASON, RICHARD P | NELSON, PHIL | | | $28,350.00 | 12135 | 385314 |
| 5 | 08/01/1979 | EXECUTORD | Executor Deed | Unknown | HALLMARK, RONALD | | | $88,000.00 | 94119 | 357654 |
| 6 | 08/01/1979 | EXECUTORD | Executor Deed | HALLMARK, RONALD | GLEASON, RICHARD P | | | $0.00 | 94224 | 357911 |
Payout Agreement
| No payout information available.. |