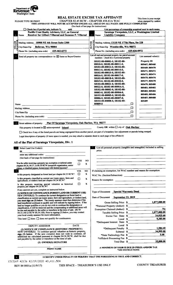
Property
Account |
| Property ID: | 48166 | Abbreviated Legal Description: | 2 - IN SE NE: BG NECR SE NE W30' TPB W497.5' S119' E497 .5' N119' TPB TGW UNDIV 1/4 INT WELL & PRIV RD |
| Geographic ID: | R22906-391-5000 | Agent Code: | |
| Type: | Real | | |
| Tax Area: | 782 - APPRAISER-S Whid Schl Dist, Special District, improved, greater than 1 acre | Land Use Code | 11 |
| Open Space: | N | DFL | N |
| Historic Property: | N | Remodel Property: | N |
| Multi-Family Redevelopment: | N | | |
| Township: | 29 | Section: | 06 |
| Range: | R2 |
Location |
| Address: | 4908 SMUGGLERS COVE RD FREELAND, WA 98249 | Mapsco: | |
| Neighborhood: | Cycle 3 | Map ID: | 300 |
| Neighborhood CD: | 3 |
Owner |
| Name: | MYERS, KATHY | Owner ID: | 301637 |
| Mailing Address: | JENNIFER WUEST 4908 SMUGGLERS COVE RD FREELAND, WA 98249 | % Ownership: | 100.0000000000% |
| | | Exemptions: | |
Taxes and Assessment Details
Values
| (+) Improvement Homesite Value: | + | $0 | |
| (+) Improvement Non-Homesite Value: | + | $431,902 | |
| (+) Land Homesite Value: | + | $0 | |
| (+) Land Non-Homesite Value: | + | $420,000 | |
| (+) Curr Use (HS): | + | $0 | $0 |
| (+) Curr Use (NHS): | + | $0 | $0 |
| | | -------------------------- | |
| (=) Market Value: | = | $851,902 | |
| (–) Productivity Loss: | – | $0 | |
| | | -------------------------- | |
| (=) Subtotal: | = | $851,902 | |
| (+) Senior Appraised Value: | + | $0 | |
| (+) Non-Senior Appraised Value: | + | $851,902 | |
| | | -------------------------- | |
| (=) Total Appraised Value: | = | $851,902 | |
| (–) Senior Exemption Loss: | – | $0 | |
| (–) Exemption Loss: | – | $0 | |
| | | -------------------------- | |
| (=) Taxable Value: | = | $851,902 | |
Taxing Jurisdiction
| Owner: | MYERS, KATHY | | |
| % Ownership: | 100.0000000000% | | |
| Total Value: | $851,902 | | |
| Tax Area: | 782 - APPRAISER-S Whid Schl Dist, Special District, improved, greater than 1 acre |
| CF | Conservation Futures | 0.0316035091 | $851,902 | $851,902 | $26.92 | | |
| FIRE3 | Fire & Rescue Dist #3 S Whidbey GEN | 1.2004855531 | $851,902 | $851,902 | $1,022.70 | | |
| HOBOND | Hospital BOND | 0.1910887512 | $851,902 | $851,902 | $162.79 | | |
| HOGEN | Hospital GEN | 0.3902502903 | $851,902 | $851,902 | $332.46 | | |
| CE | County Current Expense | 0.3708482477 | $851,902 | $851,902 | $315.93 | | |
| CR | County Roads | 0.4584763726 | $851,902 | $851,902 | $390.58 | | |
| ISLANDEMS | Hospital GEN (EMS) | 0.5000000000 | $851,902 | $851,902 | $425.95 | | |
| LIB | Library Sno-Isle GEN | 0.3153421757 | $851,902 | $851,902 | $268.64 | | |
| PORTWHID | Port of S Whidbey GEN | 0.1094540357 | $851,902 | $851,902 | $93.24 | | |
| SCH206BOND | School 206 BOND | 0.3161759235 | $851,902 | $851,902 | $269.35 | | |
| SCH206MO | School 206 Enrichment | 0.4547169547 | $851,902 | $851,902 | $387.37 | | |
| ST | State School | 1.3035497053 | $851,902 | $851,902 | $1,110.50 | | |
| ST2 | State School Part 2 | 0.8169543533 | $851,902 | $851,902 | $695.97 | | |
| SWHIDPRBD | P & R S Whidbey BOND | 0.0152817568 | $851,902 | $851,902 | $13.02 | | |
| SWHIDPRBD2 | P & R S Whidbey BOND2 | 0.0138911264 | $851,902 | $851,902 | $11.83 | | |
| SWHIDPRMT | P & R S Whidbey GEN | 0.2053334452 | $851,902 | $851,902 | $174.92 | | |
| | Total Tax Rate: | 6.6934522006 | | | | | |
| | | | | Taxes w/Current Exemptions: | $5,702.17 | | |
| | | | | Taxes w/o Exemptions: | $5,702.17 | | |
Improvement / Building
| Improvement #1: | RESIDENTIAL | State Code: | Y | 2323.7 sqft | Value: | $431,902 |
| Bathrooms: | 2 | Bedrooms: | 2 | | Ceiling: | DRYWALL PAINTED | Exterior Wall/Cover: | WOOD SIDING | | Floor Covering: | CARPET/VINYL 80-20 | Floor Structure: | WOOD W/SUBFLOOR | | Foundation: | CONCRETE | Heating: | RADIANT FLOOR | | Interior Finish: | DRYWALL PAINT | Plumbing Fixture Cnt: | 12 | | Roof Slope: | 8" IN 12" | Roof Structure/Cover: | BEAM ALUMINUM HEAVY |
|
| | Type | Description | Class CD | Sub Class CD | Year Built | Area |
| | BAS | BASE/MAIN FLOOR | 4 | 0 | 1990 | 1235.6 |
| | AGR | ATTACHED GARAGE | 4 | 0 | 1990 | 288.0 |
| | BIG | BUILT IN GARAGE | 4 | 0 | 1990 | 576.0 |
| | UPS | UPPER STORY | 4 | 0 | 1990 | 944.1 |
| | ENP | ENCLOSED PORCH | 4 | 0 | 1990 | 45.0 |
| | ENP | ENCLOSED PORCH | 4 | 0 | 1990 | 160.0 |
| | LOF | LOFT | 4 | 0 | 1990 | 144.0 |
| | CPD | OPEN CARPORT DIRT FLOOR | 4 | 0 | 1990 | 288.0 |
| | OWP | OPEN WOOD PORCH W/STEPS | 4 | 0 | 1990 | 295.0 |
Sketch
Property Image
Land
| 1 | 17 | AC (01.01-02.00) | 0.0000 | 59241.60 | 0.00 | 0.00 | 1.00 | $420,000 | $0 |
Roll Value History
| 2026 | N/A | N/A | N/A | N/A | N/A |
| 2025 | $431,902 | $420,000 | $0 | $851,902 | $851,902 |
| 2024 | $437,641 | $400,000 | $0 | $837,641 | $837,641 |
| 2023 | $443,381 | $380,000 | $0 | $823,381 | $823,381 |
| 2022 | $406,847 | $360,000 | $0 | $766,847 | $766,847 |
| 2021 | $358,296 | $310,000 | $0 | $668,296 | $668,296 |
| 2020 | $349,614 | $280,000 | $0 | $629,614 | $629,614 |
| 2019 | $265,882 | $300,000 | $0 | $565,882 | $565,882 |
| 2018 | $266,700 | $250,000 | $0 | $516,700 | $516,700 |
| 2017 | $233,104 | $250,000 | $0 | $483,104 | $483,104 |
| 2016 | $236,297 | $235,000 | $0 | $471,297 | $471,297 |
| 2015 | $239,491 | $235,000 | $0 | $474,491 | $474,491 |
| 2014 | $242,684 | $144,500 | $0 | $387,184 | $387,184 |
| 2013 | $242,457 | $144,500 | $0 | $386,957 | $386,957 |
| 2012 | $245,606 | $144,500 | $0 | $390,106 | $390,106 |
| 2011 | $248,754 | $170,000 | $0 | $418,754 | $418,754 |
| 2010 | $257,587 | $170,000 | $0 | $427,587 | $427,587 |
| 2009 | $268,637 | $175,000 | $0 | $443,637 | $443,637 |
| 2008 | $271,809 | $130,000 | $0 | $401,809 | $401,809 |
| 2007 | $307,786 | $97,195 | $0 | $404,981 | $404,981 |
Deed and Sales History
| 1 | 10/05/2021 | WD | Warranty Deed | ERNST, FRED L | MYERS, KATHY | | | $918,000.00 | 50543 | 4531749 |
| 2 | 03/23/2018 | WD | Warranty Deed | MONDA, GEORGE D | ERNST, FRED L | | | $574,000.00 | 33382 | 4441271 |
| 3 | 10/01/1989 | WD | Warranty Deed | WILSON, WILLIAM S | MONDA, GEORGE D | | | $79,000.00 | 94715 | 89015302 |
| 4 | 01/01/1900 | OTHER | Other - Misc. Documents | Unknown | WILSON, WILLIAM S | | | $0.00 | 0 | 0 |
Payout Agreement
| No payout information available.. |