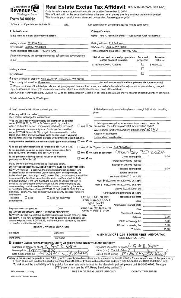
Property
Account |
| Property ID: | 481785 | Abbreviated Legal Description: | IN NE SE SEC 33-29-3E & NW SW SEC 34-29-3E: BG 4/CR COM SECS 33 & 34 N89*E120' S721.46' TPB S133.33' TO RD SWLY ALG CUR/R 275.57 S71*W 440.35' N468.61' S88*E211 .91' N68*E125.6' N80*E98.2' N61*E33.16' S135.92' S88*E 208' TPB TGW SUB EZ FR 194-4560 & 3293 |
| Geographic ID: | R32933-173-4900 | Agent Code: | |
| Type: | Real | | |
| Tax Area: | 712 - APPRAISER-S Whid Schl Dist, outside Langley, improved, greater than 1 acre | Land Use Code | 11 |
| Open Space: | N | DFL | N |
| Historic Property: | N | Remodel Property: | N |
| Multi-Family Redevelopment: | N | | |
| Township: | 29 | Section: | 33 |
| Range: | R3 |
Location |
| Address: | 3622 DANDELION LN CLINTON, WA 98236 | Mapsco: | |
| Neighborhood: | Cycle 4 | Map ID: | 835 |
| Neighborhood CD: | 4 |
Owner |
| Name: | WILSON, KYLE | Owner ID: | 312188 |
| Mailing Address: | SHARON HEIBER 3622 DANDELION LN CLINTON, WA 98236 | % Ownership: | 100.0000000000% |
| | | Exemptions: | |
Taxes and Assessment Details
Values
| (+) Improvement Homesite Value: | + | $0 | |
| (+) Improvement Non-Homesite Value: | + | $614,065 | |
| (+) Land Homesite Value: | + | $0 | |
| (+) Land Non-Homesite Value: | + | $370,000 | |
| (+) Curr Use (HS): | + | $0 | $0 |
| (+) Curr Use (NHS): | + | $0 | $0 |
| | | -------------------------- | |
| (=) Market Value: | = | $984,065 | |
| (–) Productivity Loss: | – | $0 | |
| | | -------------------------- | |
| (=) Subtotal: | = | $984,065 | |
| (+) Senior Appraised Value: | + | $0 | |
| (+) Non-Senior Appraised Value: | + | $984,065 | |
| | | -------------------------- | |
| (=) Total Appraised Value: | = | $984,065 | |
| (–) Senior Exemption Loss: | – | $0 | |
| (–) Exemption Loss: | – | $0 | |
| | | -------------------------- | |
| (=) Taxable Value: | = | $984,065 | |
Taxing Jurisdiction
| Owner: | WILSON, KYLE | | |
| % Ownership: | 100.0000000000% | | |
| Total Value: | $984,065 | | |
| Tax Area: | 712 - APPRAISER-S Whid Schl Dist, outside Langley, improved, greater than 1 acre |
| CF | Conservation Futures | 0.0316035091 | $984,065 | $984,065 | $31.10 | | |
| FIRE3 | Fire & Rescue Dist #3 S Whidbey GEN | 1.2004855531 | $984,065 | $984,065 | $1,181.36 | | |
| HOBOND | Hospital BOND | 0.1910887512 | $984,065 | $984,065 | $188.04 | | |
| HOGEN | Hospital GEN | 0.3902502903 | $984,065 | $984,065 | $384.03 | | |
| CE | County Current Expense | 0.3708482477 | $984,065 | $984,065 | $364.94 | | |
| CR | County Roads | 0.4584763726 | $984,065 | $984,065 | $451.17 | | |
| ISLANDEMS | Hospital GEN (EMS) | 0.5000000000 | $984,065 | $984,065 | $492.03 | | |
| LIB | Library Sno-Isle GEN | 0.3153421757 | $984,065 | $984,065 | $310.32 | | |
| PORTWHID | Port of S Whidbey GEN | 0.1094540357 | $984,065 | $984,065 | $107.71 | | |
| SCH206BOND | School 206 BOND | 0.3161759235 | $984,065 | $984,065 | $311.14 | | |
| SCH206MO | School 206 Enrichment | 0.4547169547 | $984,065 | $984,065 | $447.47 | | |
| ST | State School | 1.3035497053 | $984,065 | $984,065 | $1,282.78 | | |
| ST2 | State School Part 2 | 0.8169543533 | $984,065 | $984,065 | $803.94 | | |
| SWHIDPRBD | P & R S Whidbey BOND | 0.0152817568 | $984,065 | $984,065 | $15.04 | | |
| SWHIDPRBD2 | P & R S Whidbey BOND2 | 0.0138911264 | $984,065 | $984,065 | $13.67 | | |
| SWHIDPRMT | P & R S Whidbey GEN | 0.2053334452 | $984,065 | $984,065 | $202.06 | | |
| | Total Tax Rate: | 6.6934522006 | | | | | |
| | | | | Taxes w/Current Exemptions: | $6,586.80 | | |
| | | | | Taxes w/o Exemptions: | $6,586.80 | | |
Improvement / Building
| Improvement #1: | RESIDENTIAL | State Code: | Y | 3204.0 sqft | Value: | $614,065 |
| Bathrooms: | 4 | Bedrooms: | 3 | | Ceiling: | DRYWALL PAINTED | Cooling: | HEAT PUMP/CONV/V | | Exterior Wall/Cover: | PLY/HARDBOARD T-111 | Floor Covering: | HARDWOOD/CARP 60-40 | | Floor Structure: | WOOD W/SUBFLOOR | Foundation: | CONCRETE | | Interior Finish: | DRYWALL PAINT | Plumbing Fixture Cnt: | 18 | | Roof Slope: | 6" IN 12" | Roof Structure/Cover: | CJ ASPHALT |
|
| | Type | Description | Class CD | Sub Class CD | Year Built | Area |
| | BAS | BASE/MAIN FLOOR | 4 | 0 | 1995 | 1226.0 |
| | AGR | ATTACHED GARAGE | 4 | 0 | 1995 | 689.0 |
| | UPS | UPPER STORY | 4 | 0 | 1995 | 752.0 |
| | OWP | OPEN WOOD PORCH W/STEPS | 4 | 0 | 1995 | 182.0 |
| | OWP | OPEN WOOD PORCH W/STEPS | 4 | 0 | 1995 | 244.5 |
| | OWC | OPEN WOOD PORCH W/STEPS/ROOF/C | 4 | 0 | 1995 | 90.0 |
| | DWN | DOWNSTAIRS LIVING AREA | 4 | 0 | 1995 | 1226.0 |
| | OCP | OPEN CARPORT | 4 | 0 | 1995 | 123.0 |
| | CPD | OPEN CARPORT DIRT FLOOR | 4 | 0 | 1995 | 384.0 |
Sketch
Property Image
Land
| 1 | 32 | AC (03.01-09.99) | 5.3300 | 0.00 | 0.00 | 0.00 | 1.00 | $370,000 | $0 |
Roll Value History
| 2026 | N/A | N/A | N/A | N/A | N/A |
| 2025 | $614,065 | $370,000 | $0 | $984,065 | $984,065 |
| 2024 | $621,268 | $350,000 | $0 | $971,268 | $971,268 |
| 2023 | $581,208 | $330,000 | $0 | $911,208 | $911,208 |
| 2022 | $525,775 | $280,000 | $0 | $805,775 | $805,775 |
| 2021 | $462,392 | $230,000 | $0 | $692,392 | $692,392 |
| 2020 | $436,190 | $190,000 | $0 | $626,190 | $626,190 |
| 2019 | $345,910 | $250,000 | $0 | $595,910 | $595,910 |
| 2018 | $346,902 | $210,000 | $0 | $556,902 | $556,902 |
| 2017 | $348,883 | $190,000 | $0 | $538,883 | $538,883 |
| 2016 | $352,848 | $135,000 | $0 | $487,848 | $487,848 |
| 2015 | $313,969 | $135,000 | $0 | $448,969 | $448,969 |
| 2014 | $305,582 | $135,000 | $0 | $440,582 | $440,582 |
| 2013 | $308,695 | $135,000 | $0 | $443,695 | $443,695 |
| 2012 | $312,383 | $181,220 | $0 | $493,603 | $493,603 |
| 2011 | $316,072 | $181,220 | $0 | $497,292 | $497,292 |
| 2010 | $328,608 | $181,220 | $0 | $509,828 | $509,828 |
| 2009 | $342,609 | $234,520 | $0 | $577,129 | $577,129 |
| 2008 | $346,601 | $266,500 | $0 | $613,101 | $613,101 |
| 2007 | $339,932 | $157,000 | $0 | $496,932 | $496,932 |
Deed and Sales History
| 1 | 04/26/2024 | WD | Warranty Deed | MOCCIA, JOSEPHINE P | WILSON, KYLE | | | $1,300,000.00 | 59810 | 4571861 |
| 2 | 05/01/2015 | WD | Warranty Deed | HAWKS, JANET LYNN | MOCCIA, JOSEPHINE P | | | $499,000.00 | 19428 | 4377822 |
| 3 | 03/24/2008 | WD | Warranty Deed | SVOBODA, KEITH R | HAWKS, JANET LYNN | | | $595,000.00 | 80701 | 4224748 |
| 4 | 11/01/1989 | WD | Warranty Deed | FRIESEN, CYNTHIA S | SVOBODA, KEITH R | | | $38,300.00 | 95493 | 89017620 |
| 5 | 03/01/1985 | OTHER | Other - Misc. Documents | KIRKENSLAGER, CYNTHIA S | FRIESEN, CYNTHIA S | | | $0.00 | 61073 | 0 |
| 6 | 04/01/1984 | PACD | Purchaser's Assignment | MEILLEUR, RAOUL J | KIRKENSLAGER, CYNTHIA S | | | $30,000.00 | 41115 | 423698 |
| 7 | 05/01/1979 | EXECUTORD | Executor Deed | DALTON, LEONARD | MEILLEUR, RAOUL J | | | $27,500.00 | 92450 | 352775 |
| 8 | 05/01/1978 | OTHER | Other - Misc. Documents | Unknown | DALTON, LEONARD | | | $90,000.00 | 82143 | 332643 |
Payout Agreement
| No payout information available.. |