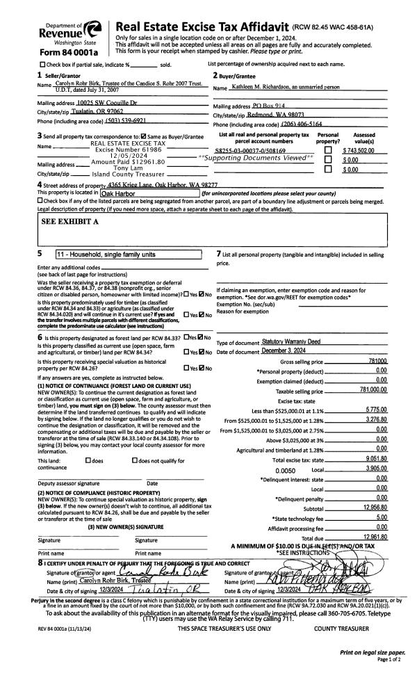
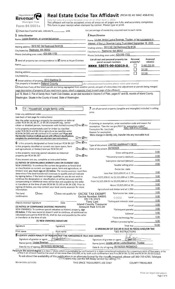
Property
Account |
| Property ID: | 482141 | Abbreviated Legal Description: | W592.895' MEAS PARA/TO WLN OF S/2 N/2 SE SE LY WLY OF HUMPHREY RD FR 082-4550 |
| Geographic ID: | R32936-082-4250 | Agent Code: | |
| Type: | Real | | |
| Tax Area: | 712 - APPRAISER-S Whid Schl Dist, outside Langley, improved, greater than 1 acre | Land Use Code | 11 |
| Open Space: | N | DFL | N |
| Historic Property: | N | Remodel Property: | N |
| Multi-Family Redevelopment: | N | | |
| Township: | 29 | Section: | 36 |
| Range: | R3 |
Location |
| Address: | 4709 OHANA LN CLINTON, WA 98236 | Mapsco: | |
| Neighborhood: | Cycle 4 | Map ID: | 847 |
| Neighborhood CD: | 4 |
Owner |
| Name: | NICHOLS, BRYAN OTIS | Owner ID: | 311924 |
| Mailing Address: | ONICA GRAY NICHOLS 4715 25TH AVE NORTHEAST, APT 717 SEATTLE, WA 98105 | % Ownership: | 100.0000000000% |
| | | Exemptions: | |
Taxes and Assessment Details
Values
| (+) Improvement Homesite Value: | + | $0 | |
| (+) Improvement Non-Homesite Value: | + | $476,554 | |
| (+) Land Homesite Value: | + | $0 | |
| (+) Land Non-Homesite Value: | + | $360,000 | |
| (+) Curr Use (HS): | + | $0 | $0 |
| (+) Curr Use (NHS): | + | $0 | $0 |
| | | -------------------------- | |
| (=) Market Value: | = | $836,554 | |
| (–) Productivity Loss: | – | $0 | |
| | | -------------------------- | |
| (=) Subtotal: | = | $836,554 | |
| (+) Senior Appraised Value: | + | $0 | |
| (+) Non-Senior Appraised Value: | + | $836,554 | |
| | | -------------------------- | |
| (=) Total Appraised Value: | = | $836,554 | |
| (–) Senior Exemption Loss: | – | $0 | |
| (–) Exemption Loss: | – | $0 | |
| | | -------------------------- | |
| (=) Taxable Value: | = | $836,554 | |
Taxing Jurisdiction
| Owner: | NICHOLS, BRYAN OTIS | | |
| % Ownership: | 100.0000000000% | | |
| Total Value: | $836,554 | | |
| Tax Area: | 712 - APPRAISER-S Whid Schl Dist, outside Langley, improved, greater than 1 acre |
| CF | Conservation Futures | 0.0316035091 | $836,554 | $836,554 | $26.44 | | |
| FIRE3 | Fire & Rescue Dist #3 S Whidbey GEN | 1.2004855531 | $836,554 | $836,554 | $1,004.27 | | |
| HOBOND | Hospital BOND | 0.1910887512 | $836,554 | $836,554 | $159.86 | | |
| HOGEN | Hospital GEN | 0.3902502903 | $836,554 | $836,554 | $326.47 | | |
| CE | County Current Expense | 0.3708482477 | $836,554 | $836,554 | $310.23 | | |
| CR | County Roads | 0.4584763726 | $836,554 | $836,554 | $383.54 | | |
| ISLANDEMS | Hospital GEN (EMS) | 0.5000000000 | $836,554 | $836,554 | $418.28 | | |
| LIB | Library Sno-Isle GEN | 0.3153421757 | $836,554 | $836,554 | $263.80 | | |
| PORTWHID | Port of S Whidbey GEN | 0.1094540357 | $836,554 | $836,554 | $91.56 | | |
| SCH206BOND | School 206 BOND | 0.3161759235 | $836,554 | $836,554 | $264.50 | | |
| SCH206MO | School 206 Enrichment | 0.4547169547 | $836,554 | $836,554 | $380.40 | | |
| ST | State School | 1.3035497053 | $836,554 | $836,554 | $1,090.49 | | |
| ST2 | State School Part 2 | 0.8169543533 | $836,554 | $836,554 | $683.43 | | |
| SWHIDPRBD | P & R S Whidbey BOND | 0.0152817568 | $836,554 | $836,554 | $12.78 | | |
| SWHIDPRBD2 | P & R S Whidbey BOND2 | 0.0138911264 | $836,554 | $836,554 | $11.62 | | |
| SWHIDPRMT | P & R S Whidbey GEN | 0.2053334452 | $836,554 | $836,554 | $171.77 | | |
| | Total Tax Rate: | 6.6934522006 | | | | | |
| | | | | Taxes w/Current Exemptions: | $5,599.44 | | |
| | | | | Taxes w/o Exemptions: | $5,599.44 | | |
Improvement / Building
| Improvement #1: | RESIDENTIAL | State Code: | Y | 1947.9 sqft | Value: | $476,554 |
| Bathrooms: | 2.5 | Bedrooms: | 3 | | Ceiling: | DRYWALL PAINTED | Cooling: | HEAT PUMP/CONV/V | | Exterior Wall/Cover: | CEMENT FIBER | Floor Covering: | HARDWOOD 100% | | Floor Structure: | WOOD W/SUBFLOOR | Foundation: | CONCRETE | | Interior Finish: | DRYWALL PAINT | Plumbing Fixture Cnt: | 11 | | Roof Slope: | 10" IN 12" | Roof Structure/Cover: | CJ ASPHALT |
|
| | Type | Description | Class CD | Sub Class CD | Year Built | Area |
| | BAS | BASE/MAIN FLOOR | 3 | 0 | 2025 | 1947.9 |
| | AGR | ATTACHED GARAGE | 3 | 0 | 2025 | 549.9 |
| | OWR | OPEN WOOD PORCH W/STEPS/ROOF | 3 | 0 | 2025 | 220.5 |
| | OWP | OPEN WOOD PORCH W/STEPS | 3 | 0 | 2025 | 198.8 |
| | OWC | OPEN WOOD PORCH W/STEPS/ROOF/C | 3 | 0 | 2025 | 82.3 |
| | OP1 | OPEN PORCH SLAB | 3 | 0 | 2025 | 345.0 |
| | ATU | ATTIC UNFINISHED | 3 | 0 | 2025 | 250.0 |
Sketch
| No sketches available for this property. |
Property Image
Land
| 1 | 32 | AC (03.01-09.99) | 4.6500 | 0.00 | 0.00 | 0.00 | 1.00 | $360,000 | $0 |
Roll Value History
| 2026 | N/A | N/A | N/A | N/A | N/A |
| 2025 | $476,554 | $360,000 | $0 | $836,554 | $836,554 |
| 2024 | $0 | $220,000 | $0 | $220,000 | $220,000 |
| 2023 | $0 | $200,000 | $0 | $200,000 | $200,000 |
| 2022 | $0 | $170,000 | $0 | $170,000 | $170,000 |
| 2021 | $0 | $150,000 | $0 | $150,000 | $150,000 |
| 2020 | $0 | $150,000 | $0 | $150,000 | $150,000 |
| 2019 | $0 | $120,000 | $0 | $120,000 | $120,000 |
| 2018 | $0 | $120,000 | $0 | $120,000 | $120,000 |
| 2017 | $0 | $120,000 | $0 | $120,000 | $120,000 |
| 2016 | $0 | $130,000 | $0 | $130,000 | $130,000 |
| 2015 | $0 | $100,000 | $0 | $100,000 | $100,000 |
| 2014 | $0 | $125,000 | $0 | $125,000 | $125,000 |
| 2013 | $0 | $125,550 | $0 | $125,550 | $125,550 |
| 2012 | $0 | $125,550 | $0 | $125,550 | $125,550 |
| 2011 | $0 | $125,550 | $0 | $125,550 | $125,550 |
| 2010 | $0 | $125,550 | $0 | $125,550 | $125,550 |
| 2009 | $0 | $158,100 | $0 | $158,100 | $158,100 |
| 2008 | $0 | $139,500 | $0 | $139,500 | $139,500 |
| 2007 | $0 | $162,750 | $0 | $162,750 | $162,750 |
Deed and Sales History
| 1 | 04/05/2024 | WD | Warranty Deed | DENNEY, GREG | NICHOLS, BRYAN OTIS | | | $295,000.00 | 59608 | 4571048 |
| 2 | 03/04/2024 | WD | Warranty Deed | PATTERSON, DANIEL S | DENNEY, GREG | | | $275,000.00 | 59349 | 4570002 |
| 3 | 08/01/1990 | WD | Warranty Deed | JOY, MICHAEL B | PATTERSON, DANIEL S | | | $50,000.00 | 4726 | 90015614 |
| 4 | 07/01/1987 | QCD | Quit Claim Deed | JOY, WILBUR W | JOY, MICHAEL B | | | $0.00 | 72007 | 87009165 |
| 5 | 01/01/1979 | CD | DNU - Correction Deed | JOY, WILBUR W | JOY, WILBUR W | | | $0.00 | 90373 | 346458 |
| 6 | 09/01/1978 | CD | DNU - Correction Deed | JOY, WILBUR W | JOY, WILBUR W | | | $0.00 | 0 | 339817 |
| 7 | 08/01/1977 | TRUSTEED | Trustee's Deed | WOLF, GEORGE C | JOY, WILBUR W | | | $0.00 | 73619 | 0 |
| 8 | 01/01/1900 | OTHER | Other - Misc. Documents | Unknown | WOLF, GEORGE C | | | $0.00 | 0 | 0 |
Payout Agreement
| No payout information available.. |