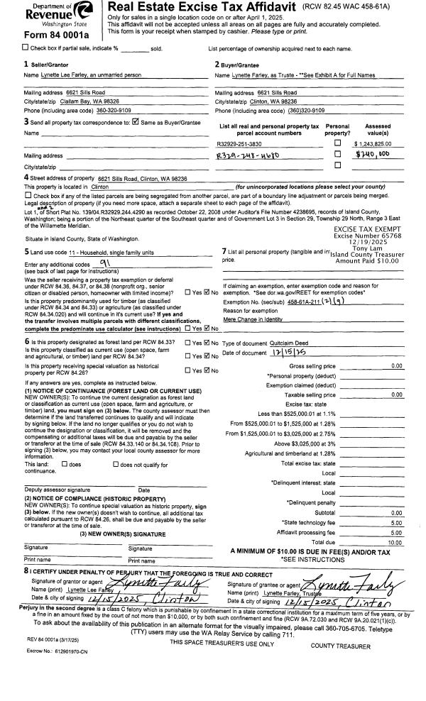
Property
Account |
| Property ID: | 482150 | Abbreviated Legal Description: | S/2 N/2 SE SE LY WLY OF HUMPHREY RD EX W592.895' MEAS PARA/TO WLN TGW PT VAC CLINTON-GLENDALE RD #72 AF#90015355 FR 082-4550 |
| Geographic ID: | R32936-082-4900 | Agent Code: | |
| Type: | Real | | |
| Tax Area: | 712 - APPRAISER-S Whid Schl Dist, outside Langley, improved, greater than 1 acre | Land Use Code | 11 |
| Open Space: | N | DFL | N |
| Historic Property: | N | Remodel Property: | N |
| Multi-Family Redevelopment: | N | | |
| Township: | 29 | Section: | 36 |
| Range: | R3 |
Location |
| Address: | 4739 E OHANA LN CLINTON, WA 98236 | Mapsco: | |
| Neighborhood: | Cycle 4 | Map ID: | 847 |
| Neighborhood CD: | 4 |
Owner |
| Name: | YAMAMATO, CRAIG E | Owner ID: | 287620 |
| Mailing Address: | BARBARA J PHILLIPS 5309 80TH PL SW MUKILTEO, WA 98275 | % Ownership: | 100.0000000000% |
| | | Exemptions: | |
Taxes and Assessment Details
Values
| (+) Improvement Homesite Value: | + | $0 | |
| (+) Improvement Non-Homesite Value: | + | $142,324 | |
| (+) Land Homesite Value: | + | $0 | |
| (+) Land Non-Homesite Value: | + | $360,000 | |
| (+) Curr Use (HS): | + | $0 | $0 |
| (+) Curr Use (NHS): | + | $0 | $0 |
| | | -------------------------- | |
| (=) Market Value: | = | $502,324 | |
| (–) Productivity Loss: | – | $0 | |
| | | -------------------------- | |
| (=) Subtotal: | = | $502,324 | |
| (+) Senior Appraised Value: | + | $0 | |
| (+) Non-Senior Appraised Value: | + | $502,324 | |
| | | -------------------------- | |
| (=) Total Appraised Value: | = | $502,324 | |
| (–) Senior Exemption Loss: | – | $0 | |
| (–) Exemption Loss: | – | $0 | |
| | | -------------------------- | |
| (=) Taxable Value: | = | $502,324 | |
Taxing Jurisdiction
| Owner: | YAMAMATO, CRAIG E | | |
| % Ownership: | 100.0000000000% | | |
| Total Value: | $502,324 | | |
| Tax Area: | 712 - APPRAISER-S Whid Schl Dist, outside Langley, improved, greater than 1 acre |
| CF | Conservation Futures | 0.0316035091 | $502,324 | $502,324 | $15.88 | | |
| FIRE3 | Fire & Rescue Dist #3 S Whidbey GEN | 1.2004855531 | $502,324 | $502,324 | $603.03 | | |
| HOBOND | Hospital BOND | 0.1910887512 | $502,324 | $502,324 | $95.99 | | |
| HOGEN | Hospital GEN | 0.3902502903 | $502,324 | $502,324 | $196.03 | | |
| CE | County Current Expense | 0.3708482477 | $502,324 | $502,324 | $186.29 | | |
| CR | County Roads | 0.4584763726 | $502,324 | $502,324 | $230.30 | | |
| ISLANDEMS | Hospital GEN (EMS) | 0.5000000000 | $502,324 | $502,324 | $251.16 | | |
| LIB | Library Sno-Isle GEN | 0.3153421757 | $502,324 | $502,324 | $158.40 | | |
| PORTWHID | Port of S Whidbey GEN | 0.1094540357 | $502,324 | $502,324 | $54.98 | | |
| SCH206BOND | School 206 BOND | 0.3161759235 | $502,324 | $502,324 | $158.82 | | |
| SCH206MO | School 206 Enrichment | 0.4547169547 | $502,324 | $502,324 | $228.42 | | |
| ST | State School | 1.3035497053 | $502,324 | $502,324 | $654.80 | | |
| ST2 | State School Part 2 | 0.8169543533 | $502,324 | $502,324 | $410.38 | | |
| SWHIDPRBD | P & R S Whidbey BOND | 0.0152817568 | $502,324 | $502,324 | $7.68 | | |
| SWHIDPRBD2 | P & R S Whidbey BOND2 | 0.0138911264 | $502,324 | $502,324 | $6.98 | | |
| SWHIDPRMT | P & R S Whidbey GEN | 0.2053334452 | $502,324 | $502,324 | $103.14 | | |
| | Total Tax Rate: | 6.6934522006 | | | | | |
| | | | | Taxes w/Current Exemptions: | $3,362.28 | | |
| | | | | Taxes w/o Exemptions: | $3,362.28 | | |
Improvement / Building
| Improvement #1: | RESIDENTIAL | State Code: | Y | 768.0 sqft | Value: | $142,324 |
| Bathrooms: | 1 | Bedrooms: | 0 | | Ceiling: | TONGUE & GROOVE | Exterior Wall/Cover: | CEMENT FIBER | | Floor Covering: | (NONE) | Floor Structure: | WOOD W/SUBFLOOR | | Foundation: | PEIRS | Heating: | RADIANT FLOOR | | Interior Finish: | DRYWALL PAINT | Plumbing Fixture Cnt: | 6 | | Roof Slope: | 8" IN 12" | Roof Structure/Cover: | BEAM ALUMINUM HEAVY |
|
| | Type | Description | Class CD | Sub Class CD | Year Built | Area |
| | BAS | BASE/MAIN FLOOR | 2 | 0 | 2024 | 768.0 |
| | OWP | OPEN WOOD PORCH W/STEPS | 3 | 0 | 2024 | 240.0 |
| | OWR | OPEN WOOD PORCH W/STEPS/ROOF | 3 | 0 | 2024 | 0.0 |
Sketch
Property Image
Land
| 1 | 32 | AC (03.01-09.99) | 4.6500 | 0.00 | 0.00 | 0.00 | 1.00 | $360,000 | $0 |
Roll Value History
| 2026 | N/A | N/A | N/A | N/A | N/A |
| 2025 | $142,324 | $360,000 | $0 | $502,324 | $502,324 |
| 2024 | $150,620 | $340,000 | $0 | $490,620 | $490,620 |
| 2023 | $52,497 | $200,000 | $0 | $252,497 | $252,497 |
| 2022 | $41,157 | $170,000 | $0 | $211,157 | $211,157 |
| 2021 | $0 | $150,000 | $0 | $150,000 | $150,000 |
| 2020 | $0 | $150,000 | $0 | $150,000 | $150,000 |
| 2019 | $0 | $120,000 | $0 | $120,000 | $120,000 |
| 2018 | $0 | $120,000 | $0 | $120,000 | $120,000 |
| 2017 | $0 | $120,000 | $0 | $120,000 | $120,000 |
| 2016 | $0 | $130,000 | $0 | $130,000 | $130,000 |
| 2015 | $0 | $100,000 | $0 | $100,000 | $100,000 |
| 2014 | $0 | $125,550 | $0 | $125,550 | $125,550 |
| 2013 | $0 | $125,550 | $0 | $125,550 | $125,550 |
| 2012 | $0 | $125,550 | $0 | $125,550 | $125,550 |
| 2011 | $0 | $125,550 | $0 | $125,550 | $125,550 |
| 2010 | $0 | $125,550 | $0 | $125,550 | $125,550 |
| 2009 | $0 | $158,100 | $0 | $158,100 | $158,100 |
| 2008 | $0 | $139,500 | $0 | $139,500 | $139,500 |
| 2007 | $0 | $162,750 | $0 | $162,750 | $162,750 |
Deed and Sales History
| 1 | 10/04/2018 | WD | Warranty Deed | UNFRED, TIMOTHY J | YAMAMATO, CRAIG E | | | $120,000.00 | 36383 | 4453817 |
| 2 | 04/08/2011 | WD | Warranty Deed | NORWOOD, RALPH J | UNFRED, TIMOTHY J | | | $70,000.00 | 4640 | 4296460 |
| 3 | 07/03/1996 | DECREE | Divorce Decree/Legal Separation | NORWOOD, RALPH J | NORWOOD, RALPH J | | | $0.00 | 81086 | 98006554 |
| 4 | 08/01/1990 | WD | Warranty Deed | JOY, KAREN | NORWOOD, RALPH J | | | $50,000.00 | 4727 | 90015617 |
| 5 | 07/01/1987 | QCD | Quit Claim Deed | JOY, WILBUR & | JOY, KAREN | | | $0.00 | 72006 | 87009166 |
| 6 | 01/01/1900 | OTHER | Other - Misc. Documents | Unknown | JOY, WILBUR & | | | $0.00 | 0 | 0 |
| 7 | 01/01/1900 | OTHER | Other - Misc. Documents | NORWOOD, RALPH J | NORWOOD, RALPH J | | | $0.00 | 0 | 0 |
Payout Agreement
| No payout information available.. |