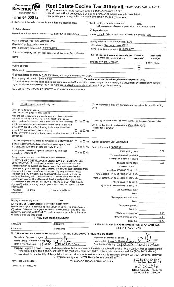
Property
Account |
| Property ID: | 482212 | Abbreviated Legal Description: | PT OF W/2 NE NE: BG PT ON WLN OF HARDING AVE 365'N OF SLN OF NE NE SD PT BEING SLN WORLAND TR AF#348462 WLY ALG SLN WORLAND TR 231' M/L NLY ALG WLN 136.5' ELY TP ON WLN OF HARDING AVE 128.5' NLY FR TPB SLY ALG HARDING AVE TPB SP 79-188 TR A FR 463-4270 |
| Geographic ID: | R32925-440-4250 | Agent Code: | |
| Type: | Real | | |
| Tax Area: | 720 - APPRAISER-S Whid Schl Dist, Special District, improved & less than 1 acre | Land Use Code | 11 |
| Open Space: | N | DFL | N |
| Historic Property: | N | Remodel Property: | N |
| Multi-Family Redevelopment: | N | | |
| Township: | 29 | Section: | 25 |
| Range: | R3 |
Location |
| Address: | 6468 HARDING AVE CLINTON, WA 98236 | Mapsco: | |
| Neighborhood: | Cycle 4 | Map ID: | 815 |
| Neighborhood CD: | 4 |
Owner |
| Name: | COLLENTINE, DAVID ROBERT | Owner ID: | 284981 |
| Mailing Address: | LYNDA GAYLE MATHIS 61-179 IKUWAI PL HALEIWA, HI 96712 | % Ownership: | 100.0000000000% |
| | | Exemptions: | |
Taxes and Assessment Details
Values
| (+) Improvement Homesite Value: | + | $0 | |
| (+) Improvement Non-Homesite Value: | + | $265,062 | |
| (+) Land Homesite Value: | + | $0 | |
| (+) Land Non-Homesite Value: | + | $260,000 | |
| (+) Curr Use (HS): | + | $0 | $0 |
| (+) Curr Use (NHS): | + | $0 | $0 |
| | | -------------------------- | |
| (=) Market Value: | = | $525,062 | |
| (–) Productivity Loss: | – | $0 | |
| | | -------------------------- | |
| (=) Subtotal: | = | $525,062 | |
| (+) Senior Appraised Value: | + | $0 | |
| (+) Non-Senior Appraised Value: | + | $525,062 | |
| | | -------------------------- | |
| (=) Total Appraised Value: | = | $525,062 | |
| (–) Senior Exemption Loss: | – | $0 | |
| (–) Exemption Loss: | – | $0 | |
| | | -------------------------- | |
| (=) Taxable Value: | = | $525,062 | |
Taxing Jurisdiction
| Owner: | COLLENTINE, DAVID ROBERT | | |
| % Ownership: | 100.0000000000% | | |
| Total Value: | $525,062 | | |
| Tax Area: | 720 - APPRAISER-S Whid Schl Dist, Special District, improved & less than 1 acre |
| CF | Conservation Futures | 0.0316035091 | $525,062 | $525,062 | $16.59 | | |
| FIRE3 | Fire & Rescue Dist #3 S Whidbey GEN | 1.2004855531 | $525,062 | $525,062 | $630.33 | | |
| HOBOND | Hospital BOND | 0.1910887512 | $525,062 | $525,062 | $100.33 | | |
| HOGEN | Hospital GEN | 0.3902502903 | $525,062 | $525,062 | $204.91 | | |
| CE | County Current Expense | 0.3708482477 | $525,062 | $525,062 | $194.72 | | |
| CR | County Roads | 0.4584763726 | $525,062 | $525,062 | $240.73 | | |
| ISLANDEMS | Hospital GEN (EMS) | 0.5000000000 | $525,062 | $525,062 | $262.53 | | |
| LIB | Library Sno-Isle GEN | 0.3153421757 | $525,062 | $525,062 | $165.57 | | |
| PORTWHID | Port of S Whidbey GEN | 0.1094540357 | $525,062 | $525,062 | $57.47 | | |
| SCH206BOND | School 206 BOND | 0.3161759235 | $525,062 | $525,062 | $166.01 | | |
| SCH206MO | School 206 Enrichment | 0.4547169547 | $525,062 | $525,062 | $238.75 | | |
| ST | State School | 1.3035497053 | $525,062 | $525,062 | $684.44 | | |
| ST2 | State School Part 2 | 0.8169543533 | $525,062 | $525,062 | $428.95 | | |
| SWHIDPRBD | P & R S Whidbey BOND | 0.0152817568 | $525,062 | $525,062 | $8.02 | | |
| SWHIDPRBD2 | P & R S Whidbey BOND2 | 0.0138911264 | $525,062 | $525,062 | $7.29 | | |
| SWHIDPRMT | P & R S Whidbey GEN | 0.2053334452 | $525,062 | $525,062 | $107.81 | | |
| | Total Tax Rate: | 6.6934522006 | | | | | |
| | | | | Taxes w/Current Exemptions: | $3,514.45 | | |
| | | | | Taxes w/o Exemptions: | $3,514.45 | | |
Improvement / Building
| Improvement #1: | RESIDENTIAL | State Code: | Y | 1193.0 sqft | Value: | $265,062 |
| Bathrooms: | 2 | Bedrooms: | 2 | | Ceiling: | DRYWALL PAINTED | Exterior Wall/Cover: | CEMENT FIBER | | Floor Covering: | HARDWOOD/CARP 60-40 | Floor Structure: | WOOD W/SUBFLOOR | | Foundation: | CONCRETE | Heating: | WALL HEAT ELECTRIC | | Interior Finish: | DRYWALL PAINT | Plumbing Fixture Cnt: | 10 | | Roof Slope: | 6" IN 12" | Roof Structure/Cover: | CJ ASPHALT |
|
| | Type | Description | Class CD | Sub Class CD | Year Built | Area |
| | BAS | BASE/MAIN FLOOR | 3 | 0 | 2007 | 809.0 |
| | BGR | BASEMENT GARAGE | 3 | 0 | 2007 | 792.0 |
| | UPS | UPPER STORY | 3 | 0 | 2007 | 384.0 |
| | OWP | OPEN WOOD PORCH W/STEPS | 3 | 0 | 2007 | 96.0 |
| | OWP | OPEN WOOD PORCH W/STEPS | 3 | 0 | 2007 | 22.0 |
Sketch
Property Image
Land
| 1 | 16 | AC (00.51-01.00) | 0.0000 | 0.00 | 0.00 | 0.00 | 1.00 | $260,000 | $0 |
Roll Value History
| 2026 | N/A | N/A | N/A | N/A | N/A |
| 2025 | $265,062 | $260,000 | $0 | $525,062 | $525,062 |
| 2024 | $268,170 | $250,000 | $0 | $518,170 | $518,170 |
| 2023 | $271,279 | $240,000 | $0 | $511,279 | $511,279 |
| 2022 | $248,465 | $240,000 | $0 | $488,465 | $488,465 |
| 2021 | $218,509 | $155,000 | $0 | $373,509 | $373,509 |
| 2020 | $205,112 | $135,000 | $0 | $340,112 | $340,112 |
| 2019 | $144,739 | $180,000 | $0 | $324,739 | $324,739 |
| 2018 | $145,150 | $150,000 | $0 | $295,150 | $295,150 |
| 2017 | $145,970 | $100,000 | $0 | $245,970 | $245,970 |
| 2016 | $147,610 | $100,000 | $0 | $247,610 | $247,610 |
| 2015 | $149,250 | $100,000 | $0 | $249,250 | $249,250 |
| 2014 | $156,929 | $100,000 | $0 | $256,929 | $256,929 |
| 2013 | $158,635 | $100,000 | $0 | $258,635 | $258,635 |
| 2012 | $160,341 | $106,250 | $0 | $266,591 | $266,591 |
| 2011 | $162,046 | $125,000 | $0 | $287,046 | $287,046 |
| 2010 | $165,499 | $125,000 | $0 | $290,499 | $290,499 |
| 2009 | $172,318 | $160,000 | $0 | $332,318 | $332,318 |
| 2008 | $172,373 | $165,000 | $0 | $337,373 | $337,373 |
| 2007 | $174,134 | $165,000 | $0 | $339,134 | $339,134 |
Deed and Sales History
| 1 | 05/07/2018 | WD | Warranty Deed | ANDERSON, CARRIE L | COLLENTINE, DAVID ROBERT | | | $295,000.00 | 34047 | 4444183 |
| 2 | 09/27/2006 | QCD | Quit Claim Deed | ANDERSON, CLAYTON S | ANDERSON, CARRIE L | | | $0.00 | 64317 | 4183479 |
| 3 | 07/05/2006 | WD | Warranty Deed | WORLAND, SIGRID A | ANDERSON, CLAYTON S | | | $75,000.00 | 63425 | 4177367 |
| 4 | 07/05/2001 | WD | Warranty Deed | WORLAND, BYRON C | WORLAND, SIGRID A | | | $0.00 | 14117 | 4000907 |
| 5 | 10/01/1989 | WD | Warranty Deed | WORLAND, B C | WORLAND, BYRON C | | | $17,500.00 | 94580 | 89014923 |
| 6 | 10/01/1979 | TRUSTEED | Trustee's Deed | WORLAND, BYRON C | WORLAND, B C | | | $69,500.00 | 94893 | 359894 |
| 7 | 01/01/1979 | OTHER | Other - Misc. Documents | Unknown | WORLAND, BYRON C | | | $63,500.00 | 90962 | 348462 |
Payout Agreement
| No payout information available.. |