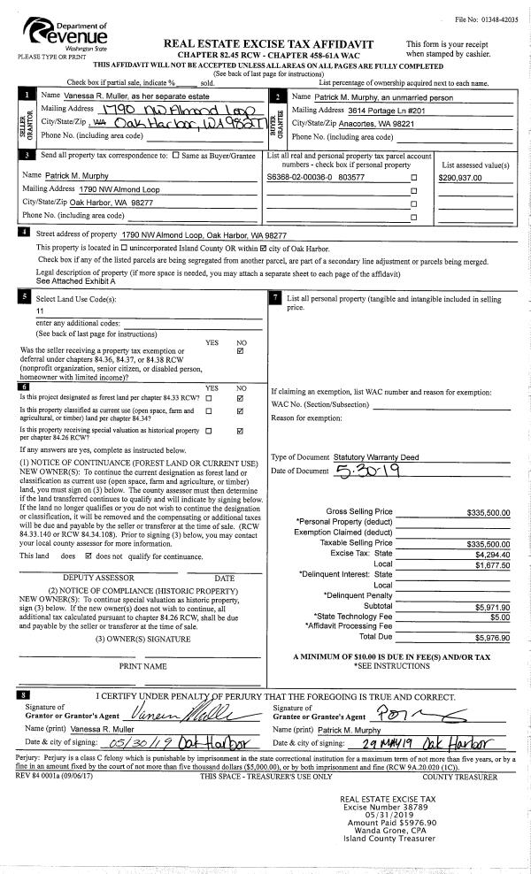
Property
Account |
| Property ID: | 48246 | Abbreviated Legal Description: | 21 - IN GL1: BG 30'S OF SWCR BLK 14 BUSH PT E155' S99' W155' N99' TPB |
| Geographic ID: | R22906-410-4060 | Agent Code: | |
| Type: | Real | | |
| Tax Area: | 780 - APPRAISER-S Whid Schl Dist, Special District, improved & less than 1 acre | Land Use Code | 11 |
| Open Space: | N | DFL | N |
| Historic Property: | N | Remodel Property: | N |
| Multi-Family Redevelopment: | N | | |
| Township: | 29 | Section: | 06 |
| Range: | R2 |
Location |
| Address: | 4891 SCURLOCK RD FREELAND, WA 98249 | Mapsco: | |
| Neighborhood: | Cycle 3 | Map ID: | 300 |
| Neighborhood CD: | 3 |
Owner |
| Name: | GRAFF, BRADLEY G | Owner ID: | 290007 |
| Mailing Address: | LISA A GRAFF 4891 SCURLOCK RD FREELAND, WA 98249 | % Ownership: | 100.0000000000% |
| | | Exemptions: | |
Taxes and Assessment Details
Values
| (+) Improvement Homesite Value: | + | $0 | |
| (+) Improvement Non-Homesite Value: | + | $369,494 | |
| (+) Land Homesite Value: | + | $0 | |
| (+) Land Non-Homesite Value: | + | $400,000 | |
| (+) Curr Use (HS): | + | $0 | $0 |
| (+) Curr Use (NHS): | + | $0 | $0 |
| | | -------------------------- | |
| (=) Market Value: | = | $769,494 | |
| (–) Productivity Loss: | – | $0 | |
| | | -------------------------- | |
| (=) Subtotal: | = | $769,494 | |
| (+) Senior Appraised Value: | + | $0 | |
| (+) Non-Senior Appraised Value: | + | $769,494 | |
| | | -------------------------- | |
| (=) Total Appraised Value: | = | $769,494 | |
| (–) Senior Exemption Loss: | – | $0 | |
| (–) Exemption Loss: | – | $0 | |
| | | -------------------------- | |
| (=) Taxable Value: | = | $769,494 | |
Taxing Jurisdiction
| Owner: | GRAFF, BRADLEY G | | |
| % Ownership: | 100.0000000000% | | |
| Total Value: | $769,494 | | |
| Tax Area: | 780 - APPRAISER-S Whid Schl Dist, Special District, improved & less than 1 acre |
| CF | Conservation Futures | 0.0316035091 | $769,494 | $769,494 | $24.32 | | |
| FIRE3 | Fire & Rescue Dist #3 S Whidbey GEN | 1.2004855531 | $769,494 | $769,494 | $923.77 | | |
| HOBOND | Hospital BOND | 0.1910887512 | $769,494 | $769,494 | $147.04 | | |
| HOGEN | Hospital GEN | 0.3902502903 | $769,494 | $769,494 | $300.30 | | |
| CE | County Current Expense | 0.3708482477 | $769,494 | $769,494 | $285.37 | | |
| CR | County Roads | 0.4584763726 | $769,494 | $769,494 | $352.79 | | |
| ISLANDEMS | Hospital GEN (EMS) | 0.5000000000 | $769,494 | $769,494 | $384.75 | | |
| LIB | Library Sno-Isle GEN | 0.3153421757 | $769,494 | $769,494 | $242.65 | | |
| PORTWHID | Port of S Whidbey GEN | 0.1094540357 | $769,494 | $769,494 | $84.22 | | |
| SCH206BOND | School 206 BOND | 0.3161759235 | $769,494 | $769,494 | $243.30 | | |
| SCH206MO | School 206 Enrichment | 0.4547169547 | $769,494 | $769,494 | $349.90 | | |
| ST | State School | 1.3035497053 | $769,494 | $769,494 | $1,003.07 | | |
| ST2 | State School Part 2 | 0.8169543533 | $769,494 | $769,494 | $628.64 | | |
| SWHIDPRBD | P & R S Whidbey BOND | 0.0152817568 | $769,494 | $769,494 | $11.76 | | |
| SWHIDPRBD2 | P & R S Whidbey BOND2 | 0.0138911264 | $769,494 | $769,494 | $10.69 | | |
| SWHIDPRMT | P & R S Whidbey GEN | 0.2053334452 | $769,494 | $769,494 | $158.00 | | |
| | Total Tax Rate: | 6.6934522006 | | | | | |
| | | | | Taxes w/Current Exemptions: | $5,150.57 | | |
| | | | | Taxes w/o Exemptions: | $5,150.57 | | |
Improvement / Building
| Improvement #1: | RESIDENTIAL | State Code: | Y | 870.0 sqft | Value: | $140,169 |
| Bathrooms: | 1 | Bedrooms: | 2 | | Ceiling: | DRYWALL PAINTED | Exterior Wall/Cover: | VINYL | | Floor Covering: | CARPET/VINYL 80-20 | Floor Structure: | WOOD W/SUBFLOOR | | Foundation: | CONCRETE BLOCKS | Heating: | B/B HOT WATER-OIL | | Interior Finish: | DRYWALL PAINT | Plumbing Fixture Cnt: | 6 | | Roof Slope: | 6" IN 12" | Roof Structure/Cover: | CJ ASPHALT |
|
| | Type | Description | Class CD | Sub Class CD | Year Built | Area |
| | BAS | BASE/MAIN FLOOR | 3 | 0 | 1933 | 870.0 |
| | ATF | ATTIC FINISHED | 3 | 0 | 1933 | 260.0 |
| | OWP | OPEN WOOD PORCH W/STEPS | 3 | 0 | 1933 | 192.0 |
| | DGR | DETACHED GARAGE | 3 | 0 | 1933 | 336.0 |
| Improvement #2: | RESIDENTIAL | State Code: | Y | 762.0 sqft | Value: | $229,325 |
| Bathrooms: | 1 | Bedrooms: | 0 | | Ceiling: | DRYWALL PAINTED | Cooling: | HEAT PUMP/CONV/V | | Exterior Wall/Cover: | WOOD SIDING | Floor Covering: | CARPET/VINYL 80-20 | | Floor Structure: | WOOD W/SUBFLOOR | Foundation: | SLAB | | Interior Finish: | DRYWALL PAINT | Plumbing Fixture Cnt: | 4 | | Roof Slope: | 8" IN 12" | Roof Structure/Cover: | CJ ALUMINIUM HEAVY |
|
| | Type | Description | Class CD | Sub Class CD | Year Built | Area |
| | BAS | BASE/MAIN FLOOR | 3 | 0 | 2022 | 762.0 |
| | BIG | BUILT IN GARAGE | 3 | 0 | 2022 | 1120.0 |
Sketch
Property Image
Land
| 1 | 15 | SQ (12001-21780) | 0.3500 | 15246.00 | 0.00 | 0.00 | 1.00 | $400,000 | $0 |
Roll Value History
| 2026 | N/A | N/A | N/A | N/A | N/A |
| 2025 | $369,494 | $400,000 | $0 | $769,494 | $769,494 |
| 2024 | $367,959 | $380,000 | $0 | $747,959 | $747,959 |
| 2023 | $315,351 | $360,000 | $0 | $675,351 | $675,351 |
| 2022 | $113,955 | $330,000 | $0 | $443,955 | $443,955 |
| 2021 | $123,105 | $280,000 | $0 | $403,105 | $403,105 |
| 2020 | $120,251 | $260,000 | $0 | $380,251 | $380,251 |
| 2019 | $64,118 | $200,000 | $0 | $264,118 | $264,118 |
| 2018 | $64,402 | $150,000 | $0 | $214,402 | $214,402 |
| 2017 | $64,969 | $150,000 | $0 | $214,969 | $214,969 |
| 2016 | $66,102 | $150,000 | $0 | $216,102 | $216,102 |
| 2015 | $67,237 | $150,000 | $0 | $217,237 | $217,237 |
| 2014 | $68,370 | $124,000 | $0 | $192,370 | $192,370 |
| 2013 | $69,503 | $119,000 | $0 | $188,503 | $188,503 |
| 2012 | $70,637 | $119,000 | $0 | $189,637 | $189,637 |
| 2011 | $71,771 | $140,000 | $0 | $211,771 | $211,771 |
| 2010 | $77,022 | $140,000 | $0 | $217,022 | $217,022 |
| 2009 | $80,410 | $200,000 | $0 | $280,410 | $280,410 |
| 2008 | $81,639 | $230,000 | $0 | $311,639 | $311,639 |
| 2007 | $83,003 | $230,000 | $0 | $313,003 | $313,003 |
Deed and Sales History
| 1 | 05/24/2019 | WD | Warranty Deed | ROSETH, ROBERT | GRAFF, BRADLEY G | | | $394,000.00 | 38755 | 4464408 |
| 2 | 07/12/2005 | WD | Warranty Deed | ROSETH, KATHERINE D | ROSETH, ROBERT | | | $58,099.00 | 53712 | 4142686 |
| 3 | 09/01/1995 | QCD | Quit Claim Deed | ROSETH, ROBERT M | ROSETH, KATHERINE D | | | $52,667.00 | 53201 | 95014752 |
| 4 | 11/01/1989 | WD | Warranty Deed | SARATOGA, DESIGN | ROSETH, ROBERT M | | | $112,000.00 | 95366 | 89017206 |
| 5 | 10/01/1988 | WD | Warranty Deed | GORDON, ANN D | SARATOGA, DESIGN | | | $70,000.00 | 83434 | 88012865 |
| 6 | 08/01/1971 | EXECUTORD | Executor Deed | GORDON, ANN D | GORDON, ANN D | | | $0.00 | 43898 | 0 |
| 7 | 01/01/1900 | OTHER | Other - Misc. Documents | Unknown | GORDON, ANN D | | | $0.00 | 0 | 0 |
Payout Agreement
| No payout information available.. |