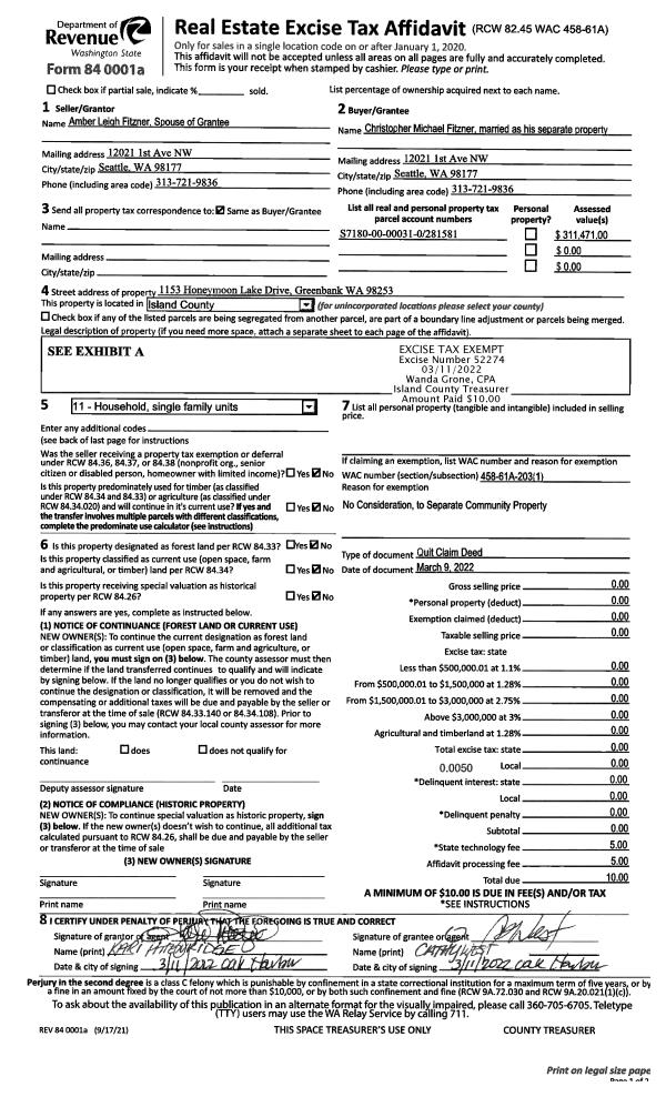
Property
Account |
| Property ID: | 482819 | Abbreviated Legal Description: | IN NW SE BG SE CR NW NE N1* W324.27' TPB CONT N1*W355. 26' N53*W217.51' ALG CUR/L 39.27' S36*W158.06' S48* W200.04' N41*W128.92' S89* W122.6' S1*E325.06' N89* E662.28' TPB TGW SUB EZ FR 1643290 |
| Geographic ID: | R33014-180-3600 | Agent Code: | |
| Type: | Real | | |
| Tax Area: | 542 - APPRAISER-Stan/Cam Schl Dist, Special Dist, improved, greater than 1 acre | Land Use Code | 11 |
| Open Space: | N | DFL | N |
| Historic Property: | N | Remodel Property: | N |
| Multi-Family Redevelopment: | N | | |
| Township: | 30 | Section: | 14 |
| Range: | R3 |
Location |
| Address: | 1872 TAMARACK LN CAMANO ISLAND, WA 98282 | Mapsco: | |
| Neighborhood: | 58SofTamarackAC | Map ID: | 870 |
| Neighborhood CD: | 58RstamAC |
Owner |
| Name: | CROWN, RONALD S | Owner ID: | 283384 |
| Mailing Address: | FRANCES A CROWN 1872 TAMARACK LN CAMANO ISLAND, WA 98282 | % Ownership: | 100.0000000000% |
| | | Exemptions: | |
Taxes and Assessment Details
Values
| (+) Improvement Homesite Value: | + | $0 | |
| (+) Improvement Non-Homesite Value: | + | $357,629 | |
| (+) Land Homesite Value: | + | $0 | |
| (+) Land Non-Homesite Value: | + | $320,000 | |
| (+) Curr Use (HS): | + | $0 | $0 |
| (+) Curr Use (NHS): | + | $0 | $0 |
| | | -------------------------- | |
| (=) Market Value: | = | $677,629 | |
| (–) Productivity Loss: | – | $0 | |
| | | -------------------------- | |
| (=) Subtotal: | = | $677,629 | |
| (+) Senior Appraised Value: | + | $0 | |
| (+) Non-Senior Appraised Value: | + | $677,629 | |
| | | -------------------------- | |
| (=) Total Appraised Value: | = | $677,629 | |
| (–) Senior Exemption Loss: | – | $0 | |
| (–) Exemption Loss: | – | $0 | |
| | | -------------------------- | |
| (=) Taxable Value: | = | $677,629 | |
Taxing Jurisdiction
| Owner: | CROWN, RONALD S | | |
| % Ownership: | 100.0000000000% | | |
| Total Value: | $677,629 | | |
| Tax Area: | 542 - APPRAISER-Stan/Cam Schl Dist, Special Dist, improved, greater than 1 acre |
| CF | Conservation Futures | 0.0316035091 | $677,629 | $677,629 | $21.42 | | |
| EMS1 | Fire & Rescue Dist #1 Camano GEN (EMS) | 0.3677864386 | $677,629 | $677,629 | $249.22 | | |
| FIRE1 | Fire & Rescue Dist #1 Camano GEN | 1.2502910536 | $677,629 | $677,629 | $847.23 | | |
| FIRE1BOND | Fire & Rescue Dist #1 Camano BOND | 0.1570001679 | $677,629 | $677,629 | $106.39 | | |
| CE | County Current Expense | 0.3708482477 | $677,629 | $677,629 | $251.30 | | |
| CR | County Roads | 0.4584763726 | $677,629 | $677,629 | $310.68 | | |
| LCIB | Library Sno-Isle BOND (Camano Island) | 0.0396325772 | $677,629 | $677,629 | $26.86 | | |
| LIB | Library Sno-Isle GEN | 0.3153421757 | $677,629 | $677,629 | $213.69 | | |
| SCH205_401 | School 205-401 Enrichment | 1.2698420524 | $677,629 | $677,629 | $860.48 | | |
| SCH205BOND | School 205-401 BOND | 0.9396497583 | $677,629 | $677,629 | $636.73 | | |
| ST | State School | 1.3035497053 | $677,629 | $677,629 | $883.32 | | |
| ST2 | State School Part 2 | 0.8169543533 | $677,629 | $677,629 | $553.59 | | |
| | Total Tax Rate: | 7.3209764117 | | | | | |
| | | | | Taxes w/Current Exemptions: | $4,960.91 | | |
| | | | | Taxes w/o Exemptions: | $4,960.91 | | |
Improvement / Building
| Improvement #1: | MANUFACTURED HOME | State Code: | Y | 2160.0 sqft | Value: | $357,629 |
| Bathrooms: | 2 | Bedrooms: | 3 | | Ceiling: | PLASTER PAINTED | Cooling: | EVAP NO DUCT | | Exterior Wall/Cover: | VINYL | Floor Covering: | CARPET 100% | | Floor Structure: | SLAB ON GRADE | Foundation: | SLAB | | Heating: | FHA ELECTRIC | Interior Finish: | PLASTER | | Plumbing Fixture Cnt: | 12 | Roof Slope: | FLAT | | Roof Structure/Cover: | CJ ALUMINIUM HEAVY |   |   |
|
| | Type | Description | Class CD | Sub Class CD | Year Built | Area |
| | BAS | BASE/MAIN FLOOR | 5 | 0 | 2002 | 2160.0 |
| | OWC | OPEN WOOD PORCH W/STEPS/ROOF/C | 5 | 0 | 2002 | 126.2 |
| | OWP | OPEN WOOD PORCH W/STEPS | 5 | 0 | 2002 | 336.0 |
| | UTY | STORAGE/UTILITY | 5 | 0 | 2002 | 144.0 |
| | UTY | STORAGE/UTILITY | 5 | 0 | 2002 | 96.0 |
| | UTY | STORAGE/UTILITY | 5 | 0 | 2002 | 120.0 |
| | UTY | STORAGE/UTILITY | 5 | 0 | 2020 | 864.0 |
Sketch
Property Image
Land
| 1 | 32 | AC (03.01-09.99) | 5.4600 | 237837.60 | 0.00 | 0.00 | 1.00 | $320,000 | $0 |
Roll Value History
| 2026 | N/A | N/A | N/A | N/A | N/A |
| 2025 | $357,629 | $320,000 | $0 | $677,629 | $677,629 |
| 2024 | $366,247 | $280,000 | $0 | $646,247 | $646,247 |
| 2023 | $322,227 | $260,000 | $0 | $582,227 | $582,227 |
| 2022 | $295,152 | $210,000 | $0 | $505,152 | $505,152 |
| 2021 | $231,266 | $160,000 | $0 | $391,266 | $391,266 |
| 2020 | $229,858 | $150,000 | $0 | $379,858 | $379,858 |
| 2019 | $166,560 | $200,000 | $0 | $366,560 | $366,560 |
| 2018 | $168,495 | $165,000 | $0 | $333,495 | $333,495 |
| 2017 | $89,429 | $150,000 | $0 | $239,429 | $239,429 |
| 2016 | $91,693 | $130,000 | $0 | $221,693 | $221,693 |
| 2015 | $96,657 | $84,000 | $0 | $180,657 | $180,657 |
| 2014 | $98,500 | $84,000 | $0 | $182,500 | $182,500 |
| 2013 | $99,422 | $91,728 | $0 | $191,150 | $191,150 |
| 2012 | $100,343 | $91,728 | $0 | $192,071 | $192,071 |
| 2011 | $102,187 | $93,000 | $0 | $195,187 | $195,187 |
| 2010 | $104,727 | $93,000 | $0 | $197,727 | $197,727 |
| 2009 | $102,638 | $120,000 | $0 | $222,638 | $222,638 |
| 2008 | $105,275 | $110,000 | $0 | $215,275 | $215,275 |
| 2007 | $108,784 | $110,000 | $0 | $218,784 | $218,784 |
Deed and Sales History
| 1 | 12/18/2017 | WD | Warranty Deed | STINEMATES, JOHN | CROWN, RONALD S | | | $340,000.00 | 32391 | 4436268 |
| 2 | 05/18/2017 | WD | Warranty Deed | STINEMATES, JOHN | STINEMATES, JOHN | | | $0.00 | 29547 | 4423516 |
| 3 | 05/18/2017 | WD | Warranty Deed | SCHUMACHER, WILLIAM L | STINEMATES, JOHN | | | $135,000.00 | 29465 | 4423210 |
| 4 | 02/05/2001 | WD | Warranty Deed | EAST, CALVIN D | SCHUMACHER, WILLIAM L | | | $39,000.00 | 10448 | 20025358 |
| 5 | 04/01/1992 | QCD | Quit Claim Deed | DAVENPORT, 1990 F | EAST, CALVIN D | | | $0.00 | 21794 | 92008551 |
| 6 | 09/01/1991 | QCD | Quit Claim Deed | DAVENPORT, LYLE S | DAVENPORT, 1990 F | | | $0.00 | 13350 | 91014208 |
| 7 | 01/01/1900 | OTHER | Other - Misc. Documents | Unknown | DAVENPORT, LYLE S | | | $0.00 | 0 | 0 |
Payout Agreement
| No payout information available.. |