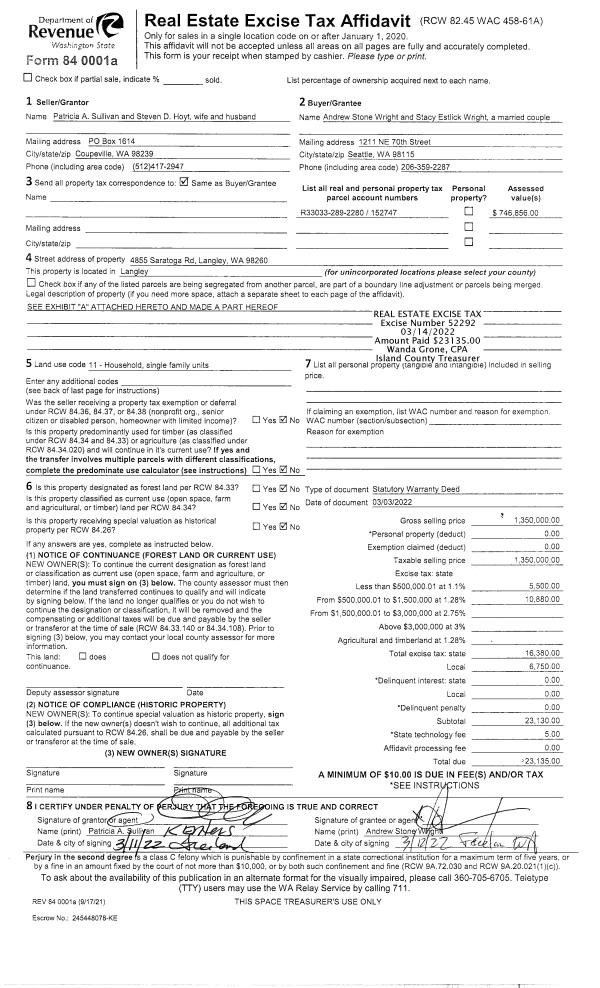
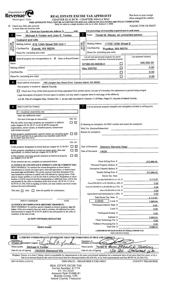
Property
Account |
| Property ID: | 482944 | Abbreviated Legal Description: | E/2 NE SE NE EX RD FR 3284650 |
| Geographic ID: | R33106-360-5100 | Agent Code: | |
| Type: | Real | | |
| Tax Area: | 592 - APPRAISER-Stan/Cam Schl Dist, Special Dist, improved, greater than 1 acre | Land Use Code | 11 |
| Open Space: | N | DFL | N |
| Historic Property: | N | Remodel Property: | N |
| Multi-Family Redevelopment: | N | | |
| Township: | 31 | Section: | 06 |
| Range: | R3 |
Location |
| Address: | 396 RUSSELL RD CAMANO ISLAND, WA 98282 | Mapsco: | |
| Neighborhood: | Cycle 5 | Map ID: | 921 |
| Neighborhood CD: | 5 |
Owner |
| Name: | GRIFFITH, LESLIE | Owner ID: | 297746 |
| Mailing Address: | JAMES FLEMING 396 RUSSELL RD CAMANO ISLAND, WA 98282 | % Ownership: | 100.0000000000% |
| | | Exemptions: | |
Taxes and Assessment Details
Values
| (+) Improvement Homesite Value: | + | $0 | |
| (+) Improvement Non-Homesite Value: | + | $494,390 | |
| (+) Land Homesite Value: | + | $0 | |
| (+) Land Non-Homesite Value: | + | $360,000 | |
| (+) Curr Use (HS): | + | $0 | $0 |
| (+) Curr Use (NHS): | + | $0 | $0 |
| | | -------------------------- | |
| (=) Market Value: | = | $854,390 | |
| (–) Productivity Loss: | – | $0 | |
| | | -------------------------- | |
| (=) Subtotal: | = | $854,390 | |
| (+) Senior Appraised Value: | + | $0 | |
| (+) Non-Senior Appraised Value: | + | $854,390 | |
| | | -------------------------- | |
| (=) Total Appraised Value: | = | $854,390 | |
| (–) Senior Exemption Loss: | – | $0 | |
| (–) Exemption Loss: | – | $0 | |
| | | -------------------------- | |
| (=) Taxable Value: | = | $854,390 | |
Taxing Jurisdiction
| Owner: | GRIFFITH, LESLIE | | |
| % Ownership: | 100.0000000000% | | |
| Total Value: | $854,390 | | |
| Tax Area: | 592 - APPRAISER-Stan/Cam Schl Dist, Special Dist, improved, greater than 1 acre |
| CF | Conservation Futures | 0.0316035091 | $854,390 | $854,390 | $27.00 | | |
| EMS1 | Fire & Rescue Dist #1 Camano GEN (EMS) | 0.3677864386 | $854,390 | $854,390 | $314.23 | | |
| FIRE1 | Fire & Rescue Dist #1 Camano GEN | 1.2502910536 | $854,390 | $854,390 | $1,068.24 | | |
| FIRE1BOND | Fire & Rescue Dist #1 Camano BOND | 0.1570001679 | $854,390 | $854,390 | $134.14 | | |
| CE | County Current Expense | 0.3708482477 | $854,390 | $854,390 | $316.85 | | |
| CR | County Roads | 0.4584763726 | $854,390 | $854,390 | $391.72 | | |
| LCIB | Library Sno-Isle BOND (Camano Island) | 0.0396325772 | $854,390 | $854,390 | $33.86 | | |
| LIB | Library Sno-Isle GEN | 0.3153421757 | $854,390 | $854,390 | $269.43 | | |
| SCH205_401 | School 205-401 Enrichment | 1.2698420524 | $854,390 | $854,390 | $1,084.94 | | |
| SCH205BOND | School 205-401 BOND | 0.9396497583 | $854,390 | $854,390 | $802.83 | | |
| ST | State School | 1.3035497053 | $854,390 | $854,390 | $1,113.74 | | |
| ST2 | State School Part 2 | 0.8169543533 | $854,390 | $854,390 | $698.00 | | |
| | Total Tax Rate: | 7.3209764117 | | | | | |
| | | | | Taxes w/Current Exemptions: | $6,254.98 | | |
| | | | | Taxes w/o Exemptions: | $6,254.98 | | |
Improvement / Building
| Improvement #1: | RESIDENTIAL | State Code: | Y | 2193.7 sqft | Value: | $494,390 |
| Bathrooms: | 2.5 | Bedrooms: | 3 | | Ceiling: | DRYWALL PAINTED | Cooling: | HEAT PUMP/CONV/V | | Exterior Wall/Cover: | PLY/HARDBOARD T-111 | Floor Covering: | VINYL 100% | | Floor Structure: | WOOD W/SUBFLOOR | Foundation: | CONCRETE | | Interior Finish: | DRYWALL PAINT | Plumbing Fixture Cnt: | 12 | | Roof Slope: | 6" IN 12" | Roof Structure/Cover: | CJ ASPHALT |
|
| | Type | Description | Class CD | Sub Class CD | Year Built | Area |
| | BAS | BASE/MAIN FLOOR | 4 | 0 | 2000 | 2193.7 |
| | AGR | ATTACHED GARAGE | 4 | 0 | 2000 | 677.6 |
| | OWP | OPEN WOOD PORCH W/STEPS | 4 | 0 | 2000 | 783.8 |
| | OWC | OPEN WOOD PORCH W/STEPS/ROOF/C | 4 | 0 | 2000 | 23.2 |
| | oOBD | Out Buildings | 4 | 0 | 2000 | 0.0 |
Sketch
Property Image
Land
| 1 | 32 | AC (03.01-09.99) | 4.8500 | 0.00 | 0.00 | 0.00 | 1.00 | $360,000 | $0 |
Roll Value History
| 2026 | N/A | N/A | N/A | N/A | N/A |
| 2025 | $494,390 | $360,000 | $0 | $854,390 | $854,390 |
| 2024 | $499,955 | $340,000 | $0 | $839,955 | $839,955 |
| 2023 | $505,520 | $320,000 | $0 | $825,520 | $825,520 |
| 2022 | $464,683 | $300,000 | $0 | $764,683 | $764,683 |
| 2021 | $411,060 | $230,000 | $0 | $641,060 | $641,060 |
| 2020 | $315,046 | $190,000 | $0 | $505,046 | $505,046 |
| 2019 | $245,626 | $220,000 | $0 | $465,626 | $465,626 |
| 2018 | $246,272 | $190,000 | $0 | $436,272 | $436,272 |
| 2017 | $247,500 | $150,000 | $0 | $397,500 | $397,500 |
| 2016 | $250,086 | $135,000 | $0 | $385,086 | $385,086 |
| 2015 | $234,626 | $135,000 | $0 | $369,626 | $369,626 |
| 2014 | $237,065 | $135,000 | $0 | $372,065 | $372,065 |
| 2013 | $252,672 | $108,640 | $0 | $361,312 | $361,312 |
| 2012 | $254,443 | $108,640 | $0 | $363,083 | $363,083 |
| 2011 | $257,005 | $135,800 | $0 | $392,805 | $392,805 |
| 2010 | $268,956 | $135,800 | $0 | $404,756 | $404,756 |
| 2009 | $280,246 | $155,200 | $0 | $435,446 | $435,446 |
| 2008 | $280,885 | $208,550 | $0 | $489,435 | $489,435 |
| 2007 | $281,841 | $143,075 | $0 | $424,916 | $424,916 |
Deed and Sales History
| 1 | 01/13/2021 | WD | Warranty Deed | ROGERS, KEITH | GRIFFITH, LESLIE | | | $625,000.00 | 46579 | 4508222 |
| 2 | 10/16/2019 | WD | Warranty Deed | MEYER, TERRY J | ROGERS, KEITH | | | $258,180.00 | 40822 | 4474014 |
| 3 | 02/17/2012 | WD | Warranty Deed | BERRY TRUSTEE, ROBERT | MEYER, TERRY J | | | $258,000.00 | 6987 | 4310707 |
| 4 | 10/12/2011 | QCD | Quit Claim Deed | FULLERTON, JOSEPHINE | BERRY TRUSTEE, ROBERT | | | $0.00 | 6383 | 4306367 |
| 5 | 04/08/2002 | 5 | DNU - Marriage License/Name Change | FULLERTON, ROBERT S | FULLERTON, JODEPHINE | | | $0.00 | 69364 | 0 |
| 6 | 06/07/1999 | WD | Warranty Deed | KEARLEY, BENNIE S | FULLERTON, ROBERT S | | | $69,000.00 | 92233 | 99013888 |
| 7 | 06/01/1986 | WD | Warranty Deed | BEVER, BRADD W | KEARLEY, BENNIE S | | | $18,000.00 | 61624 | 86007639 |
| 8 | 08/01/1979 | EXECUTORD | Executor Deed | MCLEOD, RAY | BEVER, BRADD W | | | $15,950.00 | 94290 | 357998 |
| 9 | 05/01/1979 | CD | DNU - Correction Deed | MCGUIRE, JOHN J | MCLEOD, RAY | | | $0.00 | 92152 | 352072 |
| 10 | 07/01/1979 | CD | DNU - Correction Deed | Unknown | MCGUIRE, JOHN J | | | $0.00 | 93334 | 355355 |
Payout Agreement
| No payout information available.. |