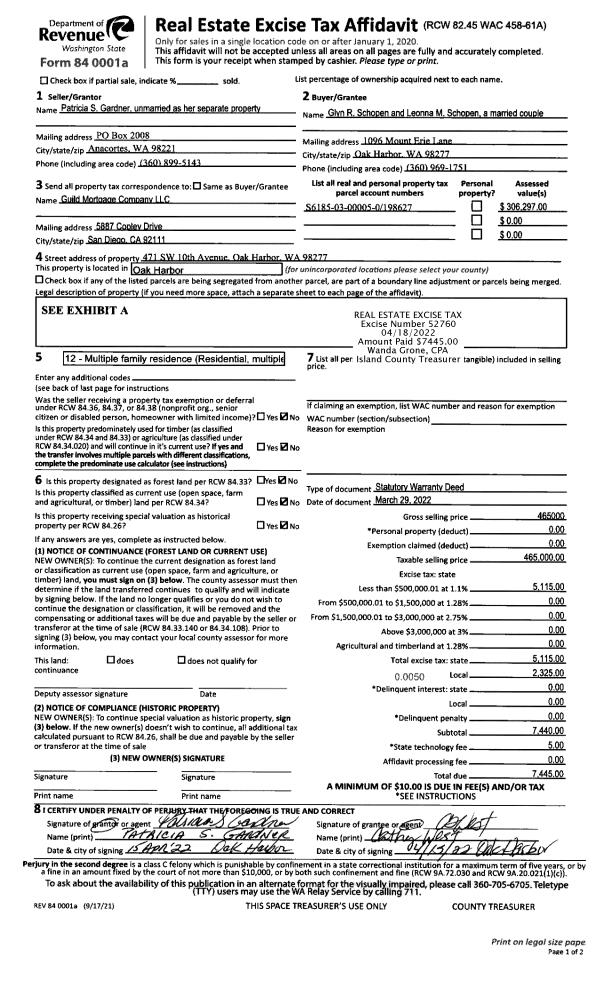
| 1 | 07/03/2020 | WD | Warranty Deed | CANTERBURY-LUCIA, VICTORIA E | ISLAND COUNTY PUBLIC WORKS | | | $0.00 | 44181 | 4493533 |
| 2 | 03/22/2012 | ESTSEPPROP | Establish Separate Property | CANTERBURY-LUCIA, VICTORIA E | CANTERBURY-LUCIA, VICTORIA E | | | $0.00 | 7221 | 4312437 |
| 3 | 03/16/2012 | QCD | Quit Claim Deed | CANTERBURY-LUCIA, VICTORIA E | CANTERBURY-LUCIA, VICTORIA E | | | $0.00 | 7220 | 4312436 |
| 4 | 03/16/2010 | DECREE | Divorce Decree/Legal Separation | CANTERBURY, ROBERT/SHIRLEY | CANTERBURY-LUCIA, VICTORIA E | | | $0.00 | 3512 | 4289698 |
| 5 | 04/18/2001 | WD | Warranty Deed | LOVE, STEVEN G | CANTERBURY, ROBERT B | | | $285,000.00 | 11450 | 20030857 |
| 6 | 10/01/1993 | QCD | Quit Claim Deed | FORD, HOWARD E | LOVE, STEVEN G | | | $0.00 | 34417 | 93023074 |
| 7 | 06/01/1992 | QCD | Quit Claim Deed | FORD, HOWARD E | FORD, HOWARD E | | | $0.00 | 22201 | 92010614 |
| 8 | 11/01/1989 | REC | Real Estate Contract | HOHMAN, WILLIAM A | FORD, HOWARD E | | | $32,000.00 | 95148 | 89016579 |
| 9 | 03/01/1988 | QCD | Quit Claim Deed | DICKEY, MARTIN L | HOHMAN, WILLIAM A | | | $0.00 | 80967 | 88003729 |
| 10 | 10/01/1981 | EXECUTORD | Executor Deed | HOHMAN, WILLIAM A | DICKEY, MARTIN L | | | $32,500.00 | 13321 | 389347 |
| 11 | 05/01/1980 | EXECUTORD | Executor Deed | HOHMAN, WILLIAM A | HOHMAN, WILLIAM A | | | $25,000.00 | 59232 | 368691 |
| 12 | 07/01/1979 | EXECUTORD | Executor Deed | HERSHAW, WILLIAM C | HOHMAN, WILLIAM A | | | $25,000.00 | 93487 | 355771 |
| 13 | 06/01/1978 | OTHER | Other - Misc. Documents | Unknown | HERSHAW, WILLIAM C | | | $35,000.00 | 83017 | 335243 |