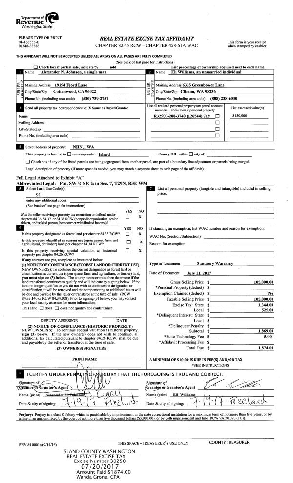
Property
Account |
| Property ID: | 48424 | Abbreviated Legal Description: | 36 - IN GL4: BG NECR GL4 S492' W510' TPB W150' S TO ML SELY ALG ML TP S OF TPB N TPB INCL ADJ TIDES TGW EZ |
| Geographic ID: | R22908-073-4710 | Agent Code: | |
| Type: | Real | | |
| Tax Area: | 719 - APPRAISER-S Whid Schl Dist, outside Langley, vacant & 50 acres or less | Land Use Code | 91 |
| Open Space: | N | DFL | N |
| Historic Property: | N | Remodel Property: | N |
| Multi-Family Redevelopment: | N | | |
| Township: | 29 | Section: | 08 |
| Range: | R2 |
Location |
| Address: | | Mapsco: | |
| Neighborhood: | Cycle 3 | Map ID: | 302 |
| Neighborhood CD: | 3 |
Owner |
| Name: | PONG, ALEXIS | Owner ID: | 279895 |
| Mailing Address: | 12524 ROOSEVELT RD SNOHOMISH, WA 98290 | % Ownership: | 100.0000000000% |
| | | Exemptions: | |
Taxes and Assessment Details
Values
| (+) Improvement Homesite Value: | + | $0 | |
| (+) Improvement Non-Homesite Value: | + | $0 | |
| (+) Land Homesite Value: | + | $0 | |
| (+) Land Non-Homesite Value: | + | $30,000 | |
| (+) Curr Use (HS): | + | $0 | $0 |
| (+) Curr Use (NHS): | + | $0 | $0 |
| | | -------------------------- | |
| (=) Market Value: | = | $30,000 | |
| (–) Productivity Loss: | – | $0 | |
| | | -------------------------- | |
| (=) Subtotal: | = | $30,000 | |
| (+) Senior Appraised Value: | + | $0 | |
| (+) Non-Senior Appraised Value: | + | $30,000 | |
| | | -------------------------- | |
| (=) Total Appraised Value: | = | $30,000 | |
| (–) Senior Exemption Loss: | – | $0 | |
| (–) Exemption Loss: | – | $0 | |
| | | -------------------------- | |
| (=) Taxable Value: | = | $30,000 | |
Taxing Jurisdiction
| Owner: | PONG, ALEXIS | | |
| % Ownership: | 100.0000000000% | | |
| Total Value: | $30,000 | | |
| Tax Area: | 719 - APPRAISER-S Whid Schl Dist, outside Langley, vacant & 50 acres or less |
| CF | Conservation Futures | 0.0316035091 | $30,000 | $30,000 | $0.95 | | |
| HOBOND | Hospital BOND | 0.1910887512 | $30,000 | $30,000 | $5.73 | | |
| HOGEN | Hospital GEN | 0.3902502903 | $30,000 | $30,000 | $11.71 | | |
| CE | County Current Expense | 0.3708482477 | $30,000 | $30,000 | $11.13 | | |
| CR | County Roads | 0.4584763726 | $30,000 | $30,000 | $13.75 | | |
| ISLANDEMS | Hospital GEN (EMS) | 0.5000000000 | $30,000 | $30,000 | $15.00 | | |
| LIB | Library Sno-Isle GEN | 0.3153421757 | $30,000 | $30,000 | $9.46 | | |
| PORTWHID | Port of S Whidbey GEN | 0.1094540357 | $30,000 | $30,000 | $3.28 | | |
| SCH206BOND | School 206 BOND | 0.3161759235 | $30,000 | $30,000 | $9.49 | | |
| SCH206MO | School 206 Enrichment | 0.4547169547 | $30,000 | $30,000 | $13.64 | | |
| ST | State School | 1.3035497053 | $30,000 | $30,000 | $39.11 | | |
| ST2 | State School Part 2 | 0.8169543533 | $30,000 | $30,000 | $24.51 | | |
| SWHIDPRBD | P & R S Whidbey BOND | 0.0152817568 | $30,000 | $30,000 | $0.46 | | |
| SWHIDPRBD2 | P & R S Whidbey BOND2 | 0.0138911264 | $30,000 | $30,000 | $0.42 | | |
| SWHIDPRMT | P & R S Whidbey GEN | 0.2053334452 | $30,000 | $30,000 | $6.16 | | |
| | Total Tax Rate: | 5.4929666475 | | | | | |
| | | | | Taxes w/Current Exemptions: | $164.80 | | |
| | | | | Taxes w/o Exemptions: | $164.80 | | |
Improvement / Building
Sketch
| No sketches available for this property. |
Property Image
Land
| 1 | HB | HIGH BLUFF | 0.0000 | 0.00 | 150.00 | 0.00 | 1.00 | $30,000 | $0 |
Roll Value History
| 2026 | N/A | N/A | N/A | N/A | N/A |
| 2025 | $0 | $30,000 | $0 | $30,000 | $30,000 |
| 2024 | $0 | $50,000 | $0 | $50,000 | $50,000 |
| 2023 | $0 | $50,000 | $0 | $50,000 | $50,000 |
| 2022 | $0 | $50,000 | $0 | $50,000 | $50,000 |
| 2021 | $0 | $50,000 | $0 | $50,000 | $50,000 |
| 2020 | $0 | $50,000 | $0 | $50,000 | $50,000 |
| 2019 | $0 | $50,000 | $0 | $50,000 | $50,000 |
| 2018 | $0 | $50,000 | $0 | $50,000 | $50,000 |
| 2017 | $0 | $40,345 | $0 | $40,345 | $40,345 |
| 2016 | $0 | $40,345 | $0 | $40,345 | $40,345 |
| 2015 | $0 | $40,345 | $0 | $40,345 | $40,345 |
| 2014 | $0 | $40,345 | $0 | $40,345 | $40,345 |
| 2013 | $0 | $40,345 | $0 | $40,345 | $40,345 |
| 2012 | $0 | $40,345 | $0 | $40,345 | $40,345 |
| 2011 | $0 | $40,345 | $0 | $40,345 | $40,345 |
| 2010 | $0 | $40,345 | $0 | $40,345 | $40,345 |
| 2009 | $0 | $48,413 | $0 | $48,413 | $48,413 |
| 2008 | $0 | $51,366 | $0 | $51,366 | $51,366 |
| 2007 | $0 | $50,250 | $0 | $50,250 | $50,250 |
Deed and Sales History
| 1 | 04/29/2017 | QCD | Quit Claim Deed | UNIFIED HOME INDUSTRIES | PONG, ALEXIS | | | $0.00 | 29289 | 4422519 |
| 2 | 03/25/2013 | QCD | Quit Claim Deed | PONG, ALEXIS | UNIFIED HOME INDUSTRIES | | | $0.00 | 10867 | 4336658 |
| 3 | 01/04/2007 | WD | Warranty Deed | SANDAL, ROBERT J | PONG, ALEXIS | | | $50,000.00 | 70617 | 4195013 |
| 4 | 02/15/2001 | WD | Warranty Deed | STANDINGER, MICHAEL C | SANDAL, ROBERT J | | | $55,000.00 | 10647 | 20026355 |
| 5 | 09/01/1988 | WD | Warranty Deed | HEWSON, TERI D | STANDINGER, MICHAEL C | | | $12,500.00 | 83367 | 88012589 |
| 6 | 09/01/1984 | WD | Warranty Deed | ANDREWS, S T | HEWSON, TERI D | | | $0.00 | 42899 | 84003959 |
| 7 | 06/01/1979 | EXECUTORD | Executor Deed | HEWSON, TERI D | ANDREWS, S T | | | $36,000.00 | 93089 | 354596 |
| 8 | 01/01/1900 | OTHER | Other - Misc. Documents | Unknown | HEWSON, TERI D | | | $0.00 | 0 | 0 |
Payout Agreement
| No payout information available.. |