Property
Account |
| Property ID: | 48656 | Abbreviated Legal Description: | 33 - N464.66'OF W/2 E/2 W/2 NE SE EX RD |
| Geographic ID: | R22908-237-4380 | Agent Code: | |
| Type: | Real | | |
| Tax Area: | 712 - APPRAISER-S Whid Schl Dist, outside Langley, improved, greater than 1 acre | Land Use Code | 11 |
| Open Space: | N | DFL | N |
| Historic Property: | N | Remodel Property: | N |
| Multi-Family Redevelopment: | N | | |
| Township: | 29 | Section: | 08 |
| Range: | R2 |
Location |
| Address: | 730 BUSH POINT RD FREELAND, WA 98249 | Mapsco: | |
| Neighborhood: | Cycle 3 | Map ID: | 302 |
| Neighborhood CD: | 3 |
Owner |
| Name: | CHRISTENSEN TRUSTEE, JACQUELINE | Owner ID: | 199982 |
| Mailing Address: | 730 BUSH POINT RD FREELAND, WA 98249 | % Ownership: | 100.0000000000% |
| | | Exemptions: | SNR/DSBL |
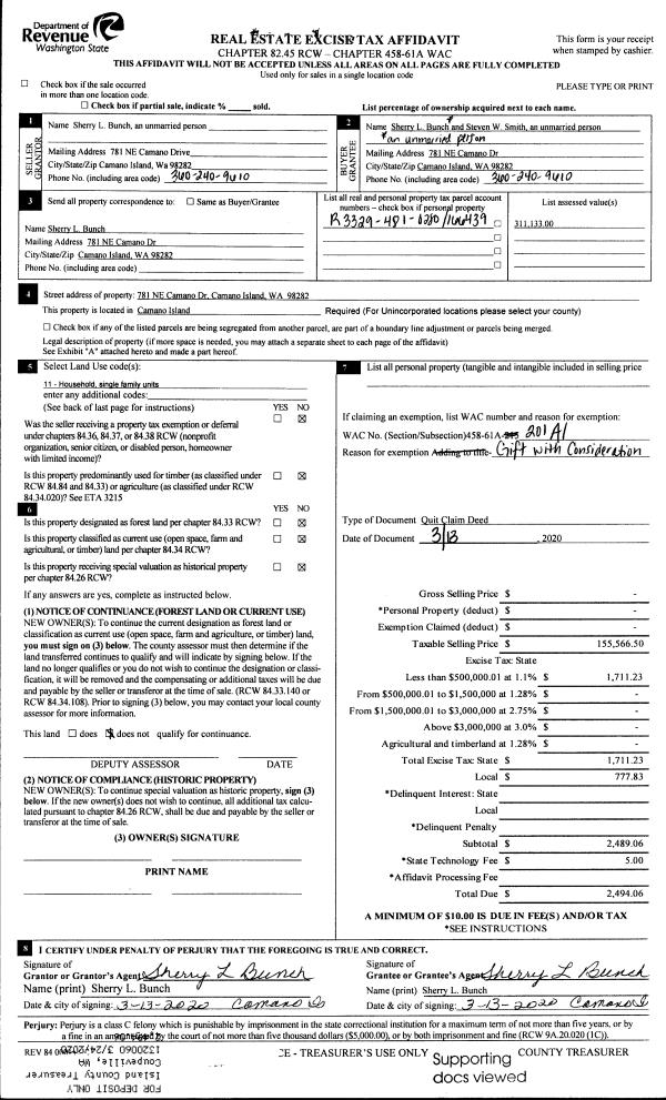
Taxes and Assessment Details
Values
| (+) Improvement Homesite Value: | + | $257,890 | |
| (+) Improvement Non-Homesite Value: | + | $0 | |
| (+) Land Homesite Value: | + | $370,000 | |
| (+) Land Non-Homesite Value: | + | $0 | |
| (+) Curr Use (HS): | + | $0 | $0 |
| (+) Curr Use (NHS): | + | $0 | $0 |
| | | -------------------------- | |
| (=) Market Value: | = | $627,890 | |
| (–) Productivity Loss: | – | $0 | |
| | | -------------------------- | |
| (=) Subtotal: | = | $627,890 | |
| (+) Senior Appraised Value: | + | $308,983 | |
| (+) Non-Senior Appraised Value: | + | $0 | |
| | | -------------------------- | |
| (=) Total Appraised Value: | = | $308,983 | |
| (–) Senior Exemption Loss: | – | $185,390 | |
| (–) Exemption Loss: | – | $0 | |
| | | -------------------------- | |
| (=) Taxable Value: | = | $123,593 | |
Taxing Jurisdiction
| Owner: | CHRISTENSEN TRUSTEE, JACQUELINE | | |
| % Ownership: | 100.0000000000% | | |
| Total Value: | $627,890 | | |
| Tax Area: | 712 - APPRAISER-S Whid Schl Dist, outside Langley, improved, greater than 1 acre |
| CF | Conservation Futures | 0.0316035091 | $627,890 | $123,593 | $3.91 | | |
| FIRE3 | Fire & Rescue Dist #3 S Whidbey GEN | 1.2004855531 | $627,890 | $123,593 | $148.37 | | |
| HOBOND | Hospital BOND | 0.0000000000 | $627,890 | $0 | $0.00 | | |
| HOGEN | Hospital GEN | 0.3902502903 | $627,890 | $123,593 | $48.23 | | |
| CE | County Current Expense | 0.3708482477 | $627,890 | $123,593 | $45.83 | | |
| CR | County Roads | 0.4584763726 | $627,890 | $123,593 | $56.66 | | |
| ISLANDEMS | Hospital GEN (EMS) | 0.5000000000 | $627,890 | $123,593 | $61.80 | | |
| LIB | Library Sno-Isle GEN | 0.3153421757 | $627,890 | $123,593 | $38.97 | | |
| PORTWHID | Port of S Whidbey GEN | 0.1094540357 | $627,890 | $123,593 | $13.53 | | |
| SCH206BOND | School 206 BOND | 0.3161759235 | $627,890 | $123,593 | $39.08 | | |
| SCH206MO | School 206 Enrichment | 0.0000000000 | $627,890 | $0 | $0.00 | | |
| ST | State School | 1.3035497053 | $627,890 | $123,593 | $161.11 | | |
| ST2 | State School Part 2 | 0.0000000000 | $627,890 | $0 | $0.00 | | |
| SWHIDPRBD | P & R S Whidbey BOND | 0.0000000000 | $627,890 | $0 | $0.00 | | |
| SWHIDPRBD2 | P & R S Whidbey BOND2 | 0.0000000000 | $627,890 | $0 | $0.00 | | |
| SWHIDPRMT | P & R S Whidbey GEN | 0.2053334452 | $627,890 | $123,593 | $25.38 | | |
| | Total Tax Rate: | 5.2015192582 | | | | | |
| | | | | Taxes w/Current Exemptions: | $642.87 | | |
| | | | | Taxes w/o Exemptions: | $4,202.75 | | |
Improvement / Building
| Improvement #1: | RESIDENTIAL | State Code: | Y | 1298.0 sqft | Value: | $257,890 |
| Bathrooms: | 2 | Bedrooms: | 1 | | Ceiling: | DRYWALL PAINTED | Exterior Wall/Cover: | PLY/HARDBOARD T-111 | | Floor Covering: | CARPET/VINYL 80-20 | Floor Structure: | WOOD W/SUBFLOOR | | Foundation: | CONCRETE | Heating: | WALL HEAT ELECTRIC | | Interior Finish: | DRYWALL PAINT | Plumbing Fixture Cnt: | 10 | | Roof Slope: | 5" IN 12" | Roof Structure/Cover: | CJ ASPHALT |
|
| | Type | Description | Class CD | Sub Class CD | Year Built | Area |
| | BAS | BASE/MAIN FLOOR | 3 | 0 | 2000 | 810.0 |
| | OP1 | OPEN PORCH SLAB | 3 | 0 | 2000 | 140.0 |
| | OP1 | OPEN PORCH SLAB | 3 | 0 | 2000 | 405.0 |
| | AGR | ATTACHED GARAGE | 3 | 0 | 2000 | 1011.0 |
| | UPH | HALF STORY | 3 | 0 | 2000 | 488.0 |
| | UTY | STORAGE/UTILITY | 3 | 0 | 2000 | 140.0 |
| | UTY | STORAGE/UTILITY | 3 | 0 | 2000 | 120.0 |
Sketch
Property Image
Land
| 1 | 17 | AC (01.01-02.00) | 0.0000 | 0.00 | 0.00 | 0.00 | 1.00 | $370,000 | $0 |
Roll Value History
| 2026 | N/A | N/A | N/A | N/A | N/A |
| 2025 | $257,890 | $370,000 | $0 | $627,890 | $123,593 |
| 2024 | $261,143 | $350,000 | $0 | $611,143 | $123,593 |
| 2023 | $264,395 | $310,000 | $0 | $574,395 | $123,593 |
| 2022 | $242,365 | $280,000 | $0 | $522,365 | $308,983 |
| 2021 | $213,314 | $250,000 | $0 | $463,314 | $308,983 |
| 2020 | $207,330 | $200,000 | $0 | $407,330 | $308,983 |
| 2019 | $137,852 | $260,000 | $0 | $397,852 | $308,983 |
| 2018 | $138,261 | $200,000 | $0 | $338,261 | $308,983 |
| 2017 | $139,078 | $200,000 | $0 | $339,078 | $308,983 |
| 2016 | $140,713 | $200,000 | $0 | $340,713 | $308,983 |
| 2015 | $142,347 | $150,000 | $0 | $292,347 | $292,347 |
| 2014 | $143,983 | $150,000 | $0 | $293,983 | $117,593 |
| 2013 | $143,983 | $150,000 | $0 | $293,983 | $117,593 |
| 2012 | $143,983 | $140,250 | $0 | $284,233 | $113,693 |
| 2011 | $143,983 | $165,000 | $0 | $308,983 | $123,593 |
| 2010 | $143,983 | $165,000 | $0 | $308,983 | $123,593 |
| 2009 | $245,862 | $200,000 | $0 | $445,862 | $178,345 |
| 2008 | $248,927 | $255,000 | $0 | $503,927 | $503,927 |
| 2007 | $249,023 | $220,000 | $0 | $469,023 | $469,023 |
Deed and Sales History
| 1 | 05/09/2009 | CD | DNU - Correction Deed | KRUSE TTEE, JACQUELINE R | CHRISTENSEN, JACQUELINE R | | | $0.00 | 81772 | 0 |
| 2 | 06/06/2008 | QCD | Quit Claim Deed | CHRISTENSEN, JACQUELINE R | KRUSE TTEE, JACQUELINE R | | | $0.00 | 81480 | 4230354 |
| 3 | 01/23/2004 | CD | DNU - Correction Deed | CHRISTENSEN, OSCAR/JACKIE | CHRISTENSEN, JACQUELINE R | | | $0.00 | 70287 | 0 |
| 4 | 08/01/1996 | WD | Warranty Deed | CORRADINI, LAWRENCE J | CHRISTENSEN, OSCAR/JACKIE | | | $52,000.00 | 62783 | 96013584 |
| 5 | 01/01/1900 | OTHER | Other - Misc. Documents | Unknown | CORRADINI, LAWRENCE J | | | $0.00 | 0 | 0 |
Payout Agreement
| No payout information available.. |