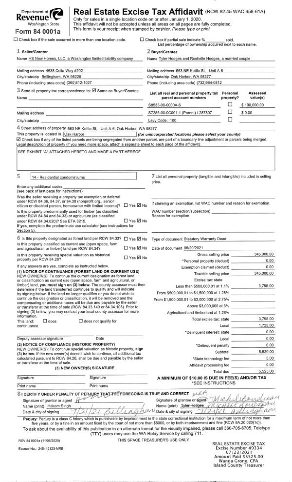
Property
Account |
| Property ID: | 486566 | Abbreviated Legal Description: | SUNLIGHT BEACH LOT 8 INCL ADJ TIDES EX PT TO DIKE DIST #1 AF#13464 SEE # 00008-0 |
| Geographic ID: | S8220-00-00008-1 | Agent Code: | |
| Type: | Real | | |
| Tax Area: | 810 - APPRAISER-S Whid Schl Dist, Diking District#1, improved & 1 acre or less | Land Use Code | 11 |
| Open Space: | N | DFL | N |
| Historic Property: | N | Remodel Property: | N |
| Multi-Family Redevelopment: | N | | |
| Township: | | Section: | |
| Range: | |
Location |
| Address: | 2538 SUNLIGHT BEACH RD CLINTON, WA 98236 | Mapsco: | |
| Neighborhood: | Cycle 4 | Map ID: | 789 |
| Neighborhood CD: | 4 |
Owner |
| Name: | CRUISE, CHRISTOPHER L | Owner ID: | 307602 |
| Mailing Address: | ELIZABETH MARIE CRUISE 1314 N 143RD ST SEATTLE, WA 98133 | % Ownership: | 100.0000000000% |
| | | Exemptions: | |
Taxes and Assessment Details
Values
| (+) Improvement Homesite Value: | + | $0 | |
| (+) Improvement Non-Homesite Value: | + | $188,623 | |
| (+) Land Homesite Value: | + | $0 | |
| (+) Land Non-Homesite Value: | + | $1,250,480 | |
| (+) Curr Use (HS): | + | $0 | $0 |
| (+) Curr Use (NHS): | + | $0 | $0 |
| | | -------------------------- | |
| (=) Market Value: | = | $1,439,103 | |
| (–) Productivity Loss: | – | $0 | |
| | | -------------------------- | |
| (=) Subtotal: | = | $1,439,103 | |
| (+) Senior Appraised Value: | + | $0 | |
| (+) Non-Senior Appraised Value: | + | $1,439,103 | |
| | | -------------------------- | |
| (=) Total Appraised Value: | = | $1,439,103 | |
| (–) Senior Exemption Loss: | – | $0 | |
| (–) Exemption Loss: | – | $0 | |
| | | -------------------------- | |
| (=) Taxable Value: | = | $1,439,103 | |
Taxing Jurisdiction
| Owner: | CRUISE, CHRISTOPHER L | | |
| % Ownership: | 100.0000000000% | | |
| Total Value: | $1,439,103 | | |
| Tax Area: | 810 - APPRAISER-S Whid Schl Dist, Diking District#1, improved & 1 acre or less |
| CF | Conservation Futures | 0.0316035091 | $1,439,103 | $1,439,103 | $45.48 | | |
| FIRE3 | Fire & Rescue Dist #3 S Whidbey GEN | 1.2004855531 | $1,439,103 | $1,439,103 | $1,727.62 | | |
| HOBOND | Hospital BOND | 0.1910887512 | $1,439,103 | $1,439,103 | $275.00 | | |
| HOGEN | Hospital GEN | 0.3902502903 | $1,439,103 | $1,439,103 | $561.61 | | |
| CE | County Current Expense | 0.3708482477 | $1,439,103 | $1,439,103 | $533.69 | | |
| CR | County Roads | 0.4584763726 | $1,439,103 | $1,439,103 | $659.79 | | |
| ISLANDEMS | Hospital GEN (EMS) | 0.5000000000 | $1,439,103 | $1,439,103 | $719.55 | | |
| LIB | Library Sno-Isle GEN | 0.3153421757 | $1,439,103 | $1,439,103 | $453.81 | | |
| PORTWHID | Port of S Whidbey GEN | 0.1094540357 | $1,439,103 | $1,439,103 | $157.52 | | |
| SCH206BOND | School 206 BOND | 0.3161759235 | $1,439,103 | $1,439,103 | $455.01 | | |
| SCH206MO | School 206 Enrichment | 0.4547169547 | $1,439,103 | $1,439,103 | $654.38 | | |
| ST | State School | 1.3035497053 | $1,439,103 | $1,439,103 | $1,875.94 | | |
| ST2 | State School Part 2 | 0.8169543533 | $1,439,103 | $1,439,103 | $1,175.68 | | |
| SWHIDPRBD | P & R S Whidbey BOND | 0.0152817568 | $1,439,103 | $1,439,103 | $21.99 | | |
| SWHIDPRBD2 | P & R S Whidbey BOND2 | 0.0138911264 | $1,439,103 | $1,439,103 | $19.99 | | |
| SWHIDPRMT | P & R S Whidbey GEN | 0.2053334452 | $1,439,103 | $1,439,103 | $295.50 | | |
| | Total Tax Rate: | 6.6934522006 | | | | | |
| | | | | Taxes w/Current Exemptions: | $9,632.56 | | |
| | | | | Taxes w/o Exemptions: | $9,632.56 | | |
Improvement / Building
| Improvement #1: | RESIDENTIAL | State Code: | Y | 1280.0 sqft | Value: | $188,623 |
| Bathrooms: | 1.5 | Bedrooms: | 2 | | Ceiling: | DRYWALL PAINTED | Exterior Wall/Cover: | PLY/HARDBOARD T-111 | | Floor Covering: | CARPET/VINYL 20-80 | Floor Structure: | WOOD W/SUBFLOOR | | Foundation: | CONCRETE | Heating: | BASEBOARD ELECTRIC | | Interior Finish: | DRYWALL PAINT | Plumbing Fixture Cnt: | 8 | | Roof Slope: | 4" IN 12" | Roof Structure/Cover: | CJ ASPHALT |
|
| | Type | Description | Class CD | Sub Class CD | Year Built | Area |
| | BAS | BASE/MAIN FLOOR | 3 | 0 | 1979 | 968.0 |
| | UB8 | BASEMENT UNFINISHED 8" | 3 | 0 | 1979 | 317.2 |
| | BGR | BASEMENT GARAGE | 3 | 0 | 1979 | 338.8 |
| | BAW | BALCONY WOOD RAIL | 3 | 0 | 1979 | 56.0 |
| | OWP | OPEN WOOD PORCH W/STEPS | 3 | 0 | 1979 | 536.8 |
| | OWP | OPEN WOOD PORCH W/STEPS | 3 | 0 | 1979 | 46.0 |
| | DWN | DOWNSTAIRS LIVING AREA | 3 | 0 | 1979 | 312.0 |
Sketch
Property Image
Land
| 1 | LB | LOW BANK | 0.0000 | 0.00 | 50.00 | 0.00 | 1.00 | $1,250,000 | $0 |
| 2 | 55 | TIDES | 0.0000 | 0.00 | 50.00 | 0.00 | 1.00 | $480 | $0 |
Roll Value History
| 2026 | N/A | N/A | N/A | N/A | N/A |
| 2025 | $188,623 | $1,250,480 | $0 | $1,439,103 | $1,439,103 |
| 2024 | $195,372 | $1,365,480 | $0 | $1,560,852 | $1,560,852 |
| 2023 | $198,114 | $1,440,480 | $0 | $1,638,594 | $1,638,594 |
| 2022 | $181,875 | $1,375,480 | $0 | $1,557,355 | $1,557,355 |
| 2021 | $163,841 | $1,250,480 | $0 | $1,414,321 | $1,414,321 |
| 2020 | $148,836 | $1,150,480 | $0 | $1,299,316 | $1,299,316 |
| 2019 | $104,078 | $1,150,480 | $0 | $1,254,558 | $1,254,558 |
| 2018 | $104,443 | $950,480 | $0 | $1,054,923 | $1,054,923 |
| 2017 | $105,152 | $920,480 | $0 | $1,025,632 | $1,025,632 |
| 2016 | $106,612 | $750,480 | $0 | $857,092 | $857,092 |
| 2015 | $108,073 | $750,480 | $0 | $858,553 | $858,553 |
| 2014 | $84,836 | $750,480 | $0 | $835,316 | $835,316 |
| 2013 | $86,122 | $816,240 | $0 | $902,362 | $902,362 |
| 2012 | $87,407 | $816,240 | $0 | $903,647 | $903,647 |
| 2011 | $88,694 | $816,240 | $0 | $904,934 | $904,934 |
| 2010 | $100,111 | $955,310 | $0 | $1,055,421 | $1,055,421 |
| 2009 | $104,559 | $1,337,234 | $0 | $1,441,793 | $1,441,793 |
| 2008 | $105,760 | $1,337,234 | $0 | $1,442,994 | $1,442,994 |
| 2007 | $107,140 | $962,917 | $0 | $1,070,057 | $1,070,057 |
Deed and Sales History
| 1 | 02/07/2023 | WD | Warranty Deed | CRUISE III, LEO C | CRUISE, CHRISTOPHER L | | | $0.00 | 55831 | 4556626 |
| 2 | 02/01/1987 | QCD | Quit Claim Deed | CRUISE, LEO C | CRUISE, LEO C | | | $0.00 | 70521 | 87003111 |
| 3 | 08/01/1981 | CD | DNU - Correction Deed | Unknown | CRUISE, LEO C | | | $0.00 | 12907 | 388002 |
Payout Agreement
| No payout information available.. |