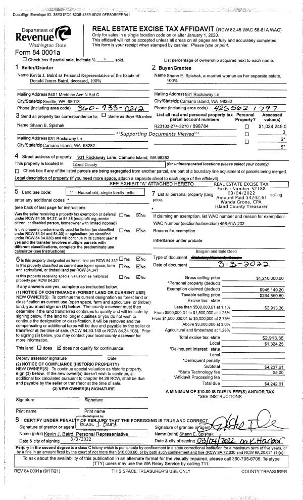
Property
Account |
| Property ID: | 487128 | Abbreviated Legal Description: | REPLACES 185-1030 15-3 - LOT 15 BLK 3 CAMANO COUNTRY CLUB EST #1 V4 SUR P88/89 |
| Geographic ID: | R33119-095-1000 | Agent Code: | |
| Type: | Real | | |
| Tax Area: | 512 - APPRAISER-Stan/Cam Schl Dist, improved, greater than 1 acre | Land Use Code | 11 |
| Open Space: | N | DFL | N |
| Historic Property: | N | Remodel Property: | N |
| Multi-Family Redevelopment: | N | | |
| Township: | 31 | Section: | 19 |
| Range: | R3 |
Location |
| Address: | 1529 BONNIE LN CAMANO ISLAND, WA 98282 | Mapsco: | |
| Neighborhood: | Cycle 5 | Map ID: | 929 |
| Neighborhood CD: | 5 |
Owner |
| Name: | TSCHERNE, DANIEL J | Owner ID: | 272672 |
| Mailing Address: | DONNA L TSCHERNE 1529 BONNIE LN CAMANO ISLAND, WA 98282 | % Ownership: | 100.0000000000% |
| | | Exemptions: | |
Taxes and Assessment Details
Values
| (+) Improvement Homesite Value: | + | $0 | |
| (+) Improvement Non-Homesite Value: | + | $289,887 | |
| (+) Land Homesite Value: | + | $0 | |
| (+) Land Non-Homesite Value: | + | $330,000 | |
| (+) Curr Use (HS): | + | $0 | $0 |
| (+) Curr Use (NHS): | + | $0 | $0 |
| | | -------------------------- | |
| (=) Market Value: | = | $619,887 | |
| (–) Productivity Loss: | – | $0 | |
| | | -------------------------- | |
| (=) Subtotal: | = | $619,887 | |
| (+) Senior Appraised Value: | + | $0 | |
| (+) Non-Senior Appraised Value: | + | $619,887 | |
| | | -------------------------- | |
| (=) Total Appraised Value: | = | $619,887 | |
| (–) Senior Exemption Loss: | – | $0 | |
| (–) Exemption Loss: | – | $0 | |
| | | -------------------------- | |
| (=) Taxable Value: | = | $619,887 | |
Taxing Jurisdiction
| Owner: | TSCHERNE, DANIEL J | | |
| % Ownership: | 100.0000000000% | | |
| Total Value: | $619,887 | | |
| Tax Area: | 512 - APPRAISER-Stan/Cam Schl Dist, improved, greater than 1 acre |
| CF | Conservation Futures | 0.0316035091 | $619,887 | $619,887 | $19.59 | | |
| EMS1 | Fire & Rescue Dist #1 Camano GEN (EMS) | 0.3677864386 | $619,887 | $619,887 | $227.99 | | |
| FIRE1 | Fire & Rescue Dist #1 Camano GEN | 1.2502910536 | $619,887 | $619,887 | $775.04 | | |
| FIRE1BOND | Fire & Rescue Dist #1 Camano BOND | 0.1570001679 | $619,887 | $619,887 | $97.32 | | |
| CE | County Current Expense | 0.3708482477 | $619,887 | $619,887 | $229.88 | | |
| CR | County Roads | 0.4584763726 | $619,887 | $619,887 | $284.20 | | |
| LCIB | Library Sno-Isle BOND (Camano Island) | 0.0396325772 | $619,887 | $619,887 | $24.57 | | |
| LIB | Library Sno-Isle GEN | 0.3153421757 | $619,887 | $619,887 | $195.48 | | |
| SCH205_401 | School 205-401 Enrichment | 1.2698420524 | $619,887 | $619,887 | $787.16 | | |
| SCH205BOND | School 205-401 BOND | 0.9396497583 | $619,887 | $619,887 | $582.48 | | |
| ST | State School | 1.3035497053 | $619,887 | $619,887 | $808.05 | | |
| ST2 | State School Part 2 | 0.8169543533 | $619,887 | $619,887 | $506.42 | | |
| | Total Tax Rate: | 7.3209764117 | | | | | |
| | | | | Taxes w/Current Exemptions: | $4,538.18 | | |
| | | | | Taxes w/o Exemptions: | $4,538.18 | | |
Improvement / Building
| Improvement #1: | RESIDENTIAL | State Code: | Y | 1443.0 sqft | Value: | $289,887 |
| Bathrooms: | 2 | Bedrooms: | 3 | | Ceiling: | DRYWALL PAINTED | Cooling: | HEAT PUMP/CONV/V | | Exterior Wall/Cover: | PLY/HARDBOARD T-111 | Floor Covering: | VINYL 100% | | Floor Structure: | WOOD W/SUBFLOOR | Foundation: | CONCRETE | | Interior Finish: | DRYWALL PAINT | Plumbing Fixture Cnt: | 9 | | Roof Slope: | 4" IN 12" | Roof Structure/Cover: | CJ ASPHALT |
|
| | Type | Description | Class CD | Sub Class CD | Year Built | Area |
| | BAS | BASE/MAIN FLOOR | 3 | 0 | 1994 | 1443.0 |
| | OP4 | OPEN PORCH W/CEILING-ROOF | 3 | 0 | 1994 | 65.0 |
| | AGR | ATTACHED GARAGE | 3 | 0 | 1994 | 576.0 |
| | OWP | OPEN WOOD PORCH W/STEPS | 3 | 0 | 1994 | 128.0 |
| | CPD | OPEN CARPORT DIRT FLOOR | 3 | 0 | 1994 | 384.0 |
| | CPD | OPEN CARPORT DIRT FLOOR | 3 | 0 | 1994 | 351.7 |
Sketch
Property Image
Land
| 1 | 32 | AC (03.01-09.99) | 5.0000 | 0.00 | 0.00 | 0.00 | 1.00 | $330,000 | $0 |
Roll Value History
| 2026 | N/A | N/A | N/A | N/A | N/A |
| 2025 | $289,887 | $330,000 | $0 | $619,887 | $619,887 |
| 2024 | $293,456 | $300,000 | $0 | $593,456 | $593,456 |
| 2023 | $297,023 | $290,000 | $0 | $587,023 | $587,023 |
| 2022 | $272,189 | $290,000 | $0 | $562,189 | $562,189 |
| 2021 | $215,155 | $190,000 | $0 | $405,155 | $405,155 |
| 2020 | $209,691 | $160,000 | $0 | $369,691 | $369,691 |
| 2019 | $152,151 | $230,000 | $0 | $382,151 | $382,151 |
| 2018 | $152,619 | $175,000 | $0 | $327,619 | $327,619 |
| 2017 | $143,157 | $150,000 | $0 | $293,157 | $293,157 |
| 2016 | $144,904 | $125,000 | $0 | $269,904 | $269,904 |
| 2015 | $132,914 | $125,000 | $0 | $257,914 | $257,914 |
| 2014 | $134,596 | $125,000 | $0 | $259,596 | $259,596 |
| 2013 | $136,276 | $108,000 | $0 | $244,276 | $244,276 |
| 2012 | $137,957 | $108,000 | $0 | $245,957 | $245,957 |
| 2011 | $139,637 | $135,000 | $0 | $274,637 | $274,637 |
| 2010 | $153,585 | $135,000 | $0 | $288,585 | $288,585 |
| 2009 | $151,040 | $157,205 | $0 | $308,245 | $308,245 |
| 2008 | $161,514 | $125,000 | $0 | $286,514 | $286,514 |
| 2007 | $124,070 | $164,464 | $0 | $288,534 | $288,534 |
Deed and Sales History
| 1 | 10/20/2015 | WD | Warranty Deed | DIFLOE, THOMAS & JEAN | TSCHERNE, DANIEL J | | | $283,500.00 | 22035 | 4388906 |
| 2 | 10/20/2015 | OTHER | Other - Misc. Documents | DIFLOE, THOMAS & JEAN | DIFLOE, THOMAS & JEAN | | | $259,956.00 | 22034 | |
| 3 | 03/01/1994 | WD | Warranty Deed | CHORLTON, JANET I | DIFLOE, THOMAS & | | | $50,000.00 | 41420 | 94008789 |
| 4 | 01/01/1900 | OTHER | Other - Misc. Documents | Unknown | CHORLTON, JANET I | | | $0.00 | 0 | 0 |
Payout Agreement
| No payout information available.. |