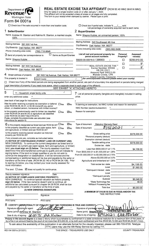
Property
Account |
| Property ID: | 48754 | Abbreviated Legal Description: | IN S/2 SW NE BG SW CR SW NE E505.04' TPB N11*W323.34' N68*E235' SELY ALG WLN RD TP SLN SW NE W TPB EX RD |
| Geographic ID: | R22908-280-3280 | Agent Code: | |
| Type: | Real | | |
| Tax Area: | 712 - APPRAISER-S Whid Schl Dist, outside Langley, improved, greater than 1 acre | Land Use Code | 11 |
| Open Space: | N | DFL | N |
| Historic Property: | N | Remodel Property: | N |
| Multi-Family Redevelopment: | N | | |
| Township: | 29 | Section: | 08 |
| Range: | R2 |
Location |
| Address: | | Mapsco: | |
| Neighborhood: | Cycle 3 | Map ID: | 304 |
| Neighborhood CD: | 3 |
Owner |
| Name: | NEILL, KEVIN | Owner ID: | 298274 |
| Mailing Address: | SARAH BUEHLER 673 ADAMS RD FREELAND, WA 98249 | % Ownership: | 100.0000000000% |
| | | Exemptions: | |
Taxes and Assessment Details
Values
| (+) Improvement Homesite Value: | + | $0 | |
| (+) Improvement Non-Homesite Value: | + | $230,741 | |
| (+) Land Homesite Value: | + | $0 | |
| (+) Land Non-Homesite Value: | + | $310,000 | |
| (+) Curr Use (HS): | + | $0 | $0 |
| (+) Curr Use (NHS): | + | $0 | $0 |
| | | -------------------------- | |
| (=) Market Value: | = | $540,741 | |
| (–) Productivity Loss: | – | $0 | |
| | | -------------------------- | |
| (=) Subtotal: | = | $540,741 | |
| (+) Senior Appraised Value: | + | $0 | |
| (+) Non-Senior Appraised Value: | + | $540,741 | |
| | | -------------------------- | |
| (=) Total Appraised Value: | = | $540,741 | |
| (–) Senior Exemption Loss: | – | $0 | |
| (–) Exemption Loss: | – | $0 | |
| | | -------------------------- | |
| (=) Taxable Value: | = | $540,741 | |
Taxing Jurisdiction
| Owner: | NEILL, KEVIN | | |
| % Ownership: | 100.0000000000% | | |
| Total Value: | $540,741 | | |
| Tax Area: | 712 - APPRAISER-S Whid Schl Dist, outside Langley, improved, greater than 1 acre |
| CF | Conservation Futures | 0.0316035091 | $540,741 | $540,741 | $17.09 | | |
| FIRE3 | Fire & Rescue Dist #3 S Whidbey GEN | 1.2004855531 | $540,741 | $540,741 | $649.15 | | |
| HOBOND | Hospital BOND | 0.1910887512 | $540,741 | $540,741 | $103.33 | | |
| HOGEN | Hospital GEN | 0.3902502903 | $540,741 | $540,741 | $211.02 | | |
| CE | County Current Expense | 0.3708482477 | $540,741 | $540,741 | $200.53 | | |
| CR | County Roads | 0.4584763726 | $540,741 | $540,741 | $247.92 | | |
| ISLANDEMS | Hospital GEN (EMS) | 0.5000000000 | $540,741 | $540,741 | $270.37 | | |
| LIB | Library Sno-Isle GEN | 0.3153421757 | $540,741 | $540,741 | $170.52 | | |
| PORTWHID | Port of S Whidbey GEN | 0.1094540357 | $540,741 | $540,741 | $59.19 | | |
| SCH206BOND | School 206 BOND | 0.3161759235 | $540,741 | $540,741 | $170.97 | | |
| SCH206MO | School 206 Enrichment | 0.4547169547 | $540,741 | $540,741 | $245.88 | | |
| ST | State School | 1.3035497053 | $540,741 | $540,741 | $704.88 | | |
| ST2 | State School Part 2 | 0.8169543533 | $540,741 | $540,741 | $441.76 | | |
| SWHIDPRBD | P & R S Whidbey BOND | 0.0152817568 | $540,741 | $540,741 | $8.26 | | |
| SWHIDPRBD2 | P & R S Whidbey BOND2 | 0.0138911264 | $540,741 | $540,741 | $7.51 | | |
| SWHIDPRMT | P & R S Whidbey GEN | 0.2053334452 | $540,741 | $540,741 | $111.03 | | |
| | Total Tax Rate: | 6.6934522006 | | | | | |
| | | | | Taxes w/Current Exemptions: | $3,619.41 | | |
| | | | | Taxes w/o Exemptions: | $3,619.41 | | |
Improvement / Building
| Improvement #1: | RESIDENTIAL | State Code: | Y | 1396.5 sqft | Value: | $230,741 |
| Bathrooms: | 1.5 | Bedrooms: | 1 | | Ceiling: | DRYWALL PAINTED | Cooling: | HEAT PUMP/CONV/V | | Exterior Wall/Cover: | HARDBD/WD OR ST STUD | Floor Covering: | CONCRETE SEALER | | Floor Structure: | WOOD W/SUBFLOOR | Foundation: | CONCRETE | | Interior Finish: | DRYWALL PAINT | Plumbing Fixture Cnt: | 8 | | Roof Slope: | 6" IN 12" | Roof Structure/Cover: | CJ ALUMINIUM HEAVY |
|
| | Type | Description | Class CD | Sub Class CD | Year Built | Area |
| | BAS | BASE/MAIN FLOOR | 3 | 0 | 2023 | 1396.5 |
| | OP4 | OPEN PORCH W/CEILING-ROOF | 3 | 0 | 2023 | 325.0 |
| | OP4 | OPEN PORCH W/CEILING-ROOF | 3 | 0 | 2023 | 32.0 |
| | oUTI | UTILITY | 4 | 0 | 2023 | 221.0 |
Sketch
Property Image
Land
| 1 | 18 | AC (02.01-03.00) | 0.0000 | 0.00 | 0.00 | 0.00 | 1.00 | $310,000 | $0 |
Roll Value History
| 2026 | N/A | N/A | N/A | N/A | N/A |
| 2025 | $230,741 | $310,000 | $0 | $540,741 | $540,741 |
| 2024 | $207,989 | $150,000 | $0 | $357,989 | $357,989 |
| 2023 | $0 | $150,000 | $0 | $150,000 | $150,000 |
| 2022 | $0 | $150,000 | $0 | $150,000 | $150,000 |
| 2021 | $0 | $135,000 | $0 | $135,000 | $135,000 |
| 2020 | $0 | $110,000 | $0 | $110,000 | $110,000 |
| 2019 | $0 | $110,000 | $0 | $110,000 | $110,000 |
| 2018 | $0 | $100,000 | $0 | $100,000 | $100,000 |
| 2017 | $0 | $100,000 | $0 | $100,000 | $100,000 |
| 2016 | $0 | $100,000 | $0 | $100,000 | $100,000 |
| 2015 | $0 | $100,000 | $0 | $100,000 | $100,000 |
| 2014 | $0 | $97,000 | $0 | $97,000 | $97,000 |
| 2013 | $0 | $97,000 | $0 | $97,000 | $97,000 |
| 2012 | $0 | $97,000 | $0 | $97,000 | $97,000 |
| 2011 | $0 | $97,000 | $0 | $97,000 | $97,000 |
| 2010 | $0 | $97,000 | $0 | $97,000 | $97,000 |
| 2009 | $0 | $114,000 | $0 | $114,000 | $114,000 |
| 2008 | $0 | $144,000 | $0 | $144,000 | $144,000 |
| 2007 | $0 | $91,500 | $0 | $91,500 | $91,500 |
Deed and Sales History
| 1 | 02/11/2021 | WD | Warranty Deed | WHITE, RANDALL B | NEILL, KEVIN | | | $162,500.00 | 47105 | 4512093 |
| 2 | 06/21/2018 | QCD | Quit Claim Deed | WHITE, RANDY | WHITE, RANDALL B | | | $0.00 | 34859 | 4447447 |
| 3 | 04/13/2005 | WD | Warranty Deed | HARRIS, SARAH | WHITE, RANDY | | | $75,000.00 | 51693 | 4131932 |
| 4 | 11/01/1979 | EXECUTORD | Executor Deed | BILLINGTON, REALTY I | HARRIS, SARAH | | | $18,500.00 | 95497 | 361836 |
| 5 | 01/01/1900 | OTHER | Other - Misc. Documents | Unknown | BILLINGTON, REALTY I | | | $0.00 | 0 | 0 |
Payout Agreement
| No payout information available.. |