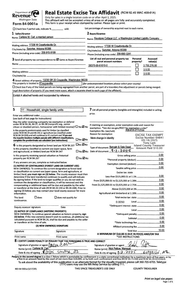
Property
Account |
| Property ID: | 487556 | Abbreviated Legal Description: | REPLACES 1874140 11 COUPE DC - BG 66' S OF SW CR BLK 40 COUPEVILLE S115.8' E266' N115.8' W266' TPB |
| Geographic ID: | R13233-184-4240 | Agent Code: | |
| Type: | Real | | |
| Tax Area: | 300 - APPRAISER-Cpvl Schl Dist, in Cpvl | Land Use Code | 71 |
| Open Space: | N | DFL | N |
| Historic Property: | N | Remodel Property: | N |
| Multi-Family Redevelopment: | N | | |
| Township: | 32 | Section: | 33 |
| Range: | R1 |
Location |
| Address: | 207 N MAIN ST COUPEVILLE, WA 98239 | Mapsco: | |
| Neighborhood: | Area 2 Coupeville Exempt Commercial | Map ID: | 173 |
| Neighborhood CD: | 2CpvExComm |
Owner |
| Name: | CCAS PROPERTY & CONSTRUCTION | Owner ID: | 7242 |
| Mailing Address: | ST MARY 710 9TH AVE SEATTLE, WA 98104-2017 | % Ownership: | 100.0000000000% |
| | | Exemptions: | EX |
Taxes and Assessment Details
Property Tax Information as of
10/22/2025
Click on "Statement Details" to expand or collapse a tax statement.
* Please enter a valid date ** Please enter a valid date *
Statement Details |
| 2025 | 33593 | ST - State School | $0.00 | $0.00 | $0.00 | $0.00 | $0.00 | $0.00 |
| 2025 | 33593 | Island County - Island County General Fund | $0.00 | $0.00 | $0.00 | $0.00 | $0.00 | $0.00 |
| 2025 | 33593 | CICPVL - City: Town of Coupeville | $0.00 | $0.00 | $0.00 | $0.00 | $0.00 | $0.00 |
| 2025 | 33593 | PRTCPVL - Port of Coupeville | $0.00 | $0.00 | $0.00 | $0.00 | $0.00 | $0.00 |
| 2025 | 33593 | SCH204 - School 204 Coupeville | $0.00 | $0.00 | $0.00 | $0.00 | $0.00 | $0.00 |
| 2025 | 33593 | CEM2 - Cemetery #2 Central Whidbey | $0.00 | $0.00 | $0.00 | $0.00 | $0.00 | $0.00 |
| 2025 | 33593 | FIRE5 - Fire & Rescue Dist #5 Central Whidbey | $0.00 | $0.00 | $0.00 | $0.00 | $0.00 | $0.00 |
| 2025 | 33593 | LIB - Library Sno-Isle Regional | $0.00 | $0.00 | $0.00 | $0.00 | $0.00 | $0.00 |
| 2025 | 33593 | HOSPEMS - Whidbey Health EMS Island County | $0.00 | $0.00 | $0.00 | $0.00 | $0.00 | $0.00 |
| 2025 | 33593 | HOSP - Whidbey Health | $0.00 | $0.00 | $0.00 | $0.00 | $0.00 | $0.00 |
| 2025 | 33593 | CF - Island County Conservation Futures | $0.00 | $0.00 | $0.00 | $0.00 | $0.00 | $0.00 |
| 2025 | 33593 | TOTAL: | $0.00 | $0.00 | $0.00 | $0.00 | $0.00 | $0.00 |
|
| 2025 | 33593 | $0.00 | $0.00 | $0.00 | $0.00 | $0.00 | $0.00 |
Statement Details |
| 2016 | 34039 | WDBYCNV - Whidbey Conservation District | $0.00 | $0.00 | $0.00 | $0.00 | $0.00 | $0.00 |
| 2016 | 34039 | TOTAL: | $0.00 | $0.00 | $0.00 | $0.00 | $0.00 | $0.00 |
|
| 2016 | 34039 | $0.00 | $0.00 | $0.00 | $0.00 | $0.00 | $0.00 |
Values
| (+) Improvement Homesite Value: | + | $0 | |
| (+) Improvement Non-Homesite Value: | + | $1,198,978 | |
| (+) Land Homesite Value: | + | $0 | |
| (+) Land Non-Homesite Value: | + | $556,697 | |
| (+) Curr Use (HS): | + | $0 | $0 |
| (+) Curr Use (NHS): | + | $0 | $0 |
| | | -------------------------- | |
| (=) Market Value: | = | $1,755,675 | |
| (–) Productivity Loss: | – | $0 | |
| | | -------------------------- | |
| (=) Subtotal: | = | $1,755,675 | |
| (+) Senior Appraised Value: | + | $0 | |
| (+) Non-Senior Appraised Value: | + | $1,755,675 | |
| | | -------------------------- | |
| (=) Total Appraised Value: | = | $1,755,675 | |
| (–) Senior Exemption Loss: | – | $0 | |
| (–) Exemption Loss: | – | $1,755,675 | |
| | | -------------------------- | |
| (=) Taxable Value: | = | $0 | |
Taxing Jurisdiction
| Owner: | CCAS PROPERTY & CONSTRUCTION | | |
| % Ownership: | 100.0000000000% | | |
| Total Value: | $1,755,675 | | |
| Tax Area: | 300 - APPRAISER-Cpvl Schl Dist, in Cpvl |
| CF | Conservation Futures | 0.0316035091 | $1,755,675 | $0 | $0.00 | | |
| CEM2 | Cemetery #2 | 0.0095056933 | $1,755,675 | $0 | $0.00 | | |
| COUP | City: Town of Coupeville | 0.8426414490 | $1,755,675 | $0 | $0.00 | | |
| FIRE5 | Fire & Rescue Dist #5 C Whidbey GEN | 1.2008080668 | $1,755,675 | $0 | $0.00 | | |
| FIRE5BOND | Fire & Rescue Dist #5 C Whidbey BOND | 0.1400090713 | $1,755,675 | $0 | $0.00 | | |
| HOBOND | Hospital BOND | 0.1910887512 | $1,755,675 | $0 | $0.00 | | |
| HOGEN | Hospital GEN | 0.3902502903 | $1,755,675 | $0 | $0.00 | | |
| CE | County Current Expense | 0.3708482477 | $1,755,675 | $0 | $0.00 | | |
| ISLANDEMS | Hospital GEN (EMS) | 0.5000000000 | $1,755,675 | $0 | $0.00 | | |
| LIB | Library Sno-Isle GEN | 0.3153421757 | $1,755,675 | $0 | $0.00 | | |
| LIBCAP | Library Sno-Isle BOND (Cap Fac Imp Area) | 0.0543427938 | $1,755,675 | $0 | $0.00 | | |
| POCOUP | Port of Coupeville GEN | 0.1093371703 | $1,755,675 | $0 | $0.00 | | |
| POCOUPIDD | Port of Coupeville IDD | 0.3409740022 | $1,755,675 | $0 | $0.00 | | |
| COUPSDTECH | School 204 CP (TECH) | 0.7545480007 | $1,755,675 | $0 | $0.00 | | |
| SCH204MO | School 204 Enrichment | 0.6716186034 | $1,755,675 | $0 | $0.00 | | |
| ST | State School | 1.3035497053 | $1,755,675 | $0 | $0.00 | | |
| ST2 | State School Part 2 | 0.8169543533 | $1,755,675 | $0 | $0.00 | | |
| | Total Tax Rate: | 8.0434218834 | | | | | |
| | | | | Taxes w/Current Exemptions: | $0.00 | | |
| | | | | Taxes w/o Exemptions: | $14,121.64 | | |
Improvement / Building
| Improvement #1: | COMMERCIAL | State Code: | Y | 3730.0 sqft | Value: | $653,471 |
| Bathrooms: | 0 | Bedrooms: | 0 | | Ceiling: | ACOUSTIC FURRED | Exterior Wall/Cover: | VINYL | | Floor Covering: | CARPET 100% | Floor Structure: | WOOD ON WOOD JOIST | | Foundation: | CONCRETE | Heating: | FHA ELECTRIC | | Interior Finish: | CHURCH | Plumbing Fixture Cnt: | 1 | | Roof Structure/Cover: | COMP OPEN WOOD |   |   |
|
| | Type | Description | Class CD | Sub Class CD | Year Built | Area |
| | BAS | BASE/MAIN FLOOR | 4 | 0 | 1889 | 2016.0 |
| | OP2 | OPEN PORCH W/STEPS | 4 | 0 | 1889 | 48.0 |
| | OP2 | OPEN PORCH W/STEPS | 4 | 0 | 1889 | 542.0 |
| | DWN | DOWNSTAIRS LIVING AREA | 4 | 0 | 1889 | 1714.0 |
| | UTY | STORAGE/UTILITY | 4 | 0 | 1889 | 100.0 |
| | OP1 | OPEN PORCH SLAB | 4 | 0 | 1889 | 558.0 |
| Improvement #2: | COMMERCIAL | State Code: | Y | 4393.0 sqft | Value: | $545,507 |
| Bathrooms: | 0 | Bedrooms: | 0 | | Ceiling: | DRYWALL PAINTED | Exterior Wall/Cover: | VINYL | | Floor Covering: | CARPET 100% | Floor Structure: | WOOD ON WOOD JOIST | | Foundation: | CONCRETE | Heating: | FHA ELECTRIC | | Interior Finish: | CHURCH | Plumbing Fixture Cnt: | 1 | | Roof Structure/Cover: | CJ ALUMINIUM HEAVY |   |   |
|
| | Type | Description | Class CD | Sub Class CD | Year Built | Area |
| | BAS | BASE/MAIN FLOOR | 3 | 0 | 1993 | 2217.0 |
| | OWC | OPEN WOOD PORCH W/STEPS/ROOF/C | 3 | 0 | 1993 | 512.0 |
| | OP2 | OPEN PORCH W/STEPS | 3 | 0 | 1993 | 231.0 |
| | OP2 | OPEN PORCH W/STEPS | 3 | 0 | 1993 | 100.0 |
| | OP2 | OPEN PORCH W/STEPS | 3 | 0 | 1993 | 80.0 |
| | DWN | DOWNSTAIRS LIVING AREA | 3 | 0 | 1993 | 2176.0 |
| | OP1 | OPEN PORCH SLAB | 3 | 0 | 1993 | 864.0 |
| | OP1 | OPEN PORCH SLAB | 3 | 0 | 1993 | 440.2 |
Sketch
Property Image
Land
| 1 | 77 | COMMUNITY | 0.7100 | 30927.60 | 0.00 | 0.00 | 1.00 | $556,697 | $0 |
Roll Value History
| 2026 | N/A | N/A | N/A | N/A | N/A |
| 2025 | $1,198,978 | $556,697 | $0 | $1,755,675 | $0 |
| 2024 | $1,100,956 | $556,697 | $0 | $1,657,653 | $0 |
| 2023 | $1,141,383 | $556,697 | $0 | $1,698,080 | $0 |
| 2022 | $909,618 | $556,697 | $0 | $1,466,315 | $0 |
| 2021 | $903,128 | $556,697 | $0 | $1,459,825 | $0 |
| 2020 | $902,326 | $556,697 | $0 | $1,459,023 | $0 |
| 2019 | $826,059 | $556,697 | $0 | $1,382,756 | $0 |
| 2018 | $505,499 | $463,914 | $0 | $969,413 | $0 |
| 2017 | $505,581 | $494,842 | $0 | $1,000,423 | $0 |
| 2016 | $505,739 | $494,842 | $0 | $1,000,581 | $0 |
| 2015 | $529,642 | $463,914 | $0 | $993,556 | $0 |
| 2014 | $492,014 | $463,914 | $0 | $955,928 | $0 |
| 2013 | $484,858 | $463,914 | $0 | $948,772 | $0 |
| 2012 | $669,038 | $150,809 | $0 | $819,847 | $0 |
| 2011 | $860,960 | $150,809 | $0 | $1,011,769 | $0 |
| 2010 | $652,174 | $150,809 | $0 | $802,983 | $0 |
| 2009 | $661,584 | $203,118 | $0 | $864,702 | $0 |
| 2008 | $681,704 | $203,118 | $0 | $884,822 | $0 |
| 2007 | $691,113 | $203,118 | $0 | $894,231 | $0 |
Deed and Sales History
| 1 | 01/01/1900 | OTHER | Other - Misc. Documents | Unknown | CORP, CATHOLIC B | | | $0.00 | 0 | 0 |
Payout Agreement
| No payout information available.. |