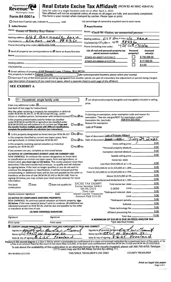
Property
Account |
| Property ID: | 487654 | Abbreviated Legal Description: | REPLACES 2383760 15 ALEX DC - BG SWCR LOT 3 BLK 19 ALEX-GLEN S156.5' TPB E50' S137.62' W50' N137 .62'TPB TGW EZS AF#88007814 EXEMPT |
| Geographic ID: | R13233-240-3830 | Agent Code: | |
| Type: | Real | | |
| Tax Area: | 300 - APPRAISER-Cpvl Schl Dist, in Cpvl | Land Use Code | 67 |
| Open Space: | N | DFL | N |
| Historic Property: | N | Remodel Property: | N |
| Multi-Family Redevelopment: | N | | |
| Township: | 32 | Section: | 33 |
| Range: | R1 |
Location |
| Address: | 410 N MAIN ST COUPEVILLE, WA 98239 | Mapsco: | |
| Neighborhood: | Area 2 Coupeville Exempt Commercial | Map ID: | 173 |
| Neighborhood CD: | 2CpvExComm |
Owner |
| Name: | ISLAND COUNTY | Owner ID: | 307759 |
| Mailing Address: | FACILITIES MANAGEMENT 1 NE 7TH ST COUPEVILLE, WA 98239 | % Ownership: | 100.0000000000% |
| | | Exemptions: | EX |
Taxes and Assessment Details
Values
| (+) Improvement Homesite Value: | + | $0 | |
| (+) Improvement Non-Homesite Value: | + | $164,747 | |
| (+) Land Homesite Value: | + | $0 | |
| (+) Land Non-Homesite Value: | + | $139,392 | |
| (+) Curr Use (HS): | + | $0 | $0 |
| (+) Curr Use (NHS): | + | $0 | $0 |
| | | -------------------------- | |
| (=) Market Value: | = | $304,139 | |
| (–) Productivity Loss: | – | $0 | |
| | | -------------------------- | |
| (=) Subtotal: | = | $304,139 | |
| (+) Senior Appraised Value: | + | $0 | |
| (+) Non-Senior Appraised Value: | + | $304,139 | |
| | | -------------------------- | |
| (=) Total Appraised Value: | = | $304,139 | |
| (–) Senior Exemption Loss: | – | $0 | |
| (–) Exemption Loss: | – | $304,139 | |
| | | -------------------------- | |
| (=) Taxable Value: | = | $0 | |
Taxing Jurisdiction
| Owner: | ISLAND COUNTY | | |
| % Ownership: | 100.0000000000% | | |
| Total Value: | $304,139 | | |
| Tax Area: | 300 - APPRAISER-Cpvl Schl Dist, in Cpvl |
| CF | Conservation Futures | 0.0316035091 | $304,139 | $0 | $0.00 | | |
| CEM2 | Cemetery #2 | 0.0095056933 | $304,139 | $0 | $0.00 | | |
| COUP | City: Town of Coupeville | 0.8426414490 | $304,139 | $0 | $0.00 | | |
| FIRE5 | Fire & Rescue Dist #5 C Whidbey GEN | 1.2008080668 | $304,139 | $0 | $0.00 | | |
| FIRE5BOND | Fire & Rescue Dist #5 C Whidbey BOND | 0.1400090713 | $304,139 | $0 | $0.00 | | |
| HOBOND | Hospital BOND | 0.1910887512 | $304,139 | $0 | $0.00 | | |
| HOGEN | Hospital GEN | 0.3902502903 | $304,139 | $0 | $0.00 | | |
| CE | County Current Expense | 0.3708482477 | $304,139 | $0 | $0.00 | | |
| ISLANDEMS | Hospital GEN (EMS) | 0.5000000000 | $304,139 | $0 | $0.00 | | |
| LIB | Library Sno-Isle GEN | 0.3153421757 | $304,139 | $0 | $0.00 | | |
| LIBCAP | Library Sno-Isle BOND (Cap Fac Imp Area) | 0.0543427938 | $304,139 | $0 | $0.00 | | |
| POCOUP | Port of Coupeville GEN | 0.1093371703 | $304,139 | $0 | $0.00 | | |
| POCOUPIDD | Port of Coupeville IDD | 0.3409740022 | $304,139 | $0 | $0.00 | | |
| COUPSDTECH | School 204 CP (TECH) | 0.7545480007 | $304,139 | $0 | $0.00 | | |
| SCH204MO | School 204 Enrichment | 0.6716186034 | $304,139 | $0 | $0.00 | | |
| ST | State School | 1.3035497053 | $304,139 | $0 | $0.00 | | |
| ST2 | State School Part 2 | 0.8169543533 | $304,139 | $0 | $0.00 | | |
| | Total Tax Rate: | 8.0434218834 | | | | | |
| | | | | Taxes w/Current Exemptions: | $0.00 | | |
| | | | | Taxes w/o Exemptions: | $2,446.32 | | |
Improvement / Building
| Improvement #1: | COMMERCIAL | State Code: | F1 | 1438.0 sqft | Value: | $164,747 |
| Bathrooms: | 0 | Bedrooms: | 0 | | Ceiling: | DRYWALL PAINTED | Exterior Wall/Cover: | WD SIDING/WOOD FRAME | | Floor Covering: | CARPET 100% | Foundation: | CONCRETE | | Heating: | HEAT PUMP | Interior Finish: | OFFICE | | Plumbing Fixture Cnt: | 1 | Roof Slope: | 6" IN 12" | | Roof Structure/Cover: | CJ ASPHALT |   |   |
|
| | Type | Description | Class CD | Sub Class CD | Year Built | Area |
| | BAS | BASE/MAIN FLOOR | 3 | 0 | 1968 | 1438.0 |
| | OP2 | OPEN PORCH W/STEPS | 3 | 0 | 1968 | 68.0 |
| | OWP | OPEN WOOD PORCH W/STEPS | 3 | 0 | 1968 | 48.0 |
| | oPV1 | PV/ASPH 2" | 3 | 0 | 1968 | 2170.0 |
Sketch
Property Image
Land
| 1 | 77 | COMMUNITY | 0.1600 | 6969.60 | 0.00 | 0.00 | 1.00 | $139,392 | $0 |
Roll Value History
| 2026 | N/A | N/A | N/A | N/A | N/A |
| 2025 | $164,747 | $139,392 | $0 | $304,139 | $0 |
| 2024 | $126,975 | $139,392 | $0 | $266,367 | $0 |
| 2023 | $131,934 | $139,392 | $0 | $271,326 | $0 |
| 2022 | $111,711 | $139,392 | $0 | $251,103 | $0 |
| 2021 | $111,445 | $139,392 | $0 | $250,837 | $0 |
| 2020 | $111,413 | $139,392 | $0 | $250,805 | $0 |
| 2019 | $105,295 | $139,392 | $0 | $244,687 | $0 |
| 2018 | $76,713 | $139,392 | $0 | $216,105 | $0 |
| 2017 | $76,713 | $62,726 | $0 | $139,439 | $0 |
| 2016 | $76,713 | $62,726 | $0 | $139,439 | $0 |
| 2015 | $79,956 | $59,242 | $0 | $139,198 | $0 |
| 2014 | $82,221 | $59,242 | $0 | $141,463 | $0 |
| 2013 | $80,171 | $59,242 | $0 | $139,413 | $0 |
| 2012 | $95,406 | $86,802 | $0 | $182,208 | $0 |
| 2011 | $50,720 | $86,802 | $0 | $137,522 | $0 |
| 2010 | $76,422 | $86,802 | $0 | $163,224 | $0 |
| 2009 | $79,064 | $117,093 | $0 | $196,157 | $0 |
| 2008 | $80,386 | $117,093 | $0 | $197,479 | $0 |
| 2007 | $83,029 | $117,093 | $0 | $200,122 | $0 |
Deed and Sales History
| 1 | 06/01/1988 | WD | Warranty Deed | YORIOKA, GERALD N | ISLAND, COUNTY | | | $73,790.00 | 82028 | 88007525 |
| 2 | 01/01/1900 | OTHER | Other - Misc. Documents | Unknown | YORIOKA, GERALD N | | | $0.00 | 0 | 0 |
Payout Agreement
| No payout information available.. |