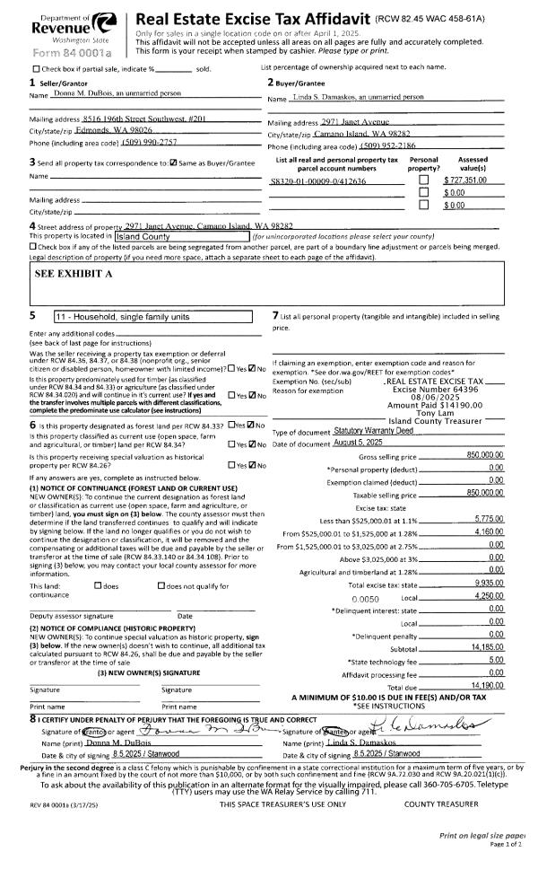
Property
Account |
| Property ID: | 487752 | Abbreviated Legal Description: | REPLACES 2493600 36 ALEX DC - BG SWCR L4 B15 ALEX-GLEN E80' TPB E20' TO SE CR L4 N16' TO SLN OF 3RD ST E249.37' TO NW CR L3 B19 S348' W269.37' N332' TPB |
| Geographic ID: | R13233-249-3680 | Agent Code: | |
| Type: | Real | | |
| Tax Area: | 300 - APPRAISER-Cpvl Schl Dist, in Cpvl | Land Use Code | 13 |
| Open Space: | N | DFL | N |
| Historic Property: | N | Remodel Property: | N |
| Multi-Family Redevelopment: | N | | |
| Township: | 32 | Section: | 33 |
| Range: | R1 |
Location |
| Address: | 7 NW 6TH ST COUPEVILLE, WA 98239 | Mapsco: | |
| Neighborhood: | 2 Main Street Commercial | Map ID: | 173 |
| Neighborhood CD: | 21cCPmain1 |
Owner |
| Name: | I C HOUSING AUTHORITY | Owner ID: | 7268 |
| Mailing Address: | 7 NW 6TH ST COUPEVILLE, WA 98239 | % Ownership: | 100.0000000000% |
| | | Exemptions: | EX |
Taxes and Assessment Details
Property Tax Information as of
10/22/2025
Click on "Statement Details" to expand or collapse a tax statement.
* Please enter a valid date ** Please enter a valid date *
Statement Details |
| 2025 | 33606 | ST - State School | $0.00 | $0.00 | $0.00 | $0.00 | $0.00 | $0.00 |
| 2025 | 33606 | Island County - Island County General Fund | $0.00 | $0.00 | $0.00 | $0.00 | $0.00 | $0.00 |
| 2025 | 33606 | CICPVL - City: Town of Coupeville | $0.00 | $0.00 | $0.00 | $0.00 | $0.00 | $0.00 |
| 2025 | 33606 | PRTCPVL - Port of Coupeville | $0.00 | $0.00 | $0.00 | $0.00 | $0.00 | $0.00 |
| 2025 | 33606 | SCH204 - School 204 Coupeville | $0.00 | $0.00 | $0.00 | $0.00 | $0.00 | $0.00 |
| 2025 | 33606 | CEM2 - Cemetery #2 Central Whidbey | $0.00 | $0.00 | $0.00 | $0.00 | $0.00 | $0.00 |
| 2025 | 33606 | FIRE5 - Fire & Rescue Dist #5 Central Whidbey | $0.00 | $0.00 | $0.00 | $0.00 | $0.00 | $0.00 |
| 2025 | 33606 | LIB - Library Sno-Isle Regional | $0.00 | $0.00 | $0.00 | $0.00 | $0.00 | $0.00 |
| 2025 | 33606 | HOSPEMS - Whidbey Health EMS Island County | $0.00 | $0.00 | $0.00 | $0.00 | $0.00 | $0.00 |
| 2025 | 33606 | HOSP - Whidbey Health | $0.00 | $0.00 | $0.00 | $0.00 | $0.00 | $0.00 |
| 2025 | 33606 | CF - Island County Conservation Futures | $0.00 | $0.00 | $0.00 | $0.00 | $0.00 | $0.00 |
| 2025 | 33606 | TOTAL: | $0.00 | $0.00 | $0.00 | $0.00 | $0.00 | $0.00 |
|
| 2025 | 33606 | $0.00 | $0.00 | $0.00 | $0.00 | $0.00 | $0.00 |
Statement Details |
| 2020 | 33522 | WDBYCNV - Whidbey Conservation District | $5.11 | $0.00 | $0.00 | $0.00 | $5.11 | $0.00 |
| 2020 | 33522 | TOTAL: | $5.11 | $0.00 | $0.00 | $0.00 | $5.11 | $0.00 |
|
| 2020 | 33522 | $5.11 | $0.00 | $0.00 | $0.00 | $5.11 | $0.00 |
Statement Details |
| 2016 | 34052 | WDBYCNV - Whidbey Conservation District | $0.00 | $0.00 | $0.00 | $0.00 | $0.00 | $0.00 |
| 2016 | 34052 | TOTAL: | $0.00 | $0.00 | $0.00 | $0.00 | $0.00 | $0.00 |
|
| 2016 | 34052 | $0.00 | $0.00 | $0.00 | $0.00 | $0.00 | $0.00 |
Values
| (+) Improvement Homesite Value: | + | $0 | |
| (+) Improvement Non-Homesite Value: | + | $1,211,643 | |
| (+) Land Homesite Value: | + | $0 | |
| (+) Land Non-Homesite Value: | + | $936,540 | |
| (+) Curr Use (HS): | + | $0 | $0 |
| (+) Curr Use (NHS): | + | $0 | $0 |
| | | -------------------------- | |
| (=) Market Value: | = | $2,148,183 | |
| (–) Productivity Loss: | – | $0 | |
| | | -------------------------- | |
| (=) Subtotal: | = | $2,148,183 | |
| (+) Senior Appraised Value: | + | $0 | |
| (+) Non-Senior Appraised Value: | + | $2,148,183 | |
| | | -------------------------- | |
| (=) Total Appraised Value: | = | $2,148,183 | |
| (–) Senior Exemption Loss: | – | $0 | |
| (–) Exemption Loss: | – | $2,148,183 | |
| | | -------------------------- | |
| (=) Taxable Value: | = | $0 | |
Taxing Jurisdiction
| Owner: | I C HOUSING AUTHORITY | | |
| % Ownership: | 100.0000000000% | | |
| Total Value: | $2,148,183 | | |
| Tax Area: | 300 - APPRAISER-Cpvl Schl Dist, in Cpvl |
| CF | Conservation Futures | 0.0316035091 | $2,148,183 | $0 | $0.00 | | |
| CEM2 | Cemetery #2 | 0.0095056933 | $2,148,183 | $0 | $0.00 | | |
| COUP | City: Town of Coupeville | 0.8426414490 | $2,148,183 | $0 | $0.00 | | |
| FIRE5 | Fire & Rescue Dist #5 C Whidbey GEN | 1.2008080668 | $2,148,183 | $0 | $0.00 | | |
| FIRE5BOND | Fire & Rescue Dist #5 C Whidbey BOND | 0.1400090713 | $2,148,183 | $0 | $0.00 | | |
| HOBOND | Hospital BOND | 0.1910887512 | $2,148,183 | $0 | $0.00 | | |
| HOGEN | Hospital GEN | 0.3902502903 | $2,148,183 | $0 | $0.00 | | |
| CE | County Current Expense | 0.3708482477 | $2,148,183 | $0 | $0.00 | | |
| ISLANDEMS | Hospital GEN (EMS) | 0.5000000000 | $2,148,183 | $0 | $0.00 | | |
| LIB | Library Sno-Isle GEN | 0.3153421757 | $2,148,183 | $0 | $0.00 | | |
| LIBCAP | Library Sno-Isle BOND (Cap Fac Imp Area) | 0.0543427938 | $2,148,183 | $0 | $0.00 | | |
| POCOUP | Port of Coupeville GEN | 0.1093371703 | $2,148,183 | $0 | $0.00 | | |
| POCOUPIDD | Port of Coupeville IDD | 0.3409740022 | $2,148,183 | $0 | $0.00 | | |
| COUPSDTECH | School 204 CP (TECH) | 0.7545480007 | $2,148,183 | $0 | $0.00 | | |
| SCH204MO | School 204 Enrichment | 0.6716186034 | $2,148,183 | $0 | $0.00 | | |
| ST | State School | 1.3035497053 | $2,148,183 | $0 | $0.00 | | |
| ST2 | State School Part 2 | 0.8169543533 | $2,148,183 | $0 | $0.00 | | |
| | Total Tax Rate: | 8.0434218834 | | | | | |
| | | | | Taxes w/Current Exemptions: | $0.00 | | |
| | | | | Taxes w/o Exemptions: | $17,278.75 | | |
Improvement / Building
| Improvement #1: | COMMERCIAL | State Code: | A1 | 2268.0 sqft | Value: | $201,430 |
| Bathrooms: | 4 | Bedrooms: | 4 | | Ceiling: | DRYWALL PAINTED | Exterior Wall/Cover: | SHINGLE | | Floor Covering: | VINYL 100% | Floor Structure: | SLAB ON GRADE | | Foundation: | CONCRETE | Heating: | HEAT PUMP | | Interior Finish: | DRYWALL PAINT | Plumbing Fixture Cnt: | 20 | | Roof Slope: | 4" IN 12" | Roof Structure/Cover: | CJ ASPHALT |
|
| | Type | Description | Class CD | Sub Class CD | Year Built | Area |
| | BAS | BASE/MAIN FLOOR | 3 | 0 | 1968 | 2268.0 |
| | OP3 | OPEN PORCH W/ROOF | 3 | 0 | 1968 | 306.0 |
| | OP1 | OPEN PORCH SLAB | 3 | 0 | 1968 | 392.0 |
| Improvement #2: | COMMERCIAL | State Code: | A1 | 3288.0 sqft | Value: | $277,967 |
| Bathrooms: | 6 | Bedrooms: | 6 | | Ceiling: | DRYWALL PAINTED | Cooling: | HEAT PUMP/CONV/V | | Exterior Wall/Cover: | SHINGLE | Floor Covering: | VINYL 100% | | Floor Structure: | SLAB ON GRADE | Foundation: | CONCRETE | | Interior Finish: | DRYWALL PAINT | Plumbing Fixture Cnt: | 30 | | Roof Slope: | 4" IN 12" | Roof Structure/Cover: | CJ ASPHALT |
|
| | Type | Description | Class CD | Sub Class CD | Year Built | Area |
| | BAS | BASE/MAIN FLOOR | 3 | 0 | 1968 | 3288.0 |
| | OP3 | OPEN PORCH W/ROOF | 3 | 0 | 1968 | 144.0 |
| | OP1 | OPEN PORCH SLAB | 3 | 0 | 1968 | 552.0 |
| | OWP | OPEN WOOD PORCH W/STEPS | 3 | 0 | 1968 | 300.0 |
| Improvement #3: | COMMERCIAL | State Code: | A1 | 3288.0 sqft | Value: | $273,405 |
| Bathrooms: | 6 | Bedrooms: | 6 | | Ceiling: | DRYWALL PAINTED | Cooling: | HEAT PUMP/CONV/V | | Exterior Wall/Cover: | SHINGLE | Floor Covering: | VINYL 100% | | Floor Structure: | SLAB ON GRADE | Foundation: | CONCRETE | | Interior Finish: | DRYWALL PAINT | Plumbing Fixture Cnt: | 30 | | Roof Slope: | 4" IN 12" | Roof Structure/Cover: | CJ ASPHALT |
|
| | Type | Description | Class CD | Sub Class CD | Year Built | Area |
| | BAS | BASE/MAIN FLOOR | 3 | 0 | 1968 | 3288.0 |
| | OP3 | OPEN PORCH W/ROOF | 3 | 0 | 1968 | 144.0 |
| | OP1 | OPEN PORCH SLAB | 3 | 0 | 1968 | 300.0 |
| | OP1 | OPEN PORCH SLAB | 3 | 0 | 1968 | 240.0 |
| Improvement #4: | COMMERCIAL | State Code: | A1 | 1834.0 sqft | Value: | $306,595 |
| Bathrooms: | 0 | Bedrooms: | 0 | | Ceiling: | DRYWALL PAINTED | Cooling: | HEAT PUMP/CONV/V | | Exterior Wall/Cover: | SHINGLE | Floor Covering: | COMPOSITION TILE | | Floor Structure: | CONCRETE ON GROUND | Foundation: | CONCRETE | | Interior Finish: | OFFICE | Plumbing Fixture Cnt: | 1 | | Roof Structure/Cover: | COMP OPEN WOOD |   |   |
|
| | Type | Description | Class CD | Sub Class CD | Year Built | Area |
| | BAS | BASE/MAIN FLOOR | 3 | 0 | 1968 | 1834.0 |
| | UTY | STORAGE/UTILITY | 3 | 0 | 1968 | 220.0 |
| | UTY | STORAGE/UTILITY | 3 | 0 | 1968 | 180.0 |
| | OP1 | OPEN PORCH SLAB | 3 | 0 | 1968 | 2431.6 |
| | oPV1 | PV/ASPH 2" | 3 | 0 | 1968 | 27000.0 |
| Improvement #5: | COMMERCIAL | State Code: | A1 | 1664.0 sqft | Value: | $152,246 |
| Bathrooms: | 4 | Bedrooms: | 4 | | Ceiling: | DRYWALL PAINTED | Exterior Wall/Cover: | SHINGLE | | Floor Covering: | VINYL 100% | Floor Structure: | SLAB ON GRADE | | Foundation: | CONCRETE | Heating: | HEAT PUMP | | Interior Finish: | DRYWALL PAINT | Plumbing Fixture Cnt: | 20 | | Roof Slope: | 4" IN 12" | Roof Structure/Cover: | CJ ASPHALT |
|
| | Type | Description | Class CD | Sub Class CD | Year Built | Area |
| | BAS | BASE/MAIN FLOOR | 3 | 0 | 1968 | 1664.0 |
| | OP3 | OPEN PORCH W/ROOF | 3 | 0 | 1968 | 128.0 |
| | OP1 | OPEN PORCH SLAB | 3 | 0 | 1968 | 200.0 |
| | UTY | STORAGE/UTILITY | 3 | 0 | 1968 | 64.0 |
Sketch
Property Image
Land
| 1 | 77 | COMMUNITY | 2.1500 | 93654.00 | 0.00 | 0.00 | 1.00 | $936,540 | $0 |
Roll Value History
| 2026 | N/A | N/A | N/A | N/A | N/A |
| 2025 | $1,211,643 | $936,540 | $0 | $2,148,183 | $0 |
| 2024 | $1,012,893 | $936,540 | $0 | $1,949,433 | $0 |
| 2023 | $1,030,744 | $936,540 | $0 | $1,967,284 | $0 |
| 2022 | $843,174 | $936,540 | $0 | $1,779,714 | $0 |
| 2021 | $834,862 | $936,540 | $0 | $1,771,402 | $0 |
| 2020 | $833,418 | $936,540 | $0 | $1,769,958 | $0 |
| 2019 | $764,292 | $936,540 | $0 | $1,700,832 | $0 |
| 2018 | $651,239 | $936,540 | $0 | $1,587,779 | $0 |
| 2017 | $651,354 | $608,751 | $0 | $1,260,105 | $0 |
| 2016 | $651,589 | $608,751 | $0 | $1,260,340 | $0 |
| 2015 | $675,825 | $608,751 | $0 | $1,284,576 | $0 |
| 2014 | $677,914 | $608,751 | $0 | $1,286,665 | $0 |
| 2013 | $650,588 | $608,751 | $0 | $1,259,339 | $0 |
| 2012 | $814,506 | $393,181 | $0 | $1,207,687 | $0 |
| 2011 | $777,783 | $393,181 | $0 | $1,170,964 | $0 |
| 2010 | $866,641 | $393,181 | $0 | $1,259,822 | $0 |
| 2009 | $872,807 | $534,947 | $0 | $1,407,754 | $0 |
| 2008 | $889,072 | $529,899 | $0 | $1,418,971 | $0 |
| 2007 | $900,313 | $529,899 | $0 | $1,430,212 | $0 |
Deed and Sales History
Payout Agreement
| No payout information available.. |