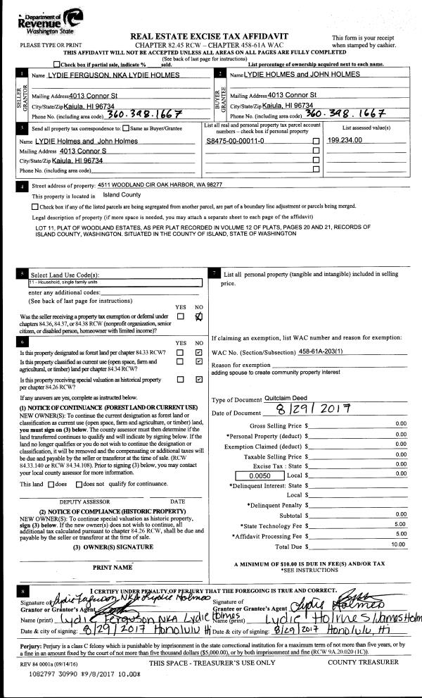
Property
Account |
| Property ID: | 488092 | Abbreviated Legal Description: | REPLACES 0250650 6 HOWE DC - E100'OF SD DC LY S OF CO RD AS MEAS PERP TO & PAR/ELN SD DC |
| Geographic ID: | R13220-025-3260 | Agent Code: | |
| Type: | Real | | |
| Tax Area: | 332 - APPRAISER-Cpvl Schl Dist, Special Dist, improved, greater than 1 acre | Land Use Code | 11 |
| Open Space: | N | DFL | N |
| Historic Property: | N | Remodel Property: | N |
| Multi-Family Redevelopment: | N | | |
| Township: | 32 | Section: | 20 |
| Range: | R1 |
Location |
| Address: | 1751 ARNOLD RD OAK HARBOR, WA 98277 | Mapsco: | |
| Neighborhood: | Cycle 2 | Map ID: | 146 |
| Neighborhood CD: | 2 |
Owner |
| Name: | FRENCH, BARBARA L | Owner ID: | 280329 |
| Mailing Address: | MICHAEL S MATTER 1751 ARNOLD RD OAK HARBOR, WA 98277 | % Ownership: | 100.0000000000% |
| | | Exemptions: | |
Taxes and Assessment Details
Values
| (+) Improvement Homesite Value: | + | $0 | |
| (+) Improvement Non-Homesite Value: | + | $1,005,123 | |
| (+) Land Homesite Value: | + | $0 | |
| (+) Land Non-Homesite Value: | + | $349,041 | |
| (+) Curr Use (HS): | + | $0 | $0 |
| (+) Curr Use (NHS): | + | $0 | $0 |
| | | -------------------------- | |
| (=) Market Value: | = | $1,354,164 | |
| (–) Productivity Loss: | – | $0 | |
| | | -------------------------- | |
| (=) Subtotal: | = | $1,354,164 | |
| (+) Senior Appraised Value: | + | $0 | |
| (+) Non-Senior Appraised Value: | + | $1,354,164 | |
| | | -------------------------- | |
| (=) Total Appraised Value: | = | $1,354,164 | |
| (–) Senior Exemption Loss: | – | $0 | |
| (–) Exemption Loss: | – | $0 | |
| | | -------------------------- | |
| (=) Taxable Value: | = | $1,354,164 | |
Taxing Jurisdiction
| Owner: | FRENCH, BARBARA L | | |
| % Ownership: | 100.0000000000% | | |
| Total Value: | $1,354,164 | | |
| Tax Area: | 332 - APPRAISER-Cpvl Schl Dist, Special Dist, improved, greater than 1 acre |
| CF | Conservation Futures | 0.0316035091 | $1,354,164 | $1,354,164 | $42.80 | | |
| CEM2 | Cemetery #2 | 0.0095056933 | $1,354,164 | $1,354,164 | $12.87 | | |
| FIRE2 | Fire & Rescue Dist #2 N Whidbey GEN | 0.5475949600 | $1,354,164 | $1,354,164 | $741.53 | | |
| HOBOND | Hospital BOND | 0.1910887512 | $1,354,164 | $1,354,164 | $258.77 | | |
| HOGEN | Hospital GEN | 0.3902502903 | $1,354,164 | $1,354,164 | $528.46 | | |
| CE | County Current Expense | 0.3708482477 | $1,354,164 | $1,354,164 | $502.19 | | |
| CR | County Roads | 0.4584763726 | $1,354,164 | $1,354,164 | $620.85 | | |
| ISLANDEMS | Hospital GEN (EMS) | 0.5000000000 | $1,354,164 | $1,354,164 | $677.08 | | |
| LIB | Library Sno-Isle GEN | 0.3153421757 | $1,354,164 | $1,354,164 | $427.03 | | |
| LIBCAP | Library Sno-Isle BOND (Cap Fac Imp Area) | 0.0543427938 | $1,354,164 | $1,354,164 | $73.59 | | |
| POCOUP | Port of Coupeville GEN | 0.1093371703 | $1,354,164 | $1,354,164 | $148.06 | | |
| POCOUPIDD | Port of Coupeville IDD | 0.3409740022 | $1,354,164 | $1,354,164 | $461.73 | | |
| COUPSDTECH | School 204 CP (TECH) | 0.7545480007 | $1,354,164 | $1,354,164 | $1,021.78 | | |
| SCH204MO | School 204 Enrichment | 0.6716186034 | $1,354,164 | $1,354,164 | $909.48 | | |
| ST | State School | 1.3035497053 | $1,354,164 | $1,354,164 | $1,765.22 | | |
| ST2 | State School Part 2 | 0.8169543533 | $1,354,164 | $1,354,164 | $1,106.29 | | |
| | Total Tax Rate: | 6.8660346289 | | | | | |
| | | | | Taxes w/Current Exemptions: | $9,297.73 | | |
| | | | | Taxes w/o Exemptions: | $9,297.73 | | |
Improvement / Building
| Improvement #1: | RESIDENTIAL | State Code: | Y | 2534.4 sqft | Value: | $846,152 |
| Bathrooms: | 1.75 | Bedrooms: | 2 | | Ceiling: | TONGUE & GROOVE | Exterior Wall/Cover: | CEMENT FIBER | | Floor Covering: | SLATE | Floor Structure: | SLAB ABOVE GRADE | | Foundation: | CONCRETE | Heating: | RADIANT FLOOR | | Interior Finish: | DRYWALL PAINT | Plumbing Fixture Cnt: | 11 | | Roof Slope: | 6" IN 12" | Roof Structure/Cover: | BEAM ASPHALT |
|
| | Type | Description | Class CD | Sub Class CD | Year Built | Area |
| | BAS | BASE/MAIN FLOOR | 6 | 0 | 2005 | 2380.4 |
| | DWN | DOWNSTAIRS LIVING AREA | 6 | 0 | 2005 | 154.0 |
| | OP3 | OPEN PORCH W/ROOF | 6 | 0 | 2005 | 180.0 |
| | OCP | OPEN CARPORT | 6 | 0 | 2005 | 506.0 |
| | UTY | STORAGE/UTILITY | 6 | 0 | 2005 | 78.0 |
| | OWP | OPEN WOOD PORCH W/STEPS | 6 | 0 | 2005 | 54.0 |
| | OWC | OPEN WOOD PORCH W/STEPS/ROOF/C | 6 | 0 | 2005 | 154.0 |
| | OWC | OPEN WOOD PORCH W/STEPS/ROOF/C | 6 | 0 | 2005 | 440.0 |
| Improvement #2: | RESIDENTIAL | State Code: | Y | 493.5 sqft | Value: | $158,971 |
| Bathrooms: | 1 | Bedrooms: | 1 | | Ceiling: | TONGUE & GROOVE | Exterior Wall/Cover: | LOG RUSTIC HAND HEWN/OVERSIZED | | Floor Covering: | TILE CERAMIC | Floor Structure: | WOOD W/SUBFLOOR | | Foundation: | CONCRETE | Heating: | WALL HEAT ELECTRIC | | Interior Finish: | DRYWALL PAINT | Plumbing Fixture Cnt: | 4 | | Roof Slope: | 8" IN 12" | Roof Structure/Cover: | CJ ALUMINIUM HEAVY |
|
| | Type | Description | Class CD | Sub Class CD | Year Built | Area |
| | BAS | BASE/MAIN FLOOR | 4 | 0 | 2001 | 399.0 |
| | OWP | OPEN WOOD PORCH W/STEPS | 4 | 0 | 2001 | 114.0 |
| | UPH | HALF STORY | 4 | 0 | 2001 | 94.5 |
Sketch
Property Image
Land
| 1 | HS | HOMESITE | 1.0000 | 43560.00 | 0.00 | 0.00 | 1.00 | $340,000 | $0 |
| 2 | 91 | UNDEVELOPED LAND-METES AND BOUNDS | 0.9041 | 39382.60 | 0.00 | 0.00 | 1.00 | $9,041 | $0 |
Roll Value History
| 2026 | N/A | N/A | N/A | N/A | N/A |
| 2025 | $1,005,123 | $349,041 | $0 | $1,354,164 | $1,354,164 |
| 2024 | $967,623 | $350,000 | $0 | $1,317,623 | $1,317,623 |
| 2023 | $848,762 | $390,000 | $0 | $1,238,762 | $1,238,762 |
| 2022 | $799,704 | $350,000 | $0 | $1,149,704 | $1,149,704 |
| 2021 | $703,349 | $350,000 | $0 | $1,053,349 | $1,053,349 |
| 2020 | $683,418 | $350,000 | $0 | $1,033,418 | $1,033,418 |
| 2019 | $554,572 | $350,000 | $0 | $904,572 | $904,572 |
| 2018 | $556,106 | $190,000 | $0 | $746,106 | $746,106 |
| 2017 | $400,083 | $190,000 | $0 | $590,083 | $590,083 |
| 2016 | $404,661 | $150,000 | $0 | $554,661 | $554,661 |
| 2015 | $404,661 | $120,000 | $0 | $524,661 | $524,661 |
| 2014 | $383,813 | $120,000 | $0 | $503,813 | $503,813 |
| 2013 | $388,107 | $123,250 | $0 | $511,357 | $511,357 |
| 2012 | $395,603 | $123,250 | $0 | $518,853 | $518,853 |
| 2011 | $403,657 | $145,000 | $0 | $548,657 | $548,657 |
| 2010 | $411,895 | $145,000 | $0 | $556,895 | $556,895 |
| 2009 | $424,347 | $136,500 | $0 | $560,847 | $560,847 |
| 2008 | $426,932 | $150,003 | $0 | $576,935 | $576,935 |
| 2007 | $247,986 | $151,992 | $0 | $399,978 | $399,978 |
Deed and Sales History
| 1 | 06/20/2017 | WD | Warranty Deed | EISENMAN, DAVID | FRENCH, BARBARA L | | | $905,000.00 | 29682 | 4424015 |
|   | |
| 2 | 10/01/1999 | WD | Warranty Deed | DENNIS, GERTRUDE A | EISENMAN, DAVID | | | $85,364.00 | 94164 | 99022801 |
| 3 | 05/28/1999 | OTHER | Other - Misc. Documents | DENNIS, JOHN S | DENNIS, GERTRUDE A | | | $0.00 | 68279 | 97011582 |
| 4 | 08/01/1980 | WD | Warranty Deed | HARWARD, ALFRED G | DENNIS, JOHN S | | | $58,000.00 | 2800 | 372775 |
| 5 | 01/01/1900 | OTHER | Other - Misc. Documents | Unknown | HARWARD, ALFRED G | | | $0.00 | 0 | 0 |
| 6 | 01/01/1900 | OTHER | Other - Misc. Documents | DENNIS, JOHN S | DENNIS, JOHN S | | | $0.00 | 0 | 0 |
Payout Agreement
| No payout information available.. |