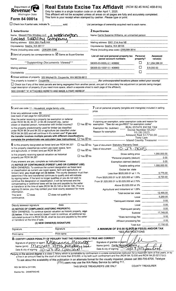
Property
Account |
| Property ID: | 48870 | Abbreviated Legal Description: | IN S/2 SW NE: BG SW CR SW NE E223.04' N14*W418.84' TPB N14*E263' E430' SELY ALG WLN RD TP N74*E TO TPB S74*W470' TPB SUB WELL POLL COV AF#308602 TGW SUB EZ |
| Geographic ID: | R22908-318-2950 | Agent Code: | |
| Type: | Real | | |
| Tax Area: | 712 - APPRAISER-S Whid Schl Dist, outside Langley, improved, greater than 1 acre | Land Use Code | 11 |
| Open Space: | N | DFL | N |
| Historic Property: | N | Remodel Property: | N |
| Multi-Family Redevelopment: | N | | |
| Township: | 29 | Section: | 08 |
| Range: | R2 |
Location |
| Address: | 5363 SHADOW LN FREELAND, WA 98249 | Mapsco: | |
| Neighborhood: | Cycle 3 | Map ID: | 304 |
| Neighborhood CD: | 3 |
Owner |
| Name: | ANDREWS, KIRSTEN | Owner ID: | 316906 |
| Mailing Address: | 5363 SHADOW LN FREELAND, WA 98249 | % Ownership: | 100.0000000000% |
| | | Exemptions: | |
Taxes and Assessment Details
Values
| (+) Improvement Homesite Value: | + | $0 | |
| (+) Improvement Non-Homesite Value: | + | $437,114 | |
| (+) Land Homesite Value: | + | $0 | |
| (+) Land Non-Homesite Value: | + | $310,000 | |
| (+) Curr Use (HS): | + | $0 | $0 |
| (+) Curr Use (NHS): | + | $0 | $0 |
| | | -------------------------- | |
| (=) Market Value: | = | $747,114 | |
| (–) Productivity Loss: | – | $0 | |
| | | -------------------------- | |
| (=) Subtotal: | = | $747,114 | |
| (+) Senior Appraised Value: | + | $0 | |
| (+) Non-Senior Appraised Value: | + | $747,114 | |
| | | -------------------------- | |
| (=) Total Appraised Value: | = | $747,114 | |
| (–) Senior Exemption Loss: | – | $0 | |
| (–) Exemption Loss: | – | $0 | |
| | | -------------------------- | |
| (=) Taxable Value: | = | $747,114 | |
Taxing Jurisdiction
| Owner: | ANDREWS, KIRSTEN | | |
| % Ownership: | 100.0000000000% | | |
| Total Value: | $747,114 | | |
| Tax Area: | 712 - APPRAISER-S Whid Schl Dist, outside Langley, improved, greater than 1 acre |
| CF | Conservation Futures | 0.0316035091 | $747,114 | $747,114 | $23.61 | | |
| FIRE3 | Fire & Rescue Dist #3 S Whidbey GEN | 1.2004855531 | $747,114 | $747,114 | $896.90 | | |
| HOBOND | Hospital BOND | 0.1910887512 | $747,114 | $747,114 | $142.77 | | |
| HOGEN | Hospital GEN | 0.3902502903 | $747,114 | $747,114 | $291.56 | | |
| CE | County Current Expense | 0.3708482477 | $747,114 | $747,114 | $277.07 | | |
| CR | County Roads | 0.4584763726 | $747,114 | $747,114 | $342.53 | | |
| ISLANDEMS | Hospital GEN (EMS) | 0.5000000000 | $747,114 | $747,114 | $373.56 | | |
| LIB | Library Sno-Isle GEN | 0.3153421757 | $747,114 | $747,114 | $235.60 | | |
| PORTWHID | Port of S Whidbey GEN | 0.1094540357 | $747,114 | $747,114 | $81.77 | | |
| SCH206BOND | School 206 BOND | 0.3161759235 | $747,114 | $747,114 | $236.22 | | |
| SCH206MO | School 206 Enrichment | 0.4547169547 | $747,114 | $747,114 | $339.73 | | |
| ST | State School | 1.3035497053 | $747,114 | $747,114 | $973.90 | | |
| ST2 | State School Part 2 | 0.8169543533 | $747,114 | $747,114 | $610.36 | | |
| SWHIDPRBD | P & R S Whidbey BOND | 0.0152817568 | $747,114 | $747,114 | $11.42 | | |
| SWHIDPRBD2 | P & R S Whidbey BOND2 | 0.0138911264 | $747,114 | $747,114 | $10.38 | | |
| SWHIDPRMT | P & R S Whidbey GEN | 0.2053334452 | $747,114 | $747,114 | $153.41 | | |
| | Total Tax Rate: | 6.6934522006 | | | | | |
| | | | | Taxes w/Current Exemptions: | $5,000.79 | | |
| | | | | Taxes w/o Exemptions: | $5,000.79 | | |
Improvement / Building
| Improvement #1: | RESIDENTIAL | State Code: | Y | 3127.5 sqft | Value: | $437,114 |
| Bathrooms: | 2.5 | Bedrooms: | 4 | | Ceiling: | DRYWALL PAINTED | Exterior Wall/Cover: | CEMENT FIBER | | Floor Covering: | CARPET/VINYL 60-40 | Floor Structure: | WOOD W/SUBFLOOR | | Foundation: | CONCRETE | Heating: | FHA GAS | | Interior Finish: | DRYWALL PAINT | Plumbing Fixture Cnt: | 18 | | Roof Slope: | 5" IN 12" | Roof Structure/Cover: | CJ ASPHALT |
|
| | Type | Description | Class CD | Sub Class CD | Year Built | Area |
| | BAS | BASE/MAIN FLOOR | 3 | 0 | 2001 | 2015.5 |
| | AGR | ATTACHED GARAGE | 3 | 0 | 2001 | 399.0 |
| | UPS | UPPER STORY | 3 | 0 | 2001 | 1112.0 |
| | OWC | OPEN WOOD PORCH W/STEPS/ROOF/C | 3 | 0 | 2001 | 305.1 |
| | OWP | OPEN WOOD PORCH W/STEPS | 3 | 0 | 2001 | 384.0 |
| | UTY | STORAGE/UTILITY | 3 | 0 | 2001 | 192.0 |
| | OWP | OPEN WOOD PORCH W/STEPS | 3 | 0 | 2001 | 144.0 |
| | OWP | OPEN WOOD PORCH W/STEPS | 3 | 0 | 2001 | 104.0 |
| | OWC | OPEN WOOD PORCH W/STEPS/ROOF/C | 3 | 0 | 2001 | 112.0 |
Sketch
Property Image
Land
| 1 | 18 | AC (02.01-03.00) | 0.0000 | 88426.80 | 0.00 | 0.00 | 1.00 | $310,000 | $0 |
Roll Value History
| 2026 | N/A | N/A | N/A | N/A | N/A |
| 2025 | $437,114 | $310,000 | $0 | $747,114 | $747,114 |
| 2024 | $442,633 | $290,000 | $0 | $732,633 | $732,633 |
| 2023 | $448,148 | $290,000 | $0 | $738,148 | $738,148 |
| 2022 | $410,818 | $270,000 | $0 | $680,818 | $680,818 |
| 2021 | $361,556 | $190,000 | $0 | $551,556 | $551,556 |
| 2020 | $352,326 | $165,000 | $0 | $517,326 | $517,326 |
| 2019 | $215,235 | $200,000 | $0 | $415,235 | $415,235 |
| 2018 | $215,823 | $160,000 | $0 | $375,823 | $375,823 |
| 2017 | $216,960 | $140,000 | $0 | $356,960 | $356,960 |
| 2016 | $219,310 | $120,000 | $0 | $339,310 | $339,310 |
| 2015 | $221,663 | $125,000 | $0 | $346,663 | $346,663 |
| 2014 | $224,014 | $110,500 | $0 | $334,514 | $334,514 |
| 2013 | $225,477 | $110,500 | $0 | $335,977 | $335,977 |
| 2012 | $227,854 | $110,500 | $0 | $338,354 | $338,354 |
| 2011 | $230,232 | $130,000 | $0 | $360,232 | $360,232 |
| 2010 | $281,798 | $130,000 | $0 | $411,798 | $411,798 |
| 2009 | $293,676 | $155,000 | $0 | $448,676 | $448,676 |
| 2008 | $294,688 | $155,000 | $0 | $449,688 | $449,688 |
| 2007 | $294,032 | $120,000 | $0 | $414,032 | $414,032 |
Deed and Sales History
| 1 | 06/11/2025 | WD | Warranty Deed | CATES, MELISSA S | ANDREWS, KIRSTEN | | | $989,000.00 | 63767 | 4586887 |
| 2 | 05/19/2016 | WD | Warranty Deed | CATES, MELISSA S | CATES, MELISSA S | | | $0.00 | 24489 | 44000069 |
| 3 | 05/19/2016 | WD | Warranty Deed | GOLDSTEIN, ERIKA A | CATES, MELISSA S | | | $415,000.00 | 24415 | 4399815 |
| 4 | 09/04/2009 | WD | Warranty Deed | RAISER, ANDREA LYNN | GOLDSTEIN, ERIKA A | | | $455,000.00 | 92125 | 4259912 |
| 5 | 03/06/2006 | WD | Warranty Deed | FALLON, TOM | RAISER, ANDREA LYNN | | | $419,000.00 | 61004 | 4164264 |
| 6 | 05/27/1998 | WD | Warranty Deed | WILMOTH, LADD O | FALLON, TOM | | | $43,000.00 | 82006 | 98010537 |
| 7 | 03/01/1995 | WD | Warranty Deed | STANDINGER, MICHAEL C | WILMOTH, LADD O | | | $42,000.00 | 50818 | 95004048 |
| 8 | 04/01/1991 | WD | Warranty Deed | ADAMS, WAYNE D | STANDINGER, MICHAEL C | | | $16,000.00 | 11390 | 91005934 |
| 9 | 10/01/1980 | EXECUTORD | Executor Deed | BILLINGTON, REALTY I | ADAMS, WAYNE D | | | $18,500.00 | 3719 | 376015 |
| 10 | 01/01/1900 | OTHER | Other - Misc. Documents | Unknown | FALLON, TOM & | | | $0.00 | 82006 | 98010537 |
| 11 | 01/01/1900 | OTHER | Other - Misc. Documents | FALLON, TOM & | BILLINGTON, REALTY I | | | $0.00 | 0 | 0 |
Payout Agreement
| No payout information available.. |