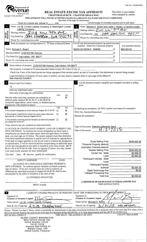
Property
Account |
| Property ID: | 489064 | Abbreviated Legal Description: | IN S/2 SEC 1: BG NWCR NE SW N89*E2269.30' TPB N89*E305' S587' S22*W219.31' N58*W205 .11' N89*W48.07' N680.71' TPB SUB TGW EZ FR 202-3290 (TR 8 UNREC RIDGEVIEW ESTS) |
| Geographic ID: | R22901-235-3800 | Agent Code: | |
| Type: | Real | | |
| Tax Area: | 712 - APPRAISER-S Whid Schl Dist, outside Langley, improved, greater than 1 acre | Land Use Code | 11 |
| Open Space: | N | DFL | N |
| Historic Property: | N | Remodel Property: | N |
| Multi-Family Redevelopment: | N | | |
| Township: | 29 | Section: | 01 |
| Range: | R2 |
Location |
| Address: | 2283 GOSS RIDGE RD FREELAND, WA 98249 | Mapsco: | |
| Neighborhood: | Cycle 3 | Map ID: | 282 |
| Neighborhood CD: | 3 |
Owner |
| Name: | VECHTOMOV, YELENA | Owner ID: | 284736 |
| Mailing Address: | SERGEY VECHTOMOV 2283 GOSS RIDGE RD FREELAND, WA 98249 | % Ownership: | 100.0000000000% |
| | | Exemptions: | |
Taxes and Assessment Details
Values
| (+) Improvement Homesite Value: | + | $0 | |
| (+) Improvement Non-Homesite Value: | + | $357,103 | |
| (+) Land Homesite Value: | + | $0 | |
| (+) Land Non-Homesite Value: | + | $370,000 | |
| (+) Curr Use (HS): | + | $0 | $0 |
| (+) Curr Use (NHS): | + | $0 | $0 |
| | | -------------------------- | |
| (=) Market Value: | = | $727,103 | |
| (–) Productivity Loss: | – | $0 | |
| | | -------------------------- | |
| (=) Subtotal: | = | $727,103 | |
| (+) Senior Appraised Value: | + | $0 | |
| (+) Non-Senior Appraised Value: | + | $727,103 | |
| | | -------------------------- | |
| (=) Total Appraised Value: | = | $727,103 | |
| (–) Senior Exemption Loss: | – | $0 | |
| (–) Exemption Loss: | – | $0 | |
| | | -------------------------- | |
| (=) Taxable Value: | = | $727,103 | |
Taxing Jurisdiction
| Owner: | VECHTOMOV, YELENA | | |
| % Ownership: | 100.0000000000% | | |
| Total Value: | $727,103 | | |
| Tax Area: | 712 - APPRAISER-S Whid Schl Dist, outside Langley, improved, greater than 1 acre |
| CF | Conservation Futures | 0.0316035091 | $727,103 | $727,103 | $22.98 | | |
| FIRE3 | Fire & Rescue Dist #3 S Whidbey GEN | 1.2004855531 | $727,103 | $727,103 | $872.88 | | |
| HOBOND | Hospital BOND | 0.1910887512 | $727,103 | $727,103 | $138.94 | | |
| HOGEN | Hospital GEN | 0.3902502903 | $727,103 | $727,103 | $283.75 | | |
| CE | County Current Expense | 0.3708482477 | $727,103 | $727,103 | $269.64 | | |
| CR | County Roads | 0.4584763726 | $727,103 | $727,103 | $333.36 | | |
| ISLANDEMS | Hospital GEN (EMS) | 0.5000000000 | $727,103 | $727,103 | $363.55 | | |
| LIB | Library Sno-Isle GEN | 0.3153421757 | $727,103 | $727,103 | $229.29 | | |
| PORTWHID | Port of S Whidbey GEN | 0.1094540357 | $727,103 | $727,103 | $79.58 | | |
| SCH206BOND | School 206 BOND | 0.3161759235 | $727,103 | $727,103 | $229.89 | | |
| SCH206MO | School 206 Enrichment | 0.4547169547 | $727,103 | $727,103 | $330.63 | | |
| ST | State School | 1.3035497053 | $727,103 | $727,103 | $947.81 | | |
| ST2 | State School Part 2 | 0.8169543533 | $727,103 | $727,103 | $594.01 | | |
| SWHIDPRBD | P & R S Whidbey BOND | 0.0152817568 | $727,103 | $727,103 | $11.11 | | |
| SWHIDPRBD2 | P & R S Whidbey BOND2 | 0.0138911264 | $727,103 | $727,103 | $10.10 | | |
| SWHIDPRMT | P & R S Whidbey GEN | 0.2053334452 | $727,103 | $727,103 | $149.30 | | |
| | Total Tax Rate: | 6.6934522006 | | | | | |
| | | | | Taxes w/Current Exemptions: | $4,866.82 | | |
| | | | | Taxes w/o Exemptions: | $4,866.82 | | |
Improvement / Building
| Improvement #1: | RESIDENTIAL | State Code: | Y | 1656.0 sqft | Value: | $357,103 |
| Bathrooms: | 3 | Bedrooms: | 2 | | Ceiling: | DRYWALL PAINTED | Exterior Wall/Cover: | CEMENT FIBER | | Floor Covering: | VINYL 100% | Floor Structure: | WOOD W/SUBFLOOR | | Foundation: | CONCRETE | Heating: | WALL HEAT ELECTRIC | | Interior Finish: | DRYWALL PAINT | Plumbing Fixture Cnt: | 12 | | Roof Slope: | 4" IN 12" | Roof Structure/Cover: | CJ ASPHALT |
|
| | Type | Description | Class CD | Sub Class CD | Year Built | Area |
| | BAS | BASE/MAIN FLOOR | 4 | 0 | 1998 | 672.0 |
| | DWN | DOWNSTAIRS LIVING AREA | 4 | 0 | 1998 | 448.0 |
| | UPS | UPPER STORY | 4 | 0 | 1998 | 536.0 |
| | OWP | OPEN WOOD PORCH W/STEPS | 4 | 0 | 1998 | 513.9 |
| | oPOL | POLE BARN | 4 | 0 | 1998 | 0.0 |
Sketch
Property Image
Land
| 1 | 32 | AC (03.01-09.99) | 5.0000 | 0.00 | 0.00 | 0.00 | 1.00 | $370,000 | $0 |
Roll Value History
| 2026 | N/A | N/A | N/A | N/A | N/A |
| 2025 | $357,103 | $370,000 | $0 | $727,103 | $727,103 |
| 2024 | $359,773 | $350,000 | $0 | $709,773 | $709,773 |
| 2023 | $362,445 | $330,000 | $0 | $692,445 | $692,445 |
| 2022 | $333,317 | $280,000 | $0 | $613,317 | $613,317 |
| 2021 | $192,157 | $230,000 | $0 | $422,157 | $422,157 |
| 2020 | $188,492 | $190,000 | $0 | $378,492 | $378,492 |
| 2019 | $137,853 | $230,000 | $0 | $367,853 | $367,853 |
| 2018 | $138,182 | $210,000 | $0 | $348,182 | $348,182 |
| 2017 | $95,842 | $180,000 | $0 | $275,842 | $275,842 |
| 2016 | $96,664 | $165,000 | $0 | $261,664 | $261,664 |
| 2015 | $97,487 | $108,000 | $0 | $205,487 | $205,487 |
| 2014 | $98,310 | $108,000 | $0 | $206,310 | $206,310 |
| 2013 | $106,149 | $108,000 | $0 | $214,149 | $214,149 |
| 2012 | $106,967 | $108,000 | $0 | $214,967 | $214,967 |
| 2011 | $108,333 | $108,000 | $0 | $216,333 | $216,333 |
| 2010 | $111,683 | $108,000 | $0 | $219,683 | $219,683 |
| 2009 | $79,530 | $156,000 | $0 | $235,530 | $235,530 |
| 2008 | $80,975 | $160,000 | $0 | $240,975 | $240,975 |
| 2007 | $90,313 | $191,914 | $0 | $282,227 | $282,227 |
Deed and Sales History
| 1 | 04/20/2018 | WD | Warranty Deed | BREEN, JAMES E | VECHTOMOV, YELENA | | | $349,000.00 | 33797 | 4443168 |
| 2 | 08/19/2005 | WD | Warranty Deed | EGERTON, GARY R | BREEN, JAMES E | | | $267,000.00 | 54142 | 4145050 |
| 3 | 05/01/1997 | WD | Warranty Deed | NICHOLS, MATTHEW J | EGERTON, GARY R | | | $40,000.00 | 71503 | 97006884 |
| 4 | 08/01/1993 | QCD | Quit Claim Deed | EGERTON, GARY R | NICHOLS, MATTHEW J | | | $0.00 | 41505 | 94009356 |
| 5 | 10/01/1992 | QCD | Quit Claim Deed | NICHOLS, MATHEW J | EGERTON, GARY R | | | $0.00 | 24050 | 92019683 |
| 6 | 08/01/1979 | CD | DNU - Correction Deed | NICHOLS, MATHEW & | NICHOLS, MATHEW J | | | $0.00 | 94247 | 357931 |
| 7 | 06/01/1978 | OTHER | Other - Misc. Documents | Unknown | NICHOLS, MATHEW & | | | $235,000.00 | 82554 | 333896 |
Payout Agreement
| No payout information available.. |