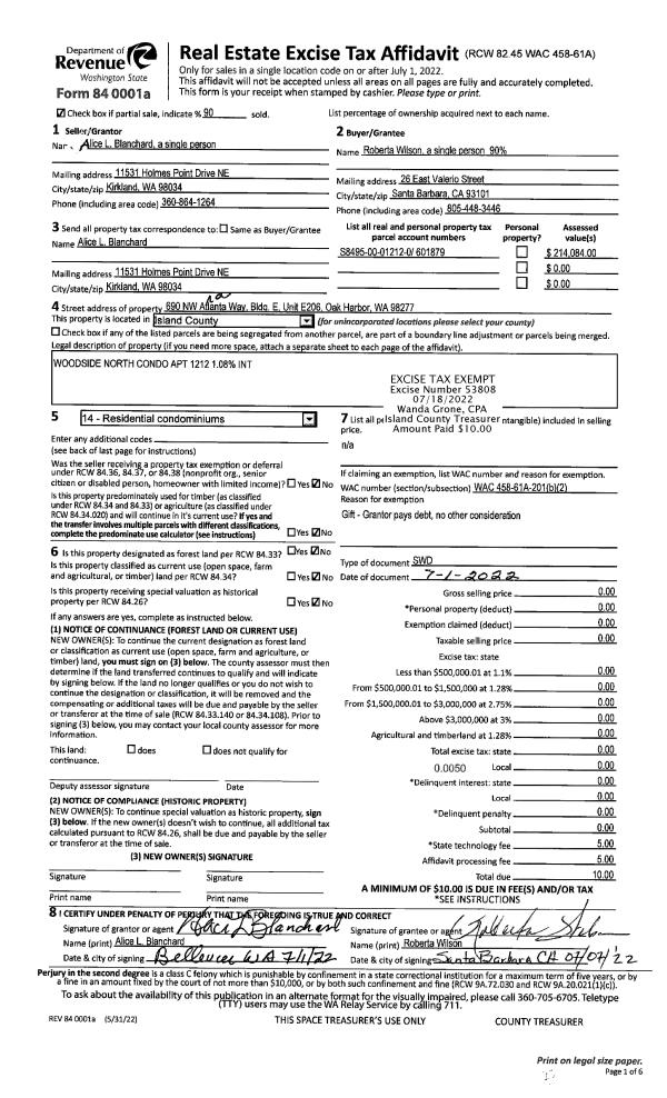
Property
Account |
| Property ID: | 489304 | Abbreviated Legal Description: | S/2 E/2 SE SE SE TGW SUB EZ FR 035-5350 LOT 2 SP 79-65 |
| Geographic ID: | R33130-020-5350 | Agent Code: | |
| Type: | Real | | |
| Tax Area: | 512 - APPRAISER-Stan/Cam Schl Dist, improved, greater than 1 acre | Land Use Code | 11 |
| Open Space: | N | DFL | N |
| Historic Property: | N | Remodel Property: | N |
| Multi-Family Redevelopment: | N | | |
| Township: | 31 | Section: | 30 |
| Range: | R3 |
Location |
| Address: | 380 RAINTREE LN CAMANO ISLAND, WA 98282 | Mapsco: | |
| Neighborhood: | Cycle 5 | Map ID: | 937 |
| Neighborhood CD: | 5 |
Owner |
| Name: | REYNOLDS, CAROL B | Owner ID: | 293642 |
| Mailing Address: | 380 RAINTREE LN CAMANO ISLAND, WA 98282 | % Ownership: | 100.0000000000% |
| | | Exemptions: | |
Taxes and Assessment Details
Values
| (+) Improvement Homesite Value: | + | $0 | |
| (+) Improvement Non-Homesite Value: | + | $85,027 | |
| (+) Land Homesite Value: | + | $0 | |
| (+) Land Non-Homesite Value: | + | $290,000 | |
| (+) Curr Use (HS): | + | $0 | $0 |
| (+) Curr Use (NHS): | + | $0 | $0 |
| | | -------------------------- | |
| (=) Market Value: | = | $375,027 | |
| (–) Productivity Loss: | – | $0 | |
| | | -------------------------- | |
| (=) Subtotal: | = | $375,027 | |
| (+) Senior Appraised Value: | + | $0 | |
| (+) Non-Senior Appraised Value: | + | $375,027 | |
| | | -------------------------- | |
| (=) Total Appraised Value: | = | $375,027 | |
| (–) Senior Exemption Loss: | – | $0 | |
| (–) Exemption Loss: | – | $0 | |
| | | -------------------------- | |
| (=) Taxable Value: | = | $375,027 | |
Taxing Jurisdiction
| Owner: | REYNOLDS, CAROL B | | |
| % Ownership: | 100.0000000000% | | |
| Total Value: | $375,027 | | |
| Tax Area: | 512 - APPRAISER-Stan/Cam Schl Dist, improved, greater than 1 acre |
| CF | Conservation Futures | 0.0316035091 | $375,027 | $375,027 | $11.85 | | |
| EMS1 | Fire & Rescue Dist #1 Camano GEN (EMS) | 0.3677864386 | $375,027 | $375,027 | $137.93 | | |
| FIRE1 | Fire & Rescue Dist #1 Camano GEN | 1.2502910536 | $375,027 | $375,027 | $468.89 | | |
| FIRE1BOND | Fire & Rescue Dist #1 Camano BOND | 0.1570001679 | $375,027 | $375,027 | $58.88 | | |
| CE | County Current Expense | 0.3708482477 | $375,027 | $375,027 | $139.08 | | |
| CR | County Roads | 0.4584763726 | $375,027 | $375,027 | $171.94 | | |
| LCIB | Library Sno-Isle BOND (Camano Island) | 0.0396325772 | $375,027 | $375,027 | $14.86 | | |
| LIB | Library Sno-Isle GEN | 0.3153421757 | $375,027 | $375,027 | $118.26 | | |
| SCH205_401 | School 205-401 Enrichment | 1.2698420524 | $375,027 | $375,027 | $476.23 | | |
| SCH205BOND | School 205-401 BOND | 0.9396497583 | $375,027 | $375,027 | $352.39 | | |
| ST | State School | 1.3035497053 | $375,027 | $375,027 | $488.87 | | |
| ST2 | State School Part 2 | 0.8169543533 | $375,027 | $375,027 | $306.38 | | |
| | Total Tax Rate: | 7.3209764117 | | | | | |
| | | | | Taxes w/Current Exemptions: | $2,745.56 | | |
| | | | | Taxes w/o Exemptions: | $2,745.56 | | |
Improvement / Building
| Improvement #1: | MANUFACTURED HOME | State Code: | Y | 1080.0 sqft | Value: | $85,027 |
| Bathrooms: | 0 | Bedrooms: | 0 | | Ceiling: | PLASTER PAINTED | Cooling: | EVAP NO DUCT | | Exterior Wall/Cover: | VINYL | Floor Covering: | CARPET 100% | | Floor Structure: | SLAB ON GRADE | Foundation: | SLAB | | Heating: | FHA ELECTRIC | Interior Finish: | PLASTER | | Plumbing Fixture Cnt: | 1 | Roof Slope: | FLAT | | Roof Structure/Cover: | CJ ALUMINIUM HEAVY |   |   |
|
| | Type | Description | Class CD | Sub Class CD | Year Built | Area |
| | BAS | BASE/MAIN FLOOR | 4 | 0 | 1989 | 1080.0 |
| | CPD | OPEN CARPORT DIRT FLOOR | 4 | 0 | 1989 | 217.8 |
| | OWR | OPEN WOOD PORCH W/STEPS/ROOF | 4 | 0 | 1989 | 120.0 |
Sketch
Property Image
Land
| 1 | 18 | AC (02.01-03.00) | 0.0000 | 0.00 | 0.00 | 0.00 | 1.00 | $290,000 | $0 |
Roll Value History
| 2026 | N/A | N/A | N/A | N/A | N/A |
| 2025 | $85,027 | $290,000 | $0 | $375,027 | $375,027 |
| 2024 | $87,860 | $280,000 | $0 | $367,860 | $367,860 |
| 2023 | $78,865 | $270,000 | $0 | $348,865 | $348,865 |
| 2022 | $73,644 | $260,000 | $0 | $333,644 | $333,644 |
| 2021 | $57,732 | $180,000 | $0 | $237,732 | $237,732 |
| 2020 | $57,695 | $150,000 | $0 | $207,695 | $207,695 |
| 2019 | $33,420 | $200,000 | $0 | $233,420 | $233,420 |
| 2018 | $34,498 | $150,000 | $0 | $184,498 | $184,498 |
| 2017 | $35,575 | $135,000 | $0 | $170,575 | $170,575 |
| 2016 | $36,654 | $100,000 | $0 | $136,654 | $136,654 |
| 2015 | $38,168 | $83,200 | $0 | $121,368 | $121,368 |
| 2014 | $39,718 | $83,200 | $0 | $122,918 | $122,918 |
| 2013 | $40,751 | $83,200 | $0 | $123,951 | $123,951 |
| 2012 | $41,783 | $83,200 | $0 | $124,983 | $124,983 |
| 2011 | $42,816 | $104,000 | $0 | $146,816 | $146,816 |
| 2010 | $43,070 | $104,000 | $0 | $147,070 | $147,070 |
| 2009 | $44,267 | $130,000 | $0 | $174,267 | $174,267 |
| 2008 | $45,497 | $130,000 | $0 | $175,497 | $175,497 |
| 2007 | $46,745 | $130,000 | $0 | $176,745 | $176,745 |
Deed and Sales History
| 1 | 02/26/2020 | WD | Warranty Deed | SCHULTZ, MARC BRYAN | REYNOLDS, CAROL B | | | $245,000.00 | 42269 | 4482223 |
| 2 | 04/20/2001 | TRUSTEED | Trustee's Deed | SCHULTZ, MARC B | SCHULTZ, MARC BRYAN | | | $0.00 | 11543 | 20031329 |
| 3 | 07/01/1992 | WD | Warranty Deed | SCHULTZ, MARC / | SCHULTZ, MARC B | | | $40,000.00 | 22683 | 92012994 |
| 4 | 06/01/1992 | OTHER | Other - Misc. Documents | OMNI, GROUP I | SCHULTZ, MARC / | | | $24,500.00 | 11111111 | 0 |
| 5 | 06/01/1987 | QCD | Quit Claim Deed | OMNI, GROUP I | OMNI, GROUP I | | | $0.00 | 72695 | 87012195 |
| 6 | 03/01/1986 | QCD | Quit Claim Deed | OMNI, GROUP, I | OMNI, GROUP I | | | $0.00 | 72694 | 87012196 |
| 7 | 04/01/1985 | QCD | Quit Claim Deed | JAEGER, JEFFRIE L | OMNI, GROUP, I | | | $0.00 | 61242 | 85007071 |
| 8 | 02/01/1984 | QCD | Quit Claim Deed | JAEGER, JEFFRIE L | JAEGER, JEFFRIE L | | | $0.00 | 40488 | 421444 |
| 9 | 05/01/1981 | TRUSTEED | Trustee's Deed | HOVIK, ELMER C | JAEGER, JEFFRIE L | | | $22,000.00 | 11713 | 383842 |
| 10 | 01/01/1981 | CD | DNU - Correction Deed | BRYANT, EDWARD A | HOVIK, ELMER C | | | $0.00 | 10431 | 379432 |
| 11 | 07/01/1979 | EXECUTORD | Executor Deed | HOOPER, WILLIAM | BRYANT, EDWARD A | | | $26,950.00 | 93970 | 357166 |
| 12 | 09/01/1978 | OTHER | Other - Misc. Documents | Unknown | HOOPER, WILLIAM | | | $6,875.00 | 84585 | 339914 |
Payout Agreement
| No payout information available.. |