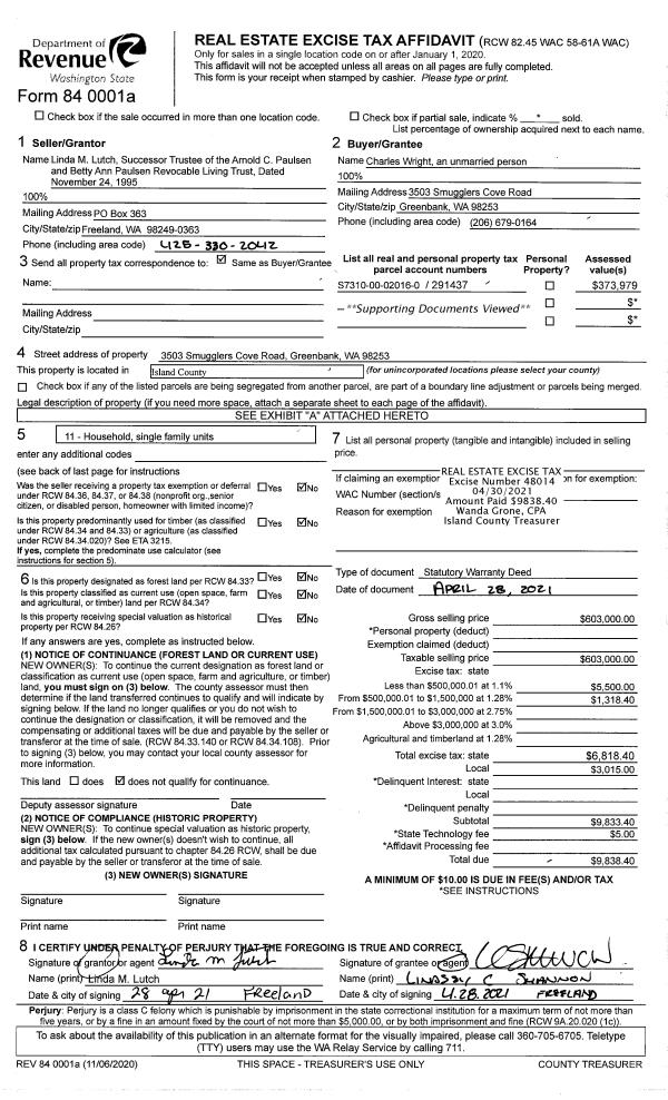
Property
Account |
| Property ID: | 489572 | Abbreviated Legal Description: | INGL2:BG 115.02'S OF NW CR GL2 E194.53'S25*E66.3 8'S89*E TO ML SLY ALG ML TP 350'N OF SLN N/2 GL2 W TO WLN GL2 N TPB INCL TIDES |
| Geographic ID: | R32813-363-0150 | Agent Code: | |
| Type: | Real | | |
| Tax Area: | 720 - APPRAISER-S Whid Schl Dist, Special District, improved & less than 1 acre | Land Use Code | 11 |
| Open Space: | N | DFL | N |
| Historic Property: | N | Remodel Property: | N |
| Multi-Family Redevelopment: | N | | |
| Township: | 28 | Section: | 13 |
| Range: | R3 |
Location |
| Address: | 8118 POSSESSION BEACH WALK CLINTON, WA 98236 | Mapsco: | |
| Neighborhood: | Cycle 4 | Map ID: | 707 |
| Neighborhood CD: | 4 |
Owner |
| Name: | THAYER, BRUCE | Owner ID: | 268656 |
| Mailing Address: | CONNIE THAYER 4550 177TH AVE SE BELLEVUE, WA 98006 | % Ownership: | 100.0000000000% |
| | | Exemptions: | |
Taxes and Assessment Details
Values
| (+) Improvement Homesite Value: | + | $0 | |
| (+) Improvement Non-Homesite Value: | + | $1,454,529 | |
| (+) Land Homesite Value: | + | $0 | |
| (+) Land Non-Homesite Value: | + | $676,400 | |
| (+) Curr Use (HS): | + | $0 | $0 |
| (+) Curr Use (NHS): | + | $0 | $0 |
| | | -------------------------- | |
| (=) Market Value: | = | $2,130,929 | |
| (–) Productivity Loss: | – | $0 | |
| | | -------------------------- | |
| (=) Subtotal: | = | $2,130,929 | |
| (+) Senior Appraised Value: | + | $0 | |
| (+) Non-Senior Appraised Value: | + | $2,130,929 | |
| | | -------------------------- | |
| (=) Total Appraised Value: | = | $2,130,929 | |
| (–) Senior Exemption Loss: | – | $0 | |
| (–) Exemption Loss: | – | $0 | |
| | | -------------------------- | |
| (=) Taxable Value: | = | $2,130,929 | |
Taxing Jurisdiction
| Owner: | THAYER, BRUCE | | |
| % Ownership: | 100.0000000000% | | |
| Total Value: | $2,130,929 | | |
| Tax Area: | 720 - APPRAISER-S Whid Schl Dist, Special District, improved & less than 1 acre |
| CF | Conservation Futures | 0.0316035091 | $2,130,929 | $2,130,929 | $67.34 | | |
| FIRE3 | Fire & Rescue Dist #3 S Whidbey GEN | 1.2004855531 | $2,130,929 | $2,130,929 | $2,558.15 | | |
| HOBOND | Hospital BOND | 0.1910887512 | $2,130,929 | $2,130,929 | $407.20 | | |
| HOGEN | Hospital GEN | 0.3902502903 | $2,130,929 | $2,130,929 | $831.60 | | |
| CE | County Current Expense | 0.3708482477 | $2,130,929 | $2,130,929 | $790.25 | | |
| CR | County Roads | 0.4584763726 | $2,130,929 | $2,130,929 | $976.98 | | |
| ISLANDEMS | Hospital GEN (EMS) | 0.5000000000 | $2,130,929 | $2,130,929 | $1,065.46 | | |
| LIB | Library Sno-Isle GEN | 0.3153421757 | $2,130,929 | $2,130,929 | $671.97 | | |
| PORTWHID | Port of S Whidbey GEN | 0.1094540357 | $2,130,929 | $2,130,929 | $233.24 | | |
| SCH206BOND | School 206 BOND | 0.3161759235 | $2,130,929 | $2,130,929 | $673.75 | | |
| SCH206MO | School 206 Enrichment | 0.4547169547 | $2,130,929 | $2,130,929 | $968.97 | | |
| ST | State School | 1.3035497053 | $2,130,929 | $2,130,929 | $2,777.77 | | |
| ST2 | State School Part 2 | 0.8169543533 | $2,130,929 | $2,130,929 | $1,740.87 | | |
| SWHIDPRBD | P & R S Whidbey BOND | 0.0152817568 | $2,130,929 | $2,130,929 | $32.56 | | |
| SWHIDPRBD2 | P & R S Whidbey BOND2 | 0.0138911264 | $2,130,929 | $2,130,929 | $29.60 | | |
| SWHIDPRMT | P & R S Whidbey GEN | 0.2053334452 | $2,130,929 | $2,130,929 | $437.55 | | |
| | Total Tax Rate: | 6.6934522006 | | | | | |
| | | | | Taxes w/Current Exemptions: | $14,263.26 | | |
| | | | | Taxes w/o Exemptions: | $14,263.26 | | |
Improvement / Building
| Improvement #1: | RESIDENTIAL | State Code: | Y | 4494.8 sqft | Value: | $1,454,529 |
| Bathrooms: | 4 | Bedrooms: | 4 | | Ceiling: | TONGUE & GROOVE | Cooling: | HEAT PUMP/CONV/V | | Exterior Wall/Cover: | WOOD SIDING | Floor Covering: | TILE CERAMIC | | Floor Structure: | WOOD W/SUBFLOOR | Foundation: | SLAB | | Interior Finish: | DRYWALL PAINT | Plumbing Fixture Cnt: | 16 | | Roof Slope: | 3" IN 12" | Roof Structure/Cover: | BEAM ALUMINUM HEAVY |
|
| | Type | Description | Class CD | Sub Class CD | Year Built | Area |
| | BAS | BASE/MAIN FLOOR | 6 | 0 | 2018 | 2803.5 |
| | UPS | UPPER STORY | 6 | 0 | 2018 | 895.3 |
| | AGR | ATTACHED GARAGE | 6 | 0 | 2018 | 484.0 |
| | OP4 | OPEN PORCH W/CEILING-ROOF | 6 | 0 | 2018 | 1212.7 |
| | OP2 | OPEN PORCH W/STEPS | 6 | 0 | 2018 | 699.5 |
| | OP4 | OPEN PORCH W/CEILING-ROOF | 6 | 0 | 2018 | 239.3 |
| | OP4 | OPEN PORCH W/CEILING-ROOF | 6 | 0 | 2018 | 141.8 |
| | OP2 | OPEN PORCH W/STEPS | 6 | 0 | 2018 | 911.8 |
| | OWC | OPEN WOOD PORCH W/STEPS/ROOF/C | 6 | 0 | 2018 | 96.7 |
| | DWN | DOWNSTAIRS LIVING AREA | 6 | 0 | 2018 | 576.0 |
| | OP2 | OPEN PORCH W/STEPS | 6 | 0 | 2018 | 1638.0 |
| | OCP | OPEN CARPORT | 6 | 0 | 2018 | 168.0 |
| | LOF | LOFT | 6 | 0 | 2018 | 220.0 |
| | OWC | OPEN WOOD PORCH W/STEPS/ROOF/C | 6 | 0 | 2018 | 76.5 |
| | UTY | STORAGE/UTILITY | 6 | 0 | 2018 | 220.0 |
| | OP4 | OPEN PORCH W/CEILING-ROOF | 6 | 0 | 2018 | 365.0 |
| | UTY | STORAGE/UTILITY | 6 | 0 | 2018 | 63.0 |
Sketch
| No sketches available for this property. |
Property Image
Land
| 1 | LB | LOW BANK | 0.1000 | 4356.00 | 140.00 | 0.00 | 1.00 | $675,000 | $0 |
| 2 | 55 | TIDES | 0.1607 | 7000.00 | 0.00 | 0.00 | 1.00 | $1,400 | $0 |
Roll Value History
| 2026 | N/A | N/A | N/A | N/A | N/A |
| 2025 | $1,454,529 | $676,400 | $0 | $2,130,929 | $2,130,929 |
| 2024 | $1,430,967 | $626,400 | $0 | $2,057,367 | $2,057,367 |
| 2023 | $1,442,506 | $576,400 | $0 | $2,018,906 | $2,018,906 |
| 2022 | $1,316,652 | $526,400 | $0 | $1,843,052 | $1,843,052 |
| 2021 | $1,154,030 | $476,400 | $0 | $1,630,430 | $1,630,430 |
| 2020 | $1,129,955 | $476,400 | $0 | $1,606,355 | $1,606,355 |
| 2019 | $1,127,122 | $501,400 | $0 | $1,628,522 | $1,628,522 |
| 2018 | $138,178 | $501,400 | $0 | $639,578 | $639,578 |
| 2017 | $4,000 | $501,400 | $0 | $505,400 | $505,400 |
| 2016 | $217,675 | $501,400 | $0 | $719,075 | $719,075 |
| 2015 | $220,364 | $501,070 | $0 | $721,434 | $721,434 |
| 2014 | $116,821 | $411,070 | $0 | $527,891 | $527,891 |
| 2013 | $118,072 | $411,712 | $0 | $529,784 | $529,784 |
| 2012 | $119,323 | $411,712 | $0 | $531,035 | $531,035 |
| 2011 | $120,574 | $411,712 | $0 | $532,286 | $532,286 |
| 2010 | $128,118 | $411,712 | $0 | $539,830 | $539,830 |
| 2009 | $132,814 | $411,712 | $0 | $544,526 | $544,526 |
| 2008 | $88,527 | $411,712 | $0 | $500,239 | $500,239 |
| 2007 | $89,736 | $410,963 | $0 | $500,699 | $500,699 |
Deed and Sales History
| 1 | 11/26/2014 | WD | Warranty Deed | CLAUSEN, DOUGLAS | THAYER, BRUCE | | | $900,000.00 | 17801 | 4369799 |
| 2 | 02/06/2002 | WD | Warranty Deed | WILLIAMS, MARY M | CLAUSEN, DOUGLAS | | | $370,538.00 | 20781 | 4012743 |
| 3 | 01/01/1900 | OTHER | Other - Misc. Documents | Unknown | WILLIAMS, MARY M | | | $0.00 | 0 | 0 |
Payout Agreement
| No payout information available.. |