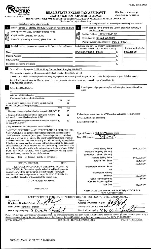
Property
Account |
| Property ID: | 489821 | Abbreviated Legal Description: | N60' OF S495' OF NW NE EX W75.50' FR 451-3200 |
| Geographic ID: | R22909-450-3200 | Agent Code: | |
| Type: | Real | | |
| Tax Area: | 712 - APPRAISER-S Whid Schl Dist, outside Langley, improved, greater than 1 acre | Land Use Code | 11 |
| Open Space: | N | DFL | N |
| Historic Property: | N | Remodel Property: | N |
| Multi-Family Redevelopment: | N | | |
| Township: | 29 | Section: | 09 |
| Range: | R2 |
Location |
| Address: | 5261 MUTINY BAY RD FREELAND, WA 98249 | Mapsco: | |
| Neighborhood: | Cycle 3 | Map ID: | 308 |
| Neighborhood CD: | 3 |
Owner |
| Name: | WESTERMO, BRUCE DONALD | Owner ID: | 281319 |
| Mailing Address: | CLAUDIA HASSLEY MCMAHON PO BOX 307 FREELAND, WA 98249 | % Ownership: | 100.0000000000% |
| | | Exemptions: | |
Taxes and Assessment Details
Values
| (+) Improvement Homesite Value: | + | $0 | |
| (+) Improvement Non-Homesite Value: | + | $615,900 | |
| (+) Land Homesite Value: | + | $0 | |
| (+) Land Non-Homesite Value: | + | $290,000 | |
| (+) Curr Use (HS): | + | $0 | $0 |
| (+) Curr Use (NHS): | + | $0 | $0 |
| | | -------------------------- | |
| (=) Market Value: | = | $905,900 | |
| (–) Productivity Loss: | – | $0 | |
| | | -------------------------- | |
| (=) Subtotal: | = | $905,900 | |
| (+) Senior Appraised Value: | + | $0 | |
| (+) Non-Senior Appraised Value: | + | $905,900 | |
| | | -------------------------- | |
| (=) Total Appraised Value: | = | $905,900 | |
| (–) Senior Exemption Loss: | – | $0 | |
| (–) Exemption Loss: | – | $0 | |
| | | -------------------------- | |
| (=) Taxable Value: | = | $905,900 | |
Taxing Jurisdiction
| Owner: | WESTERMO, BRUCE DONALD | | |
| % Ownership: | 100.0000000000% | | |
| Total Value: | $905,900 | | |
| Tax Area: | 712 - APPRAISER-S Whid Schl Dist, outside Langley, improved, greater than 1 acre |
| CF | Conservation Futures | 0.0316035091 | $905,900 | $905,900 | $28.63 | | |
| FIRE3 | Fire & Rescue Dist #3 S Whidbey GEN | 1.2004855531 | $905,900 | $905,900 | $1,087.52 | | |
| HOBOND | Hospital BOND | 0.1910887512 | $905,900 | $905,900 | $173.11 | | |
| HOGEN | Hospital GEN | 0.3902502903 | $905,900 | $905,900 | $353.53 | | |
| CE | County Current Expense | 0.3708482477 | $905,900 | $905,900 | $335.95 | | |
| CR | County Roads | 0.4584763726 | $905,900 | $905,900 | $415.33 | | |
| ISLANDEMS | Hospital GEN (EMS) | 0.5000000000 | $905,900 | $905,900 | $452.95 | | |
| LIB | Library Sno-Isle GEN | 0.3153421757 | $905,900 | $905,900 | $285.67 | | |
| PORTWHID | Port of S Whidbey GEN | 0.1094540357 | $905,900 | $905,900 | $99.15 | | |
| SCH206BOND | School 206 BOND | 0.3161759235 | $905,900 | $905,900 | $286.42 | | |
| SCH206MO | School 206 Enrichment | 0.4547169547 | $905,900 | $905,900 | $411.93 | | |
| ST | State School | 1.3035497053 | $905,900 | $905,900 | $1,180.89 | | |
| ST2 | State School Part 2 | 0.8169543533 | $905,900 | $905,900 | $740.08 | | |
| SWHIDPRBD | P & R S Whidbey BOND | 0.0152817568 | $905,900 | $905,900 | $13.84 | | |
| SWHIDPRBD2 | P & R S Whidbey BOND2 | 0.0138911264 | $905,900 | $905,900 | $12.58 | | |
| SWHIDPRMT | P & R S Whidbey GEN | 0.2053334452 | $905,900 | $905,900 | $186.01 | | |
| | Total Tax Rate: | 6.6934522006 | | | | | |
| | | | | Taxes w/Current Exemptions: | $6,063.59 | | |
| | | | | Taxes w/o Exemptions: | $6,063.59 | | |
Improvement / Building
| Improvement #1: | RESIDENTIAL | State Code: | Y | 3748.3 sqft | Value: | $615,900 |
| Bathrooms: | 3 | Bedrooms: | 3 | | Ceiling: | DRYWALL PAINTED | Exterior Wall/Cover: | WOOD SIDING | | Floor Covering: | HARDWOOD/CARP 60-40 | Floor Structure: | WOOD W/SUBFLOOR | | Foundation: | CONCRETE | Heating: | FHA GAS | | Interior Finish: | DRYWALL PAINT | Plumbing Fixture Cnt: | 15 | | Roof Slope: | 6" IN 12" | Roof Structure/Cover: | CJ ASPHALT |
|
| | Type | Description | Class CD | Sub Class CD | Year Built | Area |
| | BAS | BASE/MAIN FLOOR | 4 | 0 | 2006 | 2029.5 |
| | OP4 | OPEN PORCH W/CEILING-ROOF | 4 | 0 | 2006 | 80.0 |
| | DGR | DETACHED GARAGE | 4 | 0 | 2006 | 576.0 |
| | OWC | OPEN WOOD PORCH W/STEPS/ROOF/C | 4 | 0 | 2006 | 25.9 |
| | DWN | DOWNSTAIRS LIVING AREA | 4 | 0 | 2006 | 1358.8 |
| | LOF | LOFT | 4 | 0 | 2006 | 360.0 |
Sketch
Property Image
Land
| 1 | 17 | AC (01.01-02.00) | 0.0000 | 0.00 | 0.00 | 0.00 | 1.00 | $290,000 | $0 |
Roll Value History
| 2026 | N/A | N/A | N/A | N/A | N/A |
| 2025 | $615,900 | $290,000 | $0 | $905,900 | $905,900 |
| 2024 | $623,040 | $280,000 | $0 | $903,040 | $903,040 |
| 2023 | $630,182 | $260,000 | $0 | $890,182 | $890,182 |
| 2022 | $577,119 | $250,000 | $0 | $827,119 | $827,119 |
| 2021 | $506,059 | $175,000 | $0 | $681,059 | $681,059 |
| 2020 | $492,734 | $165,000 | $0 | $657,734 | $657,734 |
| 2019 | $400,405 | $230,000 | $0 | $630,405 | $630,405 |
| 2018 | $401,513 | $200,000 | $0 | $601,513 | $601,513 |
| 2017 | $355,131 | $165,000 | $0 | $520,131 | $520,131 |
| 2016 | $359,120 | $165,000 | $0 | $524,120 | $524,120 |
| 2015 | $363,111 | $150,000 | $0 | $513,111 | $513,111 |
| 2014 | $367,100 | $150,000 | $0 | $517,100 | $517,100 |
| 2013 | $335,865 | $150,000 | $0 | $485,865 | $485,865 |
| 2012 | $339,454 | $140,250 | $0 | $479,704 | $479,704 |
| 2011 | $343,041 | $165,000 | $0 | $508,041 | $508,041 |
| 2010 | $359,249 | $165,000 | $0 | $524,249 | $524,249 |
| 2009 | $374,195 | $200,000 | $0 | $574,195 | $574,195 |
| 2008 | $378,360 | $220,000 | $0 | $598,360 | $598,360 |
| 2007 | $374,621 | $220,000 | $0 | $594,621 | $594,621 |
Deed and Sales History
| 1 | 08/02/2017 | WD | Warranty Deed | HADDEN TRUSTEE, JULIA R | WESTERMO, BRUCE DONALD | | | $735,000.00 | 30528 | 4427728 |
| 2 | 06/12/2015 | WD | Warranty Deed | HADDEN, JULIA R | HADDEN TRUSTEE, JULIA R | | | $0.00 | 20163 | 4380877 |
| 3 | 06/12/2015 | WD | Warranty Deed | HADDEN, JULIA R | HADDEN, JULIA R | | | $0.00 | 20162 | 4380877 |
| 4 | 01/23/2013 | ESTSEPPROP | Establish Separate Property | HADDEN, JULIA R | HADDEN, JULIA R | | | $0.00 | 10287 | 4332588 |
| 5 | 01/23/2013 | TRUSTEED | Trustee's Deed | HADDEN TRUSTEE, JULIA R | HADDEN, JULIA R | | | $0.00 | 10286 | 4332587 |
| 6 | 11/16/2009 | QCD | Quit Claim Deed | HADDEN, JULIA R | HADDEN TRUSTEE, JULIA R | | | $0.00 | 92798 | 4263754 |
| 7 | 04/23/2009 | QCD | Quit Claim Deed | HADDEN, JULIA R | HADDEN, JULIA R | | | $0.00 | 90947 | 4250247 |
| 8 | 05/14/2007 | WD | Warranty Deed | HANSON, W JOSEPH | HADDEN, JULIA R | | | $610,000.00 | 71776 | 4203153 |
| 9 | 04/22/2006 | ESTSEPPROP | Establish Separate Property | THATCHER, SHAYNE | THATCHER, L SHAYNE | | | $0.00 | 41706 | 4098710 |
| 10 | 12/07/2005 | QCD | Quit Claim Deed | THE WGS GROUP INC, | HANSON, W JOSEPH | | | $0.00 | 56185 | 4157022 |
| 11 | 08/27/2004 | 5 | DNU - Marriage License/Name Change | THATCHER, L SHAYNE | THE WGS GROUP INC, | | | $0.00 | 44059 | 4111439 |
| 12 | 04/08/2004 | WD | Warranty Deed | BERRY, DAVID | THATCHER, SHAYNE | | | $11,533.00 | 41641 | 4098113 |
| 13 | 08/01/1991 | WD | Warranty Deed | CROSLEY, JESS M | BERRY, DAVID | | | $3,300.00 | 13057 | 91013058 |
| 14 | 04/01/1981 | CD | DNU - Correction Deed | CROSLEY, J M | CROSLEY, JESS M | | | $1.00 | 12144 | 385342 |
| 15 | 06/01/1978 | OTHER | Other - Misc. Documents | Unknown | CROSLEY, J M | | | $12,500.00 | 82632 | 334133 |
Payout Agreement
| No payout information available.. |