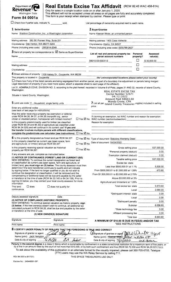
Property
Account |
| Property ID: | 489849 | Abbreviated Legal Description: | REPLACES 143-0090 42 - IN GL 1: N50' OF N/2 S/3 S/2 OF GL 1 INCL ADJ TIDES |
| Geographic ID: | R32813-402-0090 | Agent Code: | |
| Type: | Real | | |
| Tax Area: | 710 - APPRAISER-S Whid Schl Dist, outside Langley, improved & 1 acre or less | Land Use Code | 11 |
| Open Space: | N | DFL | N |
| Historic Property: | N | Remodel Property: | N |
| Multi-Family Redevelopment: | N | | |
| Township: | 28 | Section: | 13 |
| Range: | R3 |
Location |
| Address: | 8088 POSSESSION BEACH WALK CLINTON, WA 98236 | Mapsco: | |
| Neighborhood: | Cycle 4 | Map ID: | 707 |
| Neighborhood CD: | 4 |
Owner |
| Name: | FULTON, DOUGLAS B | Owner ID: | 310283 |
| Mailing Address: | PO BOX 1004 LANGLEY, WA 98260 | % Ownership: | 100.0000000000% |
| | | Exemptions: | |
Taxes and Assessment Details
Values
| (+) Improvement Homesite Value: | + | $0 | |
| (+) Improvement Non-Homesite Value: | + | $293,445 | |
| (+) Land Homesite Value: | + | $0 | |
| (+) Land Non-Homesite Value: | + | $400,510 | |
| (+) Curr Use (HS): | + | $0 | $0 |
| (+) Curr Use (NHS): | + | $0 | $0 |
| | | -------------------------- | |
| (=) Market Value: | = | $693,955 | |
| (–) Productivity Loss: | – | $0 | |
| | | -------------------------- | |
| (=) Subtotal: | = | $693,955 | |
| (+) Senior Appraised Value: | + | $0 | |
| (+) Non-Senior Appraised Value: | + | $693,955 | |
| | | -------------------------- | |
| (=) Total Appraised Value: | = | $693,955 | |
| (–) Senior Exemption Loss: | – | $0 | |
| (–) Exemption Loss: | – | $0 | |
| | | -------------------------- | |
| (=) Taxable Value: | = | $693,955 | |
Taxing Jurisdiction
| Owner: | FULTON, DOUGLAS B | | |
| % Ownership: | 100.0000000000% | | |
| Total Value: | $693,955 | | |
| Tax Area: | 710 - APPRAISER-S Whid Schl Dist, outside Langley, improved & 1 acre or less |
| CF | Conservation Futures | 0.0316035091 | $693,955 | $693,955 | $21.93 | | |
| FIRE3 | Fire & Rescue Dist #3 S Whidbey GEN | 1.2004855531 | $693,955 | $693,955 | $833.08 | | |
| HOBOND | Hospital BOND | 0.1910887512 | $693,955 | $693,955 | $132.61 | | |
| HOGEN | Hospital GEN | 0.3902502903 | $693,955 | $693,955 | $270.82 | | |
| CE | County Current Expense | 0.3708482477 | $693,955 | $693,955 | $257.35 | | |
| CR | County Roads | 0.4584763726 | $693,955 | $693,955 | $318.16 | | |
| ISLANDEMS | Hospital GEN (EMS) | 0.5000000000 | $693,955 | $693,955 | $346.98 | | |
| LIB | Library Sno-Isle GEN | 0.3153421757 | $693,955 | $693,955 | $218.83 | | |
| PORTWHID | Port of S Whidbey GEN | 0.1094540357 | $693,955 | $693,955 | $75.96 | | |
| SCH206BOND | School 206 BOND | 0.3161759235 | $693,955 | $693,955 | $219.41 | | |
| SCH206MO | School 206 Enrichment | 0.4547169547 | $693,955 | $693,955 | $315.55 | | |
| ST | State School | 1.3035497053 | $693,955 | $693,955 | $904.60 | | |
| ST2 | State School Part 2 | 0.8169543533 | $693,955 | $693,955 | $566.93 | | |
| SWHIDPRBD | P & R S Whidbey BOND | 0.0152817568 | $693,955 | $693,955 | $10.60 | | |
| SWHIDPRBD2 | P & R S Whidbey BOND2 | 0.0138911264 | $693,955 | $693,955 | $9.64 | | |
| SWHIDPRMT | P & R S Whidbey GEN | 0.2053334452 | $693,955 | $693,955 | $142.49 | | |
| | Total Tax Rate: | 6.6934522006 | | | | | |
| | | | | Taxes w/Current Exemptions: | $4,644.94 | | |
| | | | | Taxes w/o Exemptions: | $4,644.94 | | |
Improvement / Building
| Improvement #1: | RESIDENTIAL | State Code: | Y | 1520.0 sqft | Value: | $293,445 |
| Bathrooms: | 2 | Bedrooms: | 2 | | Ceiling: | TONGUE & GROOVE | Exterior Wall/Cover: | SHINGLE | | Floor Covering: | CARPET/VINYL 20-80 | Floor Structure: | WOOD W/SUBFLOOR | | Foundation: | CONCRETE | Heating: | FHA ELECTRIC | | Interior Finish: | DRYWALL PAINT | Plumbing Fixture Cnt: | 10 | | Roof Slope: | 3" IN 12" | Roof Structure/Cover: | BEAM ALUMINUM HEAVY |
|
| | Type | Description | Class CD | Sub Class CD | Year Built | Area |
| | BAS | BASE/MAIN FLOOR | 4 | 0 | 1966 | 970.0 |
| | AGR | ATTACHED GARAGE | 4 | 0 | 1966 | 144.0 |
| | OWR | OPEN WOOD PORCH W/STEPS/ROOF | 4 | 0 | 1966 | 300.0 |
| | LOF | LOFT | 4 | 0 | 1966 | 550.0 |
| | OWP | OPEN WOOD PORCH W/STEPS | 4 | 0 | 1966 | 27.0 |
| | ENP | ENCLOSED PORCH | 4 | 0 | 1966 | 15.0 |
Sketch
| No sketches available for this property. |
Property Image
Land
| 1 | LB | LOW BANK | 0.2500 | 10890.00 | 50.00 | 0.00 | 1.00 | $400,000 | $0 |
| 2 | 55 | TIDES | 0.0000 | 0.00 | 51.00 | 0.00 | 1.00 | $510 | $0 |
Roll Value History
| 2026 | N/A | N/A | N/A | N/A | N/A |
| 2025 | $293,445 | $400,510 | $0 | $693,955 | $693,955 |
| 2024 | $296,969 | $350,510 | $0 | $647,479 | $647,479 |
| 2023 | $228,151 | $300,510 | $0 | $528,661 | $528,661 |
| 2022 | $209,202 | $300,510 | $0 | $509,712 | $509,712 |
| 2021 | $184,175 | $275,510 | $0 | $459,685 | $459,685 |
| 2020 | $171,131 | $275,510 | $0 | $446,641 | $446,641 |
| 2019 | $125,892 | $300,510 | $0 | $426,402 | $426,402 |
| 2018 | $126,288 | $250,510 | $0 | $376,798 | $376,798 |
| 2017 | $127,084 | $230,510 | $0 | $357,594 | $357,594 |
| 2016 | $128,671 | $230,510 | $0 | $359,181 | $359,181 |
| 2015 | $130,260 | $230,510 | $0 | $360,770 | $360,770 |
| 2014 | $137,116 | $230,510 | $0 | $367,626 | $367,626 |
| 2013 | $138,701 | $215,342 | $0 | $354,043 | $354,043 |
| 2012 | $140,288 | $215,342 | $0 | $355,630 | $355,630 |
| 2011 | $141,870 | $215,342 | $0 | $357,212 | $357,212 |
| 2010 | $148,038 | $215,342 | $0 | $363,380 | $363,380 |
| 2009 | $154,286 | $215,342 | $0 | $369,628 | $369,628 |
| 2008 | $112,536 | $215,342 | $0 | $327,878 | $327,878 |
| 2007 | $114,214 | $214,997 | $0 | $329,211 | $329,211 |
Deed and Sales History
| 1 | 10/06/2023 | WD | Warranty Deed | WATERSTONE SUPPORT FOUNDATION, INC | FULTON, DOUGLAS B | | | $950,000.00 | 58197 | 4565545 |
| 2 | 07/27/2023 | QCD | Quit Claim Deed | WICKMAN TTEE, LESLIE A | WATERSTONE SUPPORT FOUNDATION, INC | | | $0.00 | 57516 | 4563054 |
| 3 | 10/28/2021 | QCD | Quit Claim Deed | WICKMAN, LESLIE A | WICKMAN TTEE, LESLIE A | | | $0.00 | 51068 | 4535097 |
| 4 | 08/18/2004 | WD | Warranty Deed | SENFF, MARVIN A | WICKMAN, LESLIE A | | | $430,000.00 | 44025 | 4111392 |
| 5 | 10/01/1982 | REC | Real Estate Contract | SENFF, MARVIN E | SENFF, MARVIN E | | | $0.00 | 59686 | 401780 |
| 6 | 06/01/1971 | REC | Real Estate Contract | SENFF, MARVIN E | SENFF, MARVIN A | | | $0.00 | 41632 | 4111393 |
| 7 | 06/01/1971 | EXECUTORD | Executor Deed | CLAUSEN, ALFRED/CORRINE F | SENFF, MARVIN E | | | $31,500.00 | 41632 | 0 |
| 8 | 01/01/1900 | OTHER | Other - Misc. Documents | Unknown | CLAUSEN, ALFRED/CORRINE F | | | $0.00 | 0 | 0 |
Payout Agreement
| No payout information available.. |