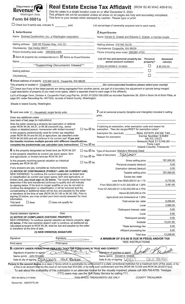
Property
Account |
| Property ID: | 490766 | Abbreviated Legal Description: | PENN COVE PARK #2 LOT 11 FR 00011-0 |
| Geographic ID: | S7730-02-00011-1 | Agent Code: | |
| Type: | Real | | |
| Tax Area: | 120 - APPRAISER-OH Schl Dist, Special Dist, improved & 1 acre or less | Land Use Code | 11 |
| Open Space: | N | DFL | N |
| Historic Property: | N | Remodel Property: | N |
| Multi-Family Redevelopment: | N | | |
| Township: | | Section: | |
| Range: | |
Location |
| Address: | 842 BURROUGHS AVE OAK HARBOR, WA 98277 | Mapsco: | |
| Neighborhood: | Cycle 2 | Map ID: | 153 |
| Neighborhood CD: | 2 |
Owner |
| Name: | LEE, GEOFFREY F | Owner ID: | 268661 |
| Mailing Address: | LEE E PHILPOTT 842 BURROUGHS AVE OAK HARBOR, WA 98277 | % Ownership: | 100.0000000000% |
| | | Exemptions: | |
Taxes and Assessment Details
Values
| (+) Improvement Homesite Value: | + | $0 | |
| (+) Improvement Non-Homesite Value: | + | $427,533 | |
| (+) Land Homesite Value: | + | $0 | |
| (+) Land Non-Homesite Value: | + | $320,000 | |
| (+) Curr Use (HS): | + | $0 | $0 |
| (+) Curr Use (NHS): | + | $0 | $0 |
| | | -------------------------- | |
| (=) Market Value: | = | $747,533 | |
| (–) Productivity Loss: | – | $0 | |
| | | -------------------------- | |
| (=) Subtotal: | = | $747,533 | |
| (+) Senior Appraised Value: | + | $0 | |
| (+) Non-Senior Appraised Value: | + | $747,533 | |
| | | -------------------------- | |
| (=) Total Appraised Value: | = | $747,533 | |
| (–) Senior Exemption Loss: | – | $0 | |
| (–) Exemption Loss: | – | $0 | |
| | | -------------------------- | |
| (=) Taxable Value: | = | $747,533 | |
Taxing Jurisdiction
| Owner: | LEE, GEOFFREY F | | |
| % Ownership: | 100.0000000000% | | |
| Total Value: | $747,533 | | |
| Tax Area: | 120 - APPRAISER-OH Schl Dist, Special Dist, improved & 1 acre or less |
| CF | Conservation Futures | 0.0316035091 | $747,533 | $747,533 | $23.62 | | |
| CEM1 | Cemetery #1 | 0.0040320932 | $747,533 | $747,533 | $3.01 | | |
| FIRE2 | Fire & Rescue Dist #2 N Whidbey GEN | 0.5475949600 | $747,533 | $747,533 | $409.35 | | |
| HOBOND | Hospital BOND | 0.1910887512 | $747,533 | $747,533 | $142.85 | | |
| HOGEN | Hospital GEN | 0.3902502903 | $747,533 | $747,533 | $291.72 | | |
| CE | County Current Expense | 0.3708482477 | $747,533 | $747,533 | $277.22 | | |
| CR | County Roads | 0.4584763726 | $747,533 | $747,533 | $342.73 | | |
| ISLANDEMS | Hospital GEN (EMS) | 0.5000000000 | $747,533 | $747,533 | $373.77 | | |
| LIB | Library Sno-Isle GEN | 0.3153421757 | $747,533 | $747,533 | $235.73 | | |
| NWHIDPRMT | P & R N Whidbey GEN | 0.2004466701 | $747,533 | $747,533 | $149.84 | | |
| SCH201MO | School 201 Enrichment | 1.8559231640 | $747,533 | $747,533 | $1,387.36 | | |
| ST | State School | 1.3035497053 | $747,533 | $747,533 | $974.45 | | |
| ST2 | State School Part 2 | 0.8169543533 | $747,533 | $747,533 | $610.70 | | |
| | Total Tax Rate: | 6.9861102925 | | | | | |
| | | | | Taxes w/Current Exemptions: | $5,222.35 | | |
| | | | | Taxes w/o Exemptions: | $5,222.35 | | |
Improvement / Building
| Improvement #1: | RESIDENTIAL | State Code: | Y | 2616.6 sqft | Value: | $427,533 |
| Bathrooms: | 2.75 | Bedrooms: | 4 | | Ceiling: | DRYWALL PAINTED | Exterior Wall/Cover: | CEMENT FIBER | | Floor Covering: | CARPET/VINYL 80-20 | Floor Structure: | WOOD W/SUBFLOOR | | Foundation: | CONCRETE | Heating: | FHA GAS | | Interior Finish: | DRYWALL PAINT | Plumbing Fixture Cnt: | 15 | | Roof Slope: | 4" IN 12" | Roof Structure/Cover: | CJ ASPHALT |
|
| | Type | Description | Class CD | Sub Class CD | Year Built | Area |
| | BAS | BASE/MAIN FLOOR | 3 | 0 | 1997 | 1784.6 |
| | OP1 | OPEN PORCH SLAB | 3 | 0 | 1997 | 577.0 |
| | OP4 | OPEN PORCH W/CEILING-ROOF | 3 | 0 | 1997 | 69.0 |
| | AGR | ATTACHED GARAGE | 3 | 0 | 1997 | 587.6 |
| | OWP | OPEN WOOD PORCH W/STEPS | 3 | 0 | 1997 | 813.2 |
| | DWN | DOWNSTAIRS LIVING AREA | 3 | 0 | 1997 | 832.0 |
Sketch
Property Image
Land
| 1 | 15 | SQ (12001-21780) | 0.4100 | 17859.60 | 0.00 | 0.00 | 1.00 | $320,000 | $0 |
Roll Value History
| 2026 | N/A | N/A | N/A | N/A | N/A |
| 2025 | $427,533 | $320,000 | $0 | $747,533 | $747,533 |
| 2024 | $413,161 | $320,000 | $0 | $733,161 | $733,161 |
| 2023 | $417,953 | $320,000 | $0 | $737,953 | $737,953 |
| 2022 | $382,775 | $280,000 | $0 | $662,775 | $662,775 |
| 2021 | $336,610 | $200,000 | $0 | $536,610 | $536,610 |
| 2020 | $326,854 | $200,000 | $0 | $526,854 | $526,854 |
| 2019 | $253,500 | $220,000 | $0 | $473,500 | $473,500 |
| 2018 | $251,475 | $160,000 | $0 | $411,475 | $411,475 |
| 2017 | $252,675 | $150,000 | $0 | $402,675 | $402,675 |
| 2016 | $255,453 | $135,000 | $0 | $390,453 | $390,453 |
| 2015 | $258,230 | $135,000 | $0 | $393,230 | $393,230 |
| 2014 | $192,965 | $60,000 | $0 | $252,965 | $252,965 |
| 2013 | $195,318 | $55,000 | $0 | $250,318 | $250,318 |
| 2012 | $202,660 | $95,200 | $0 | $297,860 | $297,860 |
| 2011 | $205,014 | $112,000 | $0 | $317,014 | $317,014 |
| 2010 | $213,740 | $112,000 | $0 | $325,740 | $325,740 |
| 2009 | $223,326 | $130,000 | $0 | $353,326 | $353,326 |
| 2008 | $226,472 | $150,000 | $0 | $376,472 | $376,472 |
| 2007 | $229,540 | $96,000 | $0 | $325,540 | $325,540 |
Deed and Sales History
| 1 | 12/03/2014 | WD | Warranty Deed | SEBO, ROBERT C | LEE, GEOFFREY F | | | $425,000.00 | 17746 | 4369429 |
| 2 | 04/14/2014 | SPWARDEED | Special Warranty Deed | SECRETARY OF VETERAN AFFAIRS | SEBO, ROBERT C | | | $185,200.00 | 14936 | 4358011 |
| 3 | 01/31/2014 | WD | Warranty Deed | NEW DAY FINANCIAL LLC | SECRETARY OF VETERAN AFFAIRS | | | $378,019.00 | 14268 | 4355153 |
| 4 | 01/29/2014 | TRUSTEED | Trustee's Deed | SNOW, DENISE M | NEW DAY FINANCIAL LLC | | | $255,150.00 | 14177 | 4354697 |
| 5 | 12/14/2005 | WD | Warranty Deed | BURGESS, BRADLEY C | SNOW, DENISE M | | | $309,500.00 | 56347 | 4157811 |
| 6 | 07/13/1999 | WD | Warranty Deed | HALL, STEPHEN A | BURGESS, BRADLEY C | | | $237,500.00 | 93023 | 99017763 |
| 7 | 12/01/1994 | WD | Warranty Deed | GATES, LAWRENCE E | HALL, STEPHEN A | | | $40,000.00 | 44932 | 94025127 |
| 8 | 01/01/1900 | OTHER | Other - Misc. Documents | Unknown | GATES, LAWRENCE E | | | $0.00 | 0 | 0 |
Payout Agreement
| No payout information available.. |