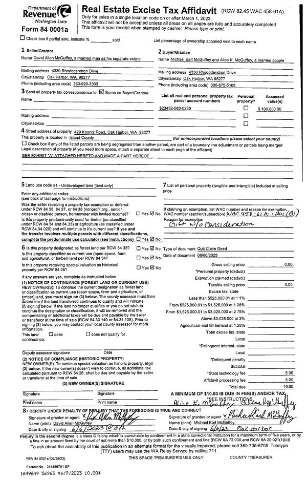
Property
Account |
| Property ID: | 491079 | Abbreviated Legal Description: | E256' MEAS ALG SLN OF W/2 NW SW LY S OF RD EX S850 .78' TGW E/2 NW SW: BG WLN E/2 NW SW INTER SLN SILVER LAKE RD ELY ALG SLN RD TP 60'E OF WLN E/2 S200' SWLY TP ON WLN E/2 370.61'S OF SLN CO RD N370.61' M/L TO SLN CO RD TPB FR 195-0600 (LOT I SP 79-166 |
| Geographic ID: | R23327-235-0550 | Agent Code: | |
| Type: | Real | | |
| Tax Area: | 112 - APPRAISER-OH Schl Dist, outside OH, improved, greater than 1 acre | Land Use Code | 11 |
| Open Space: | N | DFL | N |
| Historic Property: | N | Remodel Property: | N |
| Multi-Family Redevelopment: | N | | |
| Township: | 33 | Section: | 27 |
| Range: | R2 |
Location |
| Address: | 1230 SILVER LAKE RD OAK HARBOR, WA 98277 | Mapsco: | |
| Neighborhood: | Cycle 6 | Map ID: | 627 |
| Neighborhood CD: | 6 |
Owner |
| Name: | CHASTAIN, CHRIS | Owner ID: | 293823 |
| Mailing Address: | STACEY A CHASTAIN 1230 SILVER LAKE RD OAK HARBOR, WA 98277 | % Ownership: | 100.0000000000% |
| | | Exemptions: | |
Taxes and Assessment Details
Values
| (+) Improvement Homesite Value: | + | $0 | |
| (+) Improvement Non-Homesite Value: | + | $168,238 | |
| (+) Land Homesite Value: | + | $0 | |
| (+) Land Non-Homesite Value: | + | $250,000 | |
| (+) Curr Use (HS): | + | $0 | $0 |
| (+) Curr Use (NHS): | + | $0 | $0 |
| | | -------------------------- | |
| (=) Market Value: | = | $418,238 | |
| (–) Productivity Loss: | – | $0 | |
| | | -------------------------- | |
| (=) Subtotal: | = | $418,238 | |
| (+) Senior Appraised Value: | + | $0 | |
| (+) Non-Senior Appraised Value: | + | $418,238 | |
| | | -------------------------- | |
| (=) Total Appraised Value: | = | $418,238 | |
| (–) Senior Exemption Loss: | – | $0 | |
| (–) Exemption Loss: | – | $0 | |
| | | -------------------------- | |
| (=) Taxable Value: | = | $418,238 | |
Taxing Jurisdiction
| Owner: | CHASTAIN, CHRIS | | |
| % Ownership: | 100.0000000000% | | |
| Total Value: | $418,238 | | |
| Tax Area: | 112 - APPRAISER-OH Schl Dist, outside OH, improved, greater than 1 acre |
| CF | Conservation Futures | 0.0316035091 | $418,238 | $418,238 | $13.22 | | |
| CEM1 | Cemetery #1 | 0.0040320932 | $418,238 | $418,238 | $1.69 | | |
| FIRE2 | Fire & Rescue Dist #2 N Whidbey GEN | 0.5475949600 | $418,238 | $418,238 | $229.03 | | |
| HOBOND | Hospital BOND | 0.1910887512 | $418,238 | $418,238 | $79.92 | | |
| HOGEN | Hospital GEN | 0.3902502903 | $418,238 | $418,238 | $163.22 | | |
| CE | County Current Expense | 0.3708482477 | $418,238 | $418,238 | $155.10 | | |
| CR | County Roads | 0.4584763726 | $418,238 | $418,238 | $191.75 | | |
| ISLANDEMS | Hospital GEN (EMS) | 0.5000000000 | $418,238 | $418,238 | $209.12 | | |
| LIB | Library Sno-Isle GEN | 0.3153421757 | $418,238 | $418,238 | $131.89 | | |
| NWHIDPRMT | P & R N Whidbey GEN | 0.2004466701 | $418,238 | $418,238 | $83.83 | | |
| SCH201MO | School 201 Enrichment | 1.8559231640 | $418,238 | $418,238 | $776.22 | | |
| ST | State School | 1.3035497053 | $418,238 | $418,238 | $545.19 | | |
| ST2 | State School Part 2 | 0.8169543533 | $418,238 | $418,238 | $341.68 | | |
| | Total Tax Rate: | 6.9861102925 | | | | | |
| | | | | Taxes w/Current Exemptions: | $2,921.86 | | |
| | | | | Taxes w/o Exemptions: | $2,921.86 | | |
Improvement / Building
| Improvement #1: | MANUFACTURED HOME | State Code: | Y | 1885.0 sqft | Value: | $168,238 |
| Bathrooms: | 0 | Bedrooms: | 0 | | Ceiling: | PLASTER PAINTED | Cooling: | EVAP NO DUCT | | Exterior Wall/Cover: | VINYL | Floor Covering: | CARPET 100% | | Floor Structure: | SLAB ON GRADE | Foundation: | SLAB | | Heating: | FHA ELECTRIC | Interior Finish: | PLASTER | | Plumbing Fixture Cnt: | 1 | Roof Slope: | FLAT | | Roof Structure/Cover: | CJ ALUMINIUM HEAVY |   |   |
|
| | Type | Description | Class CD | Sub Class CD | Year Built | Area |
| | BAS | BASE/MAIN FLOOR | 4 | 0 | 2006 | 1885.0 |
| | OWP | OPEN WOOD PORCH W/STEPS | 4 | 0 | 2006 | 50.0 |
| | OWP | OPEN WOOD PORCH W/STEPS | 4 | 0 | 2006 | 640.0 |
| | UTY | STORAGE/UTILITY | 4 | 0 | 2006 | 192.0 |
| | ENP | ENCLOSED PORCH | 4 | 0 | 2006 | 80.0 |
| | OWC | OPEN WOOD PORCH W/STEPS/ROOF/C | 4 | 0 | 2006 | 48.0 |
Sketch
Property Image
Land
| 1 | 18 | AC (02.01-03.00) | 2.5100 | 109335.60 | 0.00 | 0.00 | 1.00 | $250,000 | $0 |
Roll Value History
| 2026 | N/A | N/A | N/A | N/A | N/A |
| 2025 | $168,238 | $250,000 | $0 | $418,238 | $418,238 |
| 2024 | $172,498 | $230,000 | $0 | $402,498 | $402,498 |
| 2023 | $153,704 | $220,000 | $0 | $373,704 | $373,704 |
| 2022 | $107,694 | $210,000 | $0 | $317,694 | $317,694 |
| 2021 | $95,867 | $160,000 | $0 | $255,867 | $255,867 |
| 2020 | $95,433 | $140,000 | $0 | $235,433 | $235,433 |
| 2019 | $77,031 | $200,000 | $0 | $277,031 | $277,031 |
| 2018 | $78,888 | $170,000 | $0 | $248,888 | $248,888 |
| 2017 | $79,816 | $150,000 | $0 | $229,816 | $229,816 |
| 2016 | $83,098 | $120,000 | $0 | $203,098 | $203,098 |
| 2015 | $85,007 | $90,000 | $0 | $175,007 | $175,007 |
| 2014 | $85,963 | $80,000 | $0 | $165,963 | $165,963 |
| 2013 | $87,872 | $72,360 | $0 | $160,232 | $160,232 |
| 2012 | $88,828 | $72,360 | $0 | $161,188 | $161,188 |
| 2011 | $89,784 | $80,400 | $0 | $170,184 | $170,184 |
| 2010 | $91,845 | $80,400 | $0 | $172,245 | $172,245 |
| 2009 | $96,322 | $97,150 | $0 | $193,472 | $193,472 |
| 2008 | $98,330 | $97,150 | $0 | $195,480 | $195,480 |
| 2007 | $100,302 | $136,010 | $0 | $236,312 | $236,312 |
Deed and Sales History
| 1 | 03/19/2020 | QCD | Quit Claim Deed | CHASTAIN, CHRIS | CHASTAIN, CHRIS | | | $0.00 | 42472 | 4483613 |
| 2 | 06/01/2004 | WD | Warranty Deed | PAFFIE, ALYN S | CHASTAIN, CHRIS | | | $97,000.00 | 42336 | 4102309 |
| 3 | 06/24/2001 | WD | Warranty Deed | HANSEN, MICHAEL H | PAFFIE, ALYN S | | | $84,900.00 | 12461 | 20036182 |
| 4 | 06/01/1994 | OTHER | Other - Misc. Documents | HANSEN, MICHAEL H | HANSEN, MICHAEL H | | | $43,000.00 | 42638 | 0 |
| 5 | 06/01/1994 | WD | Warranty Deed | VIZCARRONDO, VINCENT R | HANSEN, MICHAEL H | | | $35,000.00 | 42637 | 94014604 |
| 6 | 03/01/1989 | WD | Warranty Deed | YADON, DENNIS R | VIZCARRONDO, VINCENT R | | | $22,200.00 | 91327 | 89004689 |
| 7 | 01/01/1988 | WD | Warranty Deed | MORGAN, DANIEL J | YADON, DENNIS R | | | $25,000.00 | 80296 | 88001290 |
| 8 | 09/01/1982 | PACD | Purchaser's Assignment | TREMBLEY, TIMOTHY C | MORGAN, DANIEL J | | | $34,500.00 | 22393 | 401350 |
| 9 | 04/01/1981 | PACD | Purchaser's Assignment | LEADER, DENNIS D | TREMBLEY, TIMOTHY C | | | $33,000.00 | 10991 | 381384 |
| 10 | 03/01/1980 | REC | Real Estate Contract | GOETZ, JACK K | LEADER, DENNIS D | | | $29,900.00 | 888 | 366397 |
| 11 | 01/01/1900 | OTHER | Other - Misc. Documents | Unknown | GOETZ, JACK K | | | $0.00 | 0 | 0 |
Payout Agreement
| No payout information available.. |