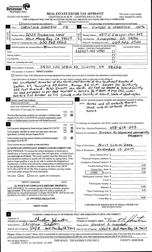
Property
Account |
| Property ID: | 491239 | Abbreviated Legal Description: | THAT PTN OF N/2 SE NE LY E OF ELY LN OF RD EX N440' TGW EZ SP 79-101 TR C FR 3615220 |
| Geographic ID: | R33131-340-5250 | Agent Code: | |
| Type: | Real | | |
| Tax Area: | 542 - APPRAISER-Stan/Cam Schl Dist, Special Dist, improved, greater than 1 acre | Land Use Code | 11 |
| Open Space: | N | DFL | N |
| Historic Property: | N | Remodel Property: | N |
| Multi-Family Redevelopment: | N | | |
| Township: | 31 | Section: | 31 |
| Range: | R3 |
Location |
| Address: | 2127 SOUTH CAMANO DR CAMANO ISLAND, WA 98282 | Mapsco: | |
| Neighborhood: | Cycle 5 | Map ID: | 943 |
| Neighborhood CD: | 5 |
Owner |
| Name: | GALFANO, PHILLIP | Owner ID: | 281569 |
| Mailing Address: | CAROLYN GALFANO 2127 SOUTH CAMANO DR CAMANO ISLAND, WA 98282 | % Ownership: | 100.0000000000% |
| | | Exemptions: | |
Taxes and Assessment Details
Values
| (+) Improvement Homesite Value: | + | $0 | |
| (+) Improvement Non-Homesite Value: | + | $493,122 | |
| (+) Land Homesite Value: | + | $0 | |
| (+) Land Non-Homesite Value: | + | $290,000 | |
| (+) Curr Use (HS): | + | $0 | $0 |
| (+) Curr Use (NHS): | + | $0 | $0 |
| | | -------------------------- | |
| (=) Market Value: | = | $783,122 | |
| (–) Productivity Loss: | – | $0 | |
| | | -------------------------- | |
| (=) Subtotal: | = | $783,122 | |
| (+) Senior Appraised Value: | + | $0 | |
| (+) Non-Senior Appraised Value: | + | $783,122 | |
| | | -------------------------- | |
| (=) Total Appraised Value: | = | $783,122 | |
| (–) Senior Exemption Loss: | – | $0 | |
| (–) Exemption Loss: | – | $0 | |
| | | -------------------------- | |
| (=) Taxable Value: | = | $783,122 | |
Taxing Jurisdiction
| Owner: | GALFANO, PHILLIP | | |
| % Ownership: | 100.0000000000% | | |
| Total Value: | $783,122 | | |
| Tax Area: | 542 - APPRAISER-Stan/Cam Schl Dist, Special Dist, improved, greater than 1 acre |
| CF | Conservation Futures | 0.0316035091 | $783,122 | $783,122 | $24.75 | | |
| EMS1 | Fire & Rescue Dist #1 Camano GEN (EMS) | 0.3677864386 | $783,122 | $783,122 | $288.02 | | |
| FIRE1 | Fire & Rescue Dist #1 Camano GEN | 1.2502910536 | $783,122 | $783,122 | $979.13 | | |
| FIRE1BOND | Fire & Rescue Dist #1 Camano BOND | 0.1570001679 | $783,122 | $783,122 | $122.95 | | |
| CE | County Current Expense | 0.3708482477 | $783,122 | $783,122 | $290.42 | | |
| CR | County Roads | 0.4584763726 | $783,122 | $783,122 | $359.04 | | |
| LCIB | Library Sno-Isle BOND (Camano Island) | 0.0396325772 | $783,122 | $783,122 | $31.04 | | |
| LIB | Library Sno-Isle GEN | 0.3153421757 | $783,122 | $783,122 | $246.95 | | |
| SCH205_401 | School 205-401 Enrichment | 1.2698420524 | $783,122 | $783,122 | $994.44 | | |
| SCH205BOND | School 205-401 BOND | 0.9396497583 | $783,122 | $783,122 | $735.86 | | |
| ST | State School | 1.3035497053 | $783,122 | $783,122 | $1,020.84 | | |
| ST2 | State School Part 2 | 0.8169543533 | $783,122 | $783,122 | $639.77 | | |
| | Total Tax Rate: | 7.3209764117 | | | | | |
| | | | | Taxes w/Current Exemptions: | $5,733.21 | | |
| | | | | Taxes w/o Exemptions: | $5,733.21 | | |
Improvement / Building
| Improvement #1: | RESIDENTIAL | State Code: | Y | 1958.7 sqft | Value: | $493,122 |
| Bathrooms: | 2 | Bedrooms: | 3 | | Ceiling: | DRYWALL PAINTED | Cooling: | HEAT PUMP/CONV/V | | Exterior Wall/Cover: | CEMENT FIBER | Floor Covering: | HARDWOOD/CARP 80-20 | | Floor Structure: | WOOD W/SUBFLOOR | Foundation: | CONCRETE | | Interior Finish: | DRYWALL PAINT | Plumbing Fixture Cnt: | 9 | | Roof Slope: | 12" IN 12" | Roof Structure/Cover: | CJ ASPHALT |
|
| | Type | Description | Class CD | Sub Class CD | Year Built | Area |
| | BAS | BASE/MAIN FLOOR | 4 | 0 | 2006 | 1958.7 |
| | OP4 | OPEN PORCH W/CEILING-ROOF | 4 | 0 | 2006 | 52.0 |
| | AGR | ATTACHED GARAGE | 4 | 0 | 2006 | 599.2 |
| | OWP | OPEN WOOD PORCH W/STEPS | 4 | 0 | 2006 | 597.1 |
Sketch
Property Image
Land
| 1 | 18 | AC (02.01-03.00) | 2.6800 | 116740.80 | 0.00 | 0.00 | 1.00 | $290,000 | $0 |
Roll Value History
| 2026 | N/A | N/A | N/A | N/A | N/A |
| 2025 | $493,122 | $290,000 | $0 | $783,122 | $783,122 |
| 2024 | $498,906 | $280,000 | $0 | $778,906 | $778,906 |
| 2023 | $504,691 | $270,000 | $0 | $774,691 | $774,691 |
| 2022 | $462,237 | $260,000 | $0 | $722,237 | $722,237 |
| 2021 | $384,913 | $180,000 | $0 | $564,913 | $564,913 |
| 2020 | $374,420 | $150,000 | $0 | $524,420 | $524,420 |
| 2019 | $283,946 | $200,000 | $0 | $483,946 | $483,946 |
| 2018 | $284,724 | $150,000 | $0 | $434,724 | $434,724 |
| 2017 | $254,163 | $135,000 | $0 | $389,163 | $389,163 |
| 2016 | $256,987 | $105,000 | $0 | $361,987 | $361,987 |
| 2015 | $246,545 | $50,000 | $0 | $296,545 | $296,545 |
| 2014 | $249,285 | $50,000 | $0 | $299,285 | $299,285 |
| 2013 | $252,024 | $50,000 | $0 | $302,024 | $302,024 |
| 2012 | $254,764 | $74,400 | $0 | $329,164 | $329,164 |
| 2011 | $257,505 | $93,000 | $0 | $350,505 | $350,505 |
| 2010 | $268,249 | $93,000 | $0 | $361,249 | $361,249 |
| 2009 | $232,500 | $217,500 | $0 | $450,000 | $450,000 |
| 2008 | $301,693 | $201,128 | $0 | $502,821 | $502,821 |
| 2007 | $4,000 | $217,500 | $0 | $221,500 | $221,500 |
Deed and Sales History
| 1 | 08/17/2017 | WD | Warranty Deed | SWANSON, HAROLD | GALFANO, PHILLIP | | | $500,000.00 | 30762 | 4428759 |
| 2 | 04/03/2006 | WD | Warranty Deed | PEARSON, ARTHUR D & JOHN D | SWANSON, HAROLD | | | $180,000.00 | 64879 | 4169005 |
| 3 | 01/01/1900 | OTHER | Other - Misc. Documents | Unknown | PEARSON, ARTHUR D & JOHN D | | | $0.00 | 0 | 0 |
Payout Agreement
| No payout information available.. |