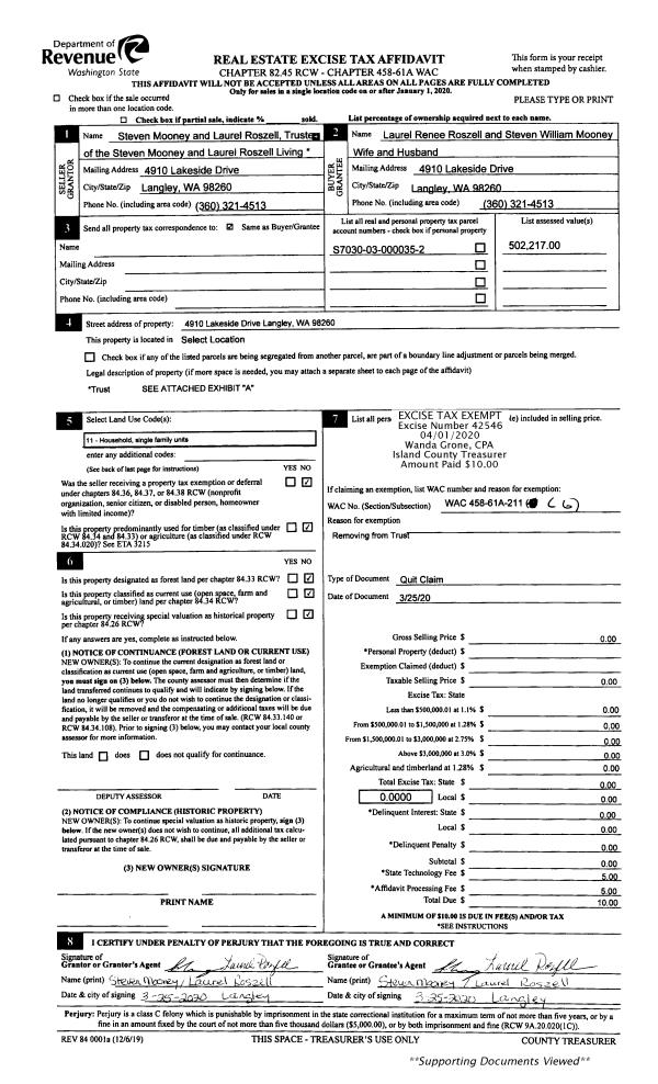
Property
Account |
| Property ID: | 49129 | Abbreviated Legal Description: | 63 - IN GLS 1 & 2: BG NWCR GL1 S500' E1250' TPB E TO ELN GL1 S TP N87*W OF NWCR LOT 29 BLK 3 MUTINY SANDS S87*E TO NWCR LOT 29 S ON WLN LOTS 27, 28 & 29 BLK 3 MUTINY SANDS TO ML WLY TP S OF TPB N TPB INCL ADJ TIDES PT FR 110-1570 |
| Geographic ID: | R22909-060-1240 | Agent Code: | |
| Type: | Real | | |
| Tax Area: | 710 - APPRAISER-S Whid Schl Dist, outside Langley, improved & 1 acre or less | Land Use Code | 11 |
| Open Space: | N | DFL | N |
| Historic Property: | N | Remodel Property: | N |
| Multi-Family Redevelopment: | N | | |
| Township: | 29 | Section: | 09 |
| Range: | R2 |
Location |
| Address: | 898 OLD BEACH RD FREELAND, WA 98249 | Mapsco: | |
| Neighborhood: | Cycle 3 | Map ID: | 305 |
| Neighborhood CD: | 3 |
Owner |
| Name: | OLSON, H DUANE | Owner ID: | 13502 |
| Mailing Address: | BONNIE J OLSON PO BOX 1028 FREELAND, WA 98249-1028 | % Ownership: | 100.0000000000% |
| | | Exemptions: | |
Taxes and Assessment Details
Values
| (+) Improvement Homesite Value: | + | $0 | |
| (+) Improvement Non-Homesite Value: | + | $770,845 | |
| (+) Land Homesite Value: | + | $0 | |
| (+) Land Non-Homesite Value: | + | $1,005,700 | |
| (+) Curr Use (HS): | + | $0 | $0 |
| (+) Curr Use (NHS): | + | $0 | $0 |
| | | -------------------------- | |
| (=) Market Value: | = | $1,776,545 | |
| (–) Productivity Loss: | – | $0 | |
| | | -------------------------- | |
| (=) Subtotal: | = | $1,776,545 | |
| (+) Senior Appraised Value: | + | $0 | |
| (+) Non-Senior Appraised Value: | + | $1,776,545 | |
| | | -------------------------- | |
| (=) Total Appraised Value: | = | $1,776,545 | |
| (–) Senior Exemption Loss: | – | $0 | |
| (–) Exemption Loss: | – | $0 | |
| | | -------------------------- | |
| (=) Taxable Value: | = | $1,776,545 | |
Taxing Jurisdiction
| Owner: | OLSON, H DUANE | | |
| % Ownership: | 100.0000000000% | | |
| Total Value: | $1,776,545 | | |
| Tax Area: | 710 - APPRAISER-S Whid Schl Dist, outside Langley, improved & 1 acre or less |
| CF | Conservation Futures | 0.0316035091 | $1,776,545 | $1,776,545 | $56.15 | | |
| FIRE3 | Fire & Rescue Dist #3 S Whidbey GEN | 1.2004855531 | $1,776,545 | $1,776,545 | $2,132.72 | | |
| HOBOND | Hospital BOND | 0.1910887512 | $1,776,545 | $1,776,545 | $339.48 | | |
| HOGEN | Hospital GEN | 0.3902502903 | $1,776,545 | $1,776,545 | $693.30 | | |
| CE | County Current Expense | 0.3708482477 | $1,776,545 | $1,776,545 | $658.83 | | |
| CR | County Roads | 0.4584763726 | $1,776,545 | $1,776,545 | $814.50 | | |
| ISLANDEMS | Hospital GEN (EMS) | 0.5000000000 | $1,776,545 | $1,776,545 | $888.27 | | |
| LIB | Library Sno-Isle GEN | 0.3153421757 | $1,776,545 | $1,776,545 | $560.22 | | |
| PORTWHID | Port of S Whidbey GEN | 0.1094540357 | $1,776,545 | $1,776,545 | $194.45 | | |
| SCH206BOND | School 206 BOND | 0.3161759235 | $1,776,545 | $1,776,545 | $561.70 | | |
| SCH206MO | School 206 Enrichment | 0.4547169547 | $1,776,545 | $1,776,545 | $807.83 | | |
| ST | State School | 1.3035497053 | $1,776,545 | $1,776,545 | $2,315.81 | | |
| ST2 | State School Part 2 | 0.8169543533 | $1,776,545 | $1,776,545 | $1,451.36 | | |
| SWHIDPRBD | P & R S Whidbey BOND | 0.0152817568 | $1,776,545 | $1,776,545 | $27.15 | | |
| SWHIDPRBD2 | P & R S Whidbey BOND2 | 0.0138911264 | $1,776,545 | $1,776,545 | $24.68 | | |
| SWHIDPRMT | P & R S Whidbey GEN | 0.2053334452 | $1,776,545 | $1,776,545 | $364.78 | | |
| | Total Tax Rate: | 6.6934522006 | | | | | |
| | | | | Taxes w/Current Exemptions: | $11,891.23 | | |
| | | | | Taxes w/o Exemptions: | $11,891.23 | | |
Improvement / Building
| Improvement #1: | RESIDENTIAL | State Code: | Y | 3254.0 sqft | Value: | $647,858 |
| Bathrooms: | 3.5 | Bedrooms: | 3 | | Ceiling: | DRYWALL PAINTED | Exterior Wall/Cover: | SHINGLE | | Floor Covering: | HARDWOOD/CARP 60-40 | Floor Structure: | WOOD W/SUBFLOOR | | Foundation: | CONCRETE | Heating: | FHA GAS | | Interior Finish: | DRYWALL PAINT | Plumbing Fixture Cnt: | 15 | | Roof Slope: | 8" IN 12" | Roof Structure/Cover: | CJ ASPHALT |
|
| | Type | Description | Class CD | Sub Class CD | Year Built | Area |
| | BAS | BASE/MAIN FLOOR | 5 | 0 | 1998 | 1920.0 |
| | UPS | UPPER STORY | 5 | 0 | 1998 | 1334.0 |
| | OWP | OPEN WOOD PORCH W/STEPS | 5 | 0 | 1998 | 37.0 |
| | OWC | OPEN WOOD PORCH W/STEPS/ROOF/C | 5 | 0 | 1998 | 878.6 |
| Improvement #2: | RESIDENTIAL | State Code: | Y | 768.0 sqft | Value: | $122,987 |
| Bathrooms: | 1 | Bedrooms: | 2 | | Ceiling: | DRYWALL PAINTED | Exterior Wall/Cover: | SHINGLE | | Floor Covering: | HARDWOOD/CARP 20-80 | Floor Structure: | WOOD W/SUBFLOOR | | Foundation: | CONCRETE | Heating: | WALL HEAT ELECTRIC | | Interior Finish: | DRYWALL PAINT | Plumbing Fixture Cnt: | 7 | | Roof Slope: | 8" IN 12" | Roof Structure/Cover: | CJ ASPHALT |
|
| | Type | Description | Class CD | Sub Class CD | Year Built | Area |
| | BAS | BASE/MAIN FLOOR | 3 | 0 | 1945 | 768.0 |
| | OWP | OPEN WOOD PORCH W/STEPS | 3 | 0 | 1945 | 40.0 |
| | OWC | OPEN WOOD PORCH W/STEPS/ROOF/C | 3 | 0 | 1945 | 192.0 |
Sketch
Property Image
Land
| 1 | LB | LOW BANK | 0.0000 | 0.00 | 81.59 | 0.00 | 1.00 | $1,005,000 | $0 |
| 2 | 55 | TIDES | 0.0000 | 0.00 | 70.00 | 0.00 | 1.00 | $700 | $0 |
Roll Value History
| 2026 | N/A | N/A | N/A | N/A | N/A |
| 2025 | $770,845 | $1,005,700 | $0 | $1,776,545 | $1,776,545 |
| 2024 | $781,028 | $1,005,700 | $0 | $1,786,728 | $1,786,728 |
| 2023 | $791,210 | $1,005,700 | $0 | $1,796,910 | $1,796,910 |
| 2022 | $724,321 | $960,700 | $0 | $1,685,021 | $1,685,021 |
| 2021 | $637,834 | $800,700 | $0 | $1,438,534 | $1,438,534 |
| 2020 | $621,759 | $800,700 | $0 | $1,422,459 | $1,422,459 |
| 2019 | $529,969 | $800,700 | $0 | $1,330,669 | $1,330,669 |
| 2018 | $531,527 | $725,700 | $0 | $1,257,227 | $1,257,227 |
| 2017 | $534,644 | $700,700 | $0 | $1,235,344 | $1,235,344 |
| 2016 | $540,877 | $700,700 | $0 | $1,241,577 | $1,241,577 |
| 2015 | $547,112 | $700,700 | $0 | $1,247,812 | $1,247,812 |
| 2014 | $553,347 | $676,603 | $0 | $1,229,950 | $1,229,950 |
| 2013 | $556,422 | $676,603 | $0 | $1,233,025 | $1,233,025 |
| 2012 | $562,660 | $676,603 | $0 | $1,239,263 | $1,239,263 |
| 2011 | $568,898 | $676,603 | $0 | $1,245,501 | $1,245,501 |
| 2010 | $592,488 | $676,603 | $0 | $1,269,091 | $1,269,091 |
| 2009 | $615,997 | $805,346 | $0 | $1,421,343 | $1,421,343 |
| 2008 | $628,615 | $800,056 | $0 | $1,428,671 | $1,428,671 |
| 2007 | $580,771 | $802,016 | $0 | $1,382,787 | $1,382,787 |
Deed and Sales History
| 1 | 10/14/1998 | QCD | Quit Claim Deed | SSI, PROPERTIES I | OLSON, H DUANE | | | $0.00 | 84172 | 98022679 |
| 2 | 08/01/1994 | WD | Warranty Deed | CRAMER, KIRBY L | SSI, PROPERTIES I | | | $425,000.00 | 43205 | 94017259 |
| 3 | 03/01/1993 | OTHER | Other - Misc. Documents | CRAMER, KIRBY L | CRAMER, KIRBY L | | | $0.00 | 65253 | 93002647 |
| 4 | 01/01/1993 | QCD | Quit Claim Deed | CRAMER, KIRBY L | CRAMER, KIRBY L | | | $0.00 | 30488 | 93002646 |
| 5 | 06/01/1991 | WD | Warranty Deed | MAZZA, DARLYNE R | CRAMER, KIRBY L | | | $335,000.00 | 12288 | 91009792 |
| 6 | 05/01/1988 | PRD | Personal Representatives Deed | MAZZA, LOUIE | MAZZA, DARLYNE R | | | $0.00 | 81900 | 88007009 |
| 7 | 01/01/1900 | OTHER | Other - Misc. Documents | Unknown | MAZZA, LOUIE | | | $0.00 | 0 | 0 |
Payout Agreement
| No payout information available.. |