Property
Account |
| Property ID: | 491355 | Abbreviated Legal Description: | REPLACES 1620090 20 - S1/3 OF N1/2 S1/2 GL 1 INCL ADJ TIDES |
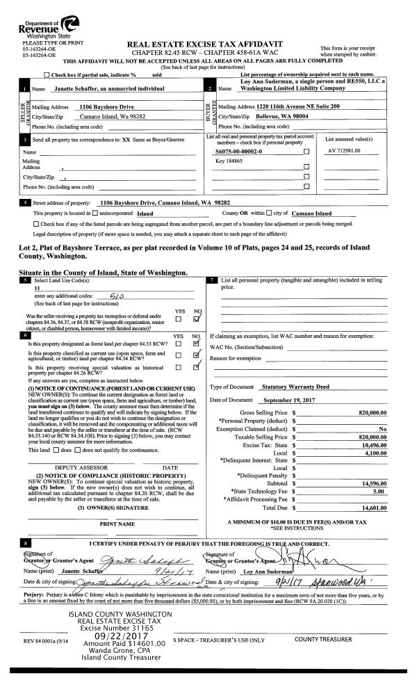
| Geographic ID: | R32813-422-0090 | Agent Code: | |
| Type: | Real | | |
| Tax Area: | 710 - APPRAISER-S Whid Schl Dist, outside Langley, improved & 1 acre or less | Land Use Code | 11 |
| Open Space: | N | DFL | N |
| Historic Property: | N | Remodel Property: | N |
| Multi-Family Redevelopment: | N | | |
| Township: | 28 | Section: | 13 |
| Range: | R3 |
Location |
| Address: | 8070 POSSESSION RD CLINTON, WA 98236 | Mapsco: | |
| Neighborhood: | Cycle 4 | Map ID: | 707 |
| Neighborhood CD: | 4 |
Owner |
| Name: | YOUNG TRUSTEE, JOANNE S | Owner ID: | 281964 |
| Mailing Address: | JEFFREY O ZYLSTRA 2806 NW ESPLANADE SEATTLE, WA 98117-2619 | % Ownership: | 100.0000000000% |
| | | Exemptions: | |
Taxes and Assessment Details
Values
| (+) Improvement Homesite Value: | + | $0 | |
| (+) Improvement Non-Homesite Value: | + | $235,882 | |
| (+) Land Homesite Value: | + | $0 | |
| (+) Land Non-Homesite Value: | + | $426,100 | |
| (+) Curr Use (HS): | + | $0 | $0 |
| (+) Curr Use (NHS): | + | $0 | $0 |
| | | -------------------------- | |
| (=) Market Value: | = | $661,982 | |
| (–) Productivity Loss: | – | $0 | |
| | | -------------------------- | |
| (=) Subtotal: | = | $661,982 | |
| (+) Senior Appraised Value: | + | $0 | |
| (+) Non-Senior Appraised Value: | + | $661,982 | |
| | | -------------------------- | |
| (=) Total Appraised Value: | = | $661,982 | |
| (–) Senior Exemption Loss: | – | $0 | |
| (–) Exemption Loss: | – | $0 | |
| | | -------------------------- | |
| (=) Taxable Value: | = | $661,982 | |
Taxing Jurisdiction
| Owner: | YOUNG TRUSTEE, JOANNE S | | |
| % Ownership: | 100.0000000000% | | |
| Total Value: | $661,982 | | |
| Tax Area: | 710 - APPRAISER-S Whid Schl Dist, outside Langley, improved & 1 acre or less |
| CF | Conservation Futures | 0.0316035091 | $661,982 | $661,982 | $20.92 | | |
| FIRE3 | Fire & Rescue Dist #3 S Whidbey GEN | 1.2004855531 | $661,982 | $661,982 | $794.70 | | |
| HOBOND | Hospital BOND | 0.1910887512 | $661,982 | $661,982 | $126.50 | | |
| HOGEN | Hospital GEN | 0.3902502903 | $661,982 | $661,982 | $258.34 | | |
| CE | County Current Expense | 0.3708482477 | $661,982 | $661,982 | $245.49 | | |
| CR | County Roads | 0.4584763726 | $661,982 | $661,982 | $303.50 | | |
| ISLANDEMS | Hospital GEN (EMS) | 0.5000000000 | $661,982 | $661,982 | $330.99 | | |
| LIB | Library Sno-Isle GEN | 0.3153421757 | $661,982 | $661,982 | $208.75 | | |
| PORTWHID | Port of S Whidbey GEN | 0.1094540357 | $661,982 | $661,982 | $72.46 | | |
| SCH206BOND | School 206 BOND | 0.3161759235 | $661,982 | $661,982 | $209.30 | | |
| SCH206MO | School 206 Enrichment | 0.4547169547 | $661,982 | $661,982 | $301.01 | | |
| ST | State School | 1.3035497053 | $661,982 | $661,982 | $862.93 | | |
| ST2 | State School Part 2 | 0.8169543533 | $661,982 | $661,982 | $540.81 | | |
| SWHIDPRBD | P & R S Whidbey BOND | 0.0152817568 | $661,982 | $661,982 | $10.12 | | |
| SWHIDPRBD2 | P & R S Whidbey BOND2 | 0.0138911264 | $661,982 | $661,982 | $9.20 | | |
| SWHIDPRMT | P & R S Whidbey GEN | 0.2053334452 | $661,982 | $661,982 | $135.93 | | |
| | Total Tax Rate: | 6.6934522006 | | | | | |
| | | | | Taxes w/Current Exemptions: | $4,430.95 | | |
| | | | | Taxes w/o Exemptions: | $4,430.95 | | |
Improvement / Building
| Improvement #1: | RESIDENTIAL | State Code: | Y | 1242.0 sqft | Value: | $235,882 |
| Bathrooms: | 1 | Bedrooms: | 2 | | Ceiling: | ACOUSTIC FURRED | Cooling: | HEAT PUMP/CONV/V | | Exterior Wall/Cover: | WOOD SIDING | Floor Covering: | VINYL 100% | | Floor Structure: | WOOD W/SUBFLOOR | Foundation: | CONCRETE | | Interior Finish: | DRYWALL PAINT | Plumbing Fixture Cnt: | 6 | | Roof Slope: | 3" IN 12" | Roof Structure/Cover: | CJ ALUMINIUM HEAVY |
|
| | Type | Description | Class CD | Sub Class CD | Year Built | Area |
| | BAS | BASE/MAIN FLOOR | 3 | 0 | 1920 | 1242.0 |
| | OWR | OPEN WOOD PORCH W/STEPS/ROOF | 3 | 0 | 1920 | 32.0 |
| | OWR | OPEN WOOD PORCH W/STEPS/ROOF | 3 | 0 | 1920 | 126.0 |
| | UTY | STORAGE/UTILITY | 3 | 0 | 1920 | 1000.0 |
| | DGR | DETACHED GARAGE | 3 | 0 | 1920 | 560.0 |
| | CPD | OPEN CARPORT DIRT FLOOR | 3 | 0 | 1920 | 320.0 |
Sketch
| No sketches available for this property. |
Property Image
Land
| 1 | LB | LOW BANK | 0.5500 | 23958.00 | 110.00 | 0.00 | 1.00 | $425,000 | $0 |
| 2 | 55 | TIDES | 0.0000 | 0.00 | 110.00 | 0.00 | 1.00 | $1,100 | $0 |
Roll Value History
| 2026 | N/A | N/A | N/A | N/A | N/A |
| 2025 | $235,882 | $426,100 | $0 | $661,982 | $661,982 |
| 2024 | $239,610 | $376,100 | $0 | $615,710 | $615,710 |
| 2023 | $243,340 | $326,100 | $0 | $569,440 | $569,440 |
| 2022 | $223,729 | $326,100 | $0 | $549,829 | $549,829 |
| 2021 | $197,474 | $301,100 | $0 | $498,574 | $498,574 |
| 2020 | $147,398 | $301,100 | $0 | $448,498 | $448,498 |
| 2019 | $112,184 | $326,100 | $0 | $438,284 | $438,284 |
| 2018 | $112,530 | $300,000 | $0 | $412,530 | $412,530 |
| 2017 | $107,012 | $300,000 | $0 | $407,012 | $407,012 |
| 2016 | $108,305 | $351,100 | $0 | $459,405 | $459,405 |
| 2015 | $109,597 | $351,100 | $0 | $460,697 | $460,697 |
| 2014 | $62,234 | $351,100 | $0 | $413,334 | $413,334 |
| 2013 | $63,280 | $418,668 | $0 | $481,948 | $481,948 |
| 2012 | $64,325 | $418,668 | $0 | $482,993 | $482,993 |
| 2011 | $65,371 | $418,668 | $0 | $484,039 | $484,039 |
| 2010 | $76,646 | $418,668 | $0 | $495,314 | $495,314 |
| 2009 | $78,658 | $418,668 | $0 | $497,326 | $497,326 |
| 2008 | $79,401 | $418,668 | $0 | $498,069 | $498,069 |
| 2007 | $80,820 | $417,898 | $0 | $498,718 | $498,718 |
Deed and Sales History
| 1 | 09/06/2017 | QCD | Quit Claim Deed | ZYLSTRA, JEFFREY O | YOUNG TRUSTEE, JOANNE S | | | $0.00 | 31075 | 4430209 |
| 2 | 09/20/2016 | WD | Warranty Deed | LOSCHER, WILLIAM ROBERT | ZYLSTRA, JEFFREY O | | | $388,000.00 | 26230 | 4407783 |
| 3 | 09/25/2014 | QCD | Quit Claim Deed | LOSCHER, WILLIAM ROBERT | LOSCHER, WILLIAM ROBERT | | | $0.00 | 16922 | 4365990 |
| 4 | 06/15/1998 | QCD | Quit Claim Deed | LOSCHER, WILLIAM R | LOSCHER ET AL, WILLIAM ROBERT | | | $0.00 | 82440 | 98012729 |
| 5 | 01/01/1900 | OTHER | Other - Misc. Documents | Unknown | LOSCHER, WILLIAM R | | | $0.00 | 0 | 0 |
Payout Agreement
| No payout information available.. |