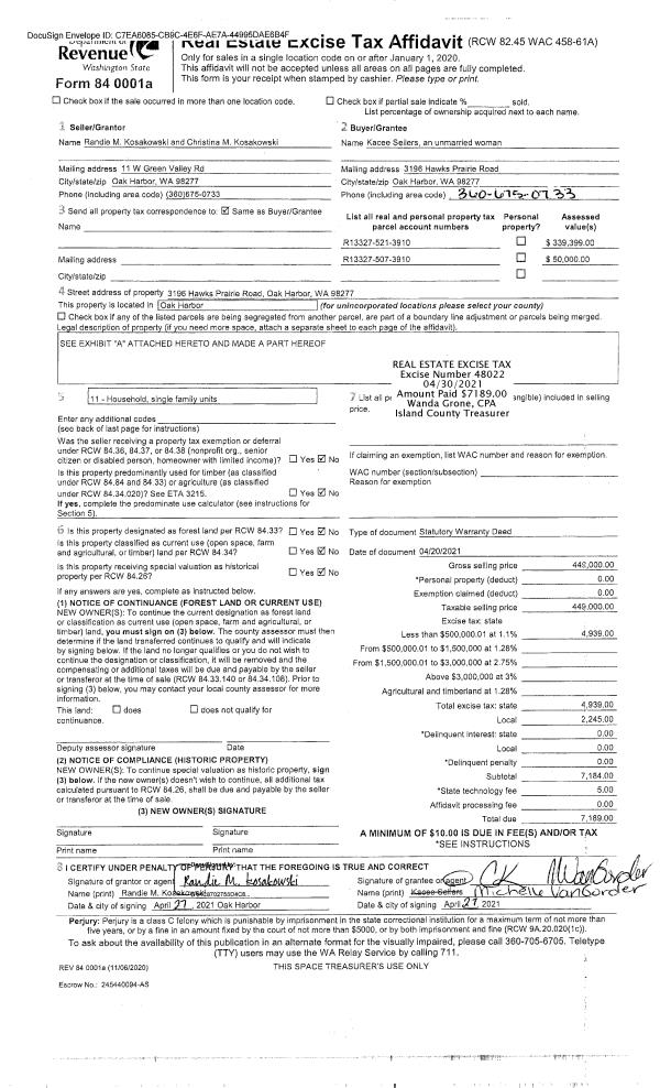
Property
Account |
| Property ID: | 491382 | Abbreviated Legal Description: | 29 - S50' OF N/2 GL1 TGW ADJ TIDES |
| Geographic ID: | R32813-452-0090 | Agent Code: | |
| Type: | Real | | |
| Tax Area: | 710 - APPRAISER-S Whid Schl Dist, outside Langley, improved & 1 acre or less | Land Use Code | 11 |
| Open Space: | N | DFL | N |
| Historic Property: | N | Remodel Property: | N |
| Multi-Family Redevelopment: | N | | |
| Township: | 28 | Section: | 13 |
| Range: | R3 |
Location |
| Address: | 8050 POSSESSION BEACH WALK CLINTON, WA 98236 | Mapsco: | |
| Neighborhood: | Cycle 4 | Map ID: | 707 |
| Neighborhood CD: | 4 |
Owner |
| Name: | THOMAS, STEVE | Owner ID: | 276926 |
| Mailing Address: | LAURI THOMAS 8050 POSSESSION BEACH WALK CLINTON, WA 98236 | % Ownership: | 100.0000000000% |
| | | Exemptions: | |
Taxes and Assessment Details
Values
| (+) Improvement Homesite Value: | + | $0 | |
| (+) Improvement Non-Homesite Value: | + | $256,530 | |
| (+) Land Homesite Value: | + | $0 | |
| (+) Land Non-Homesite Value: | + | $400,510 | |
| (+) Curr Use (HS): | + | $0 | $0 |
| (+) Curr Use (NHS): | + | $0 | $0 |
| | | -------------------------- | |
| (=) Market Value: | = | $657,040 | |
| (–) Productivity Loss: | – | $0 | |
| | | -------------------------- | |
| (=) Subtotal: | = | $657,040 | |
| (+) Senior Appraised Value: | + | $0 | |
| (+) Non-Senior Appraised Value: | + | $657,040 | |
| | | -------------------------- | |
| (=) Total Appraised Value: | = | $657,040 | |
| (–) Senior Exemption Loss: | – | $0 | |
| (–) Exemption Loss: | – | $0 | |
| | | -------------------------- | |
| (=) Taxable Value: | = | $657,040 | |
Taxing Jurisdiction
| Owner: | THOMAS, STEVE | | |
| % Ownership: | 100.0000000000% | | |
| Total Value: | $657,040 | | |
| Tax Area: | 710 - APPRAISER-S Whid Schl Dist, outside Langley, improved & 1 acre or less |
| CF | Conservation Futures | 0.0316035091 | $657,040 | $657,040 | $20.76 | | |
| FIRE3 | Fire & Rescue Dist #3 S Whidbey GEN | 1.2004855531 | $657,040 | $657,040 | $788.77 | | |
| HOBOND | Hospital BOND | 0.1910887512 | $657,040 | $657,040 | $125.55 | | |
| HOGEN | Hospital GEN | 0.3902502903 | $657,040 | $657,040 | $256.41 | | |
| CE | County Current Expense | 0.3708482477 | $657,040 | $657,040 | $243.66 | | |
| CR | County Roads | 0.4584763726 | $657,040 | $657,040 | $301.24 | | |
| ISLANDEMS | Hospital GEN (EMS) | 0.5000000000 | $657,040 | $657,040 | $328.52 | | |
| LIB | Library Sno-Isle GEN | 0.3153421757 | $657,040 | $657,040 | $207.19 | | |
| PORTWHID | Port of S Whidbey GEN | 0.1094540357 | $657,040 | $657,040 | $71.92 | | |
| SCH206BOND | School 206 BOND | 0.3161759235 | $657,040 | $657,040 | $207.74 | | |
| SCH206MO | School 206 Enrichment | 0.4547169547 | $657,040 | $657,040 | $298.77 | | |
| ST | State School | 1.3035497053 | $657,040 | $657,040 | $856.48 | | |
| ST2 | State School Part 2 | 0.8169543533 | $657,040 | $657,040 | $536.77 | | |
| SWHIDPRBD | P & R S Whidbey BOND | 0.0152817568 | $657,040 | $657,040 | $10.04 | | |
| SWHIDPRBD2 | P & R S Whidbey BOND2 | 0.0138911264 | $657,040 | $657,040 | $9.13 | | |
| SWHIDPRMT | P & R S Whidbey GEN | 0.2053334452 | $657,040 | $657,040 | $134.91 | | |
| | Total Tax Rate: | 6.6934522006 | | | | | |
| | | | | Taxes w/Current Exemptions: | $4,397.86 | | |
| | | | | Taxes w/o Exemptions: | $4,397.86 | | |
Improvement / Building
| Improvement #1: | RESIDENTIAL | State Code: | Y | 1176.0 sqft | Value: | $256,530 |
| Bathrooms: | 1 | Bedrooms: | 2 | | Ceiling: | PLASTER PAINTED | Exterior Wall/Cover: | WOOD SIDING | | Floor Covering: | CERAMIC TILE/CPT 40-60 | Floor Structure: | WOOD W/SUBFLOOR | | Foundation: | PIERS/CONCRETE | Heating: | WALL HEAT ELECTRIC | | Interior Finish: | DRYWALL PAINT | Plumbing Fixture Cnt: | 10 | | Roof Slope: | 6" IN 12" | Roof Structure/Cover: | CJ ASPHALT |
|
| | Type | Description | Class CD | Sub Class CD | Year Built | Area |
| | BAS | BASE/MAIN FLOOR | 4 | 0 | 1920 | 728.0 |
| | BGR | BASEMENT GARAGE | 4 | 0 | 1920 | 192.0 |
| | OWP | OPEN WOOD PORCH W/STEPS | 4 | 0 | 1920 | 80.0 |
| | OWR | OPEN WOOD PORCH W/STEPS/ROOF | 4 | 0 | 1920 | 168.0 |
| | UPH | HALF STORY | 4 | 0 | 1920 | 448.0 |
| | ENP | ENCLOSED PORCH | 4 | 0 | 1920 | 279.0 |
| | OWP | OPEN WOOD PORCH W/STEPS | 4 | 0 | 1920 | 96.0 |
| | UTY | STORAGE/UTILITY | 4 | 0 | 1920 | 50.0 |
Sketch
| No sketches available for this property. |
Property Image
Land
| 1 | LB | LOW BANK | 0.2500 | 10890.00 | 50.00 | 0.00 | 1.00 | $400,000 | $0 |
| 2 | 55 | TIDES | 0.0000 | 0.00 | 51.00 | 0.00 | 1.00 | $510 | $0 |
Roll Value History
| 2026 | N/A | N/A | N/A | N/A | N/A |
| 2025 | $256,530 | $400,510 | $0 | $657,040 | $657,040 |
| 2024 | $259,941 | $350,510 | $0 | $610,451 | $610,451 |
| 2023 | $263,350 | $300,510 | $0 | $563,860 | $563,860 |
| 2022 | $241,560 | $300,510 | $0 | $542,070 | $542,070 |
| 2021 | $212,736 | $275,510 | $0 | $488,246 | $488,246 |
| 2020 | $159,499 | $275,510 | $0 | $435,009 | $435,009 |
| 2019 | $120,659 | $300,510 | $0 | $421,169 | $421,169 |
| 2018 | $121,000 | $250,510 | $0 | $371,510 | $371,510 |
| 2017 | $121,682 | $230,510 | $0 | $352,192 | $352,192 |
| 2016 | $83,933 | $230,510 | $0 | $314,443 | $314,443 |
| 2015 | $85,167 | $230,510 | $0 | $315,677 | $107,869 |
| 2014 | $38,646 | $230,510 | $0 | $269,156 | $107,662 |
| 2013 | $39,611 | $215,342 | $0 | $254,953 | $101,981 |
| 2012 | $40,577 | $215,342 | $0 | $255,919 | $102,368 |
| 2011 | $41,543 | $215,342 | $0 | $256,885 | $102,754 |
| 2010 | $52,154 | $215,342 | $0 | $267,496 | $106,998 |
| 2009 | $54,041 | $216,162 | $0 | $270,203 | $107,868 |
| 2008 | $53,380 | $215,342 | $0 | $268,722 | $107,489 |
| 2007 | $53,934 | $215,737 | $0 | $269,671 | $107,868 |
Deed and Sales History
| 1 | 09/14/2016 | WD | Warranty Deed | FREES JR TRUSTEE, JAY FRANCIS | THOMAS, STEVE | | | $400,000.00 | 26287 | 4408033 |
| 2 | 03/21/2012 | TRUSTEED | Trustee's Deed | FREES, JAY F | FREES JR TRUSTEE, JAY FRANCIS | | | $0.00 | 7375 | 4313513 |
| 3 | 09/01/1986 | QCD | Quit Claim Deed | FREES, JAY F | FREES, JAY F | | | $0.00 | 62629 | 86011953 |
| 4 | 05/01/1983 | QCD | Quit Claim Deed | FREES, JAY F | FREES, JAY F | | | $0.00 | 31464 | 410354 |
| 5 | 02/01/1980 | CD | DNU - Correction Deed | Unknown | FREES, JAY F | | | $0.00 | 612 | 365480 |
Payout Agreement
| No payout information available.. |