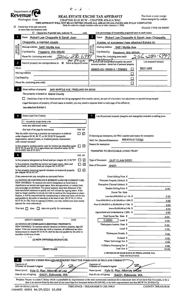
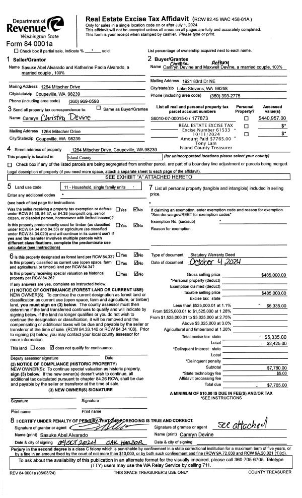
Property
Account |
| Property ID: | 491408 | Abbreviated Legal Description: | REPLACES 200-0090 10 - IN GL 1 INCL ADJ TIDELANDS |
| Geographic ID: | R32813-460-0090 | Agent Code: | |
| Type: | Real | | |
| Tax Area: | 710 - APPRAISER-S Whid Schl Dist, outside Langley, improved & 1 acre or less | Land Use Code | 11 |
| Open Space: | N | DFL | N |
| Historic Property: | N | Remodel Property: | N |
| Multi-Family Redevelopment: | N | | |
| Township: | 28 | Section: | 13 |
| Range: | R3 |
Location |
| Address: | | Mapsco: | |
| Neighborhood: | Cycle 4 | Map ID: | 707 |
| Neighborhood CD: | 4 |
Owner |
| Name: | THOMAS, TARA M | Owner ID: | 313676 |
| Mailing Address: | PO BOX 503 FREELAND, WA 98249 | % Ownership: | 100.0000000000% |
| | | Exemptions: | |
Taxes and Assessment Details
Values
| (+) Improvement Homesite Value: | + | $0 | |
| (+) Improvement Non-Homesite Value: | + | $5,040 | |
| (+) Land Homesite Value: | + | $0 | |
| (+) Land Non-Homesite Value: | + | $150,510 | |
| (+) Curr Use (HS): | + | $0 | $0 |
| (+) Curr Use (NHS): | + | $0 | $0 |
| | | -------------------------- | |
| (=) Market Value: | = | $155,550 | |
| (–) Productivity Loss: | – | $0 | |
| | | -------------------------- | |
| (=) Subtotal: | = | $155,550 | |
| (+) Senior Appraised Value: | + | $0 | |
| (+) Non-Senior Appraised Value: | + | $155,550 | |
| | | -------------------------- | |
| (=) Total Appraised Value: | = | $155,550 | |
| (–) Senior Exemption Loss: | – | $0 | |
| (–) Exemption Loss: | – | $0 | |
| | | -------------------------- | |
| (=) Taxable Value: | = | $155,550 | |
Taxing Jurisdiction
| Owner: | THOMAS, TARA M | | |
| % Ownership: | 100.0000000000% | | |
| Total Value: | $155,550 | | |
| Tax Area: | 710 - APPRAISER-S Whid Schl Dist, outside Langley, improved & 1 acre or less |
| CF | Conservation Futures | 0.0316035091 | $155,550 | $155,550 | $4.92 | | |
| FIRE3 | Fire & Rescue Dist #3 S Whidbey GEN | 1.2004855531 | $155,550 | $155,550 | $186.74 | | |
| HOBOND | Hospital BOND | 0.1910887512 | $155,550 | $155,550 | $29.72 | | |
| HOGEN | Hospital GEN | 0.3902502903 | $155,550 | $155,550 | $60.70 | | |
| CE | County Current Expense | 0.3708482477 | $155,550 | $155,550 | $57.69 | | |
| CR | County Roads | 0.4584763726 | $155,550 | $155,550 | $71.32 | | |
| ISLANDEMS | Hospital GEN (EMS) | 0.5000000000 | $155,550 | $155,550 | $77.78 | | |
| LIB | Library Sno-Isle GEN | 0.3153421757 | $155,550 | $155,550 | $49.05 | | |
| PORTWHID | Port of S Whidbey GEN | 0.1094540357 | $155,550 | $155,550 | $17.03 | | |
| SCH206BOND | School 206 BOND | 0.3161759235 | $155,550 | $155,550 | $49.18 | | |
| SCH206MO | School 206 Enrichment | 0.4547169547 | $155,550 | $155,550 | $70.73 | | |
| ST | State School | 1.3035497053 | $155,550 | $155,550 | $202.77 | | |
| ST2 | State School Part 2 | 0.8169543533 | $155,550 | $155,550 | $127.08 | | |
| SWHIDPRBD | P & R S Whidbey BOND | 0.0152817568 | $155,550 | $155,550 | $2.38 | | |
| SWHIDPRBD2 | P & R S Whidbey BOND2 | 0.0138911264 | $155,550 | $155,550 | $2.16 | | |
| SWHIDPRMT | P & R S Whidbey GEN | 0.2053334452 | $155,550 | $155,550 | $31.94 | | |
| | Total Tax Rate: | 6.6934522006 | | | | | |
| | | | | Taxes w/Current Exemptions: | $1,041.19 | | |
| | | | | Taxes w/o Exemptions: | $1,041.19 | | |
Improvement / Building
| Improvement #1: | RESIDENTIAL | State Code: | Y | 0.0 sqft | Value: | $5,040 |
| | Type | Description | Class CD | Sub Class CD | Year Built | Area |
| | OWP | OPEN WOOD PORCH W/STEPS | 3 | 0 | 2014 | 336.0 |
| | CPD | OPEN CARPORT DIRT FLOOR | 3 | 0 | 2014 | 168.0 |
Sketch
Property Image
Land
| 1 | LB | LOW BANK | 0.2500 | 10890.00 | 50.00 | 0.00 | 1.00 | $150,000 | $0 |
| 2 | 55 | TIDES | 0.0000 | 0.00 | 51.00 | 0.00 | 1.00 | $510 | $0 |
Roll Value History
| 2026 | N/A | N/A | N/A | N/A | N/A |
| 2025 | $5,040 | $150,510 | $0 | $155,550 | $155,550 |
| 2024 | $5,040 | $150,510 | $0 | $155,550 | $155,550 |
| 2023 | $5,040 | $150,510 | $0 | $155,550 | $155,550 |
| 2022 | $5,040 | $150,510 | $0 | $155,550 | $155,550 |
| 2021 | $5,040 | $150,510 | $0 | $155,550 | $155,550 |
| 2020 | $0 | $150,510 | $0 | $150,510 | $150,510 |
| 2019 | $0 | $150,510 | $0 | $150,510 | $150,510 |
| 2018 | $0 | $150,510 | $0 | $150,510 | $150,510 |
| 2017 | $0 | $125,510 | $0 | $125,510 | $125,510 |
| 2016 | $0 | $230,510 | $0 | $230,510 | $230,510 |
| 2015 | $0 | $230,510 | $0 | $230,510 | $230,510 |
| 2014 | $0 | $230,510 | $0 | $230,510 | $230,510 |
| 2013 | $0 | $103,948 | $0 | $103,948 | $103,948 |
| 2012 | $0 | $103,948 | $0 | $103,948 | $103,948 |
| 2011 | $0 | $103,948 | $0 | $103,948 | $103,948 |
| 2010 | $0 | $103,948 | $0 | $103,948 | $103,948 |
| 2009 | $0 | $103,948 | $0 | $103,948 | $103,948 |
| 2008 | $0 | $106,600 | $0 | $106,600 | $106,600 |
| 2007 | $0 | $106,243 | $0 | $106,243 | $106,243 |
Deed and Sales History
| 1 | 08/23/2024 | WD | Warranty Deed | THOMAS, EUGENE C | THOMAS, TARA M | | | $0.00 | 62711 | 4582840 |
| 2 | 08/23/2024 | WD | Warranty Deed | THOMAS, EUGENE C | THOMAS, TARA M | | | $612,000.00 | 61080 | 4576321 |
|   | |
| 3 | 09/13/2010 | QCD | Quit Claim Deed | THOMAS, RICHARD W | THOMAS, EUGENE C | | | $0.00 | 2270 | 4280796 |
| 4 | 09/13/2010 | QCD | Quit Claim Deed | THOMAS, DANIEL J | THOMAS, EUGENE C | | | $0.00 | 2269 | 4280797 |
| 5 | 05/30/2006 | QCD | Quit Claim Deed | THOMAS, EUGENE C | THOMAS, EUGENE C | | | $0.00 | 62526 | 4172735 |
| 6 | 12/04/1998 | QCD | Quit Claim Deed | THOMAS, EUGENE C | THOMAS, EUGENE C | | | $0.00 | 91518 | 99009952 |
| 7 | 12/04/1998 | QCD | Quit Claim Deed | Unknown | THOMAS, EUGENE C | | | $0.00 | 84899 | 98027076 |
Payout Agreement
| No payout information available.. |