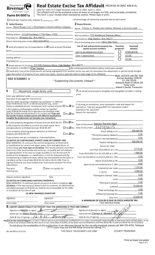
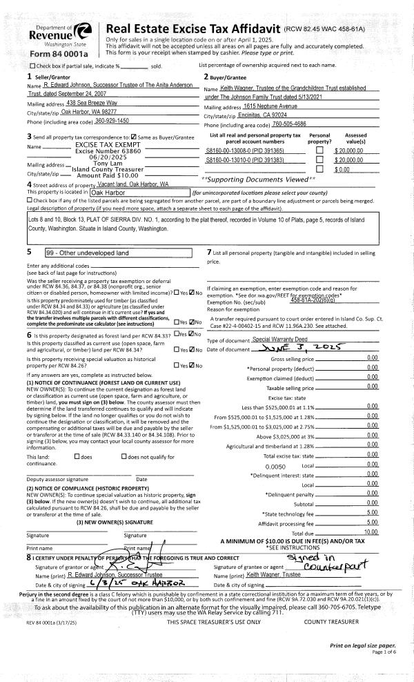
Property
Account |
| Property ID: | 491514 | Abbreviated Legal Description: | 112 - PT GL2 LY W OF WLN STEWART RD & S OF FOLL DESC LN: BG 4/CR BETW SECS 10 & 11 S325' TPB SD LN N89*E318 M/L TO WLN SD RD TGW: BG 4/CR BETW SECS 10 & 11 S325 N89*E10' N TO NLN GL2 W ALG SD NLN 10' M/L TO WLN SEC 11 S ALG SEC LN TPB INCL ADJ TIDES |
| Geographic ID: | R22911-186-0170 | Agent Code: | |
| Type: | Real | | |
| Tax Area: | 769 - APPRAISER-S Whid Schl Dist, Special District, vacant & 50 acres or less | Land Use Code | 91 |
| Open Space: | N | DFL | N |
| Historic Property: | N | Remodel Property: | N |
| Multi-Family Redevelopment: | N | | |
| Township: | 29 | Section: | 11 |
| Range: | R2 |
Location |
| Address: | | Mapsco: | |
| Neighborhood: | 34cFR-main st 1 | Map ID: | 313 |
| Neighborhood CD: | 34cFRmain1 |
Owner |
| Name: | JOPO LLC | Owner ID: | 313957 |
| Mailing Address: | 4842 NE 42ND ST SEATTLE, WA 98105 | % Ownership: | 100.0000000000% |
| | | Exemptions: | |
Taxes and Assessment Details
Values
| (+) Improvement Homesite Value: | + | $0 | |
| (+) Improvement Non-Homesite Value: | + | $0 | |
| (+) Land Homesite Value: | + | $0 | |
| (+) Land Non-Homesite Value: | + | $281,738 | |
| (+) Curr Use (HS): | + | $0 | $0 |
| (+) Curr Use (NHS): | + | $0 | $0 |
| | | -------------------------- | |
| (=) Market Value: | = | $281,738 | |
| (–) Productivity Loss: | – | $0 | |
| | | -------------------------- | |
| (=) Subtotal: | = | $281,738 | |
| (+) Senior Appraised Value: | + | $0 | |
| (+) Non-Senior Appraised Value: | + | $281,738 | |
| | | -------------------------- | |
| (=) Total Appraised Value: | = | $281,738 | |
| (–) Senior Exemption Loss: | – | $0 | |
| (–) Exemption Loss: | – | $0 | |
| | | -------------------------- | |
| (=) Taxable Value: | = | $281,738 | |
Taxing Jurisdiction
| Owner: | JOPO LLC | | |
| % Ownership: | 100.0000000000% | | |
| Total Value: | $281,738 | | |
| Tax Area: | 769 - APPRAISER-S Whid Schl Dist, Special District, vacant & 50 acres or less |
| CF | Conservation Futures | 0.0316035091 | $281,738 | $281,738 | $8.90 | | |
| HOBOND | Hospital BOND | 0.1910887512 | $281,738 | $281,738 | $53.84 | | |
| HOGEN | Hospital GEN | 0.3902502903 | $281,738 | $281,738 | $109.95 | | |
| CE | County Current Expense | 0.3708482477 | $281,738 | $281,738 | $104.48 | | |
| CR | County Roads | 0.4584763726 | $281,738 | $281,738 | $129.17 | | |
| ISLANDEMS | Hospital GEN (EMS) | 0.5000000000 | $281,738 | $281,738 | $140.87 | | |
| LIB | Library Sno-Isle GEN | 0.3153421757 | $281,738 | $281,738 | $88.84 | | |
| PORTWHID | Port of S Whidbey GEN | 0.1094540357 | $281,738 | $281,738 | $30.84 | | |
| SCH206BOND | School 206 BOND | 0.3161759235 | $281,738 | $281,738 | $89.08 | | |
| SCH206MO | School 206 Enrichment | 0.4547169547 | $281,738 | $281,738 | $128.11 | | |
| ST | State School | 1.3035497053 | $281,738 | $281,738 | $367.26 | | |
| ST2 | State School Part 2 | 0.8169543533 | $281,738 | $281,738 | $230.17 | | |
| SWHIDPRBD | P & R S Whidbey BOND | 0.0152817568 | $281,738 | $281,738 | $4.31 | | |
| SWHIDPRBD2 | P & R S Whidbey BOND2 | 0.0138911264 | $281,738 | $281,738 | $3.91 | | |
| SWHIDPRMT | P & R S Whidbey GEN | 0.2053334452 | $281,738 | $281,738 | $57.85 | | |
| | Total Tax Rate: | 5.4929666475 | | | | | |
| | | | | Taxes w/Current Exemptions: | $1,547.58 | | |
| | | | | Taxes w/o Exemptions: | $1,547.58 | | |
Improvement / Building
Sketch
| No sketches available for this property. |
Property Image
Land
| 1 | 32 | AC (03.01-09.99) | 8.7300 | 380278.80 | 0.00 | 0.00 | 1.00 | $280,000 | $0 |
| 2 | LB | LOW BANK | 0.0600 | 2613.60 | 10.00 | 0.00 | 1.00 | $1,638 | $0 |
| 3 | 55 | TIDES | 0.0000 | 0.00 | 10.00 | 0.00 | 1.00 | $100 | $0 |
Roll Value History
| 2026 | N/A | N/A | N/A | N/A | N/A |
| 2025 | $0 | $281,738 | $0 | $281,738 | $281,738 |
| 2024 | $0 | $281,738 | $0 | $281,738 | $281,738 |
| 2023 | $0 | $240,100 | $0 | $240,100 | $240,100 |
| 2022 | $0 | $376,133 | $0 | $376,133 | $376,133 |
| 2021 | $0 | $376,133 | $0 | $376,133 | $376,133 |
| 2020 | $0 | $376,133 | $0 | $376,133 | $376,133 |
| 2019 | $0 | $376,133 | $0 | $376,133 | $376,133 |
| 2018 | $0 | $218,411 | $0 | $218,411 | $218,411 |
| 2017 | $0 | $206,888 | $0 | $206,888 | $206,888 |
| 2016 | $0 | $206,888 | $0 | $206,888 | $206,888 |
| 2015 | $0 | $206,888 | $0 | $206,888 | $206,888 |
| 2014 | $0 | $206,888 | $0 | $206,888 | $206,888 |
| 2013 | $0 | $206,888 | $0 | $206,888 | $206,888 |
| 2012 | $0 | $206,888 | $0 | $206,888 | $206,888 |
| 2011 | $0 | $206,888 | $0 | $206,888 | $206,888 |
| 2010 | $0 | $206,888 | $0 | $206,888 | $206,888 |
| 2009 | $0 | $206,888 | $0 | $206,888 | $206,888 |
| 2008 | $0 | $206,888 | $0 | $206,888 | $206,888 |
| 2007 | $0 | $206,818 | $0 | $206,818 | $206,818 |
Deed and Sales History
| 1 | 09/17/2024 | WD | Warranty Deed | POJOLO LLC | JOPO LLC | | | $0.00 | 61341 | 4577360 |
| 2 | 01/11/2022 | WD | Warranty Deed | HALSTEAD, BONNY A | POJOLO LLC | | | $550,000.00 | 51663 | 4537938 |
| 3 | 11/23/2017 | QCD | Quit Claim Deed | CAPES, ROLAND K / DOROTHY M | HALSTEAD, BONNY A | | | $0.00 | 32146 | 4435150 |
| 4 | 03/01/1993 | QCD | Quit Claim Deed | CAPES, ROLAND K | CAPES, ROLAND K | | | $0.00 | 30983 | 93005206 |
| 5 | 01/01/1900 | OTHER | Other - Misc. Documents | Unknown | CAPES, ROLAND K | | | $0.00 | 0 | 0 |
Payout Agreement
| No payout information available.. |