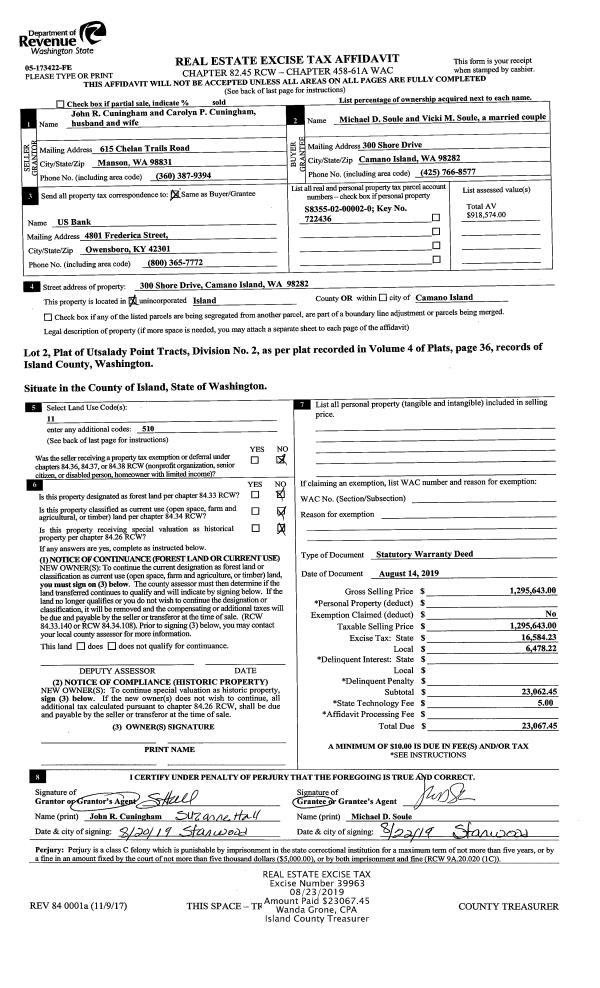
Property
Account |
| Property ID: | 49156 | Abbreviated Legal Description: | 62 - IN GL 1 INCL ADJ TIDELANDS |
| Geographic ID: | R22909-062-1130 | Agent Code: | |
| Type: | Real | | |
| Tax Area: | 710 - APPRAISER-S Whid Schl Dist, outside Langley, improved & 1 acre or less | Land Use Code | 11 |
| Open Space: | N | DFL | N |
| Historic Property: | N | Remodel Property: | N |
| Multi-Family Redevelopment: | N | | |
| Township: | 29 | Section: | 09 |
| Range: | R2 |
Location |
| Address: | 888 OLD BEACH RD FREELAND, WA 98249 | Mapsco: | |
| Neighborhood: | Cycle 3 | Map ID: | 305 |
| Neighborhood CD: | 3 |
Owner |
| Name: | GOODRUM, D R JR / M R | Owner ID: | 182181 |
| Mailing Address: | MICHELLE ROOS GOODRUM TR 8348 E ECHO CANYON CIRCLE MESA, AZ 85207-7190 | % Ownership: | 100.0000000000% |
| | | Exemptions: | |
Taxes and Assessment Details
Values
| (+) Improvement Homesite Value: | + | $0 | |
| (+) Improvement Non-Homesite Value: | + | $754,609 | |
| (+) Land Homesite Value: | + | $0 | |
| (+) Land Non-Homesite Value: | + | $1,005,600 | |
| (+) Curr Use (HS): | + | $0 | $0 |
| (+) Curr Use (NHS): | + | $0 | $0 |
| | | -------------------------- | |
| (=) Market Value: | = | $1,760,209 | |
| (–) Productivity Loss: | – | $0 | |
| | | -------------------------- | |
| (=) Subtotal: | = | $1,760,209 | |
| (+) Senior Appraised Value: | + | $0 | |
| (+) Non-Senior Appraised Value: | + | $1,760,209 | |
| | | -------------------------- | |
| (=) Total Appraised Value: | = | $1,760,209 | |
| (–) Senior Exemption Loss: | – | $0 | |
| (–) Exemption Loss: | – | $0 | |
| | | -------------------------- | |
| (=) Taxable Value: | = | $1,760,209 | |
Taxing Jurisdiction
| Owner: | GOODRUM, D R JR / M R | | |
| % Ownership: | 100.0000000000% | | |
| Total Value: | $1,760,209 | | |
| Tax Area: | 710 - APPRAISER-S Whid Schl Dist, outside Langley, improved & 1 acre or less |
| CF | Conservation Futures | 0.0316035091 | $1,760,209 | $1,760,209 | $55.63 | | |
| FIRE3 | Fire & Rescue Dist #3 S Whidbey GEN | 1.2004855531 | $1,760,209 | $1,760,209 | $2,113.11 | | |
| HOBOND | Hospital BOND | 0.1910887512 | $1,760,209 | $1,760,209 | $336.36 | | |
| HOGEN | Hospital GEN | 0.3902502903 | $1,760,209 | $1,760,209 | $686.92 | | |
| CE | County Current Expense | 0.3708482477 | $1,760,209 | $1,760,209 | $652.77 | | |
| CR | County Roads | 0.4584763726 | $1,760,209 | $1,760,209 | $807.01 | | |
| ISLANDEMS | Hospital GEN (EMS) | 0.5000000000 | $1,760,209 | $1,760,209 | $880.10 | | |
| LIB | Library Sno-Isle GEN | 0.3153421757 | $1,760,209 | $1,760,209 | $555.07 | | |
| PORTWHID | Port of S Whidbey GEN | 0.1094540357 | $1,760,209 | $1,760,209 | $192.66 | | |
| SCH206BOND | School 206 BOND | 0.3161759235 | $1,760,209 | $1,760,209 | $556.54 | | |
| SCH206MO | School 206 Enrichment | 0.4547169547 | $1,760,209 | $1,760,209 | $800.40 | | |
| ST | State School | 1.3035497053 | $1,760,209 | $1,760,209 | $2,294.52 | | |
| ST2 | State School Part 2 | 0.8169543533 | $1,760,209 | $1,760,209 | $1,438.01 | | |
| SWHIDPRBD | P & R S Whidbey BOND | 0.0152817568 | $1,760,209 | $1,760,209 | $26.90 | | |
| SWHIDPRBD2 | P & R S Whidbey BOND2 | 0.0138911264 | $1,760,209 | $1,760,209 | $24.45 | | |
| SWHIDPRMT | P & R S Whidbey GEN | 0.2053334452 | $1,760,209 | $1,760,209 | $361.43 | | |
| | Total Tax Rate: | 6.6934522006 | | | | | |
| | | | | Taxes w/Current Exemptions: | $11,781.88 | | |
| | | | | Taxes w/o Exemptions: | $11,781.88 | | |
Improvement / Building
| Improvement #1: | RESIDENTIAL | State Code: | Y | 3444.0 sqft | Value: | $754,609 |
| Bathrooms: | 3.5 | Bedrooms: | 3 | | Ceiling: | DRYWALL PAINTED | Cooling: | HEAT PUMP/CONV/V | | Exterior Wall/Cover: | CEMENT FIBER | Floor Covering: | HARDWOOD/CARP 60-40 | | Floor Structure: | WOOD W/SUBFLOOR | Foundation: | CONCRETE | | Interior Finish: | DRYWALL PAINT | Plumbing Fixture Cnt: | 20 | | Roof Slope: | 6" IN 12" | Roof Structure/Cover: | CJ ASPHALT |
|
| | Type | Description | Class CD | Sub Class CD | Year Built | Area |
| | BAS | BASE/MAIN FLOOR | 4 | 0 | 2018 | 2282.0 |
| | UPS | UPPER STORY | 4 | 0 | 2018 | 980.0 |
| | AGR | ATTACHED GARAGE | 4 | 0 | 2018 | 1464.0 |
| | OP4 | OPEN PORCH W/CEILING-ROOF | 4 | 0 | 2018 | 72.0 |
| | OWC | OPEN WOOD PORCH W/STEPS/ROOF/C | 4 | 0 | 2018 | 44.0 |
| | OCP | OPEN CARPORT | 4 | 0 | 2018 | 240.0 |
| | UPS | UPPER STORY | 4 | 0 | 2018 | 182.0 |
| | OWP | OPEN WOOD PORCH W/STEPS | 4 | 0 | 2018 | 144.0 |
| | OWP | OPEN WOOD PORCH W/STEPS | 4 | 0 | 2018 | 128.0 |
| | OWC | OPEN WOOD PORCH W/STEPS/ROOF/C | 4 | 0 | 2018 | 399.9 |
| | UTY | STORAGE/UTILITY | 4 | 0 | 2018 | 21.0 |
Sketch
Property Image
Land
| 1 | LB | LOW BANK | 0.5500 | 23958.00 | 60.00 | 0.00 | 1.00 | $1,005,000 | $0 |
| 2 | 55 | TIDES | 0.0000 | 0.00 | 60.00 | 0.00 | 1.00 | $600 | $0 |
Roll Value History
| 2026 | N/A | N/A | N/A | N/A | N/A |
| 2025 | $754,609 | $1,005,600 | $0 | $1,760,209 | $1,760,209 |
| 2024 | $760,744 | $1,005,600 | $0 | $1,766,344 | $1,766,344 |
| 2023 | $766,880 | $1,005,600 | $0 | $1,772,480 | $1,772,480 |
| 2022 | $699,994 | $960,600 | $0 | $1,660,594 | $1,660,594 |
| 2021 | $613,511 | $800,600 | $0 | $1,414,111 | $1,414,111 |
| 2020 | $596,917 | $800,600 | $0 | $1,397,517 | $1,397,517 |
| 2019 | $483,655 | $800,600 | $0 | $1,284,255 | $1,284,255 |
| 2018 | $148,562 | $725,600 | $0 | $874,162 | $874,162 |
| 2017 | $143,650 | $600,600 | $0 | $744,250 | $744,250 |
| 2016 | $145,162 | $600,600 | $0 | $745,762 | $745,762 |
| 2015 | $146,673 | $600,600 | $0 | $747,273 | $747,273 |
| 2014 | $148,184 | $550,600 | $0 | $698,784 | $698,784 |
| 2013 | $96,861 | $518,422 | $0 | $615,283 | $615,283 |
| 2012 | $67,142 | $518,422 | $0 | $585,564 | $585,564 |
| 2011 | $68,323 | $518,422 | $0 | $586,745 | $586,745 |
| 2010 | $76,721 | $518,422 | $0 | $595,143 | $595,143 |
| 2009 | $80,162 | $617,055 | $0 | $697,217 | $697,217 |
| 2008 | $81,405 | $617,055 | $0 | $698,460 | $698,460 |
| 2007 | $79,671 | $616,635 | $0 | $696,306 | $696,306 |
Deed and Sales History
| 1 | 10/15/1999 | QCD | Quit Claim Deed | GOODRUM, DONALD R | GROODRUM JR, DONALD ROYALTY | | | $0.00 | 94578 | 99025229 |
| 2 | 09/20/1999 | QCD | Quit Claim Deed | ROOS, COLLEEN M | GOODRUM, DONALD R | | | $0.00 | 94319 | 99023615 |
| 3 | 09/20/1999 | TRUSTEED | Trustee's Deed | GOODRUM, DONALD R | ROOS, COLLEEN M | | | $0.00 | 94014 | 99022261 |
| 4 | 06/18/1999 | QCD | Quit Claim Deed | ROOS, COLLEEN M | GOODRUM, DONALD R | | | $0.00 | 93104 | 99018016 |
| 5 | 04/19/1999 | QCD | Quit Claim Deed | ROOS, J RICHARD | ROOS, COLLEEN M | | | $0.00 | 92336 | 99014359 |
| 6 | 01/04/1999 | QCD | Quit Claim Deed | ROOS, J RICHARD | ROOS, J RICHARD | | | $0.00 | 90073 | 99000487 |
| 7 | 12/28/1998 | QCD | Quit Claim Deed | Unknown | ROOS, J RICHARD | | | $0.00 | 85159 | 98028224 |
Payout Agreement
| No payout information available.. |