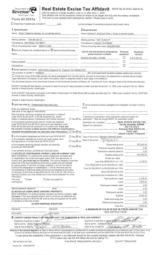
Property
Account |
| Property ID: | 491569 | Abbreviated Legal Description: | 7 HOLBROOK DLC: BG NWCR LOT 25 BLK F SAN DE FUCA N85*W144' S TO SLN DC N61*E TP S OF TPB N TPB EX RD INCL ADJ TIDES ALSO: BG NWCR LOT 25 BLK F SAN DE FUCA S TO SLN DC NELY TO SWCR LOT 25 NWLY ALG WLN LOT 25 TPB |
| Geographic ID: | R13230-320-4740 | Agent Code: | |
| Type: | Real | | |
| Tax Area: | 330 - APPRAISER-Cpvl Schl Dist, Special Dist, improved & less than 1 acre | Land Use Code | 11 |
| Open Space: | N | DFL | N |
| Historic Property: | N | Remodel Property: | N |
| Multi-Family Redevelopment: | N | | |
| Township: | 32 | Section: | 30 |
| Range: | R1 |
Location |
| Address: | 25990 SR20 COUPEVILLE, WA 98239 | Mapsco: | |
| Neighborhood: | Area 2 Waterfront Eastside Res | Map ID: | 165 |
| Neighborhood CD: | 2WFTE01R |
Owner |
| Name: | SAGGESE, JOHN P | Owner ID: | 296626 |
| Mailing Address: | DEBORAH W JACKSON PO BOX 433 COUPEVILLE, WA 98239 | % Ownership: | 100.0000000000% |
| | | Exemptions: | |
Taxes and Assessment Details
Values
| (+) Improvement Homesite Value: | + | $0 | |
| (+) Improvement Non-Homesite Value: | + | $356,953 | |
| (+) Land Homesite Value: | + | $0 | |
| (+) Land Non-Homesite Value: | + | $802,400 | |
| (+) Curr Use (HS): | + | $0 | $0 |
| (+) Curr Use (NHS): | + | $0 | $0 |
| | | -------------------------- | |
| (=) Market Value: | = | $1,159,353 | |
| (–) Productivity Loss: | – | $0 | |
| | | -------------------------- | |
| (=) Subtotal: | = | $1,159,353 | |
| (+) Senior Appraised Value: | + | $0 | |
| (+) Non-Senior Appraised Value: | + | $1,159,353 | |
| | | -------------------------- | |
| (=) Total Appraised Value: | = | $1,159,353 | |
| (–) Senior Exemption Loss: | – | $0 | |
| (–) Exemption Loss: | – | $0 | |
| | | -------------------------- | |
| (=) Taxable Value: | = | $1,159,353 | |
Taxing Jurisdiction
| Owner: | SAGGESE, JOHN P | | |
| % Ownership: | 100.0000000000% | | |
| Total Value: | $1,159,353 | | |
| Tax Area: | 330 - APPRAISER-Cpvl Schl Dist, Special Dist, improved & less than 1 acre |
| CF | Conservation Futures | 0.0316035091 | $1,159,353 | $1,159,353 | $36.64 | | |
| CEM2 | Cemetery #2 | 0.0095056933 | $1,159,353 | $1,159,353 | $11.02 | | |
| FIRE2 | Fire & Rescue Dist #2 N Whidbey GEN | 0.5475949600 | $1,159,353 | $1,159,353 | $634.86 | | |
| HOBOND | Hospital BOND | 0.1910887512 | $1,159,353 | $1,159,353 | $221.54 | | |
| HOGEN | Hospital GEN | 0.3902502903 | $1,159,353 | $1,159,353 | $452.44 | | |
| CE | County Current Expense | 0.3708482477 | $1,159,353 | $1,159,353 | $429.94 | | |
| CR | County Roads | 0.4584763726 | $1,159,353 | $1,159,353 | $531.54 | | |
| ISLANDEMS | Hospital GEN (EMS) | 0.5000000000 | $1,159,353 | $1,159,353 | $579.68 | | |
| LIB | Library Sno-Isle GEN | 0.3153421757 | $1,159,353 | $1,159,353 | $365.59 | | |
| LIBCAP | Library Sno-Isle BOND (Cap Fac Imp Area) | 0.0543427938 | $1,159,353 | $1,159,353 | $63.00 | | |
| POCOUP | Port of Coupeville GEN | 0.1093371703 | $1,159,353 | $1,159,353 | $126.76 | | |
| POCOUPIDD | Port of Coupeville IDD | 0.3409740022 | $1,159,353 | $1,159,353 | $395.31 | | |
| COUPSDTECH | School 204 CP (TECH) | 0.7545480007 | $1,159,353 | $1,159,353 | $874.79 | | |
| SCH204MO | School 204 Enrichment | 0.6716186034 | $1,159,353 | $1,159,353 | $778.64 | | |
| ST | State School | 1.3035497053 | $1,159,353 | $1,159,353 | $1,511.27 | | |
| ST2 | State School Part 2 | 0.8169543533 | $1,159,353 | $1,159,353 | $947.14 | | |
| | Total Tax Rate: | 6.8660346289 | | | | | |
| | | | | Taxes w/Current Exemptions: | $7,960.16 | | |
| | | | | Taxes w/o Exemptions: | $7,960.16 | | |
Improvement / Building
| Improvement #1: | RESIDENTIAL | State Code: | Y | 2857.4 sqft | Value: | $356,953 |
| Bathrooms: | 3 | Bedrooms: | 3 | | Ceiling: | PLYWOOD PAINTED | Cooling: | HEAT PUMP/CONV/V | | Exterior Wall/Cover: | SHINGLE | Floor Covering: | VINYL TILE/CARP 20-80 | | Floor Structure: | WOOD W/SUBFLOOR | Foundation: | CONCRETE | | Interior Finish: | DRYWALL PAINT | Plumbing Fixture Cnt: | 12 | | Roof Slope: | 8" IN 12" | Roof Structure/Cover: | CJ ASPHALT |
|
| | Type | Description | Class CD | Sub Class CD | Year Built | Area |
| | BAS | BASE/MAIN FLOOR | 3 | 0 | 1950 | 1005.1 |
| | BAS | BASE/MAIN FLOOR | 3 | 0 | 1950 | 340.1 |
| | OCP | OPEN CARPORT | 3 | 0 | 1950 | 600.8 |
| | OWP | OPEN WOOD PORCH W/STEPS | 3 | 0 | 1950 | 154.0 |
| | OWR | OPEN WOOD PORCH W/STEPS/ROOF | 3 | 0 | 1950 | 63.0 |
| | ENP | ENCLOSED PORCH | 3 | 0 | 1950 | 198.7 |
| | LOF | LOFT | 3 | 0 | 1950 | 120.0 |
| | DWN | DOWNSTAIRS LIVING AREA | 3 | 0 | 1950 | 1082.2 |
| | UPH | HALF STORY | 3 | 0 | 1950 | 310.0 |
Sketch
Property Image
Land
| 1 | LB | LOW BANK | 0.2181 | 9500.00 | 190.00 | 0.00 | 1.00 | $800,500 | $0 |
| 2 | 55 | TIDES | 0.2181 | 9500.00 | 190.00 | 0.00 | 1.00 | $1,900 | $0 |
Roll Value History
| 2026 | N/A | N/A | N/A | N/A | N/A |
| 2025 | $356,953 | $802,400 | $0 | $1,159,353 | $1,159,353 |
| 2024 | $347,830 | $802,300 | $0 | $1,150,130 | $1,150,130 |
| 2023 | $352,391 | $726,300 | $0 | $1,078,691 | $1,078,691 |
| 2022 | $323,237 | $691,800 | $0 | $1,015,037 | $1,015,037 |
| 2021 | $284,665 | $601,800 | $0 | $886,465 | $886,465 |
| 2020 | $250,404 | $551,800 | $0 | $802,204 | $802,204 |
| 2019 | $195,020 | $601,800 | $0 | $796,820 | $796,820 |
| 2018 | $197,844 | $501,800 | $0 | $699,644 | $699,644 |
| 2017 | $199,153 | $501,800 | $0 | $700,953 | $700,953 |
| 2016 | $201,774 | $501,800 | $0 | $703,574 | $703,574 |
| 2015 | $137,429 | $501,800 | $0 | $639,229 | $639,229 |
| 2014 | $139,798 | $501,800 | $0 | $641,598 | $641,598 |
| 2013 | $142,168 | $490,426 | $0 | $632,594 | $632,594 |
| 2012 | $141,352 | $490,426 | $0 | $631,778 | $631,778 |
| 2011 | $143,732 | $490,426 | $0 | $634,158 | $634,158 |
| 2010 | $160,283 | $490,426 | $0 | $650,709 | $650,709 |
| 2009 | $167,527 | $615,575 | $0 | $783,102 | $783,102 |
| 2008 | $168,056 | $615,575 | $0 | $783,631 | $783,631 |
| 2007 | $124,026 | $651,139 | $0 | $775,165 | $775,165 |
Deed and Sales History
| 1 | 10/22/2020 | WD | Warranty Deed | MALINS 74.34%INT TRUSTEE, GREGORY S | SAGGESE, JOHN P | | | $900,000.00 | 45597 | 4501709 |
|   | |
| 2 | 03/23/2012 | QCD | Quit Claim Deed | MALINS TRUSTEE, DONALD C | MALINS 74.34% INT TRUSTEE, GREGORY S | | | $0.00 | 7270 | 4312799 |
| 3 | 08/03/2006 | 5 | DNU - Marriage License/Name Change | MALINS ET AL, DONALD C | MALINS TRUSTEE, DONALD C | | | $0.00 | 63526 | 4179099 |
| 4 | 02/11/2002 | WD | Warranty Deed | MALINS ET AL, DONALD C | MALINS ET AL, DONALD C | | | $0.00 | 20874 | 4013482 |
| 5 | 02/11/2002 | QCD | Quit Claim Deed | MALINS ET AL, DONALD C | MALINS ET AL, DONALD C | | | $0.00 | 20873 | 4013481 |
| 6 | 09/27/1999 | ESTSEPPROP | Establish Separate Property | MALINS, DONALD C | MALINS ET AL, DONALD C | | | $0.00 | 94054 | 99022424 |
| 7 | 09/23/1999 | WD | Warranty Deed | HOFSTRAND, LORENE E | MALINS, DONALD C | | | $433,457.00 | 94052 | 99022422 |
| 8 | 08/01/1985 | WD | Warranty Deed | HOFSTRAND, JOHN | HOFSTRAND, LORENE E | | | $0.00 | 61407 | 86006561 |
| 9 | 08/01/1985 | WD | Warranty Deed | HOFSTRAND, LORENE E | HOFSTRAND, LORENE E | | | $0.00 | 61408 | 86006562 |
| 10 | 08/01/1985 | WD | Warranty Deed | HOFSTRAND, LORENE E | HOFSTRAND, LORENE E | | | $0.00 | 61409 | 86006563 |
| 11 | 10/01/1984 | QCD | Quit Claim Deed | HOFSTRAND, JOHN | HOFSTRAND, JOHN | | | $0.00 | 43257 | 84005353 |
| 12 | 05/01/1984 | WD | Warranty Deed | HOFSTRAND, JOHN M | HOFSTRAND, JOHN | | | $15,000.00 | 41244 | 0 |
| 13 | 05/01/1974 | OTHER | Other - Misc. Documents | Unknown | HOFSTRAND, JOHN M | | | $48,500.00 | 52259 | 0 |
| 14 | 01/01/1900 | OTHER | Other - Misc. Documents | HOFSTRAND, LORENE E | HOFSTRAND, LORENE E | | | $0.00 | 0 | 0 |
Payout Agreement
| No payout information available.. |