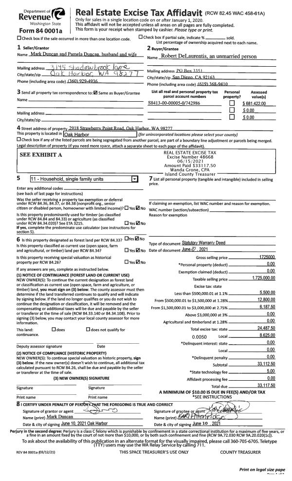
Property
Account |
| Property ID: | 491667 | Abbreviated Legal Description: | REPLACES 2530410 21-S/2 BG NW CR GL3 S150' TPB N150' N86*E463' TO FENCE POST TOP OF BLUFF S87 E TO GL LN SLY TP N86*E FR TPB S86*W TPB EX RDS |
| Geographic ID: | R32912-256-0410 | Agent Code: | |
| Type: | Real | | |
| Tax Area: | 712 - APPRAISER-S Whid Schl Dist, outside Langley, improved, greater than 1 acre | Land Use Code | 11 |
| Open Space: | N | DFL | N |
| Historic Property: | N | Remodel Property: | N |
| Multi-Family Redevelopment: | N | | |
| Township: | 29 | Section: | 12 |
| Range: | R3 |
Location |
| Address: | 5415 WILKINSON RD LANGLEY, WA 98260 | Mapsco: | |
| Neighborhood: | Cycle 4 | Map ID: | 762 |
| Neighborhood CD: | 4 |
Owner |
| Name: | FIDELINE, DAVID | Owner ID: | 17729 |
| Mailing Address: | 5415 WILKINSON RD LANGLEY, WA 98260-8700 | % Ownership: | 100.0000000000% |
| | | Exemptions: | |
Taxes and Assessment Details
Values
| (+) Improvement Homesite Value: | + | $0 | |
| (+) Improvement Non-Homesite Value: | + | $390,191 | |
| (+) Land Homesite Value: | + | $0 | |
| (+) Land Non-Homesite Value: | + | $700,000 | |
| (+) Curr Use (HS): | + | $0 | $0 |
| (+) Curr Use (NHS): | + | $0 | $0 |
| | | -------------------------- | |
| (=) Market Value: | = | $1,090,191 | |
| (–) Productivity Loss: | – | $0 | |
| | | -------------------------- | |
| (=) Subtotal: | = | $1,090,191 | |
| (+) Senior Appraised Value: | + | $0 | |
| (+) Non-Senior Appraised Value: | + | $1,090,191 | |
| | | -------------------------- | |
| (=) Total Appraised Value: | = | $1,090,191 | |
| (–) Senior Exemption Loss: | – | $0 | |
| (–) Exemption Loss: | – | $0 | |
| | | -------------------------- | |
| (=) Taxable Value: | = | $1,090,191 | |
Taxing Jurisdiction
| Owner: | FIDELINE, DAVID | | |
| % Ownership: | 100.0000000000% | | |
| Total Value: | $1,090,191 | | |
| Tax Area: | 712 - APPRAISER-S Whid Schl Dist, outside Langley, improved, greater than 1 acre |
| CF | Conservation Futures | 0.0316035091 | $1,090,191 | $1,090,191 | $34.45 | | |
| FIRE3 | Fire & Rescue Dist #3 S Whidbey GEN | 1.2004855531 | $1,090,191 | $1,090,191 | $1,308.76 | | |
| HOBOND | Hospital BOND | 0.1910887512 | $1,090,191 | $1,090,191 | $208.32 | | |
| HOGEN | Hospital GEN | 0.3902502903 | $1,090,191 | $1,090,191 | $425.45 | | |
| CE | County Current Expense | 0.3708482477 | $1,090,191 | $1,090,191 | $404.30 | | |
| CR | County Roads | 0.4584763726 | $1,090,191 | $1,090,191 | $499.83 | | |
| ISLANDEMS | Hospital GEN (EMS) | 0.5000000000 | $1,090,191 | $1,090,191 | $545.10 | | |
| LIB | Library Sno-Isle GEN | 0.3153421757 | $1,090,191 | $1,090,191 | $343.78 | | |
| PORTWHID | Port of S Whidbey GEN | 0.1094540357 | $1,090,191 | $1,090,191 | $119.33 | | |
| SCH206BOND | School 206 BOND | 0.3161759235 | $1,090,191 | $1,090,191 | $344.69 | | |
| SCH206MO | School 206 Enrichment | 0.4547169547 | $1,090,191 | $1,090,191 | $495.73 | | |
| ST | State School | 1.3035497053 | $1,090,191 | $1,090,191 | $1,421.12 | | |
| ST2 | State School Part 2 | 0.8169543533 | $1,090,191 | $1,090,191 | $890.64 | | |
| SWHIDPRBD | P & R S Whidbey BOND | 0.0152817568 | $1,090,191 | $1,090,191 | $16.66 | | |
| SWHIDPRBD2 | P & R S Whidbey BOND2 | 0.0138911264 | $1,090,191 | $1,090,191 | $15.14 | | |
| SWHIDPRMT | P & R S Whidbey GEN | 0.2053334452 | $1,090,191 | $1,090,191 | $223.85 | | |
| | Total Tax Rate: | 6.6934522006 | | | | | |
| | | | | Taxes w/Current Exemptions: | $7,297.15 | | |
| | | | | Taxes w/o Exemptions: | $7,297.15 | | |
Improvement / Building
| Improvement #1: | RESIDENTIAL | State Code: | Y | 2369.0 sqft | Value: | $390,191 |
| Bathrooms: | 3 | Bedrooms: | 3 | | Ceiling: | TONGUE & GROOVE | Exterior Wall/Cover: | WOOD SIDING | | Floor Covering: | HARDWOOD/CARP 80-20 | Floor Structure: | WOOD W/SUBFLOOR | | Foundation: | CONCRETE | Heating: | FHA ELECTRIC | | Interior Finish: | DRYWALL PAINT | Plumbing Fixture Cnt: | 12 | | Roof Slope: | 4" IN 12" | Roof Structure/Cover: | CJ ALUMINIUM HEAVY |
|
| | Type | Description | Class CD | Sub Class CD | Year Built | Area |
| | BAS | BASE/MAIN FLOOR | 4 | 0 | 1978 | 1715.0 |
| | DWN | DOWNSTAIRS LIVING AREA | 4 | 0 | 1978 | 654.0 |
| | OCP | OPEN CARPORT | 4 | 0 | 1978 | 400.0 |
| | BAW | BALCONY WOOD RAIL | 4 | 0 | 1978 | 116.0 |
| | OWP | OPEN WOOD PORCH W/STEPS | 4 | 0 | 1978 | 871.2 |
| | oOBD | Out Buildings | 4 | 0 | 1978 | 0.0 |
Sketch
Property Image
Land
| 1 | HB | HIGH BLUFF | 1.5000 | 65340.00 | 68.00 | 0.00 | 1.00 | $700,000 | $0 |
Roll Value History
| 2026 | N/A | N/A | N/A | N/A | N/A |
| 2025 | $390,191 | $700,000 | $0 | $1,090,191 | $1,090,191 |
| 2024 | $395,698 | $700,000 | $0 | $1,095,698 | $1,095,698 |
| 2023 | $401,202 | $700,000 | $0 | $1,101,202 | $1,101,202 |
| 2022 | $370,163 | $675,000 | $0 | $1,045,163 | $1,045,163 |
| 2021 | $331,908 | $300,000 | $0 | $631,908 | $631,908 |
| 2020 | $315,818 | $250,000 | $0 | $565,818 | $565,818 |
| 2019 | $236,135 | $300,000 | $0 | $536,135 | $536,135 |
| 2018 | $236,893 | $250,000 | $0 | $486,893 | $486,893 |
| 2017 | $238,409 | $250,000 | $0 | $488,409 | $488,409 |
| 2016 | $241,443 | $250,000 | $0 | $491,443 | $491,443 |
| 2015 | $244,476 | $250,000 | $0 | $494,476 | $494,476 |
| 2014 | $230,473 | $250,000 | $0 | $480,473 | $480,473 |
| 2013 | $233,810 | $202,348 | $0 | $436,158 | $436,158 |
| 2012 | $237,149 | $202,348 | $0 | $439,497 | $439,497 |
| 2011 | $240,484 | $224,831 | $0 | $465,315 | $465,315 |
| 2010 | $257,625 | $224,831 | $0 | $482,456 | $482,456 |
| 2009 | $269,019 | $266,483 | $0 | $535,502 | $535,502 |
| 2008 | $268,249 | $266,483 | $0 | $534,732 | $534,732 |
| 2007 | $272,650 | $322,444 | $0 | $595,094 | $595,094 |
Deed and Sales History
| 1 | 06/01/1978 | OTHER | Other - Misc. Documents | Unknown | FIDELINE, DAVID | | | $0.00 | 58479 | 334672 |
Payout Agreement
| No payout information available.. |