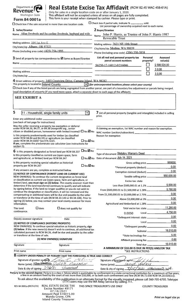
Property
Account |
| Property ID: | 491890 | Abbreviated Legal Description: | REPLACES 285-5050 IN SE NE: BG SECR NE N88*W 60.01' TPB N2*E424.55' N88*W524.86' S1*E424.80' S88*E501.84' TPB FR VAC PARKWOOD #1 LOTS 7 & 8 LOT 4 SUR V4/P79 |
| Geographic ID: | R33031-286-5310 | Agent Code: | |
| Type: | Real | | |
| Tax Area: | 712 - APPRAISER-S Whid Schl Dist, outside Langley, improved, greater than 1 acre | Land Use Code | 11 |
| Open Space: | N | DFL | N |
| Historic Property: | N | Remodel Property: | N |
| Multi-Family Redevelopment: | N | | |
| Township: | 30 | Section: | 31 |
| Range: | R3 |
Location |
| Address: | 4576 LONE LAKE RD LANGLEY, WA 98260 | Mapsco: | |
| Neighborhood: | Cycle 4 | Map ID: | 903 |
| Neighborhood CD: | 4 |
Owner |
| Name: | SAIGN, STEVEN S & KAROL J | Owner ID: | 94683 |
| Mailing Address: | PO BOX 1063 LANGLEY, WA 98260-1063 | % Ownership: | 100.0000000000% |
| | | Exemptions: | |
Taxes and Assessment Details
Values
| (+) Improvement Homesite Value: | + | $0 | |
| (+) Improvement Non-Homesite Value: | + | $300,180 | |
| (+) Land Homesite Value: | + | $0 | |
| (+) Land Non-Homesite Value: | + | $380,000 | |
| (+) Curr Use (HS): | + | $0 | $0 |
| (+) Curr Use (NHS): | + | $0 | $0 |
| | | -------------------------- | |
| (=) Market Value: | = | $680,180 | |
| (–) Productivity Loss: | – | $0 | |
| | | -------------------------- | |
| (=) Subtotal: | = | $680,180 | |
| (+) Senior Appraised Value: | + | $0 | |
| (+) Non-Senior Appraised Value: | + | $680,180 | |
| | | -------------------------- | |
| (=) Total Appraised Value: | = | $680,180 | |
| (–) Senior Exemption Loss: | – | $0 | |
| (–) Exemption Loss: | – | $0 | |
| | | -------------------------- | |
| (=) Taxable Value: | = | $680,180 | |
Taxing Jurisdiction
| Owner: | SAIGN, STEVEN S & KAROL J | | |
| % Ownership: | 100.0000000000% | | |
| Total Value: | $680,180 | | |
| Tax Area: | 712 - APPRAISER-S Whid Schl Dist, outside Langley, improved, greater than 1 acre |
| CF | Conservation Futures | 0.0316035091 | $680,180 | $680,180 | $21.50 | | |
| FIRE3 | Fire & Rescue Dist #3 S Whidbey GEN | 1.2004855531 | $680,180 | $680,180 | $816.55 | | |
| HOBOND | Hospital BOND | 0.1910887512 | $680,180 | $680,180 | $129.97 | | |
| HOGEN | Hospital GEN | 0.3902502903 | $680,180 | $680,180 | $265.44 | | |
| CE | County Current Expense | 0.3708482477 | $680,180 | $680,180 | $252.24 | | |
| CR | County Roads | 0.4584763726 | $680,180 | $680,180 | $311.85 | | |
| ISLANDEMS | Hospital GEN (EMS) | 0.5000000000 | $680,180 | $680,180 | $340.09 | | |
| LIB | Library Sno-Isle GEN | 0.3153421757 | $680,180 | $680,180 | $214.49 | | |
| PORTWHID | Port of S Whidbey GEN | 0.1094540357 | $680,180 | $680,180 | $74.45 | | |
| SCH206BOND | School 206 BOND | 0.3161759235 | $680,180 | $680,180 | $215.06 | | |
| SCH206MO | School 206 Enrichment | 0.4547169547 | $680,180 | $680,180 | $309.29 | | |
| ST | State School | 1.3035497053 | $680,180 | $680,180 | $886.65 | | |
| ST2 | State School Part 2 | 0.8169543533 | $680,180 | $680,180 | $555.68 | | |
| SWHIDPRBD | P & R S Whidbey BOND | 0.0152817568 | $680,180 | $680,180 | $10.39 | | |
| SWHIDPRBD2 | P & R S Whidbey BOND2 | 0.0138911264 | $680,180 | $680,180 | $9.45 | | |
| SWHIDPRMT | P & R S Whidbey GEN | 0.2053334452 | $680,180 | $680,180 | $139.66 | | |
| | Total Tax Rate: | 6.6934522006 | | | | | |
| | | | | Taxes w/Current Exemptions: | $4,552.76 | | |
| | | | | Taxes w/o Exemptions: | $4,552.76 | | |
Improvement / Building
| Improvement #1: | RESIDENTIAL | State Code: | Y | 1526.6 sqft | Value: | $300,180 |
| Bathrooms: | 2 | Bedrooms: | 3 | | Ceiling: | DRYWALL PAINTED | Exterior Wall/Cover: | WOOD SIDING | | Floor Covering: | HARDWOOD/CARP 20-80 | Floor Structure: | WOOD W/SUBFLOOR | | Foundation: | CONCRETE | Heating: | FHA GAS | | Interior Finish: | DRYWALL PAINT | Plumbing Fixture Cnt: | 11 | | Roof Slope: | 8" IN 12" | Roof Structure/Cover: | CJ ASPHALT |
|
| | Type | Description | Class CD | Sub Class CD | Year Built | Area |
| | BAS | BASE/MAIN FLOOR | 3 | 0 | 1996 | 1526.6 |
| | AGR | ATTACHED GARAGE | 3 | 0 | 1996 | 416.0 |
| | OWP | OPEN WOOD PORCH W/STEPS | 3 | 0 | 1996 | 327.3 |
| | OWP | OPEN WOOD PORCH W/STEPS | 3 | 0 | 1996 | 168.0 |
| | OWR | OPEN WOOD PORCH W/STEPS/ROOF | 3 | 0 | 1996 | 23.1 |
Sketch
Property Image
Land
| 1 | 32 | AC (03.01-09.99) | 5.0300 | 0.00 | 0.00 | 0.00 | 1.00 | $380,000 | $0 |
Roll Value History
| 2026 | N/A | N/A | N/A | N/A | N/A |
| 2025 | $300,180 | $380,000 | $0 | $680,180 | $680,180 |
| 2024 | $303,968 | $350,000 | $0 | $653,968 | $653,968 |
| 2023 | $307,757 | $330,000 | $0 | $637,757 | $637,757 |
| 2022 | $282,106 | $290,000 | $0 | $572,106 | $572,106 |
| 2021 | $248,291 | $230,000 | $0 | $478,291 | $478,291 |
| 2020 | $230,179 | $190,000 | $0 | $420,179 | $420,179 |
| 2019 | $166,414 | $250,000 | $0 | $416,414 | $416,414 |
| 2018 | $166,926 | $210,000 | $0 | $376,926 | $376,926 |
| 2017 | $167,829 | $190,000 | $0 | $357,829 | $357,829 |
| 2016 | $169,875 | $135,000 | $0 | $304,875 | $304,875 |
| 2015 | $171,921 | $135,000 | $0 | $306,921 | $306,921 |
| 2014 | $168,965 | $135,810 | $0 | $304,775 | $304,775 |
| 2013 | $171,049 | $135,810 | $0 | $306,859 | $306,859 |
| 2012 | $173,136 | $135,810 | $0 | $308,946 | $308,946 |
| 2011 | $175,222 | $135,810 | $0 | $311,032 | $311,032 |
| 2010 | $183,428 | $135,810 | $0 | $319,238 | $319,238 |
| 2009 | $191,311 | $221,320 | $0 | $412,631 | $412,631 |
| 2008 | $212,827 | $252,305 | $0 | $465,132 | $465,132 |
| 2007 | $215,306 | $252,305 | $0 | $467,611 | $467,611 |
Deed and Sales History
| 1 | 12/01/1996 | WD | Warranty Deed | GODDEN, RICHARD | SAIGN, STEVEN S | | | $198,700.00 | 64616 | 96022229 |
| 2 | 05/01/1996 | WD | Warranty Deed | WANG, HWA K | GODDEN, RICHARD | | | $40,000.00 | 61748 | 96008659 |
| 3 | 04/01/1979 | EXECUTORD | Executor Deed | Unknown | WANG, HWA K | | | $36,500.00 | 92174 | 352123 |
Payout Agreement
| No payout information available.. |